The image of Janus, with two faces and one head, served as the conceptual reference for Enrico Molteni Architecture's proposal for the Inclusive and Innovative Educational Center. Integrated into the orthogonal grid of the university campus, the two square structures that comprise it—the Kindergarten and the AGS Foundation—face opposite directions, divided by a transverse path that connects the parking area to the green space.
The building's structure, conceived as a puzzle, is composed of 5-meter-high wooden frames with slender, gently sloping supports that follow a radial symmetry. Inside, the spaces are interconnected by more than three points of tangency where glass doors open, expanding natural light, views, and the relationships between uses.
In terms of sustainability, the building was constructed according to NZEB (Nearly Zero Energy Building) criteria, achieving high energy efficiency. On the other hand, careful landscaping work is carried out in the central courtyard to provide the opportunity to explore and inhabit this space, which represents the symbolic and physical union for children and adolescents.
Inclusive Educational Centre was one of 410 projects nominated for the 2026 Mies van der Rohe Award.

Inclusive Educational Centre by Enrico Molteni. Photograph by Marco Cappelletti.
Project description by Enrico Molteni Architecture
The fact that the University of Parma and the Accademia dei Giorni Straordinari Foundation joined forces to undertake something they could have done individually is the fundamental aspect that the project aimed to express in architectural forms. The pedagogical idea on which the functional program is based is highly innovative, both in the integration between a public and a private school and in the educational continuity and contiguity with the university campus, as well as in the union of diversities, following a principle of social inclusivity and knowledge transversality.
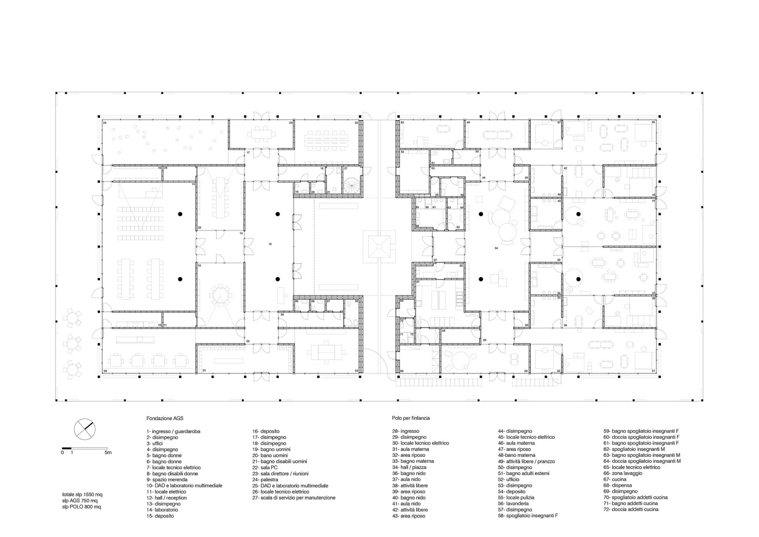
The two required buildings, one for the 0-6 Childhood Hub (a rare example in Italy) - public - and one for the education of preadolescent fragile youths - private - are entirely independent. However, in this diversity and necessary autonomy, the fundamental concept of the project was that of equality, to the extent that the architecture of the AGS Foundation and that of the Childhood Hub are the same architecture. Two buildings in one, similar and symmetrical. Two faces, one head: like a Janus, mysterious Roman god with two faces. The image of Janus, its duality and symmetry, but above all its unity and indivisibility, has been, from the beginning, the clearest conceptual reference of this project. Two faces, one head. Choosing an approach of integration into the community of the campus to which it is an integral part, the new pavilion is positioned following the same orthogonal grid, at a 45° angle to the North, which organizes all existing buildings. The specific identity of the new building is ensured by its architectural and material expression, contrasting with the existing architectures. The two bodies it consists of face opposite sides: the Kindergarten, more protected, towards the Cinghio Stream, and the AGS Foundation towards Giocampus, a sports association integrated with the AGS Foundation. A transversal path cuts the building in half, connecting the parking area to the green area of the University Sports Center (CUS).
Externally, the building’s image is defined by its entirely wooden structure. The portico, standing at a height of 5m and characterized by slender, slightly inclined supports, envelops the entire structure following the principle of radial symmetry, typically distinguishing a public building from a private or service building. The floor plan of the project consists of two squares, physically separated by a 12 cm cut. The plan composition is strongly geometric, employing double symmetries, whole or shaped figures, nested together: 72 different spaces by function and size, all generated from a common matrix of 360x360x360cm and submultiples, complementary to each other like a perfect puzzle. The pavilion is a puzzle.
Internally, each space connects at points tangent to others, and at these points, glass doors open. The position of these openings allows for the expansion of space along lines of visual enfilade that connect the entire building from one facade to another, spanning 70 meters. Each space has more than three different opening points, allowing for the amplification of natural light, views, and usage relationships in multiple directions. The connections between classrooms and the hall, as well as between classrooms, aim to define a fluid and flexible use, where the balance between opaque and transparent parts, walls, and doors allows experiencing the space as a total entity.
At the center, a perfect square-shaped space. Creating a project is in itself a game of patience: a puzzle. Shaping various requests and aspects of different natures: structure, systems, finishes, functions, regulations, climate, terrain, budget. These and other aspects appear as isolated and autonomous issues. However, the purpose of the project is oriented towards synthesis, towards the whole. In this totality, in this final form, every piece, every element is necessary and indispensable in building the meaning and beauty of the whole.
The building is conceived as architecture entirely constructed with dry construction systems, with a load-bearing wooden structure consisting of laminated beams-columns and CLT panels for the floors, featuring large glazed openings for the perimeter facades. The entire surface of approximately 900 sqm is supported by four central, circular pillars and appropriately braced perimeter pillars. The inclination of the portico pillars serves as bracing, avoiding crosses. The internal partitions are made of plasterboard, protected with a coating up to a height of 75 cm in gray PVC, in continuity with the floor. The acoustic ceilings are made of wood fiber. Overall, the environment is sober, natural, bright, a neutral and comfortable backdrop for activities and the colorful and lively presence of children.
In terms of sustainability, the building was constructed according to Nearly Zero Energy Building (NZEB) criteria with high energy efficiency and achieves a classification of 22.45 kWh/m2 per year. Mechanical ventilation is provided through a ducted ceiling system, external motorized shading with curtains, winter heating and summer cooling through radiant floor panels, building automation system, and a photovoltaic panel system with a capacity of 96 kWp, covering almost the entire energy needs of the building.
The landscaping project aims to provide conditions for children and adolescents to explore and inhabit the gardens as part of a larger green system. The hedge is not a barrier but becomes a visual foreground in a sequence that expands and merges with the woods and the campus. In the central courtyard between the two separate bodies, their union is symbolically and physically present: the common space around which everything gathers. In this center, the symbolic use of the color red takes center stage. This public space is an open-air classroom, a place for exchange, sharing, and discussion, suitable for hosting common events, even extending to the campus community and the entire city.
The building was completed in 310 working days, involving 48 companies, totaling 4,500 presences on-site, with no reported accidents.