Architectural practice SkreinStudios designed The ICON, a pavilion located in Davos, Switzerland, to develop sustainable and ecological properties. It presents a regenerative, mobile, and modular model to support the World Economic Forum and its global partners.

It is a space that invites dialogue, innovation, and regeneration by engaging with the planet and the technological advances that have emerged in the last century. It will be assembled and disassembled each year as a reusable structure.

SkreinStudios developed the pavilion to house a meeting center that addresses current global issues, such as the protection of the Amazon, media resilience in the age of AI, and the future of global health research. The pavilion's design is based on biophilic principles.

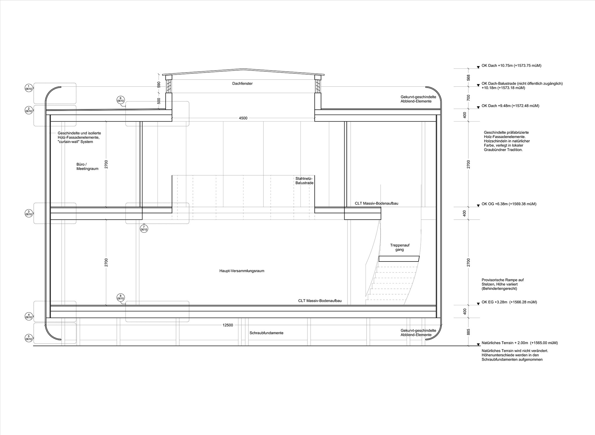
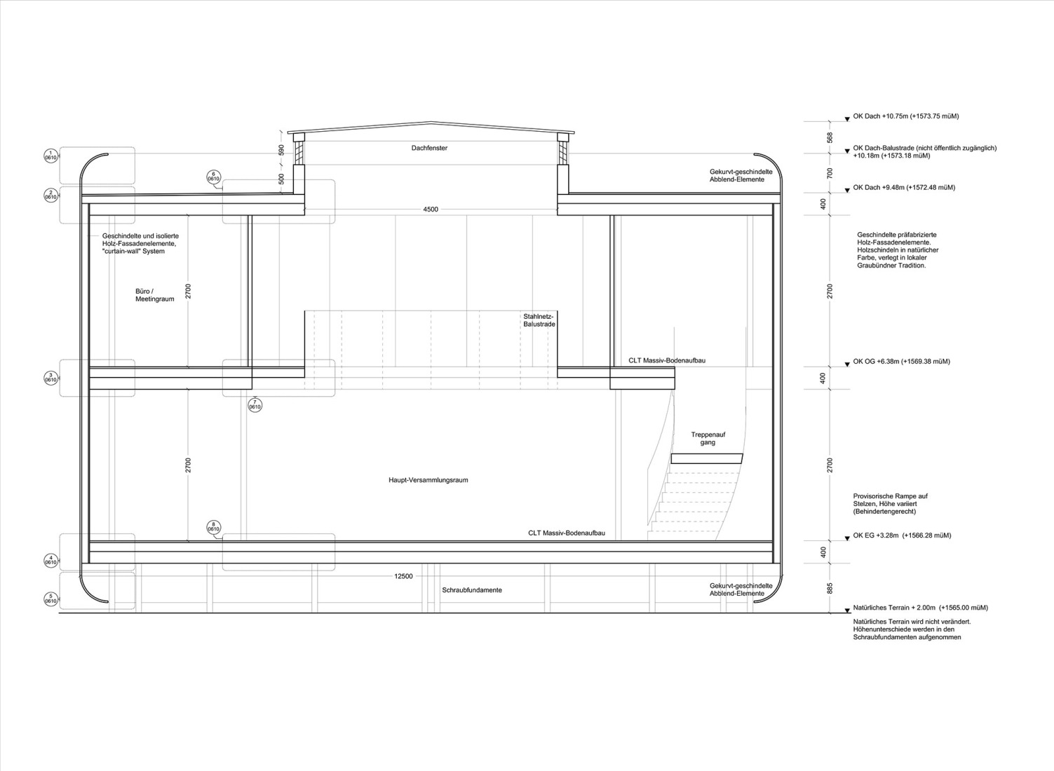
The primary material used is local Swiss wood, which insulates and ventilates the building for greater energy efficiency. On the exterior, the wood is used in the form of untreated shingles, symbolizing aging and change over time. For the foundation, Skrein Studios used screw piles to minimize footprints when dismantled. The building also features fast charging for electric vehicles, edge computing, and community spaces.

The ICON by SkreinStudios. Photography by Beat Bühler

The ICON by SkreinStudios. Photography by Beat Bühler.

Description of project by SkreinStudios

The ICON is a modular, mobile, and regenerative architectural concept that represents a forward-looking vision for the built environment—scalable, reversible, sustainable, and rooted in principles of ecological and technological integration.

Initially imagined, designed, and commissioned by Hub Culture, and further developed in collaboration with BYLD, the ICON is a pioneering study on "dwell-time" in the evolving context of mid-21st-century life. It serves as a reconfigurable Hub that responds to emerging needs at the convergence of mobility, electric transportation, convenience, and real-time data. Designed to move and adapt, the ICON invites a rethinking of how spaces are used, assembled, and shared in a world in constant motion.

The ICON por SkreinStudios. Fotografía por Beat Bühler.
The ICON by SkreinStudios. Photography by Beat Bühler.

Its primary function is to provide a highly flexible, prefabricated timber pavilion to support the World Economic Forum and its global partners. As a reusable and sustainable structure, it can be assembled and dismantled annually to host conversations around some of the most pressing issues of our time: ocean and biosphere conservation, the authenticity and resilience of media in the AI era, protection of the Amazon, climate data integration at planetary scale, and the future of global health research. It acts as both a symbol and a stage for the regenerative economy—an emerging paradigm focused on circular systems, renewable materials, and inclusive innovation.

Constructed from locally sourced Swiss timber, the 180 m² pavilion is fully insulated, naturally ventilated, and designed for minimal environmental impact. Its untreated wooden shingles weather naturally, developing a living patina, while its screw pile foundation system ensures complete reversibility, leaving no trace on the terrain after disassembly. The ICON also features integrated technologies for high-speed electric vehicle charging, edge data computing, and community-oriented infrastructure, all wrapped in a design guided by biophilic principles.

The ICON by SkreinStudios. Photography by Beat Bühler
The ICON by SkreinStudios. Photography by Beat Bühler.

The debut of the ICON at Davos 2025 was made possible through a coalition of forward-thinking partners, including S&P Global, Hedera, US Steel, Handshake, XBTO, the Davos Alzheimer’s Collective, Imperial, and Foreign Policy. Architectural design was led by Skrein Studios and TVA, and it was executed by Kūhni AG and Künzli AG, with meaningful support from the local Davos community.

As a mobile node for dialogue, innovation, and regeneration, the ICON redefines what a space can be in service of people and the planet.

More information

Label
Architects
+ + copy Created with Sketch.
- + copy Created with Sketch.
Label
Project team
Text

Raoul Skrein-Bumballa, Ignacio Jaso Ferrer, John Porral, Gabriela Olivares, Andrea Collar Loyer, Mats Alexander de Boer.

+ + copy Created with Sketch.
- + copy Created with Sketch.
Label
Collaborators
Text

Strategic Partner.- The Visionist Advisers.
Construction and expert wood consultant.- Kühni AG.
Installations.- Eicher+Pauli.
Structures.- Indermühle Bauingenieure.

+ + copy Created with Sketch.
- + copy Created with Sketch.
Label
Client
Text

Hub Culture Service Ltd.

+ + copy Created with Sketch.
- + copy Created with Sketch.
Label
Developer
Text

Byld Development SL.

+ + copy Created with Sketch.
- + copy Created with Sketch.
Label
Status
Text

Completed.

+ + copy Created with Sketch.
- + copy Created with Sketch.
Label
Area
Text

200.00 sqm.

+ + copy Created with Sketch.
- + copy Created with Sketch.
Label
Dates
Text

January 19, 2025.

+ + copy Created with Sketch.
- + copy Created with Sketch.
Label
Location
Text

Davos, Switzerland.

+ + copy Created with Sketch.
- + copy Created with Sketch.
Label
Photography
+ + copy Created with Sketch.
- + copy Created with Sketch.

SkreinStudios is an internationally recognized architecture studio founded in 2021 and based in Madrid. It is committed to sustainable design, innovation, and cultural integration. The studio has gained prestige for its visionary approach, developing projects that span multiple sectors and continents.

Since its inception, the firm has prioritized the use of local materials, energy-efficient systems, and design strategies that minimize environmental impact. This attention to detail was recognized with the 2024 NAN Award for Best Hotel Design for the Umoya Boutique Hotel in Cape Town, South Africa: an eco-conscious hotel project that blends into its natural surroundings while implementing cutting-edge passive strategies. More recently, this same building was named Popular Choice Winner at the 2025 Architizer A+ Awards in the Best Sustainable Building for Hospitality category.

Collaboration is at the core of its philosophy. Its multidisciplinary team, comprised of architects, engineers, and sustainability experts, ensures a comprehensive design process that considers every aspect of the project, from concept to execution. It is believed that truly innovative solutions emerge when different perspectives and disciplines converge.

The studio's approach is deeply rooted in the context, both physical and cultural. Whether in Europe, Africa, or other continents, they engage with local communities and specialists to develop architectural solutions that respect and enhance their surroundings. Their work balances aesthetic ambition with environmental responsibility, integrating passive strategies, renewable energy systems, and circular economy principles.

As the studio continues to grow, it maintains its goal of pushing the boundaries of resilient architecture. Currently, the studio is expanding its expertise in modular timber construction and exploring prefabrication techniques to further reduce its carbon footprint, while improving efficiency, flexibility, and cutting-edge design.

With an award-winning portfolio and an unwavering commitment to responsible design, SkreinStudios is shaping the future of architecture—one sustainable project at a time.

Read more
Published on: September 2, 2025
Cite:
metalocus, IRENE ÁLAMO MARTÍN
"Dwell-time. The ICON by SkreinStudios" METALOCUS. Accessed
<http://www.metalocus.es/en/news/dwell-time-icon-skreinstudios> ISSN 1139-6415
Loading content ...
Loading content ...
Loading content ...
Loading content ...
Loading content ...
Loading content ...
Loading content ...
Loading content ...
Loading content ...
Loading content ...
Loading content ...
Loading content ...
Loading content ...
Loading content ...
Loading content ...
Loading content ...
Loading content ...
Loading content ...
Loading content ...
Loading content ...
Loading content ...
Loading content ...
Loading content ...
Loading content ...
Loading content ...
Loading content ...
Loading content ...
Loading content ...
Loading content ...
Loading content ...
Loading content ...
Loading content ...
Loading content ...
Loading content ...
Loading content ...
Loading content ...
Loading content ...
Loading content ...
Loading content ...
Loading content ...
Loading content ...
Loading content ...
Loading content ...
Loading content ...
Loading content ...
Loading content ...
Loading content ...
Loading content ...
Loading content ...
Loading content ...
Loading content ...
Loading content ...
Loading content ...
Loading content ...