The proposal by Ateliers O-S architectes unfolds within a compact and functional single-story volume. The architectural program comprises a chef's kitchen, a dining area, and an educational space with an events hall and kitchen. The upper portion of the building enhances the complex, frames the landscape, and integrates the technical equipment.
The building's construction blends subtly with the surrounding residential area. It utilizes a mixed modular structure of concrete and wood with large spans, and a metal cladding for the facade.

Construction of a central kitchen and a community restaurant in Ermont by Ateliers O-S architectes. Photograph by Cyrille Weiner.
Project description by Ateliers O-S architectes
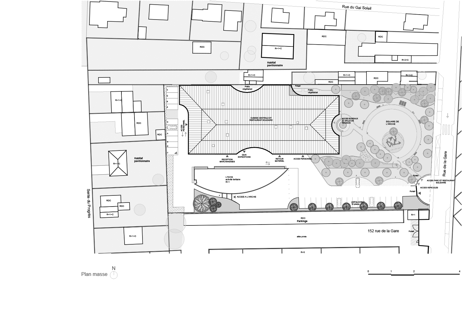
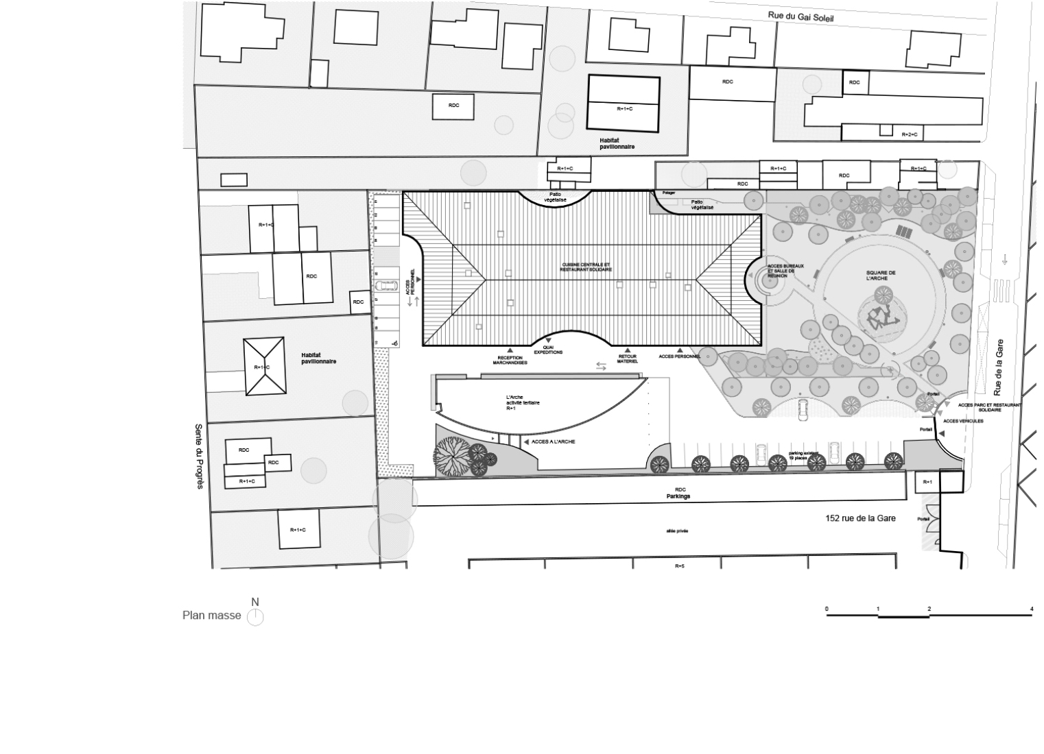
The central kitchen and community restaurant project is located set back from Rue de la Gare, near Ermont-Eaubonne station, in order to preserve the Jardin de l'Arche as a welcoming meeting place. Designed in the style of a pavilion, the building blends harmoniously into the surrounding residential area and creates a link between the scale of the facility and that of the neighborhood.
The architecture and landscape interact to improve the quality of public spaces and the living environment. The building is compact and functional, with a production area to the west and dining areas opening onto the garden to the east. A canopy marks the entrance and extends the landscaping.
Located along the northern boundary, the project optimizes traffic flow and technical access, limits the impact on the neighborhood, and asserts its visibility thanks to a south facade integrated into the existing vegetation. The complex forms an identifiable facility that respects the site and its landscape.
Located along the northern boundary, the project optimizes traffic flow and technical access, limits the impact on the neighborhood, and asserts its visibility thanks to a south-facing façade integrated into the existing vegetation. The complex forms an identifiable facility that respects the site and its landscape.
The Maison de la Qualité Culinaire is designed as a place for sharing, learning, and events centered around culinary quality. The architectural project emphasizes simplicity, efficiency, and flexibility, with a single-story building organized into a simple two-level volume.
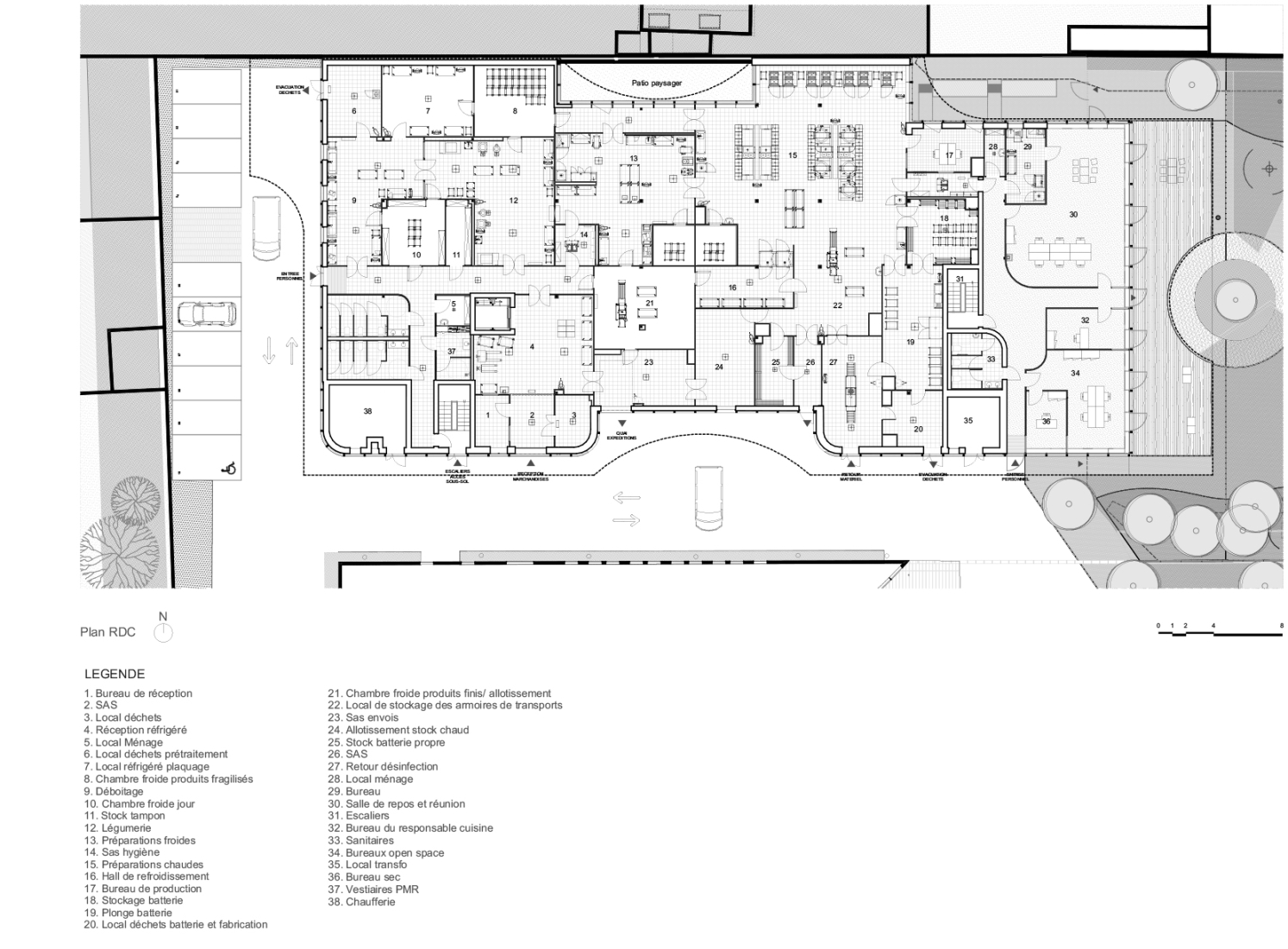
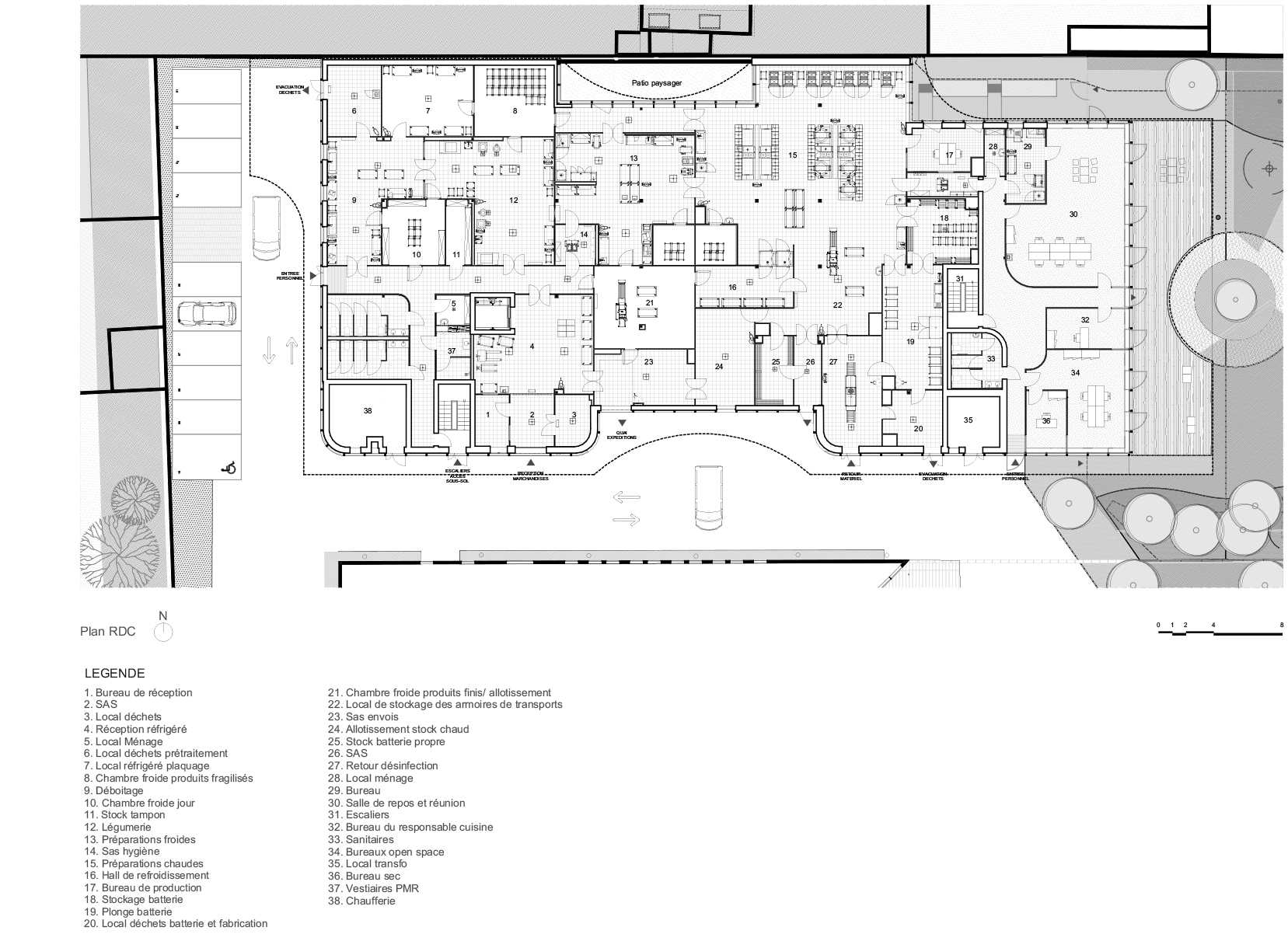
The lower level, dedicated to production, is anchored to the ground by light-colored metal cladding and enlivened by curved recesses and patios, recalling the landscape identity of the Arche and giving a fragmented reading of the building, similar to pavilions integrated into a park. The upper level caps the complex, frames the landscape, and integrates the awnings, covered courtyards, and technical equipment.
The functional organization is optimized: technical spaces are grouped together on the roof, some providing natural light, while offices enjoy direct views of the docks for better flow control. The mixed concrete/wood structure, with large spans, promotes modularity, program scalability, and the use of bio-based materials.
The project is based on a simple and rapid construction principle, offering great flexibility in terms of layout to precisely meet the central kitchen's scalability needs. The facility, capable of producing 5,000 meals per day, is designed to be both a high-performance technological tool and a symbol of the dynamism of the city of Ermont, while emphasizing architectural, acoustic, and landscaping qualities that promote calm and serenity.
The Maison de la Qualité Culinaire has a warm, homely atmosphere, contrasting with the technical nature of the central kitchen. The dining and work areas are finished with welcoming materials and carefully designed acoustic features. The program is divided into two areas: a laboratory space with a chef's kitchen and dining room, and an educational space comprising an event room and a kitchen alcove. Some rooms and equipment are shared with the central kitchen in order to optimize space and flow.
The functional layout favors a U-shaped food circuit, ensuring efficient and secure management of deliveries, waste, and internal forward flows, while limiting traffic. Access points, parking, technical rooms, and maneuvering areas are clearly prioritized and integrated into the site. The single-story building, which is accessible to all, benefits from generous natural lighting and integrated technical devices to limit visual, olfactory, and noise pollution, while preserving the quality of the square and its use.