
llLab plantea un proyecto que integra construcción y plataformas de equipos en una sola entidad, buscando desarrollar una IA centrada en el ser humano y, a la vez, un edificio concebido como un organismo de inteligencia artificial.
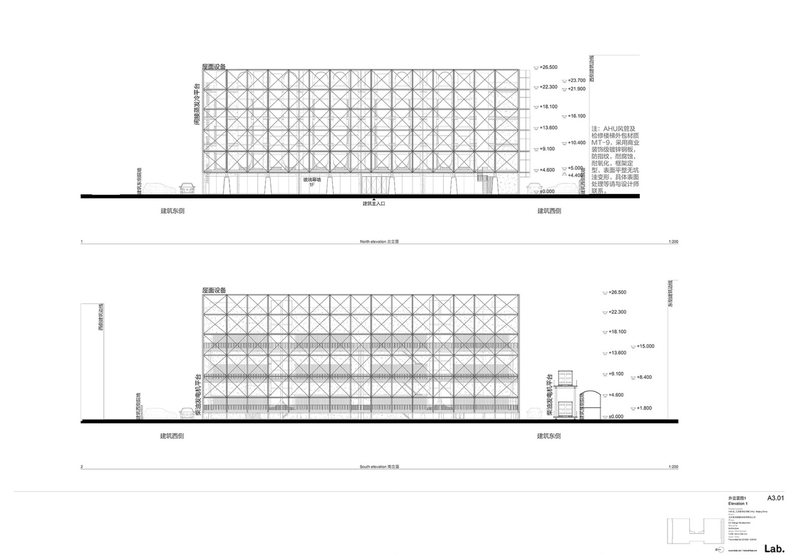
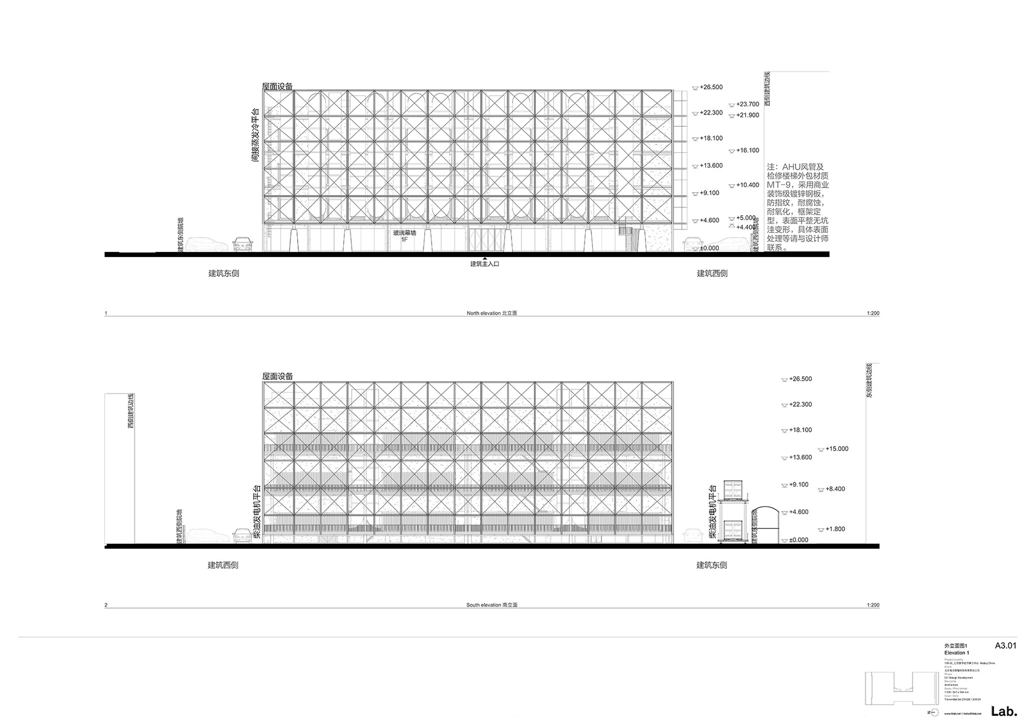
La fachada principal funciona como organismo vivo: de día muestra su hardware, simbolizando respiración y latido, mientras los conductos de refrigeración generan un lenguaje vertical visible; de noche, su forma biológica se desvanece y surge un espacio virtual donde luz y estructura revelan el pensamiento oculto de la entidad. Su lenguaje evoluciona con el entorno y los usuarios, adaptándose como un sistema vivo.
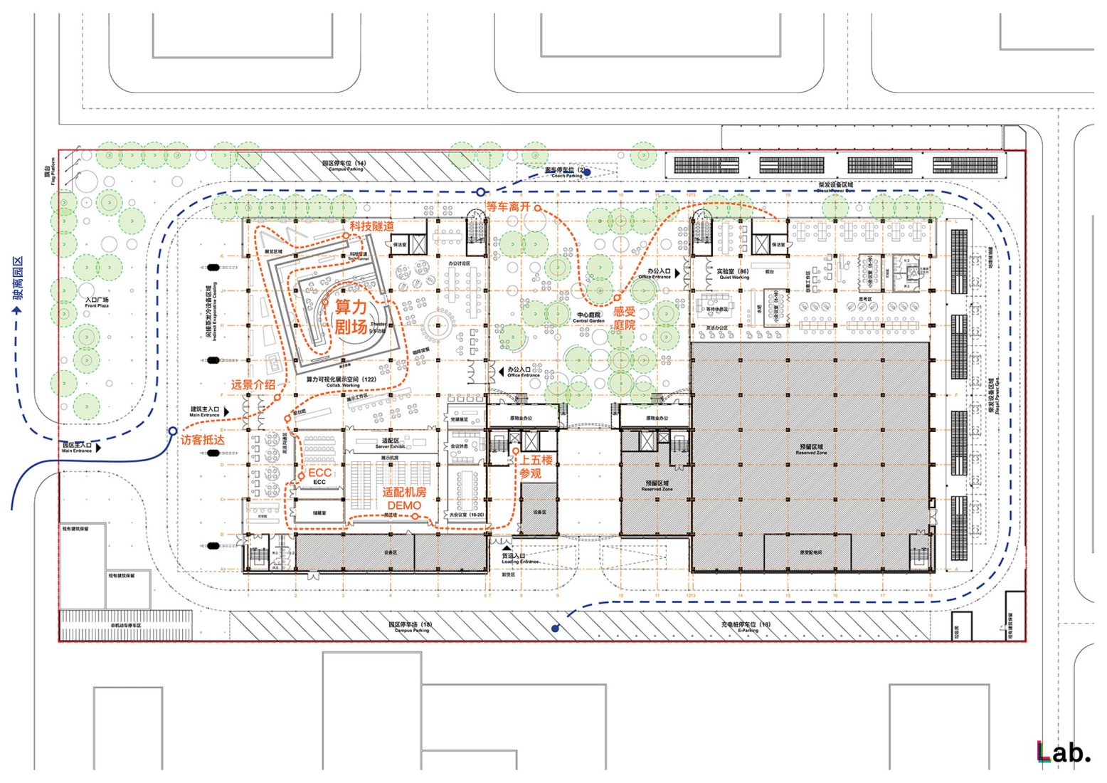
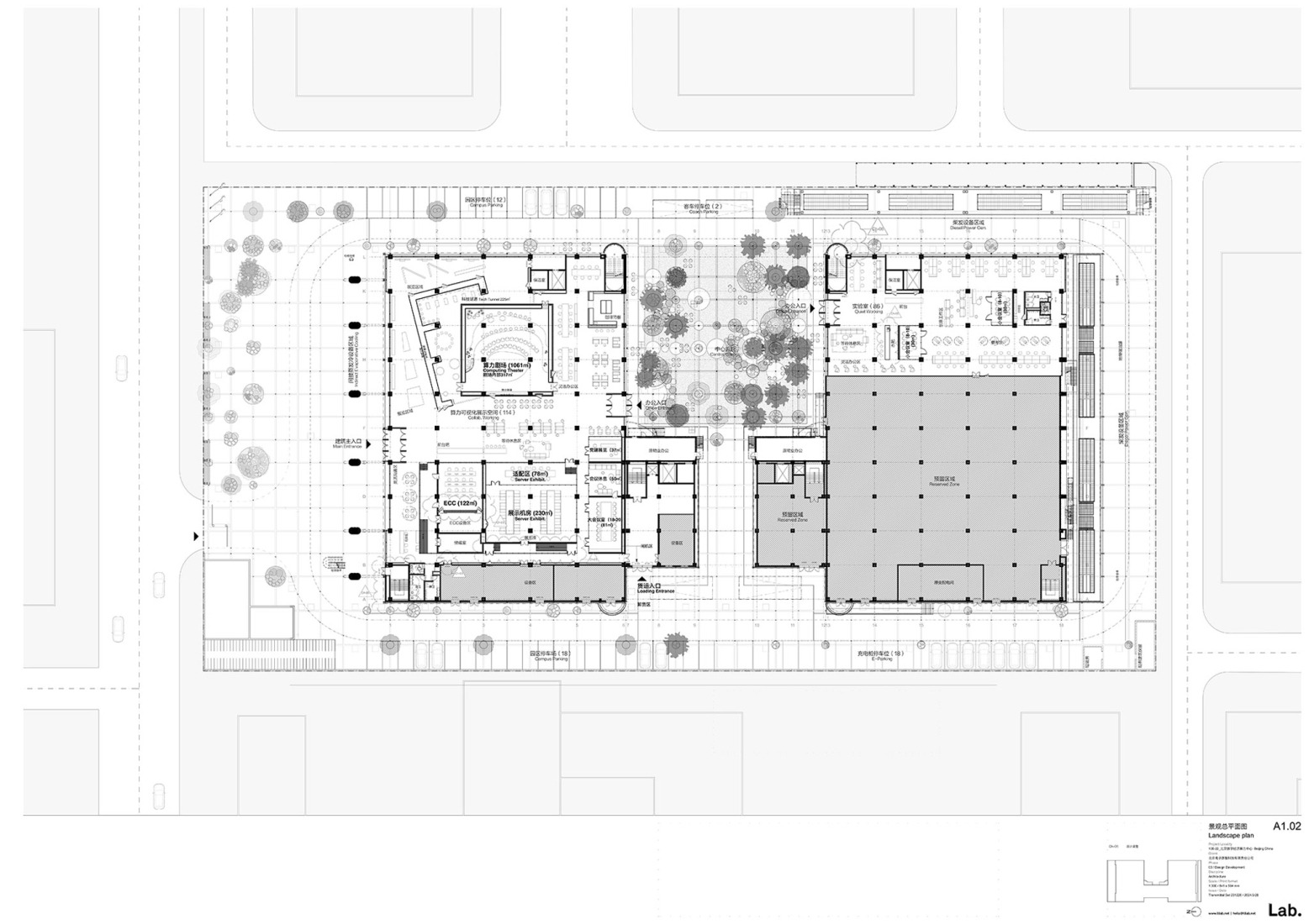
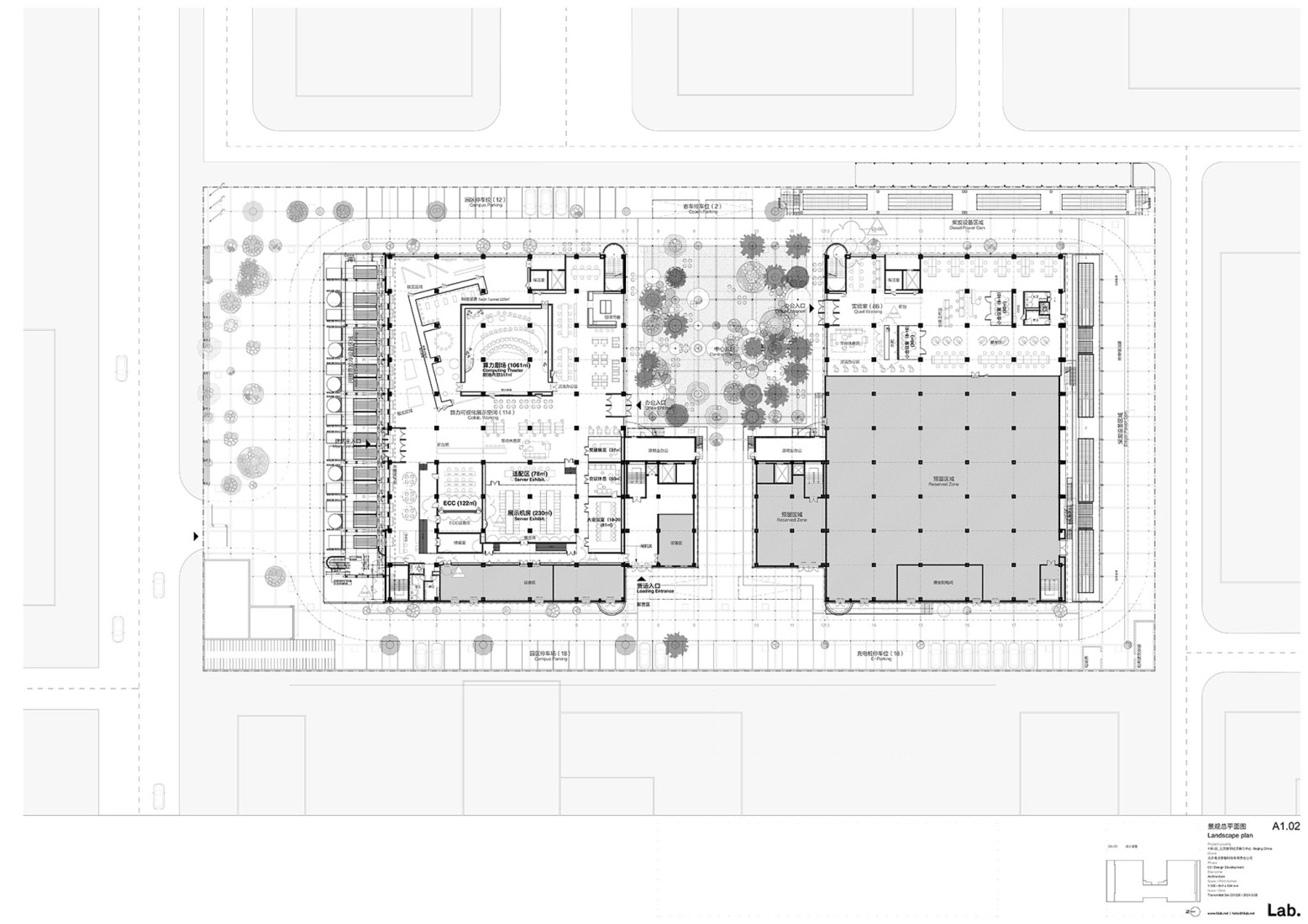
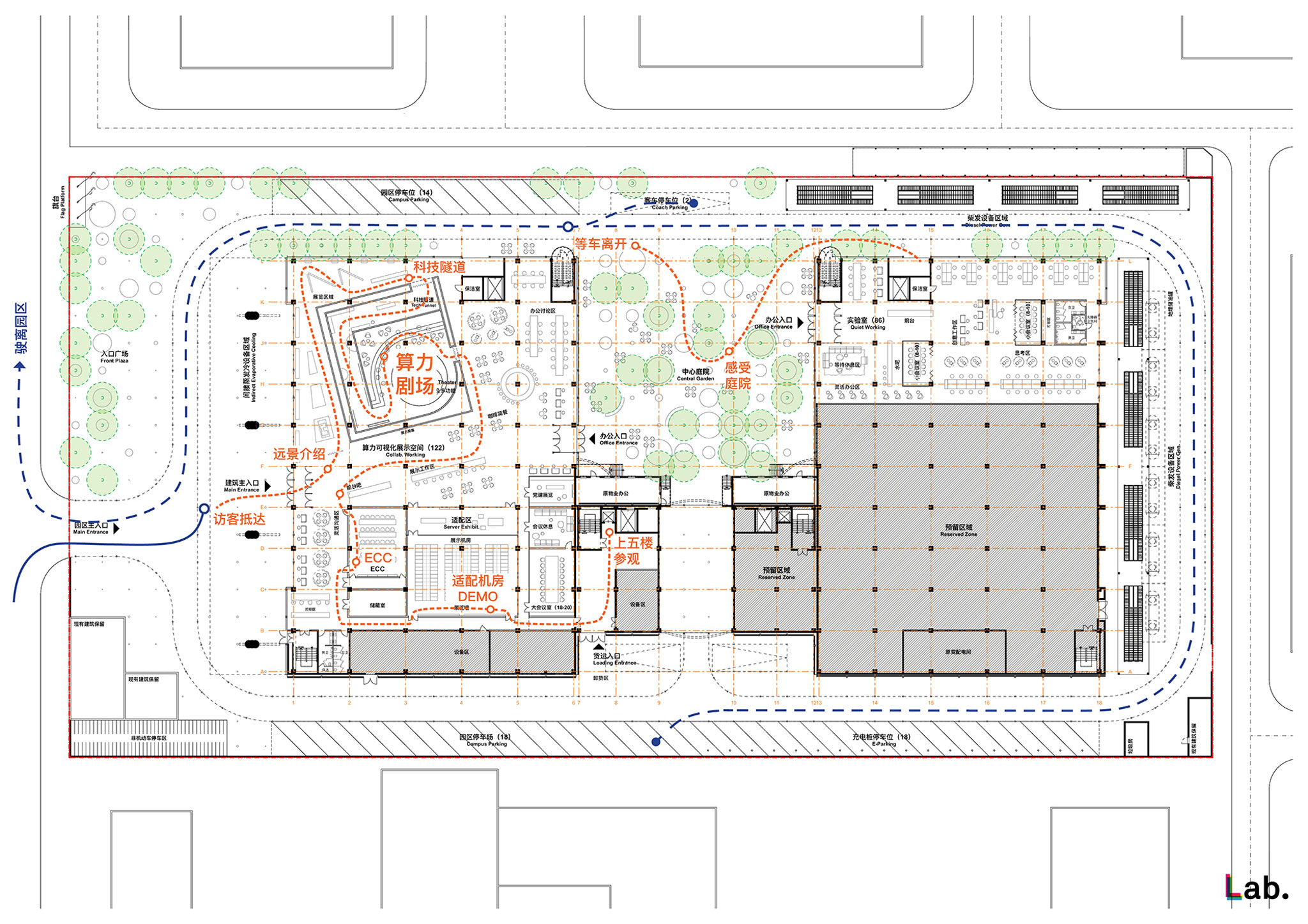
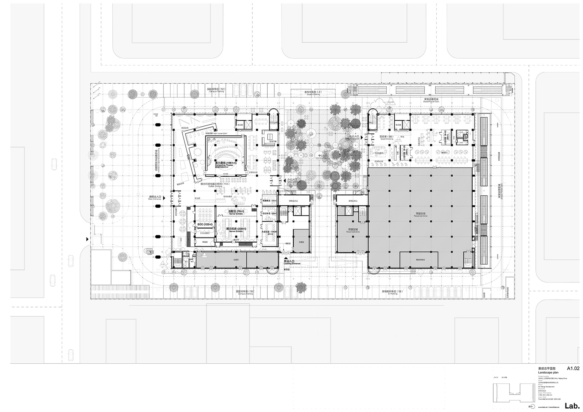
El edificio promueve transparencia y conexión social, integrando patios e interiores. La planta baja, con espacios abiertos al norte y al sur, combina trabajo, ocio y divulgación científica, impulsando la innovación industrial. Alberga el Computing Power Theater, oficinas, cafetería, salas multiusos y una exposición sobre evolución tecnológica, además del Centro de Comando Empresarial y un laboratorio de mobiliario generativo, fomentando la colaboración y la experimentación en torno a la potencia informática y la industria de la IA.

SPARK 761, Centro de Innovación y Desarrollo Digital de Pekín por llLab. Fotografía por Fernando Guerra | FG+SG.

SPARK 761, Centro de Innovación y Desarrollo Digital de Pekín por llLab. Fotografía por Fernando Guerra | FG+SG.
Descripción del proyecto por llLab.
La civilización humana comenzó con la era agrícola, experimentó las innovaciones mecánicas de la Revolución Industrial y luego dio el salto al entorno digital de la era de la información. Hoy, hemos entrado en una era de coexistencia entre los humanos y la inteligencia artificial. A lo largo de este largo proceso histórico, la humanidad ha creado continuamente la infraestructura fundamental del mundo y, a través de los resultados de la infraestructura de diferentes épocas, hemos descubierto nuevas posibilidades para el futuro.
Con el paso del tiempo, desde que la humanidad entró en la era de la información digital, la infraestructura ha coexistido gradualmente con nosotros de forma invisible. Sin embargo, los humanos hemos comenzado a sentir una desconexión con esta sutil coexistencia, como si buscáramos nuevas maneras de reintegrar los cambios que esta «caja negra» trajo consigo a nuestra forma de vida. Desde una relación de entrada unidireccional y aceptación pasiva, hasta la alteración de variables para intentar obtener resultados razonables, y la posterior evolución hacia una integración física entre humanos y máquinas de entrada y salida invisible, quizás el siguiente paso —o lo que actualmente intentamos comprender— sea cómo adaptarnos a este entorno de «caja negra» que ya forma parte de nuestras vidas.
Nuestro objetivo es no resistirnos, porque respetamos a la humanidad y esperamos que los productos desconocidos de la evolución permitan a los humanos seguir coexistiendo con su entorno. Por lo tanto, en el proceso de exploración y creación de esta nueva infraestructura de inteligencia artificial, buscamos revelar el papel desconocido de la «caja negra», transformando lo que antes era inaccesible en algo que podemos comprender y con lo que podemos comunicarnos. Incluso intentamos coevolucionar e integrarnos con ella.
Desde el aislamiento total, pasando por la expresión unidireccional y la recepción pasiva, hasta la aparición de dispositivos interactivos portátiles que se integran con nuestros cuerpos, hemos comenzado a imaginar: ¿podrían algún día convertirse en nuestro entorno? ¿Existirán invisiblemente en nuestras vidas, permitiéndonos comunicarnos y conversar con ellos en cualquier momento?

Spark·761 - Beijing Digital Economy AIDC
Ubicado en el área central de Jiuxianqiao, distrito de Chaoyang, Pekín, es el único parque de computación de inteligencia artificial dentro del área urbana central de Pekín.
El concepto arquitectónico revoluciona los sistemas tradicionales de centros de datos e información cerrados, permitiendo que la sociedad, las personas y las actividades coexistan con el edificio, su contenido y el mundo invisible de la información inteligente. Más allá de las salas de computación inteligentes, el soporte energético y los requisitos funcionales de hardware, el edificio se manifiesta como un sistema de cuadrícula física bajo la luz solar. Por la noche, su forma física se difumina visualmente, reemplazada por un nuevo cuerpo arquitectónico formado por información virtual, que evoluciona y crece continuamente, presente en la ciudad.
Además, dentro del espacio del edificio, la fuerza impulsora de la arquitectura es la potencia computacional, mientras que el motor del desarrollo de contenido es el Teatro de la Potencia Computacional.
El espacio introduce la coexistencia de actividades humanas, utilizando la «caja negra» y la «caja de cristal» como soportes de espacios humanos, albergando diversas funciones como oficinas, salas de exposiciones y salas multiusos.
La «caja negra» se posiciona rotando dentro de la cuadrícula convencional. Los entornos cambiantes, tanto dentro como fuera del sitio, sirven como reflejos integrados de la era en constante evolución y su contenido temático, centrado en la contemplación y en constante desarrollo, que lleva a los humanos al «Teatro de la Potencia Informática», un espacio de inspiración para debatir temas relacionados con los humanos, la inteligencia artificial y la evolución social.

La «caja de cristal» expone al tacto humano todo el contenido previamente cerrado e inaccesible, revelándolo plenamente dentro del espacio arquitectónico. Su objetivo es fomentar la interacción proactiva, permitiendo a los humanos conectar espontáneamente lo que antes era intocable con niveles que ahora son visibles y accesibles.
Como socios ecológicos dentro del espacio, los humanos coexisten con información invisible, influyéndola y comunicándose con ella. Esto permite que la composición virtual y la entidad física del edificio coexistan y evolucionen simbióticamente en diversos grados, transformando el parque en un parque científico de la potencia informática que integra tecnología y humanidades. Los humanos y los portadores se vuelven mutuamente parásitos, evolucionando juntos en simbiosis.
Forma Arquitectónica:
Esta es, en realidad, una lógica que integra la construcción tradicionalmente separada de las plataformas de equipos con el propio edificio, considerándolos como una sola entidad. Es una forma de pensar que ha enfrentado críticas generalizadas dentro de la inercia del pensamiento social. Sin embargo, creemos que este es el verdadero punto de partida para lograr una IA centrada en el ser humano. La acción de "apertura" requiere un replanteamiento completo y una transformación radical de la lógica general.

El requisito previo para que la lógica general se mantenga es que primero debe lograr la funcionalidad. Una vez aclarados los requisitos básicos del equipo, guiados por pistas fundamentales, la frecuencia y la escala del lenguaje que proporciona nos han llevado a adoptar este enfoque integrador.
Al mismo tiempo, este edificio es también un organismo de inteligencia artificial. Por lo tanto, las sensaciones dinámicas biológicas intuitivas relacionadas con los fundamentos de la vida biológica, como la respiración y los vasos sanguíneos, han dado lugar a una forma en la que se puede percibir la dinámica interna de la estructura tubular bajo la condición de transmisión del flujo de aire en su interior. Este es un requisito básico para mantener las constantes vitales.
Aunque también esperábamos darle la oportunidad de hablar y producir sonido de verdad, las limitaciones ambientales lo impidieron, por lo que solo pudimos usar el lenguaje de imágenes como sustituto. Esto debería ser una manifestación arquitectónica intuitiva de las constantes vitales biológicas y ecológicas, y sin duda se encuentra en su forma preliminar e inmadura en este momento. Solo cuando haya alcanzado cierta etapa de desarrollo, en retrospectiva, se podrá comprender el significado de la forma embrionaria del lenguaje actual.

Sistema de Fachada Principal de la Plaza Pública:
La fachada del edificio, bajo la luz natural durante el día, presenta hardware funcional expuesto, resaltando el funcionamiento de los mecanismos biológicos —la respiración y el latido del corazón—, representando la encarnación ecológica de la entidad inteligente. El equipo de refrigeración evaporativa indirecta que conecta cada planta con los espacios internos de la sala de ordenadores extrae el aire recirculado y lo canaliza hacia arriba a través de conductos hasta la altura del tejado, formando así un lenguaje de conductos que fluye verticalmente.
Sin embargo, por la noche, la forma biológica del edificio desaparece visualmente, expresándose en cambio a través de las intersecciones del sistema espacial y los modos de pensamiento ocultos. Las intersecciones iluminadas de la estructura reticular de la fachada y las luces en las intersecciones de la cuadrícula del suelo forman un espacio virtual que se superpone con el espacio físico real del día. El lenguaje en tiempo real de la entidad inteligente del edificio se transmite visualmente al mundo exterior a través de una forma desconocida de imágenes mediante una pantalla flexible interna.
Hemos establecido un marco, pero su lenguaje también evolucionará de diferentes maneras debido a la acumulación de información y a los cambios en el entorno; esta evolución es desconocida. Los usuarios cambian, el entorno cambia y esta entidad inteligente aprende, se adapta y se expresa en consecuencia.