El proyecto de Pablo Millán arquitectos ha supuesto una compleja intervención dadas las condiciones del terreno. Dada la situación de la cisterna, a casi nueve metros de profundidad con respecto al nivel de la ciudad actual, fue necesario levantar un edificio que hiciese la función de centro de recepción de visitantes e integrara, a su vez, la rampa de bajada.
Para conectar todos los espacios sin afectar a las viviendas que actualmente existen sobre el conjunto romano, se creó también un puente en la carretera y un túnel bajo las viviendas para acceder a toda la arquitectura romana que se encuentra bajo rasante (además de la cisterna, una calle romana, casas con muros de más de tres metros de alzado, un horno de pan y un atrio, entre otros restos incorporados al proyecto).
El nuevo edificio se sitúa en una ladera del borde urbano de Porcuna, frente a un mar de campos de olivos. El espacio aloja, como principal protagonista del descenso y ascenso desde la luz exterior a la oscuridad de la cisterna, una pasarela suspendida que facilita «un viaje a través de los siglos que culmina en el peristilo que le dio la bienvenida».

Puesta en valor de la Cisterna romana de «La Calderona» por Pablo Millán. Fotografía por Javier Callejas Sevilla.

Puesta en valor de la Cisterna romana de «La Calderona» por Pablo Millán. Fotografía por Javier Callejas Sevilla.
Descripción del proyecto por Pablo Millán
Ubicada sobre la ciudad romana de Obulco, la cisterna de La Calderona de Porcuna (declarada Bien de Interés Cultural en 2014) es un depósito de agua que, dada su tipología, se presupone vinculado a una infraestructura hídrica del municipium, posiblemente unas termas públicas. El crecimiento de la población y la necesidad de expandir los límites de la urbe hicieron que, en la misma época del Imperio, los habitantes de la que llegó a ser la ciudad amurallada más extensa de la España romana cubriesen la zona con grandes pilares de piedra sobre los que se asentaron nuevas construcciones. El paso de los siglos y el devenir de la historia fueron añadiendo sucesivas capas que contribuyeron a que la edificación preexistente quedase definitivamente sepultada, tanto en el aspecto físico como en el de la memoria.
Fruto del desconocimiento, en época moderna se identificaba en este entorno lo que se pensaba que era, simplemente, un depósito de agua que surtía a numerosos pozos de las casas del barrio de San Benito. Fue durante la guerra civil española en el siglo XX cuando, de manera fortuita, se produjo un hallazgo que puso a los expertos sobre la pista de la infraestructura original. Al bajar al subsuelo para protegerse de los bombardeos de la aviación, los vecinos observaron que los pozos que tenían en sus casas formaban parte de una estructura diferente y más compleja. A raíz de este descubrimiento, diferentes expertos quisieron indagar y estudiar el monumento sin poder llevar a cabo con propiedad su investigación debida, entre otras causas, a las condiciones de acceso al espacio, ubicado aproximadamente a nueve metros bajo la cota de las viviendas.
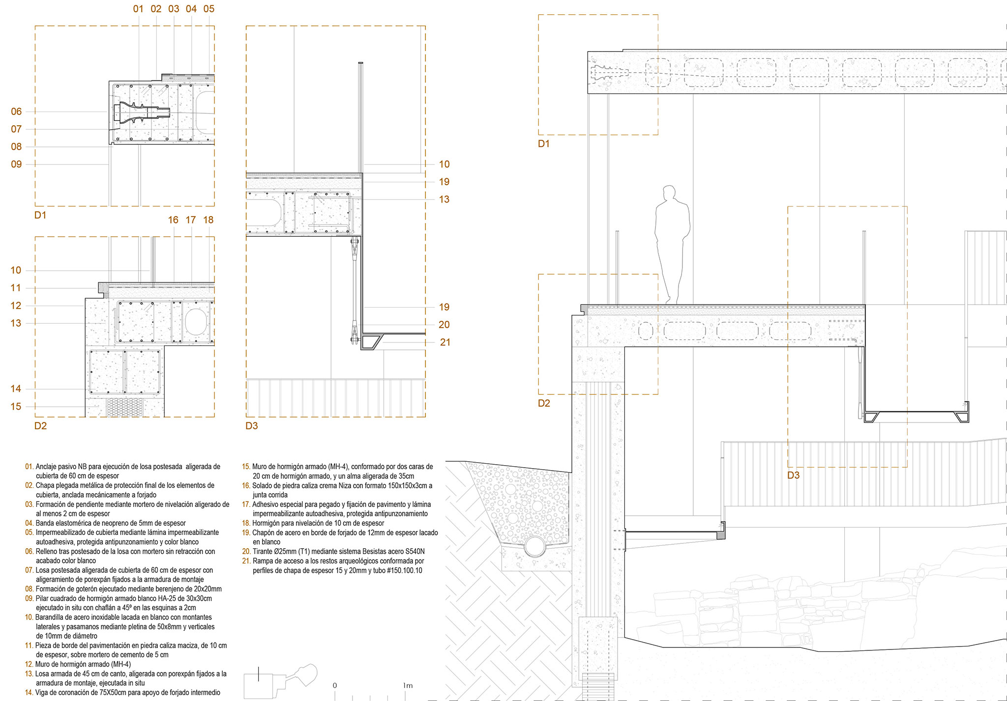
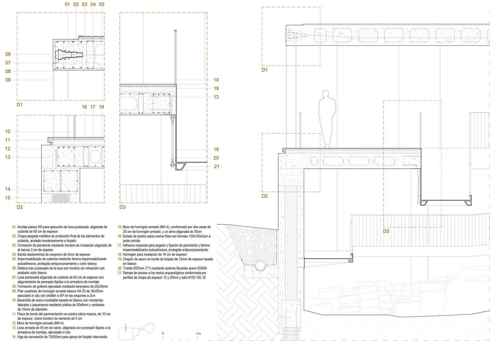
El proyecto de restauración y apertura al público requirió de una compleja intervención atendiendo a las circunstancias del territorio. En primer lugar, para acceder a la cota de la cisterna resultaba imperativo levantar un edificio de nueva planta, que sirviera como centro de recepción de visitantes e integrara a su vez la rampa de bajada. Para ubicarlo aprovechamos un área vacía, situada en uno de los márgenes de la carretera más cercana, de forma que no se vieran afectadas las casas emplazadas sobre el conjunto romano. De esta forma, la búsqueda de un acceso a la cisterna acabó generando como añadidos una nueva construcción, un puente en la carreta y un túnel bajo las viviendas.
Este trabajo se ha generado entre dicotomías. Por un lado, tenemos la arquitectura patrimonial, presente tanto en la cisterna romana como en todas las edificaciones domésticas aparecidas durante la intervención arqueológica y también en la nueva construcción que acoge todo el programa. Por otro lado, nos confrontamos con una arquitectura bajo rasante, cerrada, oculta, en la que no entra la luz y, frente a ella, planteamos un nuevo espacio abierto, claro, diáfano. Establecemos así un diálogo entre una arquitectura casi excavada, a modo de cueva, y una nueva construcción que debe contener un planteamiento estereotómico, moviéndose entre la cabaña y un espacio mínimamente construido. Se trata, en definitiva, de un proyecto basado en la interrelación de realidades opuestas y que, frente a la complejidad, propone un discurso sustentado en la sencillez de una arquitectura limpia, geométricamente precisa que no entre en conflicto con la arquitectura heredada.
El terreno en el que se desarrolla el proyecto se ubica en el borde urbano del municipio, en una ladera de lo que fue el epicentro de la antigua ciudad romana. Allí, el nuevo edificio se abre hacia la pendiente, conformando un espacio que, al mismo tiempo, ofrece una lectura clara con respecto al contexto en el que se inserta y sirve de referencia icónica del propio monumento de la cisterna, registrado en el nivel inferior. La construcción se cierra a las arquitecturas domésticas de la zona que, de forma irregular, han conformado un ámbito desprovisto del sentido patrimonial inherente a la arquitectura del subsuelo. Así, con una estructura clara, se configura un espacio para la luz como paso previo antes de acceder al mundo patrimonial de las sombras.
En el sentido inverso, el retorno a la superficie se propone como una dinámica en clave de ascenso permanente, desde la oscuridad del interior de la cisterna hacia el claro exterior. A través de la pasarela suspendida, el visitante transita por un espacio diáfano que no toca las ruinas; puede observar y recorrer una parte de la ciudad romana sin alterarla; y, sin ser quizá consciente, en este deambular actualiza la alegoría platónica de la caverna, alcanzando el conocimiento (en este caso, la comprensión de parte de la historia de una tierra milenaria) después de un viaje a través de los siglos que culmina en el peristilo que le dio la bienvenida.