Una casa con forma invertida que hace cambiar el paisaje al que estamos acostumbrados.

La Casa Manhwaricano diseñada por Rieuldorang Atelier, la firma de Busan liderada por Kim Seongyoul, se sitúa a menos de una hora de Ulsan, un lugar donde los migrantes han estado viviendo cada vez más en estas zonas rurales. Una casa que invierte la forma normal, la forma típica y convierte lo ordinario en extraordinario.
 

Descripción del proyecto por Rieuldorang Atelier

Está a 30 minutos de Ulsan y hay muchas personas que emigran para disfrutar de la vida rural en estos días. La mayoría de los migrantes aquí compran parcelas que han desarrollado montañas y campos para uso residencial. El lugar encargado fue una de estas casas. Tres casas de tipo americano ya estaban aquí. Colocar diferentes tipos de edificios donde las mismas formas están una al lado de la otra crea un paisaje incómodo en términos de localidad y contexto. Pero cuando el paisaje inconveniente forma todo el paisaje, nos acostumbramos.

En un momento en Corea, el libro "botong-ui jonjae" (Ser normal) fue un best seller. La belleza que se encuentra en la vida ordinaria es el tema. La aparición de este punto de vista es un fenómeno natural en Corea, que ha logrado un rápido crecimiento en un corto período de tiempo. A través de este libro, el público reflexiona sobre el pasado que vivió sin la preciosidad de la mediocridad, y se sintió reconfortado por la situación en la que se hizo más difícil vivir que antes.

Para descubrir la belleza de las cosas ordinarias, es necesario tener una sensibilidad poética para mirar hacia atrás en las cosas ordinarias desde un punto de vista diferente. Empecé a diseñar con la pregunta de cómo la arquitectura puede entrar en el mundo de las emociones.

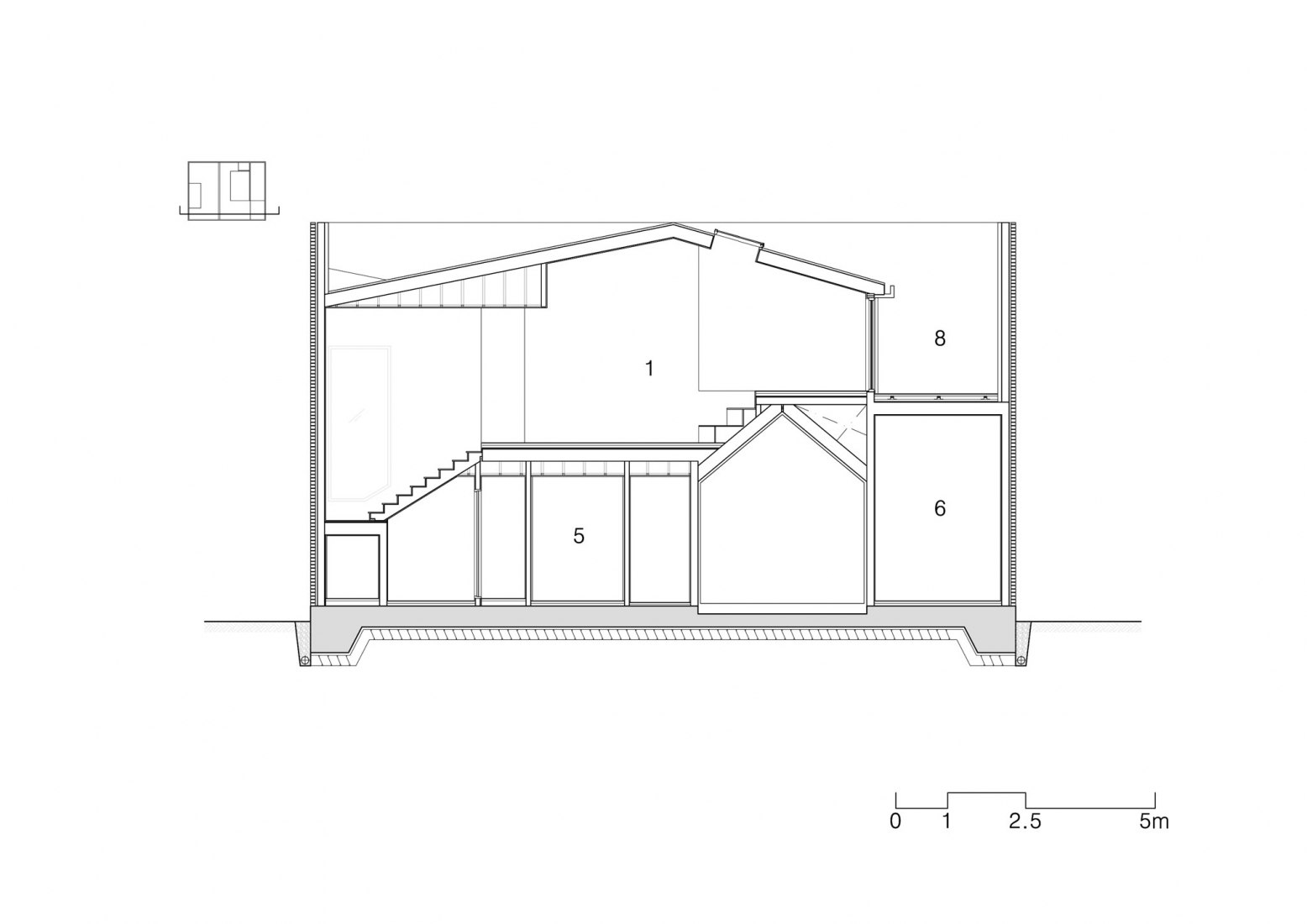
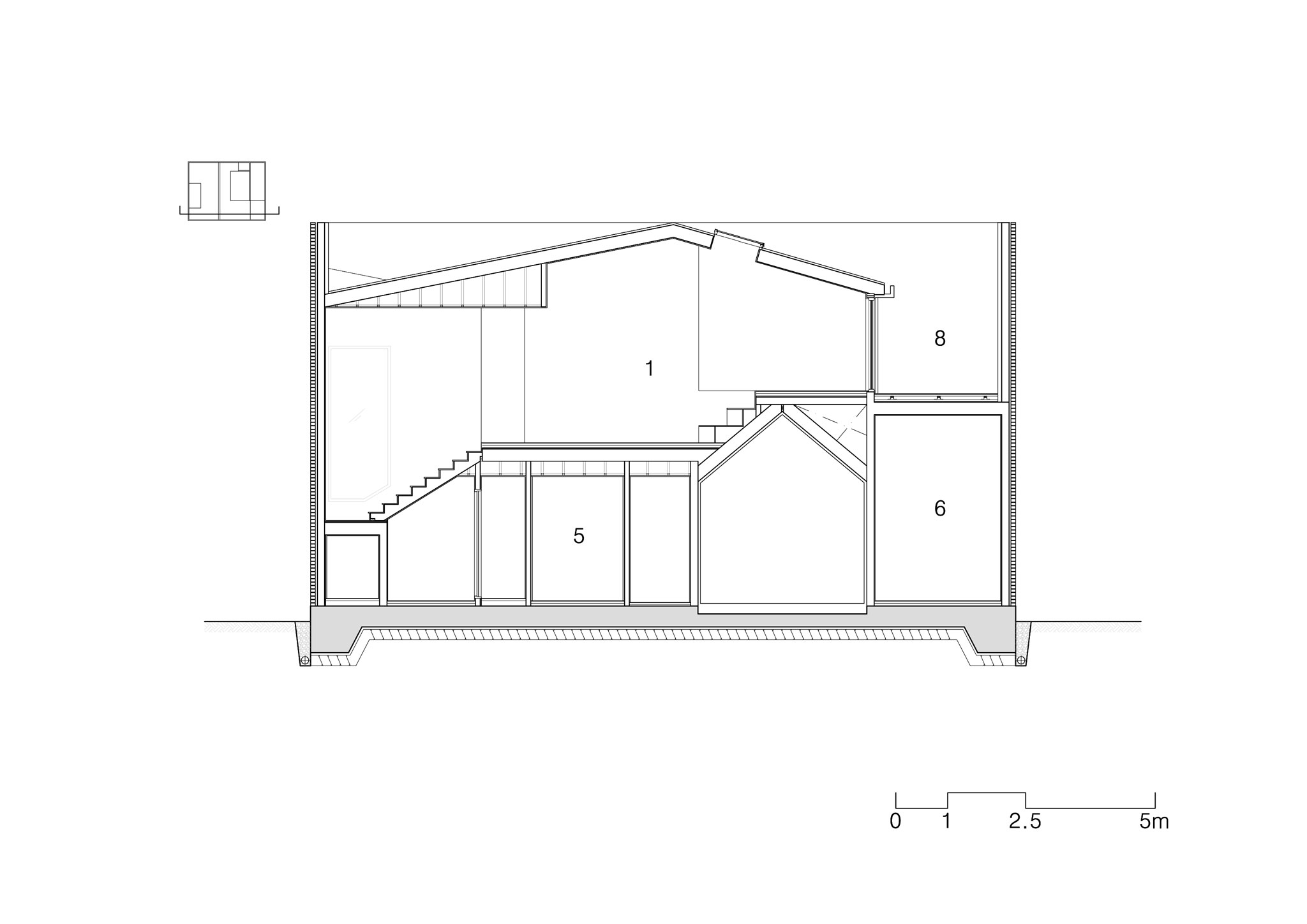
Una paradoja de forma normal

El sitio del proyecto es sencillo y las casas circundantes están en varias formas. Desde un punto de vista diferente, existía la variedad habitual. Pensé que la forma paradójica de revertir la gramática existente sería efectiva para sentir emociones especiales en el escenario ordinario. Específicamente, la forma general está invertida. Es una forma de vaciar la forma del techo a dos aguas en forma de caja cuadrada. En otras palabras, invierte la forma normal y tiene la intención de preguntar qué es lo normal.

El espacio desocupado en forma de hastial se convierte en una de las secuencias que entran a la casa. Y que brille la luz del sol indirectamente. El espacio desocupado en forma de espacios cambia con el tiempo y la sensación de espacio también cambia. El espacio desocupado de la forma normal cambia con el tiempo debido a la luz solar indirecta y crea un punto en el que la normalidad se convierte en especialidad.

El más importante de los requisitos del cliente era el espacio debajo de los aleros. En las viviendas suburbanas, los aleros juegan un papel muy importante. Muchas cosas que no puedes hacer en un departamento son posibles debajo del alero. Es un lugar donde puedes hacer varias actividades sin ser influenciado por el clima. Me conmovió el afecto de su esposo por su familia y quise presentar una sensibilidad especial para su familia. Se esperaba que sería algo precioso que se encuentra en la vida cotidiana. Las rutinas diarias se repetirán y el paisaje de la aldea siempre será el mismo. Cuando estas familias se acostumbraron a la vida aquí, esperan que ocasionalmente reciban obsequios especiales que cambian con el tiempo en el espacio ordinario.

Leer más
Contraer

Más información

Label
Arquitectos
Text
Atelier Rieuldorang. Arquitectos principales.- Kim Seongyoul
+ + copy Created with Sketch.
- + copy Created with Sketch.
Label
Colaboradores
Text
Lee hansae
+ + copy Created with Sketch.
- + copy Created with Sketch.
Label
Localización
Text
Manhwa-ri, Dudong-myeon, Ulju-gun Ulsan, Corea del Sur
+ + copy Created with Sketch.
- + copy Created with Sketch.
Label
Año finalización
Text
2017
+ + copy Created with Sketch.
- + copy Created with Sketch.
Label
Área bruta construida
Text
144,25 m²
+ + copy Created with Sketch.
- + copy Created with Sketch.
Rieuldorang Atelier está comprometido con la arquitectura creativa, su fundador es Kim Seongyoul. La arquitectura creativa comienza con una nueva perspectiva que va más allá de las ideas tradicionales. Una nueva perspectiva abre una visión del mundo única.

Rieuldorang Atelier intenta expresar nuestras cosmovisiones únicas en un lenguaje simple. Porque creen en el poder del lenguaje simple.
Leer más
Publicado en: 4 de Julio de 2018
Cita:
metalocus, VANESA DEL OLMO
"Una casa fuera de lo común. Casa Manhwarican por Rieuldorang Atelier" METALOCUS. Accedido el
<http://www.metalocus.es/es/noticias/una-casa-fuera-de-lo-comun-casa-manhwarican-por-rieuldorang-atelier> ISSN 1139-6415
Loading content ...
Loading content ...
Loading content ...
Loading content ...
Loading content ...
Loading content ...
Loading content ...
Loading content ...
Loading content ...
Loading content ...
Loading content ...
Loading content ...
Loading content ...
Loading content ...
Loading content ...
Loading content ...
Loading content ...
Loading content ...
Loading content ...
Loading content ...
Loading content ...
Loading content ...
Loading content ...
Loading content ...
Loading content ...
Loading content ...
Loading content ...
Loading content ...
Loading content ...
Loading content ...
Loading content ...
Loading content ...
Loading content ...
Loading content ...
Loading content ...
Loading content ...
Loading content ...
Loading content ...
Loading content ...
Loading content ...
Loading content ...
Loading content ...
Loading content ...
Loading content ...
Loading content ...
Loading content ...
Loading content ...
Loading content ...
Loading content ...
Loading content ...
Loading content ...
Loading content ...
Loading content ...
Loading content ...