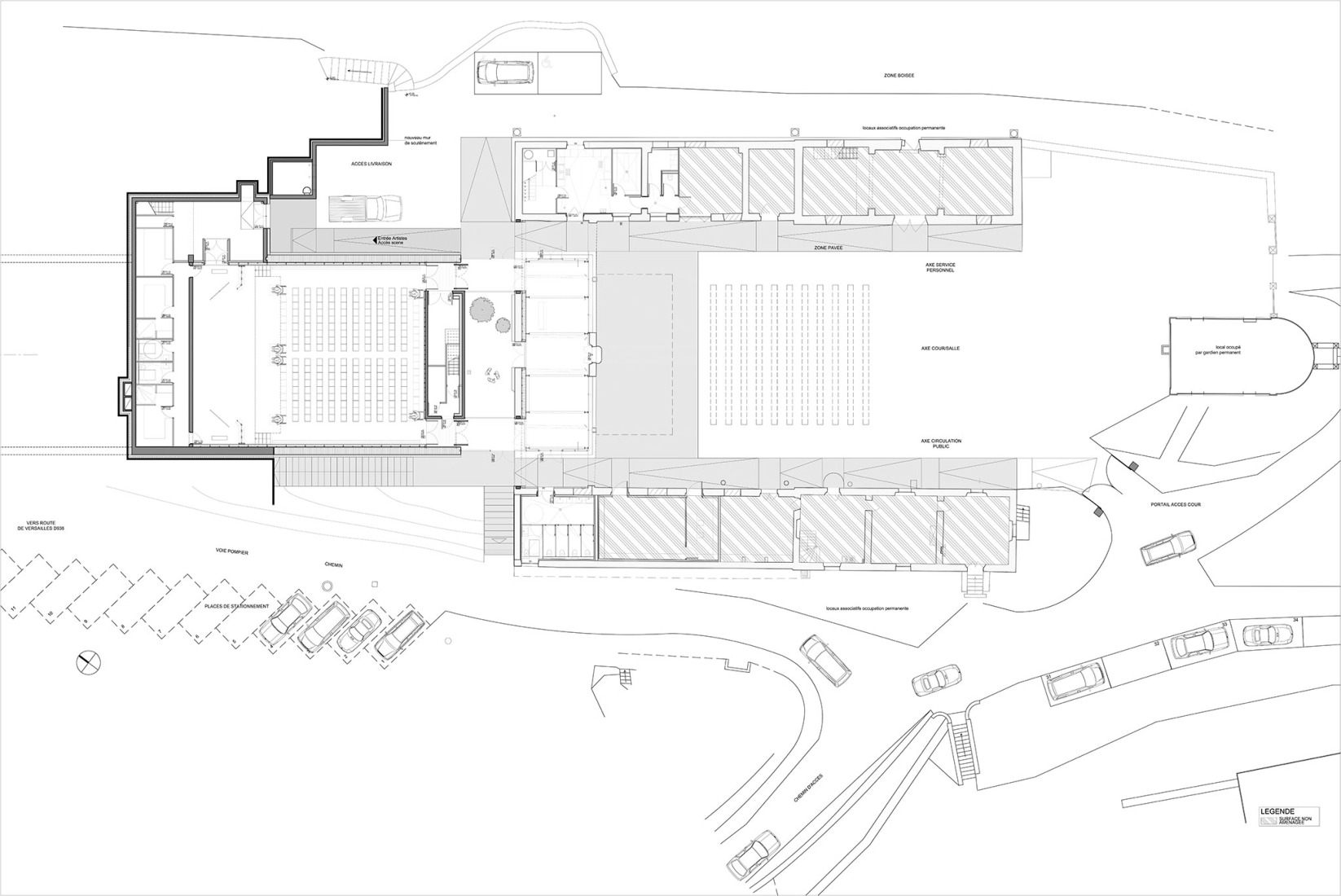
Berellini Architecte has opted for discretion as the fundamental premise of the project. The building is integrated into the slope of the land and seamlessly blends with the surroundings thanks to a green roof. The multipurpose hall is situated in a clearing behind the castle, which comprises three buildings arranged in a U-shape around a courtyard and a wooded area that provides shelter along the perimeter.
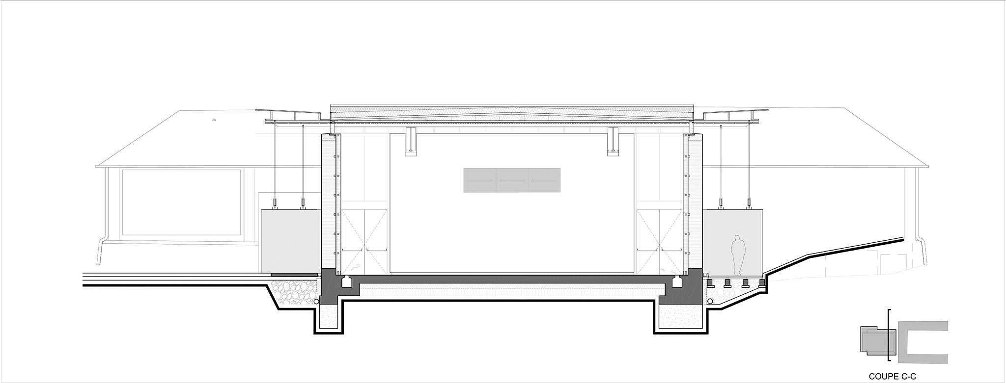
The walls, constructed using rammed earth, were built with the site's own compacted soil, worked in layers to preserve its color and texture. These walls are clad on their interior face with a layer of hemp-based biocomposite concrete, fixed to the rammed earth walls with wooden studs. These features optimize the building's thermal performance.

Multi-purpose hall in Châteaufort by Berellini Architecte. Photograph by Michel Denance.
Project description by Berellini Architecte
The new multi-purpose hall is associated with an important heritage site including a mill, achapel, an orangery, and other edifices positioned around the park. Situated just outside thetown, the site extends over an area of 5 hectares, in the middle of nature, next to theprotected natural reserve of the Merantaise Valley.
The service quarters of the château are comprised of three buildings arranged in a “U” shapearound a 600m² grand courtyard, oriented south. A protected wooded area surrounds thesite. The new extension stands to the north, in a clearing behind the building.
The project aim is discretion. It blends perfectly into the green surroundings. It exists inharmony alongside the service quarters of the château, which have their own charms. Thenew hall nestles into the slope of the terrain, discreetly covered by a green roof in continuitywith the clearing. It is positioned on the axis of the building, respecting its symmetry.
The longitudinal walls are designed and built with rammed earth, as if the side of the hill hadbeen cut away, exposing its entrails, and thereby the stratigraphy of its geological layers aswell. What material could have better integrated into the site than its own soil, worked intostrata, without altering its texture or colour?
The supporting rammed earth walls are lined on the inside with a 20cm-thick layer of pouredhempcrete, left exposed and affixed to the rammed earth walls with wooden studsembedded in the thickness of this lining.
During the design phase, all the architectural elements were carefully evaluated in order topush their thermal characteristics to their maximum capacities.