The proposal submitted by L35 Architects is envisioned as a new landmark for the city, combining the functionality of a sports facility with a careful consideration of Ostrava's industrial heritage and integrating organically into the landscape. The project, which proposes a material dialogue with the surrounding industrial architecture, makes the circulation elements the protagonists of the compositional language, resulting in a hexagonal network of walkways and exposed structures that defines the identity of the complex.
Conceived as an urban landmark that values the past and looks toward the future, the Nové Bazaly stadium seeks to establish itself as a space for social cohesion for all citizens, regenerating its immediate surroundings and improving the quality of public space.

Nové Bazaly Stadium by L35 Architects. Rendering by L35 Architects.
Project description by L35 Architects
A Design Connected to History and Landscape
The Nové Bazaly Stadium sits on the slope of an old basalt quarry, on the site currently occupied by the former stadium, surrounded by a residential neighbourhood overlooking the city centre. These factors have been carefully considered when defining the volume, limiting the height of the building to match the residential scale and avoid blocking views from nearby homes. At the same time, the steep topography is used to project a large open façade towards the city, with a greater urban scale and the representativeness that an infrastructure of this kind deserves. As the jury stated: “It resembles a castle overlooking the territory from the top of the hill.”
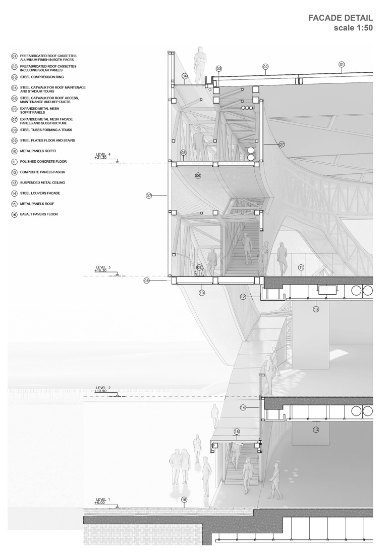
The integration and connection of the stadium with its surroundings is achieved by creating a hexagonal grid that structures the base and the façade through multiple circulation routes, linking the stadium across different levels. This hexagonal pattern takes shape by bringing ramps, staircases and landings to the exterior skin. Wrapped in a steel structure, the aim is to express the functional elements as a compositional feature, referencing the honesty of the region’s industrial architecture, where exposed walkways and steel structures form a characteristic landscape.
The intended image is that of a timeless architecture rooted in place, with a strong identity of its own while remaining fully integrated into its context. For this reason, inspiration has been drawn from the mining and industrial tradition that so strongly shapes the landscape and the character of Ostrava. In a setting where coal-washing plants, steelworks and blast furnaces define the dominant architectural references, the new stadium aligns with this imagery and is conceived as a modern reinterpretation of this industrial legacy, aiming to embody the new vision of the future that the city seeks to project.
“The winning design was chosen unanimously. It offers a simple and compact form, respects the strong identity of the place and integrates harmoniously into the landscape, becoming a new landmark for Ostrava in the service of football and its citizens".
Jan Dohnal, Mayor of Ostrava.
“Our proposal seeks to create a stadium deeply rooted in Ostrava’s identity, an architecture that emerges from its place, committed to its industrial past and reimagining the city’s future.”
Alejandro Lorca, partner architect at L35 Architects.
“Nové Bazaly has been conceived as an honest stadium that expresses a strong and unapologetic character, aligned with the spirit of Ostrava and FC Baník fans.”
Guillermo Gusó, project architect.
A Vibrant Space for the Entire City
Aligned with L35 Architects’ philosophy, the proposal aims to create a meeting place for the whole community, not only enhancing the uses of the stadium but regenerating its urban surroundings, maximising and improving public space.
Due to the steep slope of the plot, the ground is reorganised into different platforms connected by ramps and staircases that improve accessibility and evacuation. Each of these platforms functions as an access plaza to the stadium, serving as gathering points for fans and allowing for events and activities. A continuous elevated podium, acting as the central structural element for the stadium, separates flows and access points, improving the stadium’s functionality and accessibility. This frees up open public space and hides operational areas and parking beneath the surface.
Inside, with just 20,000 spectators, significant effort has been made to shape the architecture in a way that allows for a continuous bowl, ensuring an immersive experience with close views of the pitch. Circulation areas for the general public have been enhanced, and a diverse range of hospitality options has been created.
Beyond match days, the stadium will remain active, both through its capacity to host various events and through the club’s use of the facilities for offices and training areas. It will also feature a shop-museum and dining spaces open to the public.