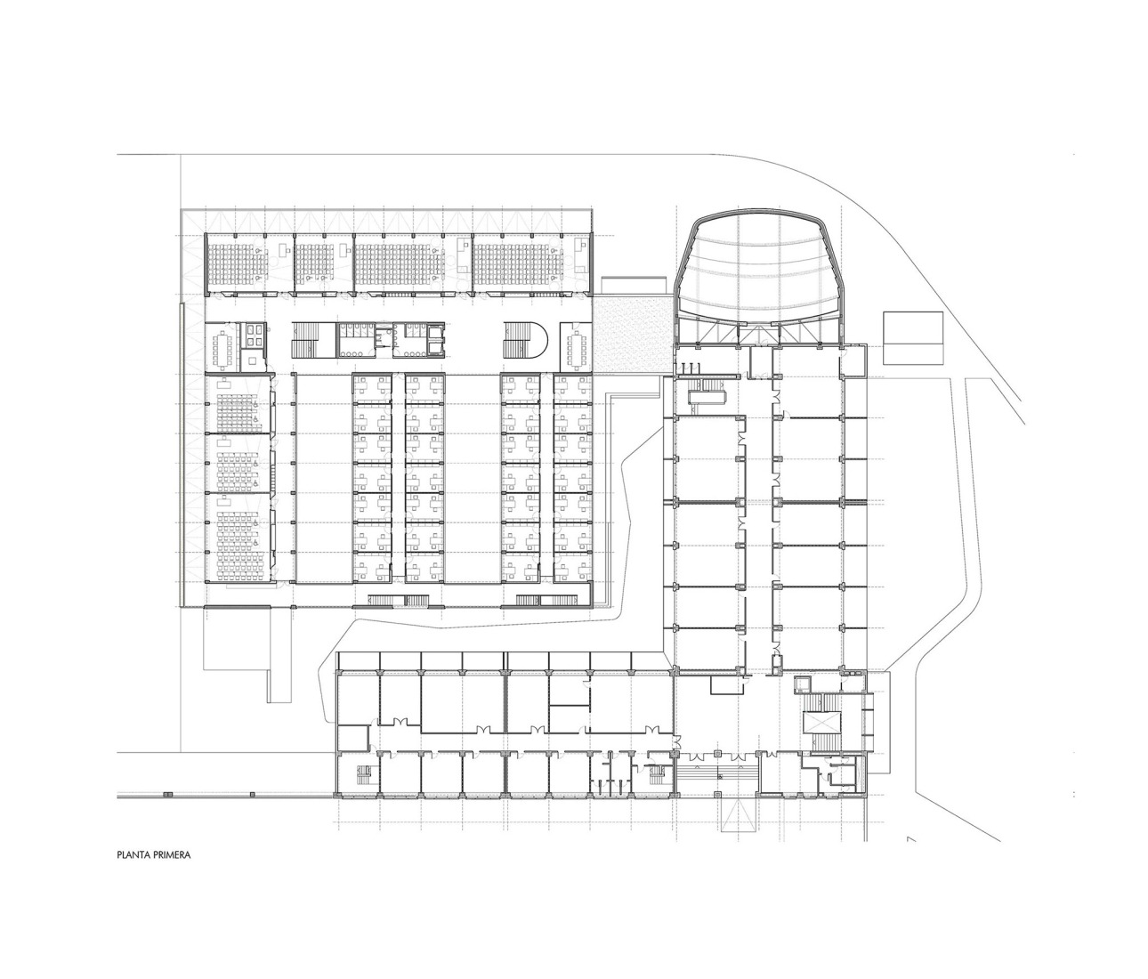
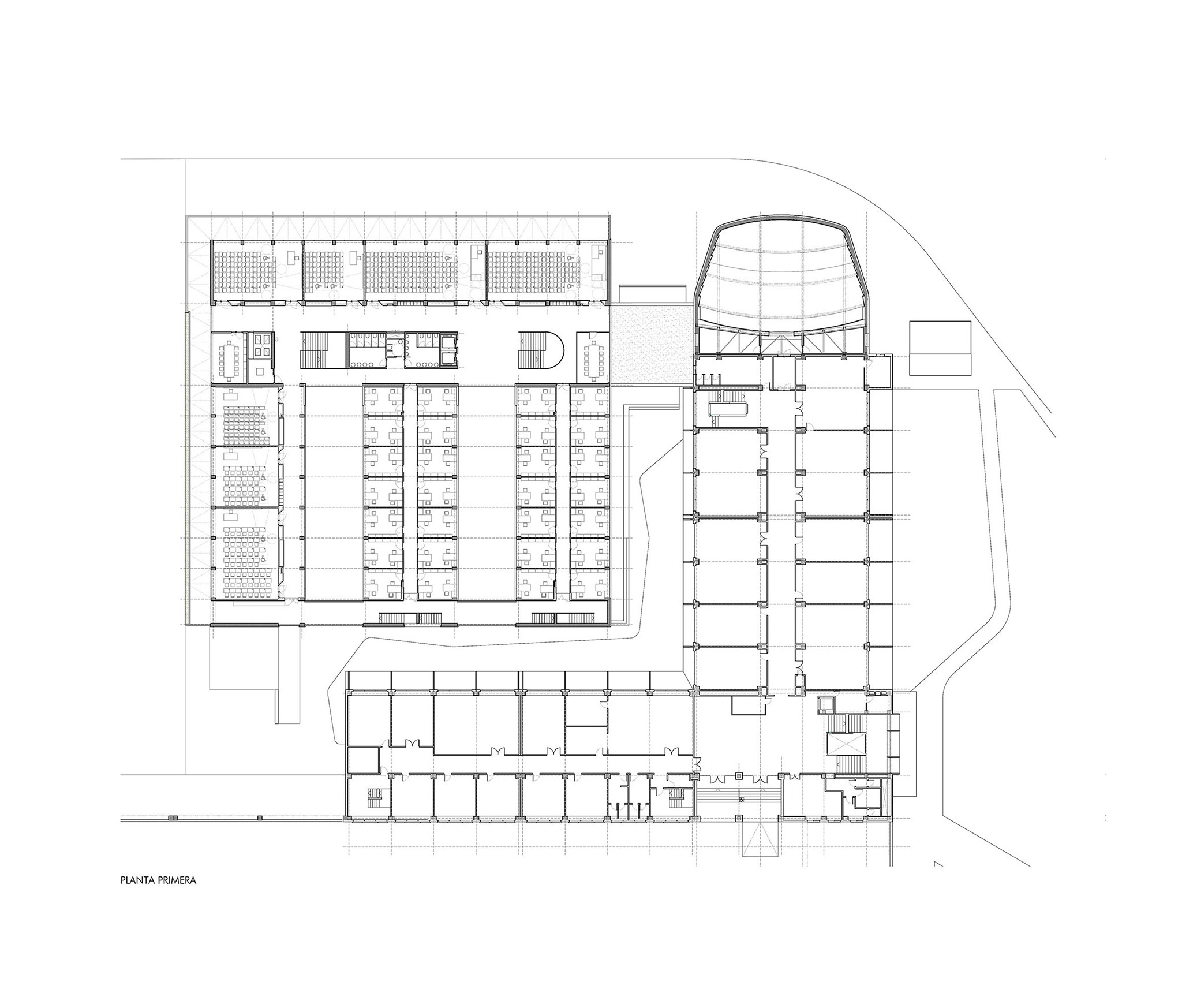
The expansion and renovation of the School of Agricultural Engineering, designed by Carbajal, comprises a building with exterior galleries distributed across three wings. It includes the construction of an auditorium at one end of the original building. The ground floor houses general services such as the administrative offices, study and meeting rooms, dining areas, and the library. These spaces are framed perpendicularly by a section containing the lobbies, circulation cores, graduation hall, administrative offices, and restrooms. The upper floors contain classrooms and departmental offices.
For the building's construction, a reinforced concrete structure with large spans and supports on the facades was chosen. Aluminum was used for the facade cladding, windows, and suspended ceilings. In addition to aluminum, terrazzo flooring was used for the interior floors, and MDF panels with a veneer and brushed and lacquered aluminum with a mineral core were used for the interior walls.

Expansion and renovation of the ETSIA of the Universidad de Sevilla by Estudio Carbajal. Photograph by Fernando Alda.
Project description by Estudio Carbajal
This project—the result of a public competition with a jury—addresses the expansion of the ETSIA (School of Agricultural Engineering) at the University of Seville as the first phase of a comprehensive project that also includes the renovation of the current building located south of the former Labor University campus. Along with the new building, it includes the construction of an auditorium that completes one end of the original building, which had to be demolished due to serious structural problems.
This three-story building is shorter than the OTAISA building. Located behind it to avoid altering the heritage value of the complex, it facilitates connections between the two, completing the ends of the original "L" shape. At the same time, where it meets the original building, it creates a series of courtyards that allow both to be understood as an interconnected whole.
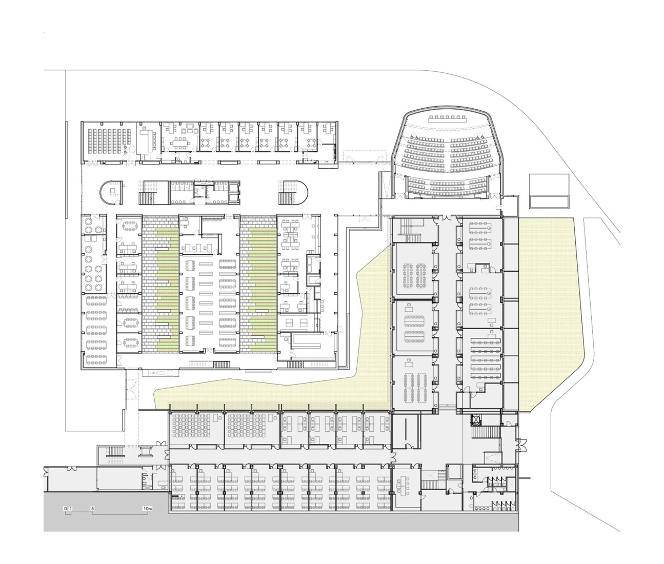
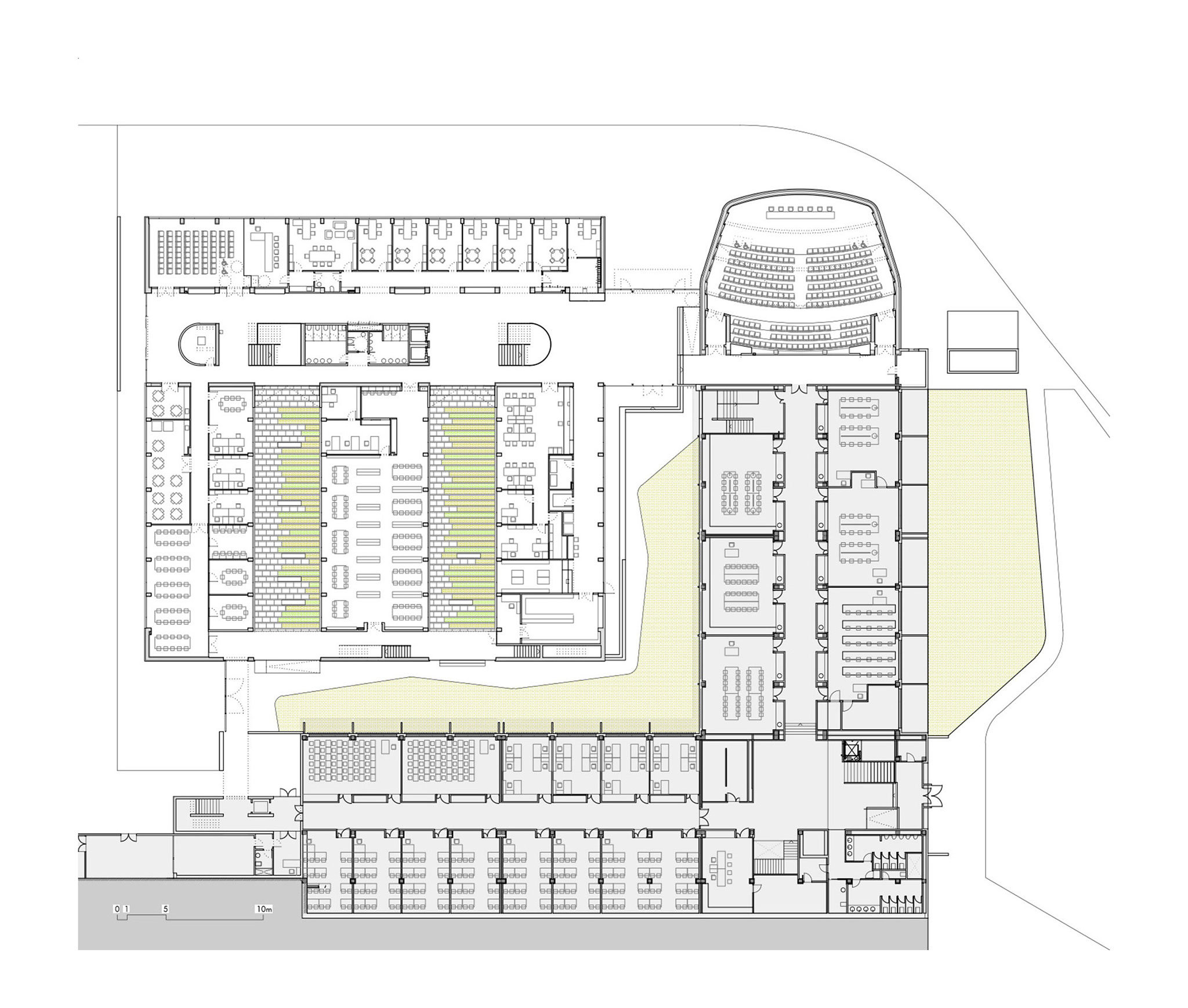
It consists of three wings oriented north-south, with the ground floor housing general services such as the administrative offices, study and meeting rooms, dining areas, and the library, which is presented as a glass-enclosed room between two of the landscaped courtyards. The upper floors contain classrooms and offices for the various departments. These wings connect to a perpendicular section that houses the lobbies and a central spine containing circulation cores, building services, and restrooms, as well as the administrative offices and lecture hall (on the ground floor) and classrooms arranged along the south facade (on the upper floors).
This lobby section extends onto the ground floor, creating a spacious entrance and connection area between the two buildings. This space appears transparent and open from the street, with the courtyard created at the junction of the buildings serving as a backdrop.
Of particular note is the addition of generous exterior galleries, designed as ample space for users to move around and facilitate evacuation. Their large overhangs also provide sun protection on the more exposed sides of the building.
Given the program requirements and the established phases, this layout allows for adequate communication between both buildings and their various services, proper lighting and ventilation in all areas, and easy and rapid evacuation in case of emergency. The courtyards and green roofs, as spaces for recreation and relaxation, will also contribute to the well-being of the university community and serve as open-air classrooms where students can put their agronomy studies into practice.
Regarding the construction solutions and materials used, the building features a reinforced concrete structure with large spans supported by the facades. This creates large, open floor plans that can be reconfigured over time without the need for columns. The vertical envelopes are multi-layered for high energy efficiency, and the roofs are green. Two fundamental materials are used: concrete—which has ecological certification—and aluminum (for windows, suspended ceilings, and facade cladding). Alongside them, terrazzo in interior flooring and microcement in exteriors, laminated plasterboard panels in different compositions in the partitions, veneered MDF boards and brushed and lacquered aluminum panels with mineral core in interior cladding and hot galvanized steel and stainless steel depending on the case in the metalwork.