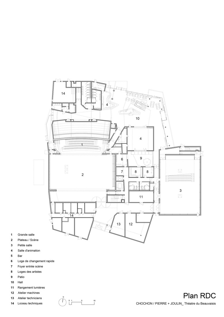
AJC Architectes propone una organización en la que el edificio gira el eje tradicional de escena y sala 90 grados para abrir el vestíbulo directamente hacia la ciudad, incorporando parte del espacio público como extensión natural del teatro. El programa incluye una gran sala con un graderío fijo, una sala menor con graderío móvil para danza o teatro experimental, un vestíbulo acristalado y una red articulada de camerinos, foyers de artistas y terrazas. Este sistema permite la flexibilidad de los usos, acogiendo tanto espectáculos como residencias o ensayos, con una vocación permeable y comunitaria.
Materialmente, el teatro está construido en hormigón blanco pigmentado con tonos similares a los de la piedra local, estableciendo una continuidad cromática con el entorno. Las fachadas se decoran con un patrón estructurado que reinterpreta el gótico flamígero de la iglesia de Saint-Étienne, generando una textura ondulante. El edificio combina estrategias pasivas, como una envolvente térmica y acústica de alto rendimiento, con tecnologías activas de bajo consumo, con climatización y calefacción 100 % geotérmicas.

Teatro Regional de Beauvaisis por AJC Architectes. Fotografía por Sergio Grazia.
Descripción del proyecto por AJC Architectes
El Teatro del Beauvaisis se distingue de los nuevos equipamientos culturales realizados con la sobriedad que imponen las exigencias de gestión. En Beauvais, el emplazamiento del proyecto hereda una profunda sedimentación histórica. El espacio se sitúa cerca del establecimiento de unos antiguos baños termales galo-romanos, no lejos de las orillas del río Thérain, y ha atravesado la historia hasta el final de la Segunda Guerra Mundial. Entre los escombros de la reconstrucción, renació una vida cultural popular. Primero se reutilizaron unos hangares como salón de fiestas, y en los años 70 se empezó a valorar la arquitectura de esos edificios.
Poco a poco, el salón de fiestas se transformó en sala de espectáculos, tratando de acoger lo mejor posible los eventos culturales con sus 450 butacas y su escasa altura bajo peine. Pero las limitaciones de esta infraestructura terminaron, temporada tras temporada, excluyendo a Beauvais del circuito de la vida cultural francesa, al no poder albergar más que de forma muy ocasional los espectáculos disponibles.
Por ello, las autoridades decidieron finalmente dotar a la ciudad de un auténtico teatro, y realizarlo precisamente en el mismo lugar, en continuidad con la historia. Pensar un proyecto en un lugar tres veces mayor que el existente exige una gran delicadeza en la apreciación justa de la relación con los edificios ya presentes.
El principal desafío es la percepción de un nuevo «intruso» volumétrico. Al pasar de 10 a 27 metros de altura, el Teatro adquiere de facto el estatus de un nuevo interlocutor urbano. El objetivo es mantener lo mejor posible el diálogo con los dos monumentos emblemáticos de Beauvais: la iglesia de Saint-Étienne, muy cercana, y la catedral de Saint-Pierre, algo más lejana.
Para asumir este reto, el Teatro fue concebido como una «deconstrucción» del objeto tipológico teatral, apostando por acentuar el desequilibrio volumétrico tradicionalmente asociado al “objeto teatro”. Para ello, se redujo al máximo la altura de la envolvente, suavizando así la relación con el entorno, al tiempo que se elevaba el volumen principal.
Así, el nuevo Teatro del Beauvaisis se alza hacia el cielo como una nave profana cuya singularidad propone una resonancia contemporánea con los dos prestigiosos edificios de siglos pasados. La expresión “nave profana” hace referencia deliberada a las basílicas romanas, cuya arquitectura evoca la reunión de ciudadanos congregados en un momento común.
Los urbanistas de la posguerra lograron realzar perfectamente la iglesia de Saint-Étienne. Propusieron una disposición espacial que favorece la alternancia entre lo próximo y lo lejano, generando un juego arquitectónico y urbano muy singular.
Esta organización arquitectónica podría inscribir este lugar dentro de la continuidad de los “clos” urbanos, como los que pueden encontrarse, por ejemplo, en Pisa (Italia) o en Orléans (Francia).
Ubicado a lo largo de la calle del 51º regimiento de infantería, el solar del nuevo Teatro de Beauvais, que se extiende de Este a Oeste bajo los árboles, era difícil de interpretar. La construcción del nuevo teatro fue la oportunidad para concluir de forma digna y suave el desarrollo de una idea urbana original y exitosa que se había iniciado durante la reconstrucción. El proyecto fue concebido considerando dos parámetros esenciales: la inserción y la orientación.
La implantación del nuevo Teatro permite reorganizar el espacio público de manera que la calle del 51º regimiento quede protegida de un «efecto trasero del teatro», que podría resultar perjudicial. El espacio gira en torno al teatro como el vacío del clos de Saint-Étienne envuelve la iglesia. Así, la realidad potencialmente monumental del teatro se asume tal como es, sin buscar camuflajes en primer plano más allá de los árboles. Gracias a la atención prestada a estos factores, nace un nuevo clos beauvaisino.
Girado 90 grados respecto al eje tradicional de “escenario-sala”, el vestíbulo del teatro se orienta decididamente hacia la ciudad. Se anexiona, de forma natural, una parte del espacio público del atrio urbano, que discurre bajo las copas de los árboles del aparcamiento, e invita a enlazar con la calle principal de la ciudad.
Desde el punto de vista arquitectónico, no es más que la acción de contener un vacío “bajo campana” acristalada. Las taquillas, el bar, el foyer, la escalera, se combinan para ofrecer al teatro —a pesar de su economía limitada— los atributos monumentales mínimos que su función exige.
El vaivén armonioso de la lámpara y las escaleras arrastra todo en un torbellino que conduce al espectador hasta la parte alta del foyer. Allí, el techo, especialmente bajo, guía la mirada hacia el cielo de Beauvais antes de penetrar en la penumbra de la sala. Las paredes acristaladas terminan de suavizar la presencia arquitectónica del edificio en relación con las casas vecinas.
Ya se acceda desde la parte inferior del vestíbulo, al pie del graderío, o desde la parte superior, en una caminata sobre la línea del horizonte de la ciudad, la gran sala se presenta como un espacio recogido, como si se sostuviera en el hueco de dos manos.
La gran unidad que se percibe se debe seguramente a la fuerza de un “bloque de graderío” continuo. Las butacas, dispuestas en líneas sin interrupción, se acceden únicamente por los pasillos laterales. El aspecto anguloso y cóncavo de las paredes laterales asegura, gracias a su geometría, una buena difusión de las primeras reflexiones sonoras esenciales para el carácter acústico de la sala.
Como bajorrelieves de madera, inspirados en los motivos alegremente vegetales de los tapices de Beauvais, los relieves esculpidos de la sala confieren a las paredes oscuras el aspecto de un sotobosque, o tal vez de la espesura que rodea un claro singular, bajo un cielo de “azul magrittiano” que anuncia una hermosa noche de verano.
¿Una sala “burguesa”? No, más bien un claro al atardecer
Se trata de una caja escénica rectangular, de proporciones «griegas», con una eficacia radical. Un graderío móvil de 200 plazas puede desplegarse en sentido longitudinal sobre un suelo escénico de madera, apto para danza. La composición de los acabados de las paredes da al conjunto una firma acústica seca, adecuada para ensayos, residencias artísticas y espectáculos contemporáneos.
La maquinaria escénica es de funcionamiento muy sencillo, manipulable «a mano», desde pasarelas que circundan completamente la parte superior de la sala. Esta flexibilidad de uso facilita las oportunidades y permeabilidades programáticas de la acción cultural del territorio del Beauvaisis.
El proyecto fue diseñado con una gran contención programática. Buscando la frugalidad en los dispositivos, los espacios del vestíbulo pueden parecer «pequeños», un tanto escasos de la monumentalidad que se espera en un teatro. Pero de esta disposición surgió rápidamente un efecto positivo. Desde las primeras funciones, este espacio asumió el rol de una casa, la casa de los amantes del teatro, cargada de intimidad.
Paralelamente, se desarrolló una pequeña red exterior de rincones y terrazas diversas para ampliar los espacios considerados demasiado estrechos. Las terrazas, o terraplenes, invitan al paseo y al encuentro antes de las funciones o durante el intermedio. El éxito de un teatro es también, y en gran medida, una cuestión de hospitalidad.
Un teatro del que se habla, es también un teatro del que se habla «en el circuito», un lugar querido, tanto por la amabilidad de sus equipos como porque los artistas se sienten como en casa durante su estancia. Los camerinos no son aquí espacios residuales, oscuros o subterráneos, con vistas deprimentes, como suele ocurrir.
Aquí todos los camerinos tienen algo especial:
- Vista al jardín contiguo, o en profundidad hacia el vestíbulo o las viviendas vecinas.
- Vista al bosque de la ladera de Saint Jean, con una terraza con vistas a la ciudad.
- Acceso directo al patio (relajación, contacto post-función con el público).
- Proximidad directa con los escenarios de la sala grande y la pequeña.
Los camerinos pueden también organizarse alrededor de un foyer para artistas que, en la primera planta sobre el patio, ofrece una magnífica vista sobre la ciudad y la iglesia de Saint-Étienne. Desde allí, es posible acceder “como buenos vecinos” a la gran terraza del atrio, espacio natural de extensión de eventos, encuentros inesperados o especiales.
El hormigón blanco empleado en el Teatro, teñido con matices de la piedra circundante, busca reforzar una coherencia con la materialidad urbana de Beauvais. El motivo estampado de las fachadas de hormigón se inspira en el estilo flamígero de la iglesia adyacente. Retoma, en clave contemporánea, el movimiento ondulante y sinuoso de las nervaduras de ojiva que caracterizan su arquitectura. Uniendo ingeniería pasiva y tecnologías activas de vanguardia, el Teatro de Beauvais destaca por su ejemplaridad ambiental.
Un edificio sobrio por concepción
Pensado para conjugar exigencia artística y responsabilidad energética, el teatro consume un 25 % menos de energía que los estándares habituales para este tipo de equipamiento, a pesar de las elevadas exigencias técnicas ligadas a la acogida de espectáculos.
Calefacción y climatización 100 % geotérmicas
La totalidad de las necesidades térmicas se cubre mediante bombas de calor de muy alto rendimiento, alimentadas por el acuífero subterráneo. Este sistema geotérmico representa por sí solo alrededor del 17 % del consumo energético total.
Una envolvente altamente eficiente
Muros y cubiertas ofrecen un aislamiento térmico y acústico dos veces superior a las normas vigentes. La acústica, de calidad notable, contribuye tanto al confort auditivo como a la reducción de pérdidas energéticas.