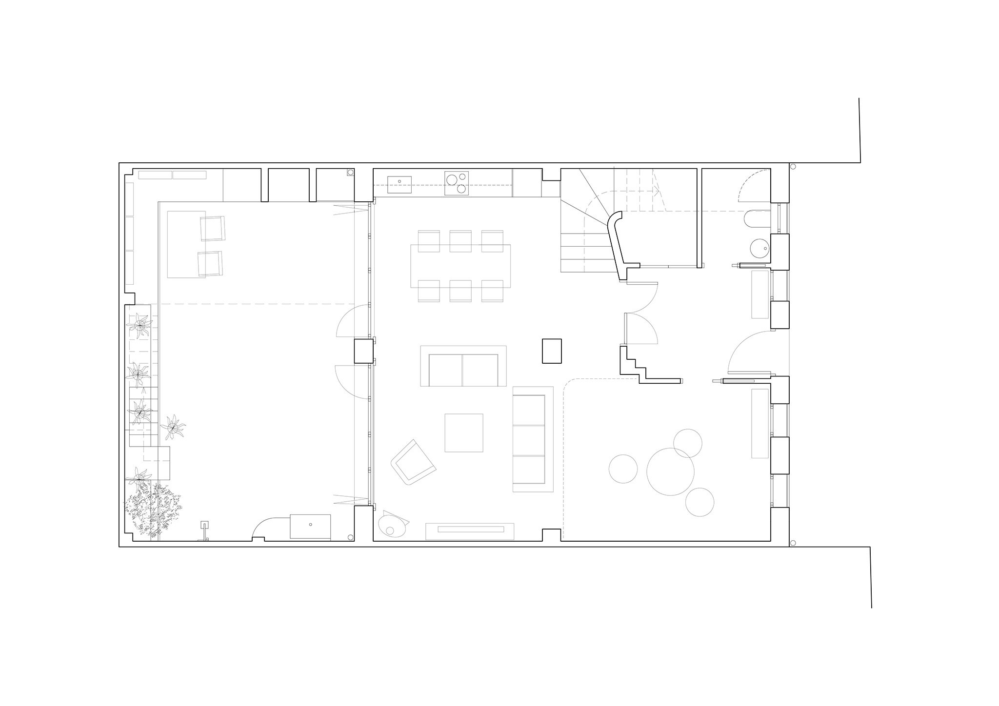
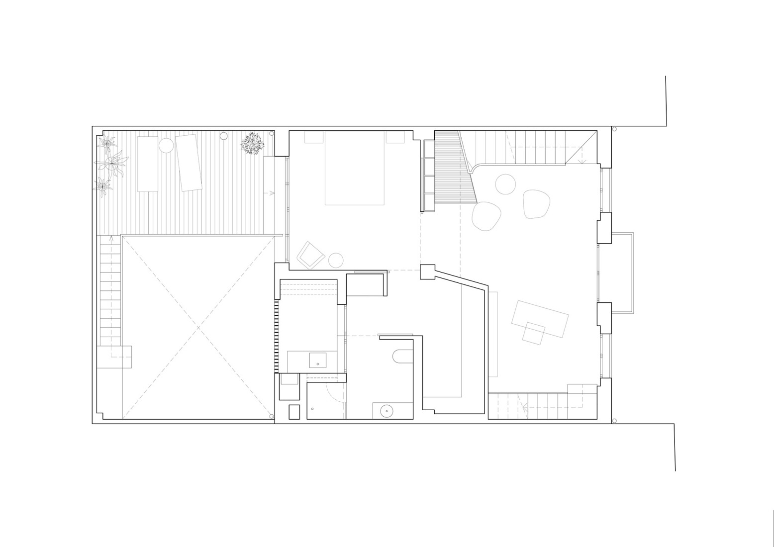
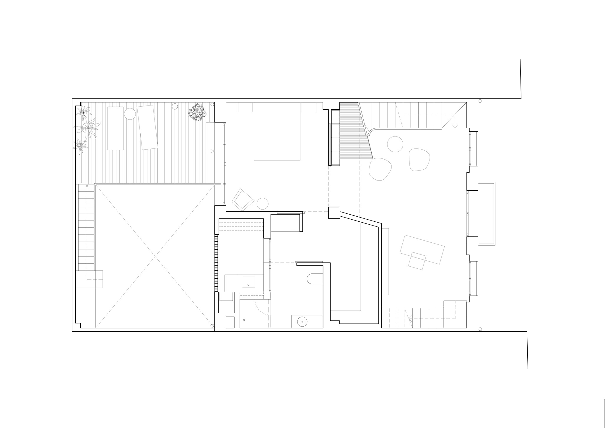
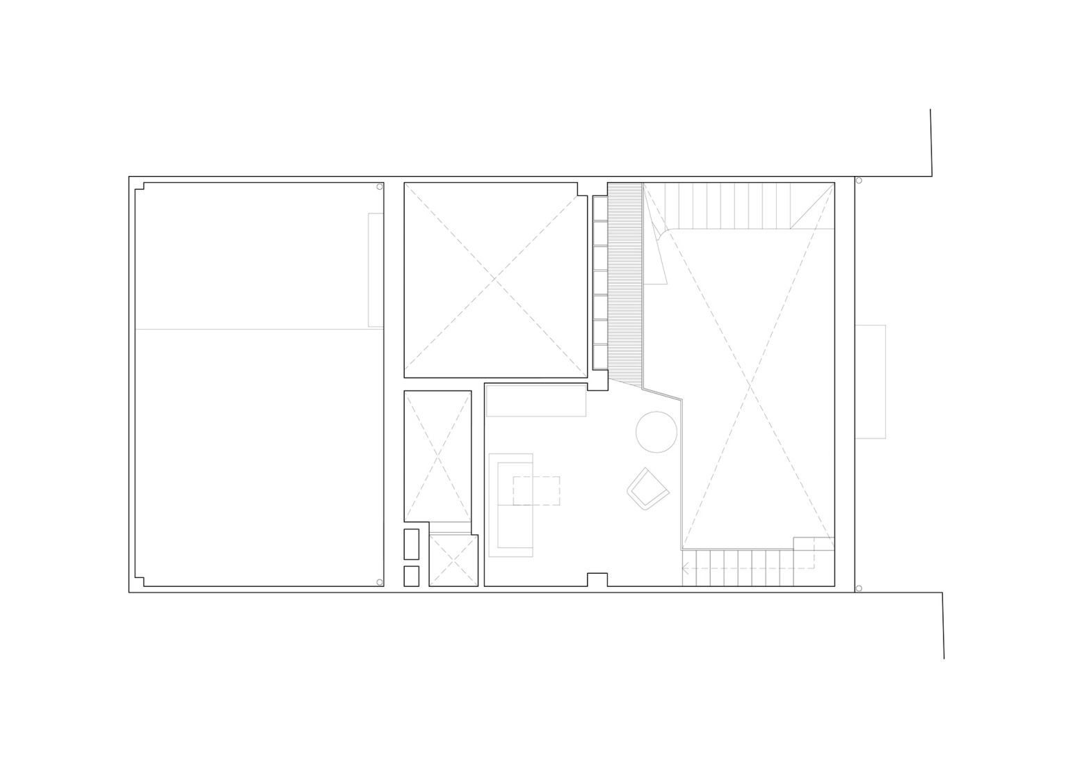
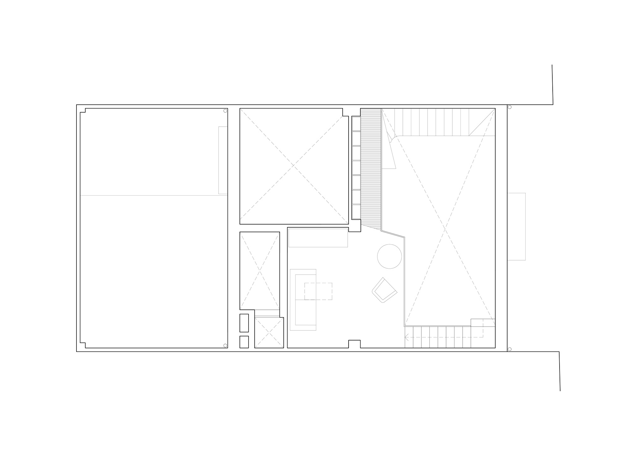
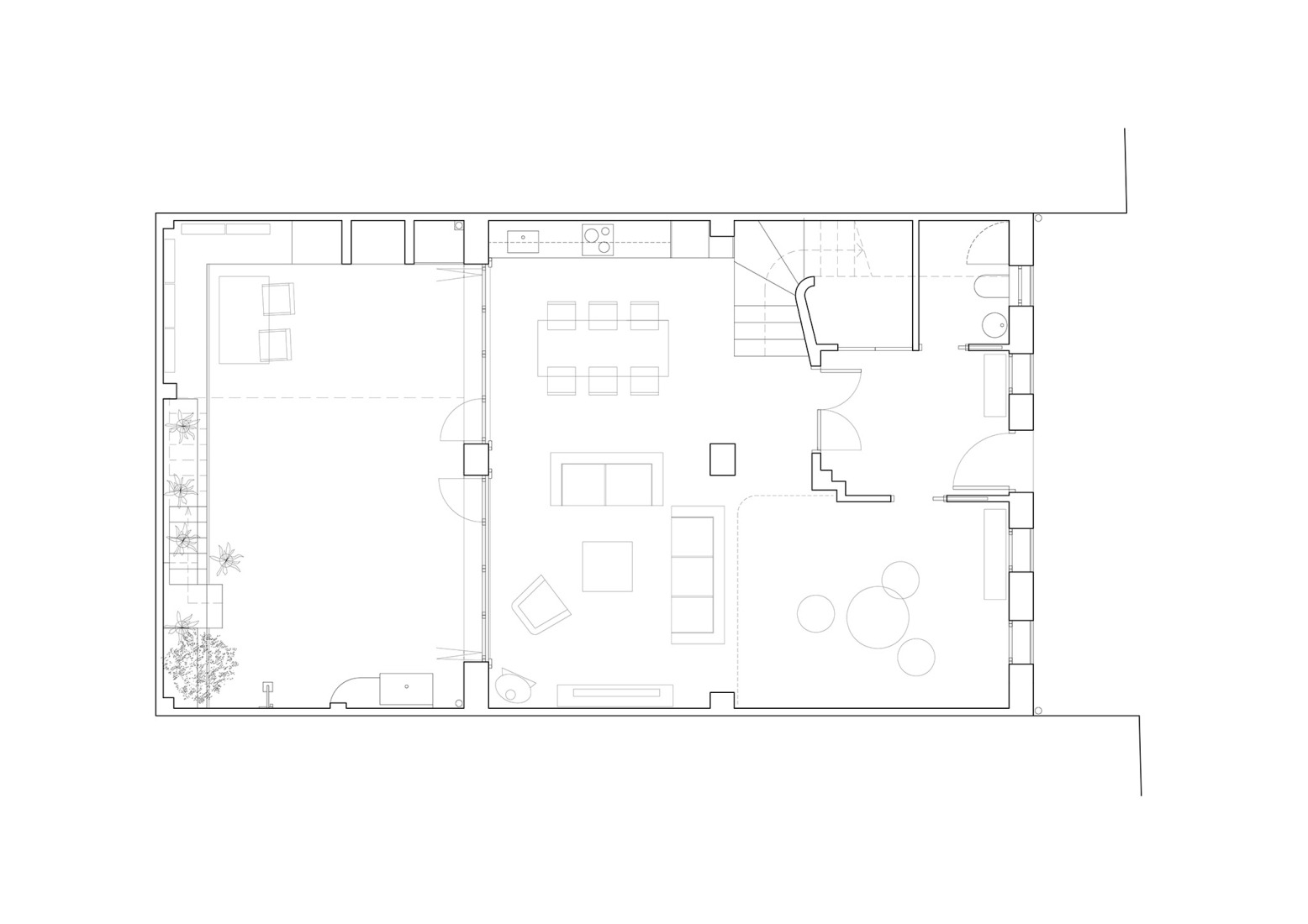
La «Casa del filósofo», proyectada por el arquitecto José Costa, es una vivienda renovada de dos plantas con un altillo. Cuenta con una eficiente distribución espacial, conformada por una sala para practicar yoga, una zona de biblioteca con una numerosa colección de ejemplares, una habitación de estudio, un altillo, una terraza, un dormitorio, un baño y un patio exterior.
En su ejecución se mantiene parte de la memoria del lugar y se conservan las capas de pintura preexistentes, que se convierten en lienzos de una obra de arte que iluminan la sala en la que se encuentran. Asimismo, se realizaron refuerzos estructurales en la cubierta, que son utilizados como ornamento. Las paredes y el suelo se reconvierten en nuevas texturas a partir de lo existente, y la carpintería fue completamente restaurada.

Casa del filósofo por José Costa. Fotografía por Mariela Apollonio.
Descripción del proyecto por José Costa
La vivienda surge de la confluencia entre los deseos del cliente y la historia de la construcción preexistente, la cual estuvo abandonada y tapiada durante muchos años.
El diálogo continuo y fluido con él permitió ir creando juntos una serie de espacios concatenados, interiores y exteriores, con una gran riqueza visual, que resulta, al mismo tiempo, inspiradora y acogedora.
Un patio donde reunir amigos. Una librería que da cabida a una numerosa colección de libros. Una sala para practicar yoga. Un hogar donde corretean y juegan los dos inquietos perros de la casa. Un estudio donde escribir y pensar. Un altillo que puede acoger a uno o dos huéspedes o donde tocar música. Una terraza para tomar el sol.
Un dormitorio que también es un cine. Un baño que también es un vestuario. Una escalera que también es armario. Un suelo al que le atraviesa la luz. Restos de pinturas preexistentes que se vuelven obras de arte. Refuerzos estructurales que ornamentan y enriquecen los techos. Paredes de ladrillo que aparecen mostrando la historia y el alma de la construcción. Una escalera roja que se irá fundiendo con una vegetación cada día más abundante.
Las baldosas hidráulicas son reutilizadas y reubicadas. Las puertas, restauradas y transformadas. Se crean texturas nuevas a partir de lo viejo y se envuelve todo con una formidable luz natural.
La casa se vuelve a abrir a la ciudad y cobra una nueva vida. Otra más.