Dos muros de hormigón armado visto, que desembocan en la calma de un patio rehundido, guían el ingreso hacia la casa realizada por Raúl Sánchez Architects. Al descender, un espacio sin apenas contacto con el exterior inmediato recorta la inmensidad del cielo y prepara al visitante para pasar al interior de la vivienda.
Puertas adentro, la propuesta no presenta jerarquías ni un espacio de circulación como tal. Los diferentes locales habitables se forman como los espacios que quedan a uno y otro lado de los bloques que alojan los espacios de almacenamiento. La Casa en Cala Tamarit se presenta como una propuesta en la que, a partir del propio movimiento, uno se apropia de los diferentes espacios, dando paso a una experiencia doméstica acogedora y singular.

Casa en Cala Tamarit por Raúl Sánchez. Fotografía por David Zarzoso.
Descripción del proyecto por Raúl Sánchez Architects
«…una casa sólida…pesada»
Esta frase resume cómo se imaginaban la casa sus futuros habitantes: una pareja en la que ambos trabajan en el mundo digital, para lo que únicamente necesitan un ordenador portátil. Y precisamente para su futura casa querían todo lo contrario: materialidad frente a inmaterialidad, volumen y masa frente a ligereza, experiencia frente a la inmediatez. Acostumbrados a un entorno en el que todo lo sólido se desvanece en el aire, su futura casa debía aportarles no sólo cobijo, sino una experiencia física.
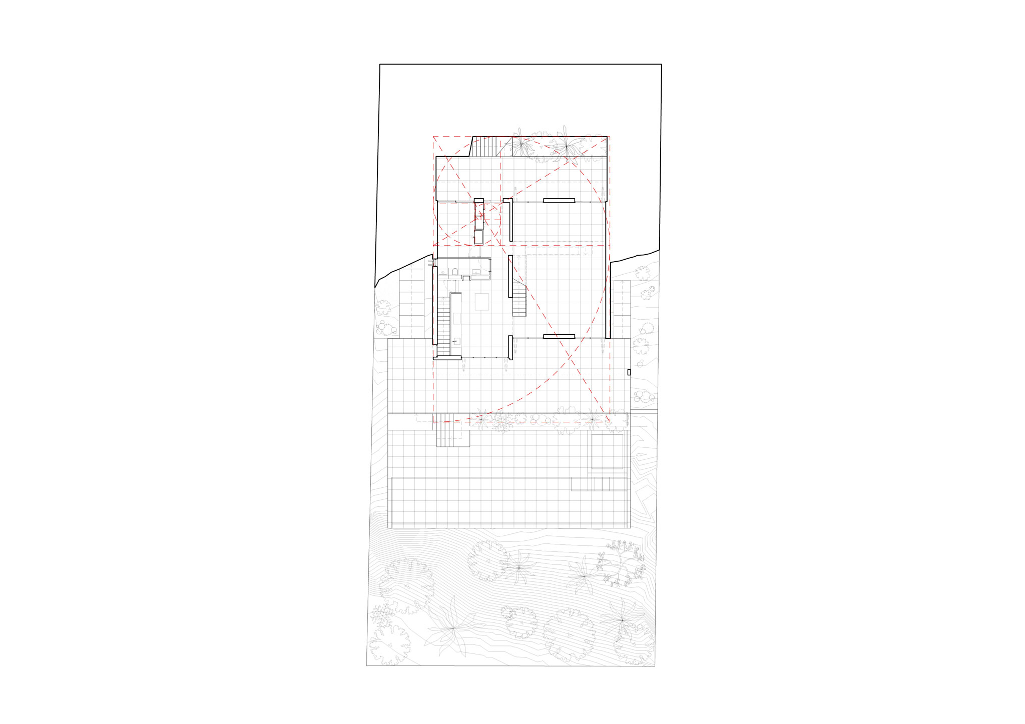
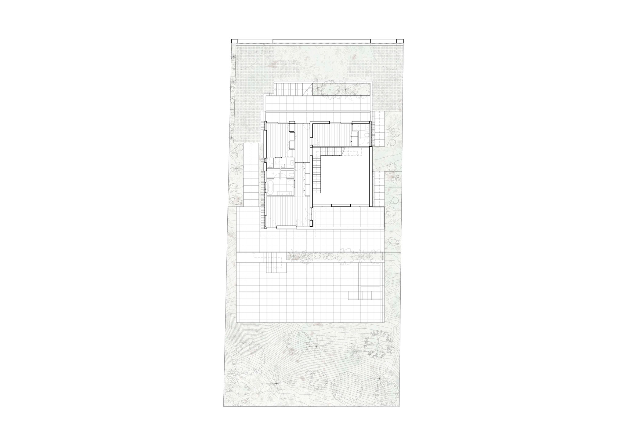
La casa toma forma recogida por dos muros de hormigón armado visto, tintados, de color beige, según exige la normativa local, que hacia el acceso se doblan y forman un patio de entrada rehundido, al que se accede mediante una escalera que ocupa la franja entre los dos muros. Así, al descender se entra a un mundo sin apenas contacto con el exterior, flanqueado por los pesados muros de hormigón (que están decolorados y muestran los restos del encofrado y el proceso de la construcción), con la única vista del cielo y del interior de la casa. En el interior de la vivienda casi no hay jerarquías, las estancias se forman como los espacios que quedan a uno y otro lado de unos bloques que encierran armarios, baños o la cocina: estos bloques no están alineados, por lo que no hay un espacio de circulación como tal, y el propio movimiento a través de la casa encuentra muchas formas de llegar a un mismo espacio.
La experiencia interior es por lo tanto cambiante y variada, y es necesario recorrer las estancias para entender la casa: desde la entrada el ambiente es más recogido e íntimo, pero siempre se tiene la vista del horizonte al otro lado, hasta que se llega a la zona de cocina, completamente abierta al paisaje de pinos; desde la cocina, o también desde la entrada, se puede acceder a la sala principal, desarrollada en una doble altura que se descubre al atravesar el umbral de acceso; y a su vez, esta sala se prolonga hacia el patio de entrada a través de un ámbito más recogido que prepara la conexión con este espacio. Tanto la sala a doble altura como la cocina se abren mediante una gran terraza a las vistas y el paisaje, y desde esta terraza, se va descendiendo a la zona de piscina, ubicada en el límite donde el terreno se convierte en un barranco. En la planta primera se ubican tres dormitorios, cada uno con su propio baño, mientras que el sótano se dedica a sala de juegos, dormitorio adicional y almacenes.
Una lectura atenta de la casa desvela un juego de opuestos: la rotundidad y solidez del hormigón armado queda desmentida por su propia disposición, mediante balcones volados donde parece que falta un pilar, pantallas superiores que descansan en huecos inferiores, o la propia grieta por donde la escalera sube a cubierta, que parece romper las losas que deberían ser continuas. Esta doble lectura también se aplica a la propia experiencia de la casa: cerrada e íntima a la vez que abierta hacia el paisaje; oscura y luminosa; rugosa y lisa. Precisamente la casa quiere escapar de etiquetas para moverse en terrenos más ambiguos que potencian la experiencia fenomenológica de la misma.
La elección del mobiliario sigue esta misma idea, combinando clásicos de Carlo Scarpa, Mackintosh, Le Corbusier, Mies Van Der Rohe o Miguel Milá (todas ellas conseguidas a través de FENIX Originals), con otras piezas más cercanas al arte de creadores contemporáneos, como Maxime Halot o Alex Bellotti, todos representados por EastWest Space de Barcelona. Algunas obras de Francisco Suárez o de Malgosia Jankowska, ambos de la galería Víctor Lope Arte Contemporáneo de Barcelona, empiezan a ocupar algunas paredes pensadas para ir acogiendo una familia creciente de arte.
La casa dispone de un sistema de suelo radiante en todas las estancias, y un eficiente sistema de aerotermia genera el frío y el calor necesarios. Sumado a la ventilación cruzada natural en todas las estancias, a un cuidado control de la orientación y posición de los huecos junto a los elementos que les dan sombra, a un depósito pluvial que almacena y reutiliza el agua de lluvia, y a una selección de materiales sencillos y de proximidad, consiguen una casa medioambientalmente comprometida y de unas elevadas prestaciones energéticas: incluso el hormigón armado se ha ejecutado con el objetivo de reducir su huella de carbono, para lo que se ha sustituido gran parte del cemento portland por puzolanas naturales, se han usado áridos reciclados en lugar de áridos extraídos de cantera, y se han usado aditivos superplastificantes para minimizar el uso de cemento.
A ello se añade la incorporación de fachada de madera de alerce, proveniente de bosques gestionados de manera sostenible, que incorpora una serie de ‘costillas’ para generar sombra sobre la propia fachada y reducir el calentamiento de la misma, además de disimular las ventanas situadas en las fachadas laterales, enfrentadas a las casas vecinas. Adicionalmente, la disposición de la casa aprovecha la topografía para asentarse en el terreno equilibrando excavación y aporte de tierras, colocando la planta baja semienterrada y desplazando el sótano buscando las terrazas naturales del solar.
Ubicada en el idílico entorno de Cala Tamarit, en las afueras de Tarragona, el solar tiene acceso desde dos viales, aunque únicamente se accede desde la calle superior, ya que, a mitad de solar, el terreno se convierte en un barranco con una pendiente que supera el 100%, imposibilitando no sólo el acceso sino el propio aprovechamiento de esa parte. La orientación es noreste-suroeste y está a apenas 150 metros del mar. Todas las proporciones, tanto en planta como en sección, obedecen a la sección áurea.