Inspirada en la pasión por la fotografía y el arte, la Casa AA, llevada a cabo por PHTAA Living Design, se concibe como una residencia y galería a la vez. Para reflejar la esencia y la sensibilidad que caracterizan al propietario, la vivienda se presenta como un escenario donde exhibir diferentes piezas de diseño.
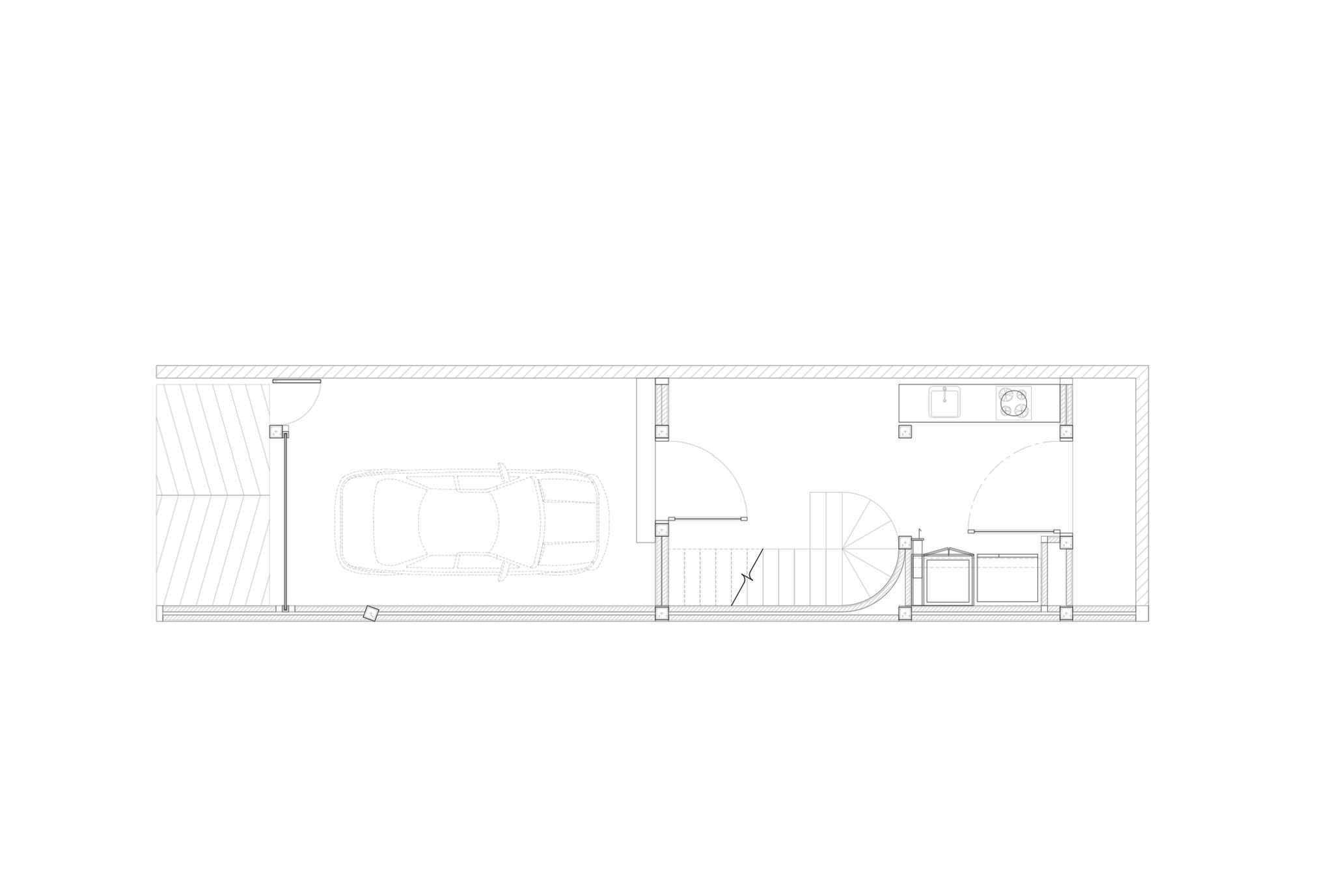
Facilitando eficientemente las rutinas diarias, el recorrido espacial comienza con el comedor y la cocina en planta baja. Al ascender, una amplia sala de estar constituye el espacio de reunión familiar. La planta superior aloja el dormitorio, que se complementa con un balcón donde los ocupantes de la casa conectan con el cielo circundante. Apilando las diferentes funciones en seminiveles, la propuesta logra transformar el estrecho y restringido terreno urbano en un espacio doméstico, acogedor y fluido.

Casa AA por PHTAA. Fotografía por Santana Petchsuk.
Descripción del proyecto por PHTAA
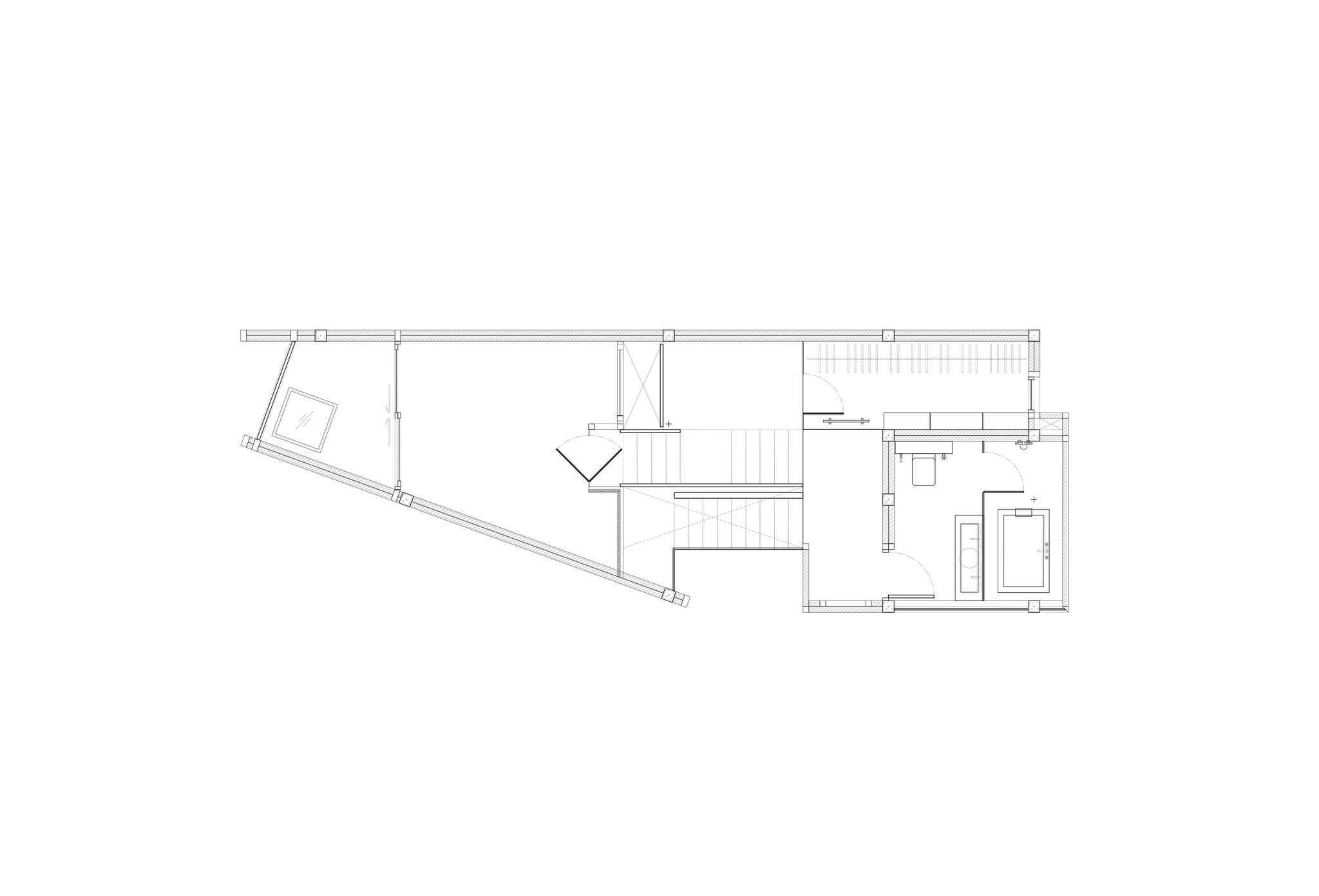
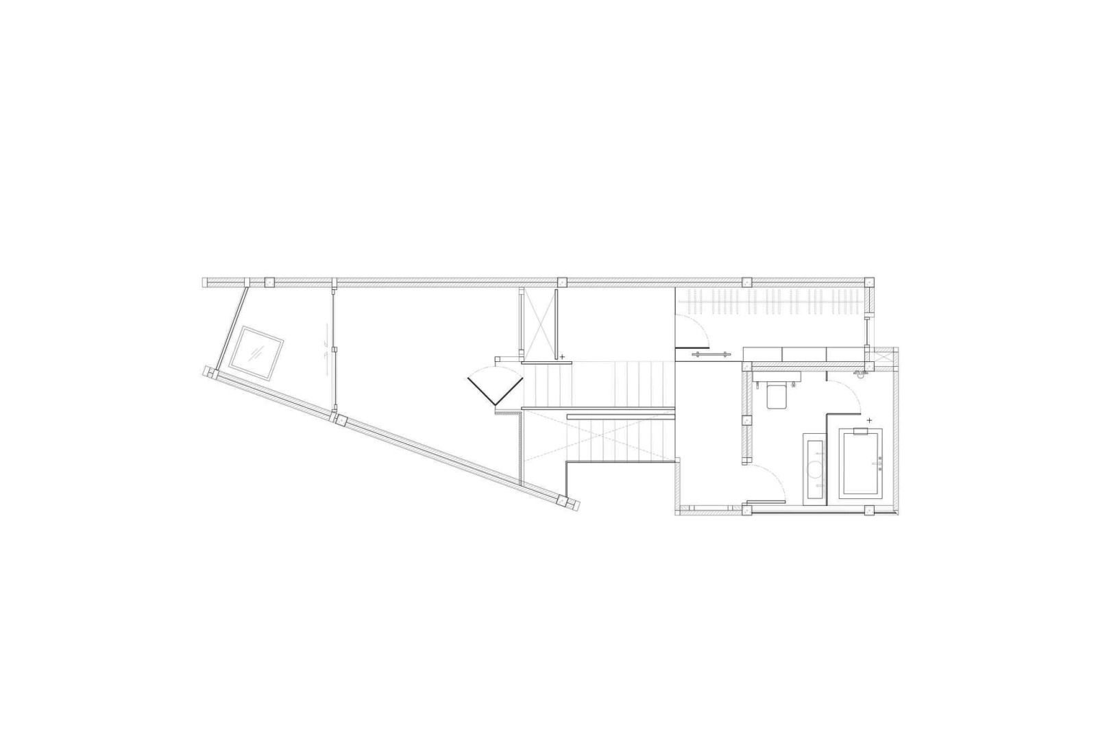
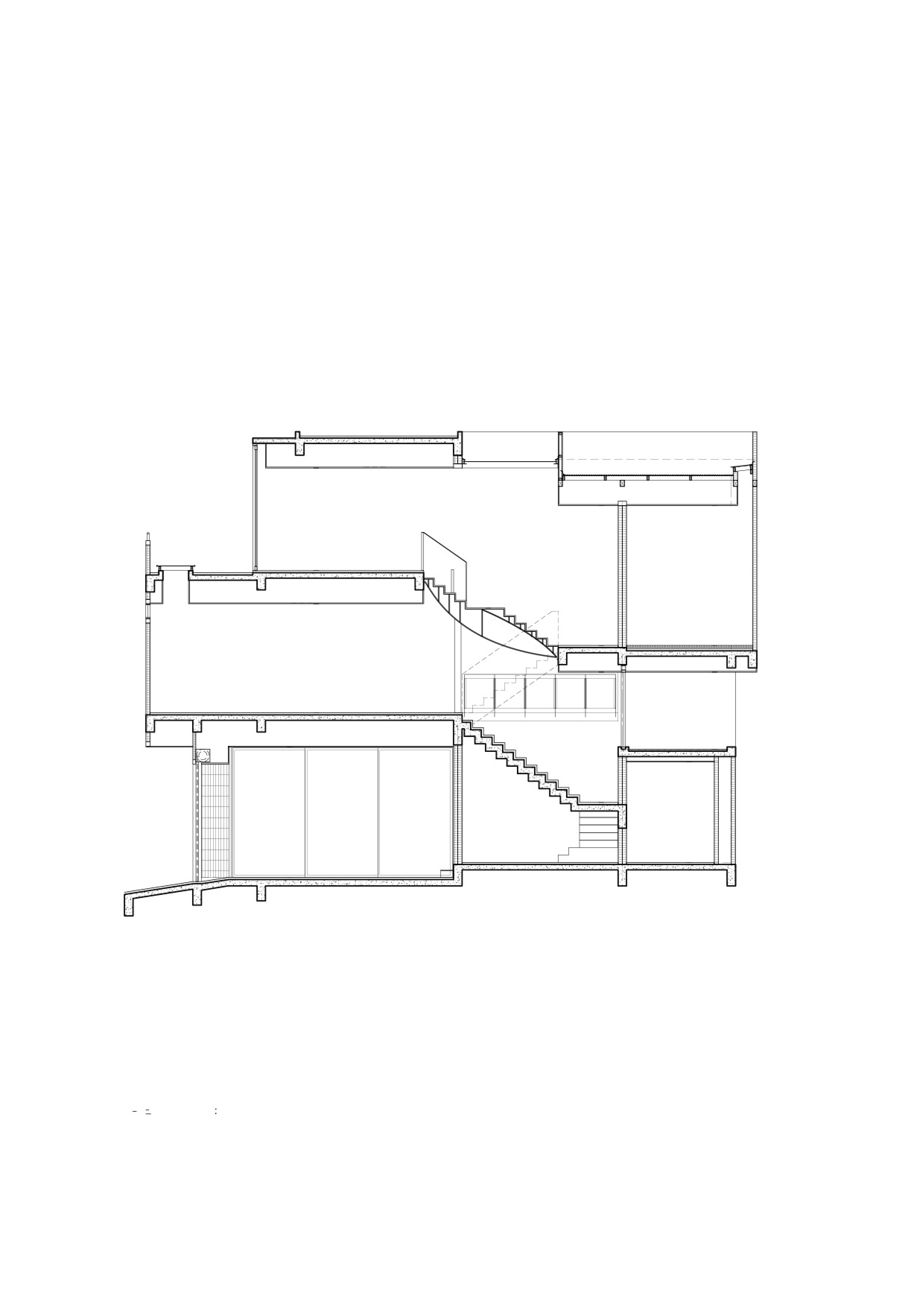
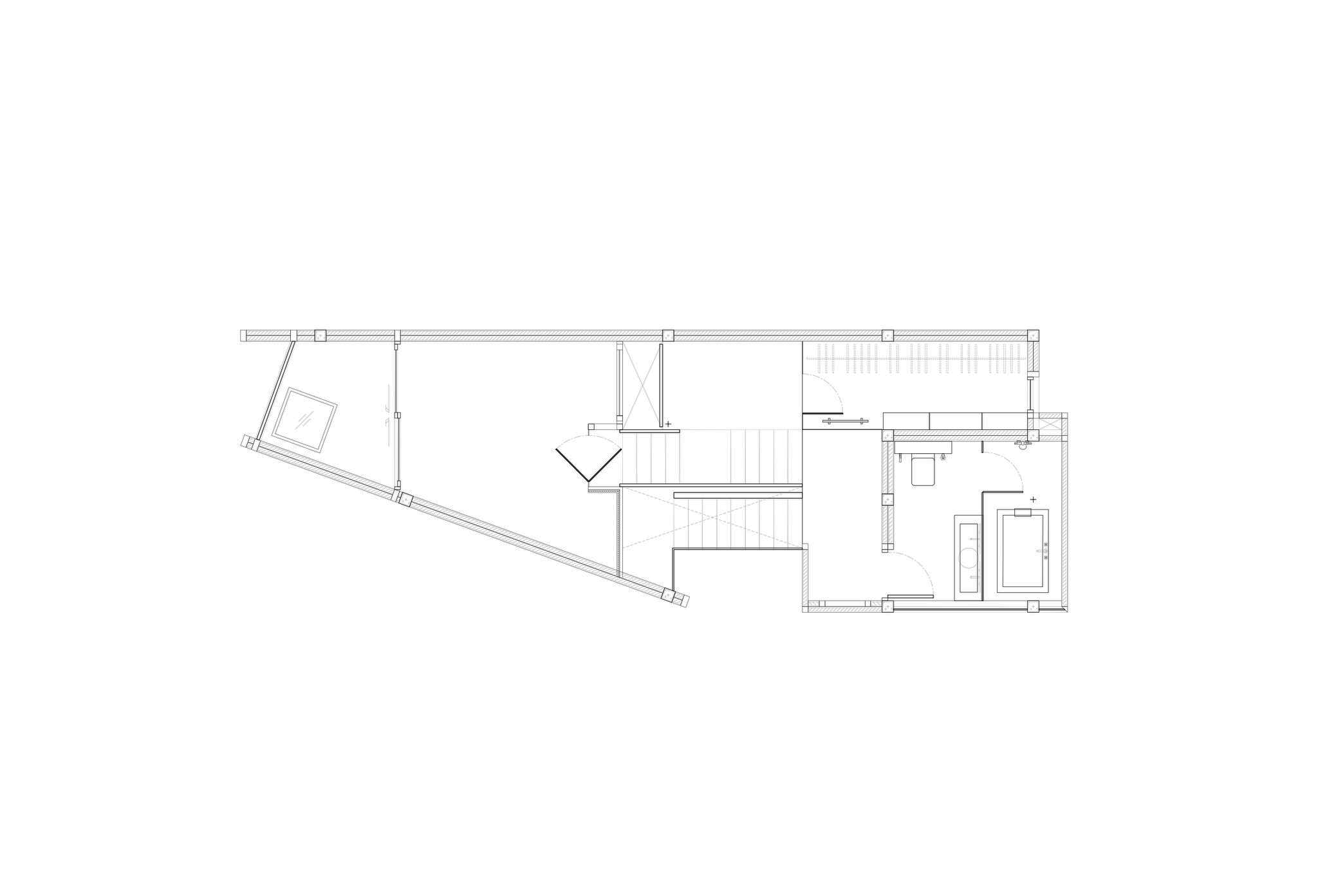
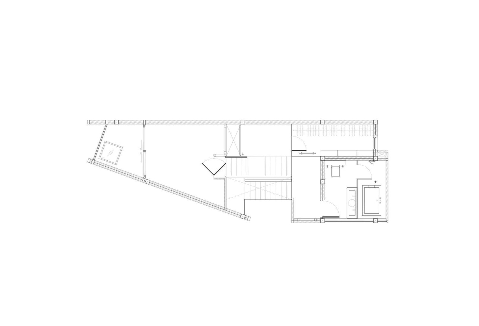
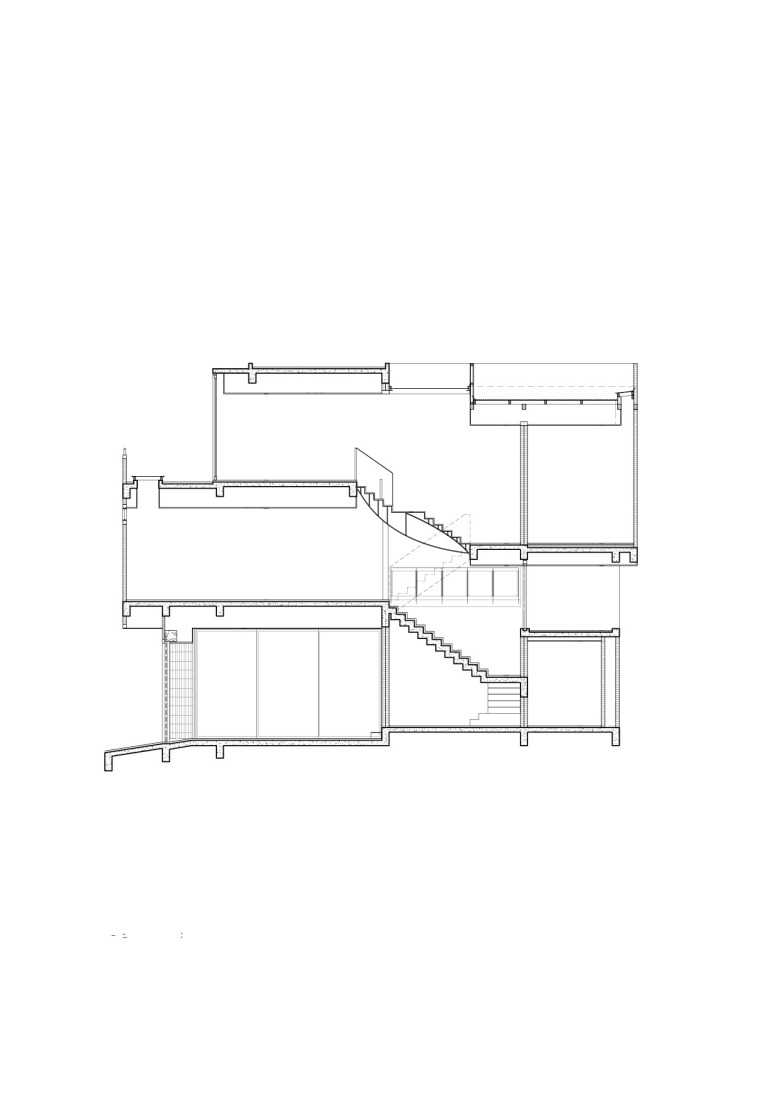
Casa AA transforma el desafío de una fachada estrecha y una parcela urbana profunda en una secuencia vertical de espacios interconectados. El diseño se organiza en torno a una escalera central, que conecta una serie de seminiveles que guían el movimiento de forma gradual, en lugar de abrupta. Esta circulación escalonada genera un ritmo de vistas superpuestas, lo que hace que la casa se sienta abierta y conectada a pesar de su tamaño compacto.
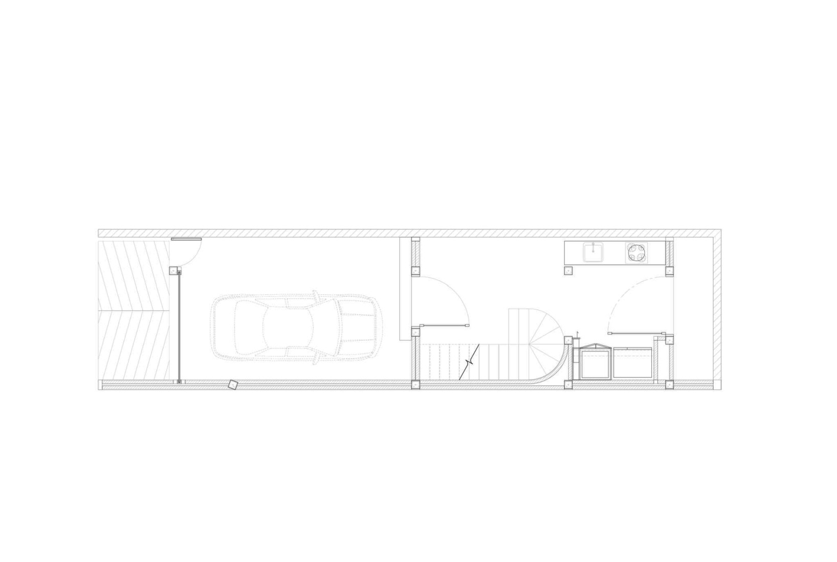
El recorrido espacial comienza en la primera planta, donde una zona de aparcamiento comparte el nivel con el comedor y la cocina, creando una base práctica y eficiente para las rutinas diarias. Al ascender a la segunda planta, la casa se abre a una amplia sala de estar, complementada con un aseo y trastero, que constituye el espacio de encuentro familiar.
Un nivel intermedio sobre la sala de estar está dedicado a un baño, diseñado como un remanso de paz donde la luz natural se filtra a través de aberturas altas para crear una atmósfera serena. La tercera planta alberga un vestidor, ubicado como un espacio intermedio entre la sala de estar y las zonas privadas. Finalmente, la planta superior alberga el dormitorio, que se abre a un balcón, ofreciendo privacidad a la vez que conecta a los ocupantes con las vistas y el cielo circundantes. La casa se define por su estructura de hormigón con columnas y vigas. La interacción de la luz natural a través del tragaluz y la circulación vertical da vida a los interiores, haciendo que cada nivel sea único pero a la vez interconectado.
Al apilar y entrelazar funciones en seminiveles, Casa AA transforma un terreno urbano restringido en un entorno vital fluido, donde el movimiento, la luz y los rituales cotidianos se integran a la perfección en la arquitectura.
Casa AA se concibe como una continuación de nuestro trabajo en sans studio, inspirándose en la pasión del propietario por la fotografía, el arte y el diseño moderno. Concebida como residencia y galería a la vez, la casa se convierte en un escenario para exhibir piezas de diseño apreciadas que reflejan el carácter y la sensibilidad de su propietario.