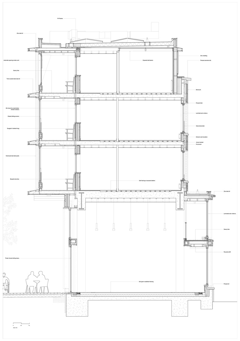
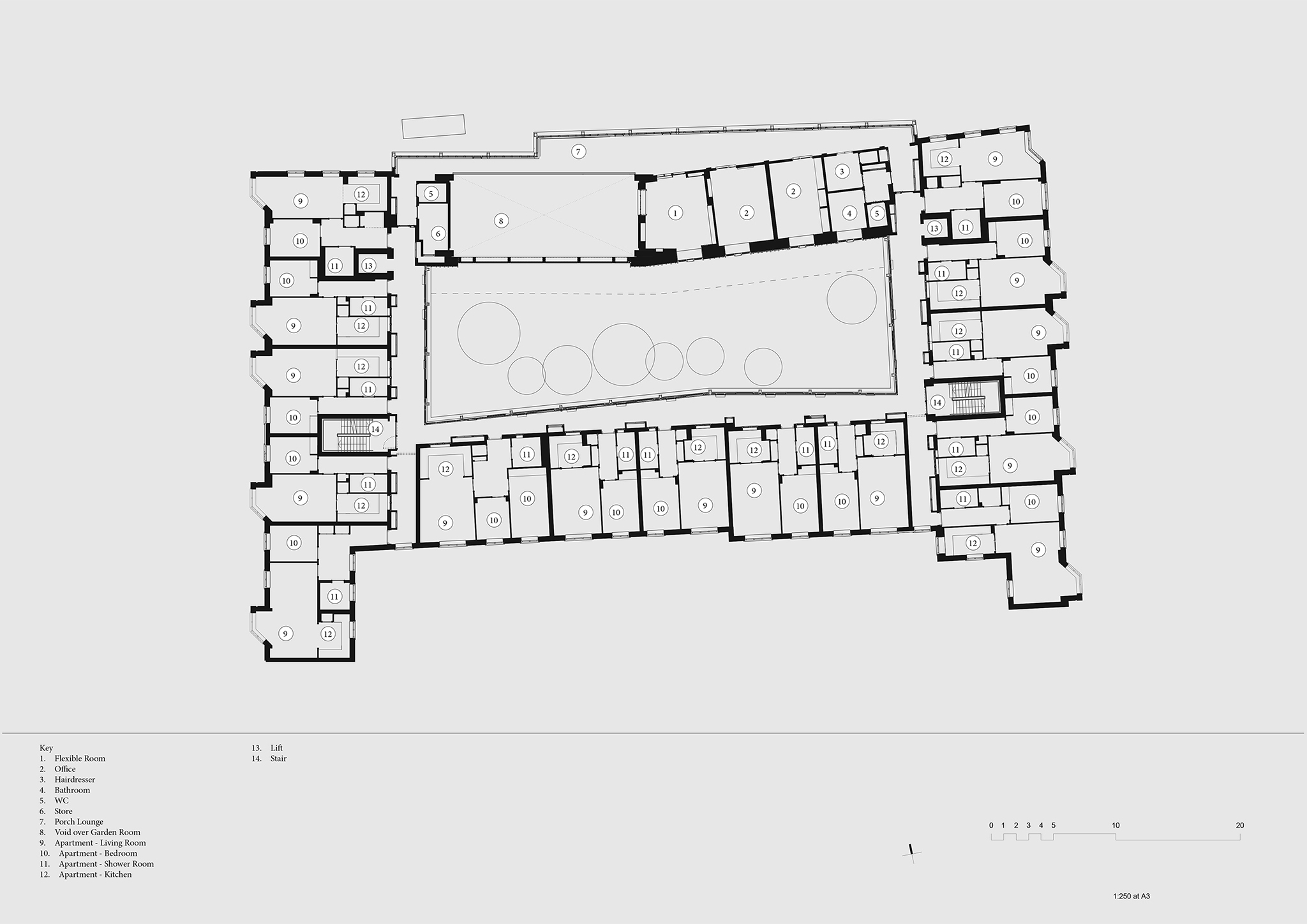
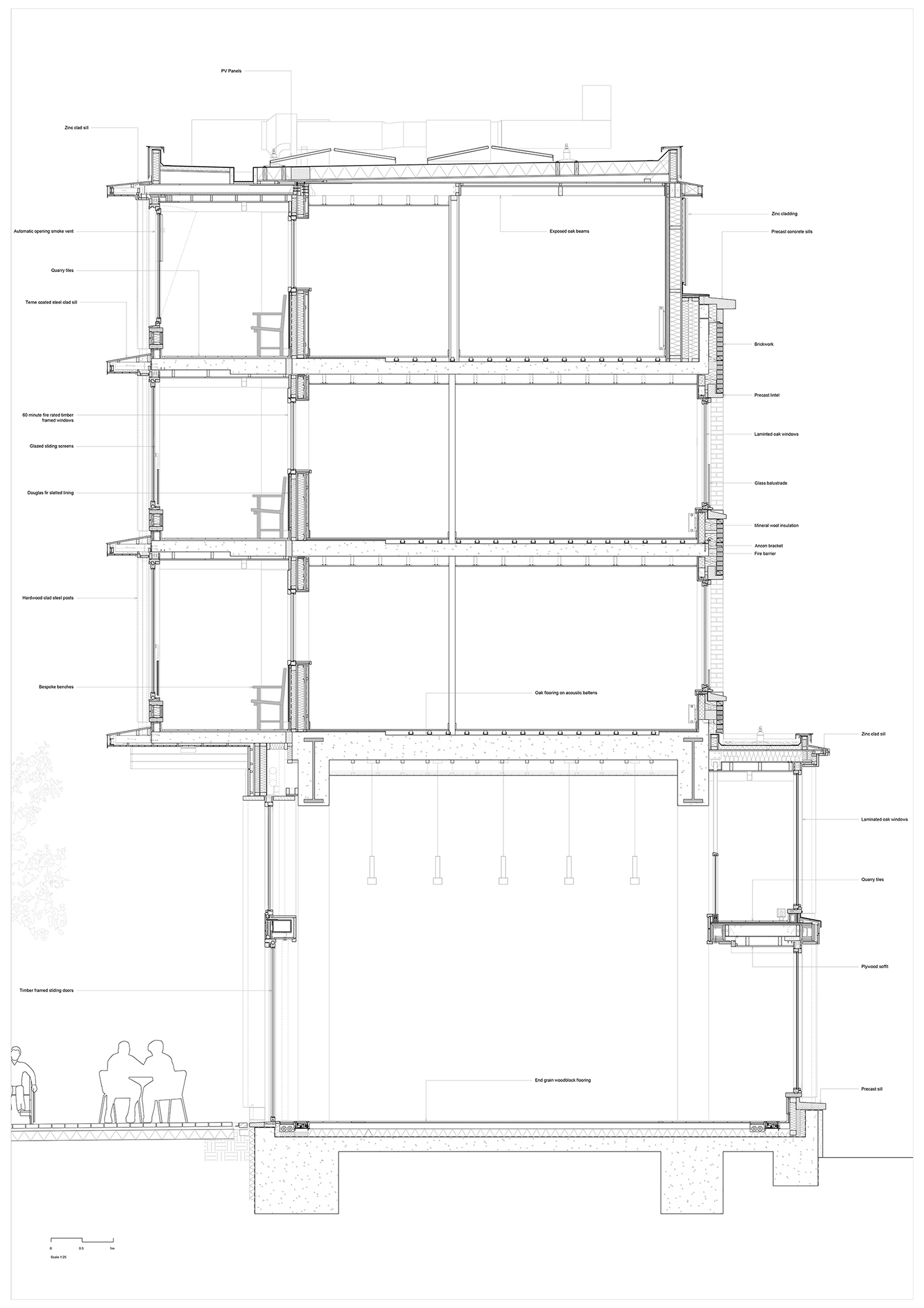
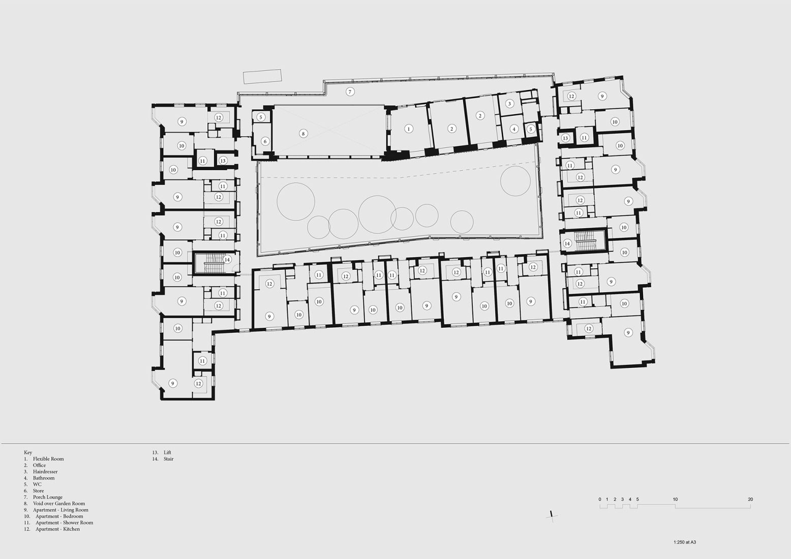
El complejo, proyectado por Witherford Watson Mann Architects, en Bermondsey, cuenta con 59 viviendas e instalaciones comunes, como un jardín en la azotea, un patio y una cocina comunitaria.
«Trabajando estrecha e imaginativamente con United St. Saviour's Charity, hemos creado un entorno que reduce la soledad, fomenta la conexión y apoya una buena vida posterior. La organización benéfica ha hecho de la vivienda social una aspiración, permitiendo que las personas envejezcan localmente con el apoyo adecuado, beneficiando tanto a los residentes como a la comunidad de Southwark en general. Nos sentimos honrados de que el Premio RIBA Stirling reconozca el poder de la arquitectura para crear lugares que realmente transforman vidas.»
Stephen Witherford, en nombre de Watson Mann Architects y United St. Saviour's Charity.
En Bermondsey, United St. Saviour’s Charity (UStSC), una organización benéfica con sede en Southwark y con casi 500 años de experiencia, se propuso reinterpretar la tradicional residencia pública, ofreciendo viviendas sociales colectivas de alta calidad para personas mayores.

Residencia pública para mayores Appleby Blue, de Witherford Watson Mann Architects. Fotografía de Philip Vile.
El terreno era originalmente de propiedad municipal y estaba ocupado por una residencia de ancianos en desuso. La promotora privada lo adquirió y financió en gran medida la construcción de las viviendas sociales, como provisión asequible externa para un gran desarrollo residencial en Bankside. UStSC gestionará la casa de beneficencia a perpetuidad, con alquileres limitados a los niveles de vivienda social.
«Este proyecto es un llamado de atención para una nueva forma de vivienda en un momento crucial. Construido en el contexto de dos crisis —una grave escasez de viviendas y una creciente epidemia de soledad entre las personas mayores—, Appleby Blue ofrece una respuesta esperanzadora e imaginativa, donde los residentes y la comunidad circundante se unen a través de la naturaleza transformadora del proyecto.»
Ingrid Schroder, hablando en nombre del jurado del Premio RIBA Stirling, directora de la Escuela de Arquitectura de la Architectural Association (AA).