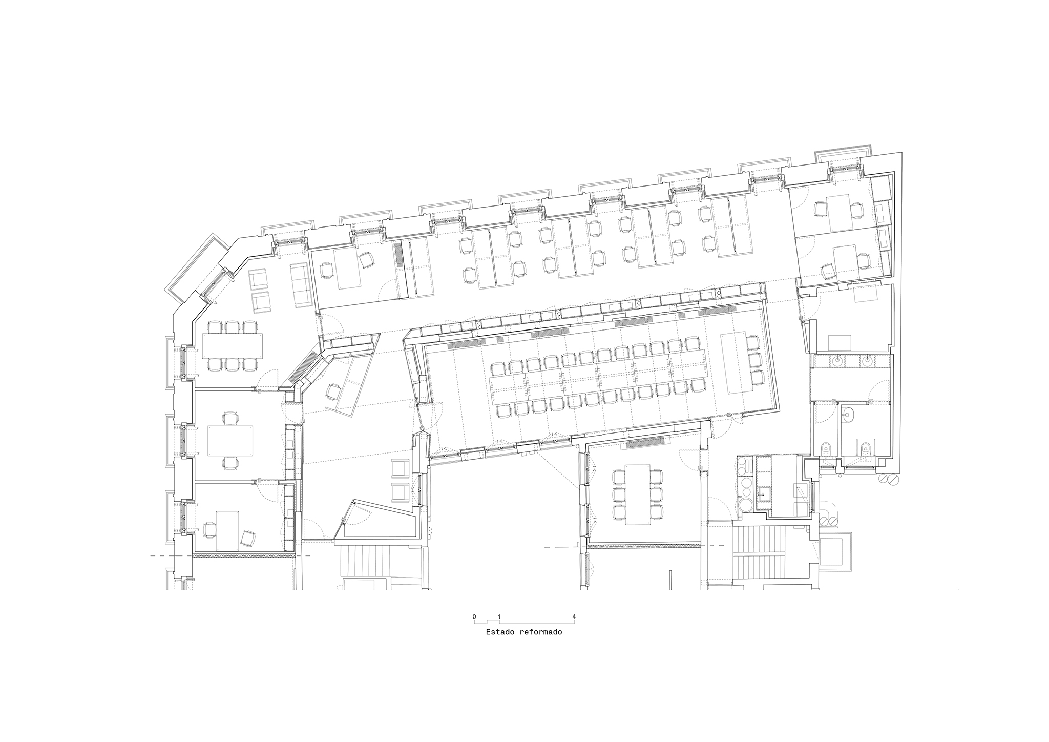
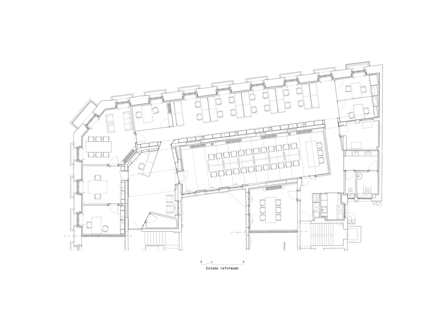
Upon entering, a simple geometric volume forms the reception area of the project developed by MID estudio, acting as the central element that connects the entrance with the various program areas. Taking advantage of the natural light, the most frequently used spaces—the Government Area and the Internal Work Area—are located along the building's exterior perimeter. The three spaces of the Government Area face Paseo de la Castellana, while the President's office is situated in the chamfered corner section as a formal reception area. The Internal Work Area is organized towards Ayala Street in a single, shared space, where the different departments are grouped around oak tables that evoke the ambiance of library reading rooms.
The rest of the program is organized around the interior wings connected to the courtyards. These areas house the Plenary Hall and service areas, as well as offices enclosed by glass partitions for management and department heads. Located next to the main courtyard, the Plenary Hall is designed as a flexible space capable of hosting plenary sessions, meetings, and internal activities. The renovation is complemented by an energy efficiency strategy that incorporates passive measures and high-efficiency heating, ventilation, and air conditioning (HVAC) systems, reducing pollutant emissions and the consumption of non-renewable primary energy.

Headquarters of the Higher Council of Architects' Associations of Spain (CSCAE) by MID estudio. Photograph by María Azkarate Lete.
Project description by MID estudio
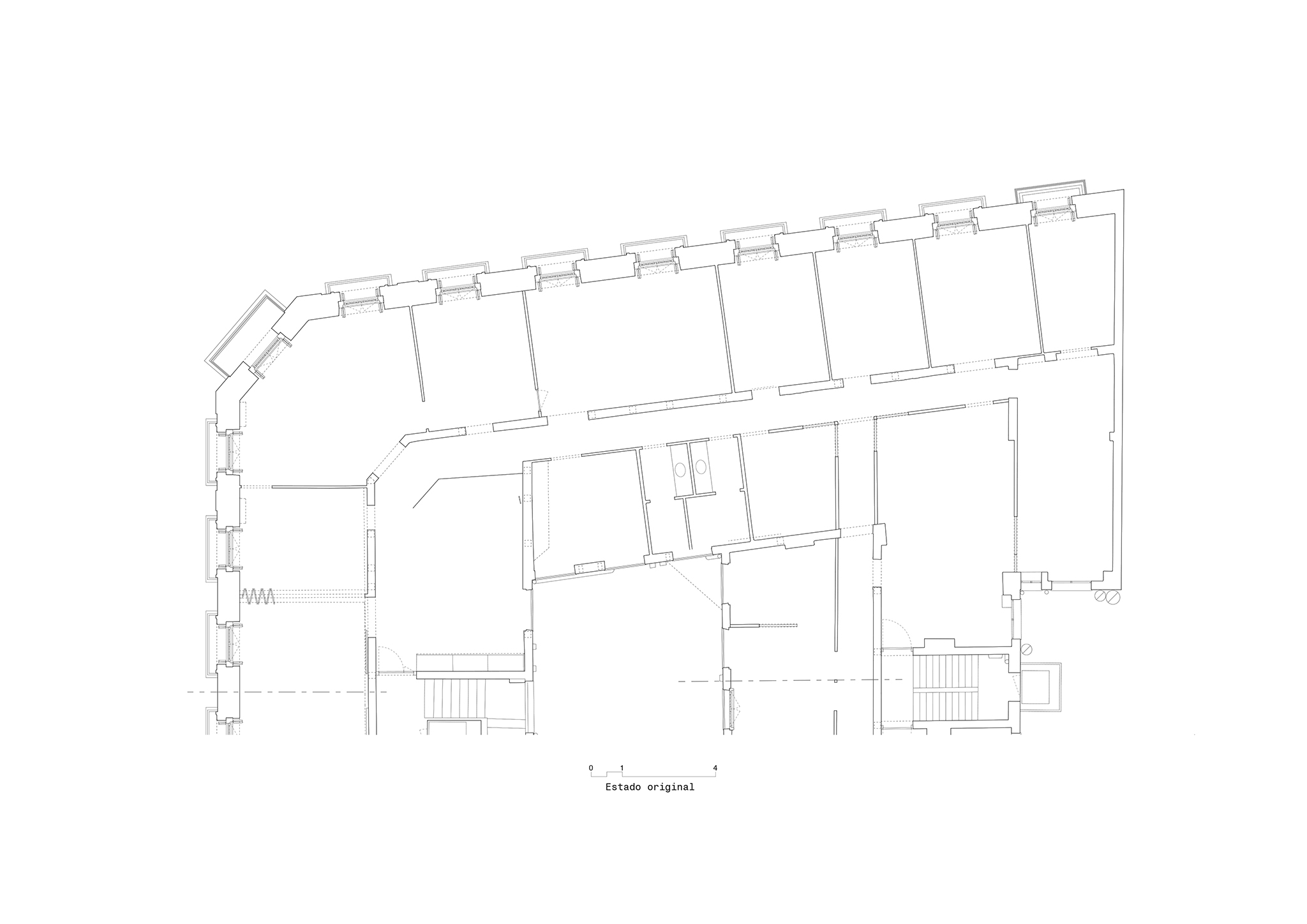
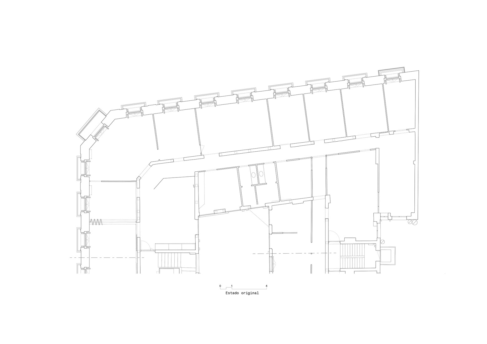
The project, the result of an ideas competition organized by the Higher Council of Architects' Associations of Spain (CSCAE), addressed the challenge of developing the functional program of its headquarters within half of the surface area previously used. Additionally, the program had to adapt to the construction and structural logic of the building where it is located, an edifice on Paseo de la Castellana in Madrid dating from 1904, designed by Dimas Rodríguez, expanded, and renovated in 1918 by Antonio Palacios.
A volume of elementary geometry defines the reception area, serving as a threshold that organizes and provides access to the various programmatic zones. Each of these zones is situated within one of the bays created by the building's load-bearing walls. On its outer perimeter, seeking natural light, are the most frequently used spaces: the Government Area and the Internal Work Area. The remaining areas - Plenary Hall and service zones - are located in the interior bays facing the courtyards.
Facing Paseo de la Castellana, occupying each of the three balcony windows of the façade, are the three spaces required for the Government Area. The President's office, as a representative space, occupies the chamfered corner room.
Internal work takes place facing Ayala Street, the larger façade with a northern orientation, in a unique, shared space where different departments are arranged in groups around custom-made oak wood tables, which, along with the lighting fixtures placed above them, evoke the ambiance of classic library reading rooms. This setup fosters concentration as well as team creation, aiming for a connected and well-communicated work environment.
Excessively fragmented layouts, which would require additional circulation spaces, are avoided. To ensure worker comfort, special attention has been given to the acoustic treatment of the ceilings. At both ends of the Work Area, enclosed with glass partitions, are the offices for Management, Legal Area Direction, and the 2030 Observatory Direction.
The arrangement of the tables follows the logic of the regular layout of the building's façade openings. The modulation derived from these openings is transferred to the other elements of the proposal, thus creating the rules that establish the order of the project. This modulation is applied to the carpentry elements, made of lacquered wooden slats, which integrate the cabinets, passages, and doors, as well as the terminal elements of the air conditioning system.
The Plenary Hall is located next to the main courtyard, beside an intermediate load-bearing wall. Due to its new configuration, it can be used not only on plenary days but also as a meeting and internal work space through the use of flexible furniture. The use of oak wood in this room reinforces the uniqueness of this space within the headquarters, and its faceted acoustic ceiling, resembling regular concatenated roofs, integrates a series of pre-existing structural elements.
The project prioritizes efficient design with the adoption of passive measures in energy rehabilitation and high-efficiency climate control and ventilation systems, aiming to reduce pollutant emissions by 82% and the overall consumption of non-renewable primary energy by 76%.