Respecting the building's original configuration and character, the Reina & Asociados team has restored the factory's powerful identity. Using a series of components adapted to the building's modular structure, the project adapts the living spaces to new usage needs. As a testament to extensive industrial activity, the succession of existing finishes, textures, and materials are left exposed, revealing the different production stages of the industry.
The accelerated pace of contemporary life demands constant evolution and adaptation from buildings. As another chapter in the long history of the Seville Artillery Factory, the industrial building once again undergoes a process of repurposing to achieve the maximum flexibility required by current needs.

"Centro Magallanes_ICC" at the Royal Artillery Factory of Seville by Reina & Asociados. Photograph by Fernando Alda.
Project description by Reina & Asociados
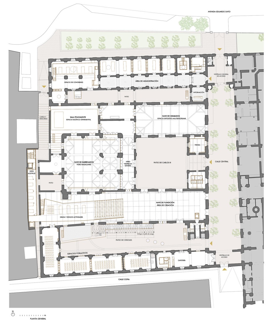
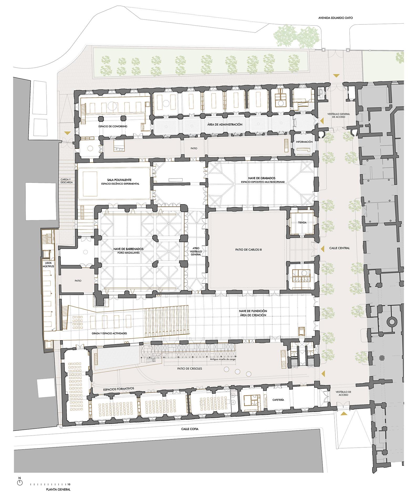
The project aims to rehabilitate the western sector of the Seville Artillery Factory as the Magallanes Center for the development of cultural and creative industries, following a competition launched by the Municipal Urban Planning Department in 2019. This part of the complex, covering approximately 9,000 sqm, was commissioned by Charles III in 1782 as an expansion of the original bronze foundry, incorporating blocks and land from the former San Bernardo neighborhood. From then on, it became an establishment of great strategic importance, an example of industrial development and technical experimentation in the construction of cannons and bronze pieces, and can be considered a precursor to an early industrial revolution in Spain.
The Factory operated almost continuously until the last quarter of the 20th century, and as such, it has always been open to change, incorporating new technologies and readily adapting its architecture to the production needs of each era, growing and transforming its appearance, and subjecting its spaces to continuous recycling. This evolution is also reflected in the city's development, in the configuration of the San Bernardo neighborhood, whose urban fabric has been shaped by the successive expansions of the industrial facility.
The project stems from a reflection on the building's changing materiality, a reflection of the industrial activity carried out over time, which has been orderly and flexible, based on the modular structure that defines the extensive order of its floor plan.
The western area where the intervention takes place is structured by a regular grid of alternating warehouses and courtyards, following a virtually symmetrical configuration around a central axis. Guided by the rationality of the original compositional scheme, the balance between solids, voids, and intermediate spaces is restored, where the circulation and access systems are naturally articulated. The central street of the complex, which connects to the neighborhood's road network, is a key feature. The factory's imposing architecture showcases the techniques and materials used in its construction, as well as those associated with the various production stages, preserving the textures, traces, and scars that document its industrial activity.
To achieve maximum flexibility while preserving the unique character of the restored spaces, the old buildings are complemented by new structures that ensure their suitability to current requirements. Located below ground level or installed as modular units that adapt to the factory's layout, these new structures address technical and functional aspects—facilities, workshops, restrooms, changing rooms, and seating areas—while maintaining a certain resemblance to the machines and equipment that furnished the complex throughout its history. The western boundary, where the former security alley separating the factory from the San Bernardo hamlet is located, is recognized as a valuable opportunity to ensure the connection of facilities between the different sectors of the complex, as well as to functionally complement the existing buildings. This new building fits into the limited space available on the party wall and extends into the existing buildings, becoming either a grandstand or a roof.
During the construction, as we removed recent cladding that concealed other materials and dispensed with added elements, the Artillery Factory revealed new spatial possibilities and alternative interpretations that enriched the exploration of the project. Intersecting views were incorporated, transparencies emerged between spaces that were originally closed and independent, and unexpected relationships sometimes challenged initial assumptions and led to new agreements. It was an open work where we were aware of the true process of transformation, that which makes the continuity of architecture possible through time.