The thermal rehabilitation of a 49-unit apartment building by graal distributes the apartments within a rationally organised parallelepiped on either side of a central horizontal corridor, creating a façade with openings of varying sizes: small for the kitchens and large for the living rooms. The new windows, with their blue aluminium frames, appear to blend seamlessly with the new thermal insulation, creating continuity with the glazed blue-brick envelope.
Based on the performance and condition of the existing structure, the proposed exterior insulation is conceived as a transitional surface between two construction periods, intervening subtly to preserve the building's identity within the urban landscape. The new insulating layer, composed of panels clad in blue glazed tiles, evokes the materials that characterise the neighbourhood through this new textured façade. The project views insulation not as an element that erases the existing structure, but rather as one that can complement a comprehensive architectural approach.

Thermal rehabilitation of a 49-unit apartment building by graal. Photograph by Giaime Meloni.
Project description by graal
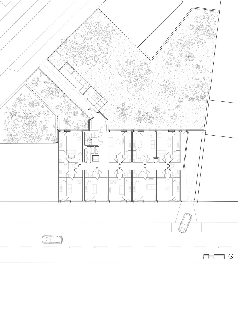
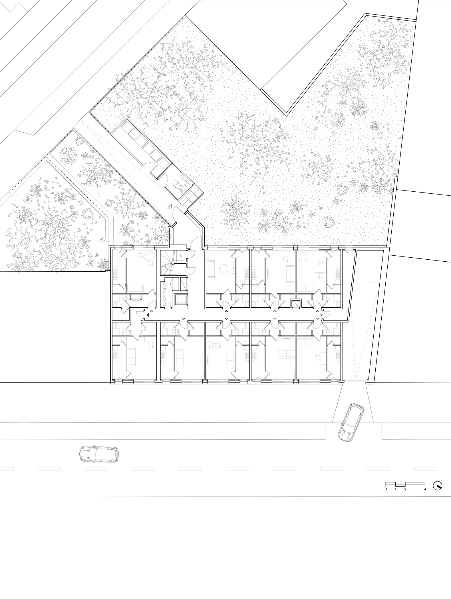
Located at the foot of the 13th arrondissement plateau in front of the Rive Gauche urban development zone, the renovated building completes a triangular block formed by Rue du Chevaleret, Rue Cantagrel, and Rue des Grands Moulins. Set within a vast urban space connecting the neighbourhood's unique topographical levels and composed of architectural objects of various scales and functions, this building, constructed in 1978, simply inserts on its cross-shaped plot, creating a clear relationship with its immediate environment. On one side, the building extends the alignment of Rue du Chevaleret as an extension of the Cité du Refuge, designed by Le Corbusier, and suburban buildings. On the other side, facing Rue Cantagrel, a garden sets the building apart and gives it a stronger residential dimension, with the volume of the lobby standing out from the façade.
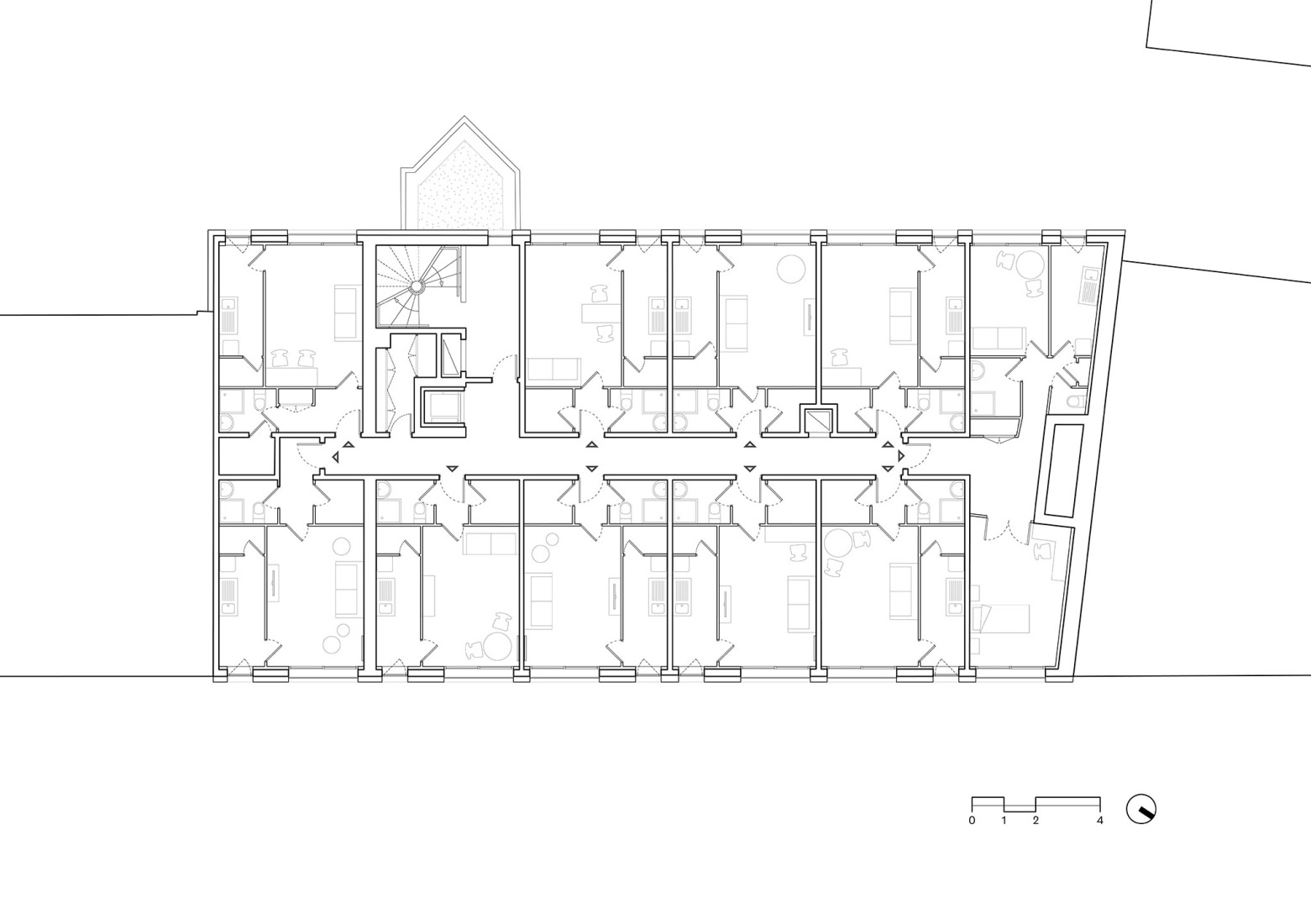
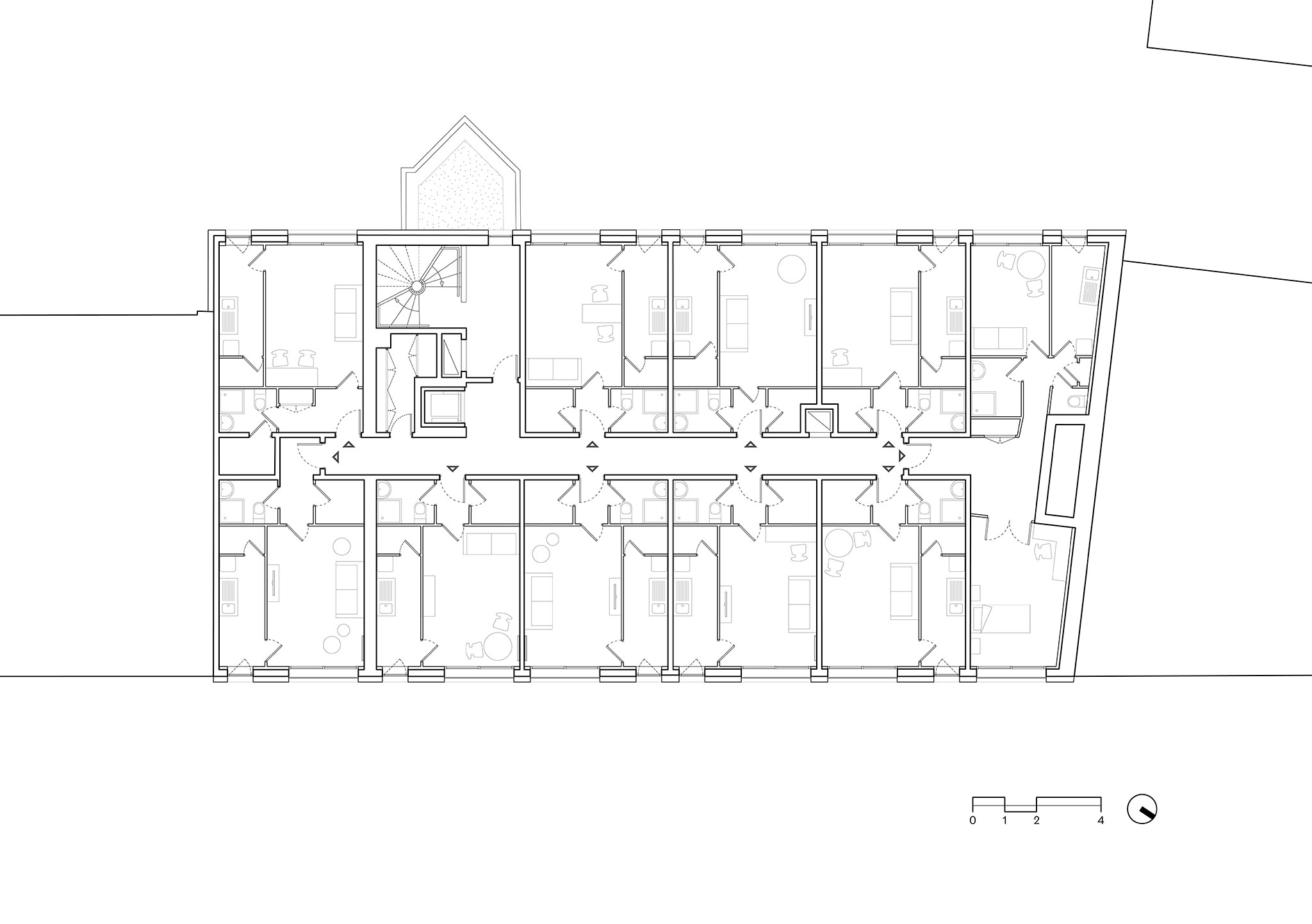
Nested in a rationally organised parallelepiped, the 49 apartments (one- and two-bedroom units) are arranged on either side of a central horizontal corridor, creating a façade punctuated by openings whose proportions are defined by their function: small windows for kitchens and large bay windows for living rooms. Despite two street frontages, this typological repetition gives the façades a single language that makes the residence easily recognisable in its near neighbourhood, on both sides of the roads.
The existing façade, organized by a subtle interplay of recesses and projections, was distinguished by a pattern of plastered walls mixed with a light gray mosaic cladding, emblematic of the 1970s era. The large sliding windows in anodized aluminum with their guardrails formed the recesses of this mineral envelope in neutral tones, attempting to blend into the persistent suburban fabric.
The design choices which guided this rehabilitation were directly based on the observations of the performance and condition of the existing structures, as well as on the desire to intervene in this heritage in a sober way. Transformation required to understand how we could maximize performance and uses while minimizing interventions to preserve the identity of the building in the urban landscape. The proposed external insulation operation is not considered as a two-dimensional, systematic intervention, but rather as a transitional surface between two construction eras, providing an opportunity to implement an economic, thermal, and heritage strategy.
Designed as a third layer superimposed on the existing pattern, the heating rehabilitation offers a new colored envelope covering the most heat-loss surfaces of the facade to enhance the glass paste facades already insulated from the outside. Limited mainly to slab and wall edges, this new insulating pattern properly frames the large openings, which are then replaced identically, allowing all the metalwork to be retained. This strategy offers the possibility to limit the treatment of window surrounds, reuse 55 linear meters of guardrails, and save nearly 8.5 tons of material to carry out the renovation of the entire building.
The thickening of the envelope provides the opportunity to implement different treatment of the joinery. The large frames overlooking the living rooms and bedrooms are replaced identically on the inside to create new exterior blinds within the depth of the complex, which preserves a generous glazing area. By reducing a significant area of heat loss, the replacement of the anodized aluminium sliding windows ensures consistency with the retained railings, preserving their usability and lighting quality while minimizing the impact of manual tasks on an occupied site.
On the other side, the kitchen windows on the front of the building have been repositioned on the exterior wall line to create an interior shelf that extends the work surface, offering new uses for the kitchen. These new blue aluminium frames appear to be melted in the new thermal insulation, forming a continuum with the blue glazed brick envelope.
The new insulating layer, composed of insulating panels covered with blue-glazed tiles, echoes the materials that characterize the neighborhood, where brick, stone, and glass block facades stand side by side. The vertical arrangement of the bricks reflects the earthenware tiles of the nearby Cité du Refuge, while the blue tint echoes the moldings of the adjoining house. The partial thickening of the complex creates an inversion and amplification of the façade's relief, with elements that were once protruding and which are now set back, framed by the new textured façade. The result is an envelope that changes appearance with the tones of the sky and creates a residential building that now stands out in both its immediate and distant surrounding environment.
By mostly relying on existing materials as a resource, the project views insulation not as a process that necessarily erases what already exists, but as an element that can complement an overall architectural approach.