Designed to accommodate up to 660 students in nursing, healthcare assistant, and childcare assistant programs, the new Eure Paramedical Training Institute, developed by VIB architecture, reflects an alternative approach to public facilities: here, architecture actively stimulates learning and living conditions. Spanning approximately 5,000 m², the design encompasses all the necessary teaching spaces: a 242-seat auditorium, modular classrooms, simulation spaces, and common areas such as the resource center and student lounge.
Structured around vertical and horizontal lines, the dynamic configuration of the facades results in a layering of solids, voids, and projections that alternate according to their orientation. To the north, the sequence of large windows integrates harmoniously with the rhythm of the ring road and the adjacent residential buildings. To the south, the design incorporates a bioclimatic approach with exterior walkways, balconies, and horizontal projections of parking slabs, unified by a vertical grid of columns.
Overall, IFPE presents itself as a building that values its young users, without neglecting its surrounding landscape or contemporary environmental challenges. The intervention successfully intertwines the project's sensitive human dimension with the surrounding environment and living systems.

Eure Paramedical Training Institute (IFPE) by VIB architecture. Photograph by Cyrille Lallement.
Project description by VIB architecture
A school attentive to living systems
Training for healthcare professions implies designing a place capable of supporting demanding learning processes, intense work rhythms, and a daily relationship with people. In Évreux, the new Eure Paramedical Training Institute (IFPE) embodies this ambition through architecture that integrates state-of-the-art educational and technological facilities, attentive to its young users, its landscape context, and current environmental challenges, where the human dimension of the project is closely intertwined with landscape and living systems.
In the historic city center
Located on the Saint-Louis block in downtown Évreux, the IFPE occupies a former hospital site rich in ancient and medieval remains. The project marks the first phase of the site's transformation, integrated into the development of a mixed-use district with a strong landscape character, designed by the urban planners Philippon Kalt. Situated near Évreux Cathedral, the project was overseen by the Architect of Historic Buildings of France.
The relocation of the former nursing school contributes to revitalizing the city center by bringing students closer to shops and the new Saint-Louis park, which structures the heart of the block. The project combines within a single built volume the training institute and a 318-space parking structure, meeting the needs of students, teachers, and municipal services while limiting land footprint. Activity spaces totaling 800 m² located to the north contribute to neighborhood vitality. At the center of the project, a planted garden extends the Saint-Louis park and brings natural light into the heart of the building.
Architecture for two
The paramedical training institute and the parking structure are part of a U-shaped building whose architectural expression ensures unity while presenting differentiated façades according to orientation.
On the street side, to the north, the building asserts an urban presence aligned with both the rhythm of the ring road and neighboring residential buildings. The vertical composition and rhythm of large openings align with the scale of the surrounding urban fabric and signal the public function.
On the garden side, to the south, the architecture adopts a bioclimatic approach with external walkways, balconies, and horizontal projections of parking slabs, unified by a vertical grid of columns.
This architectural transformation allows the reconciliation, within a single volume, of the distinct logics of education and mobility. The parking, structured in split levels, is designed to evolve over time and extend the building’s lifespan. Its vegetated layers, generous school balconies, and terraced teaching spaces arranged in tiers establish a direct relationship with the landscape, offering views, outdoor extensions, and breathing spaces. Overhangs and balconies also protect glazed façades from solar exposure and help regulate summer comfort.
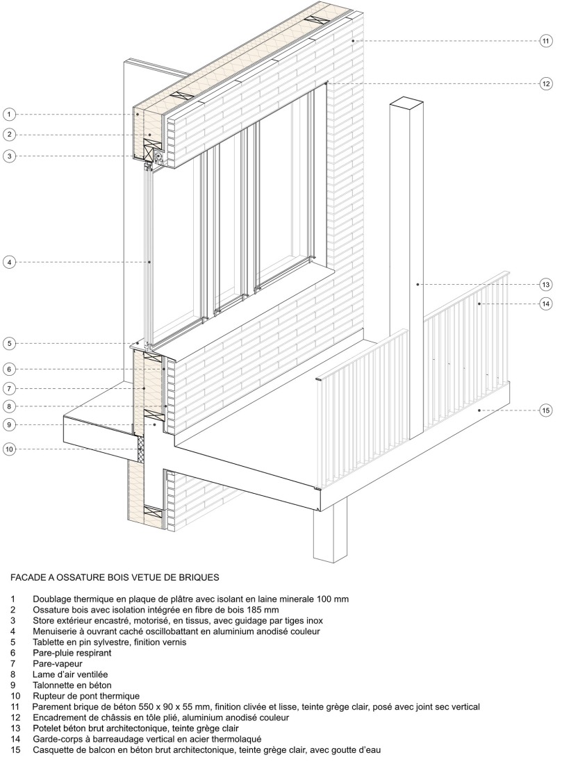
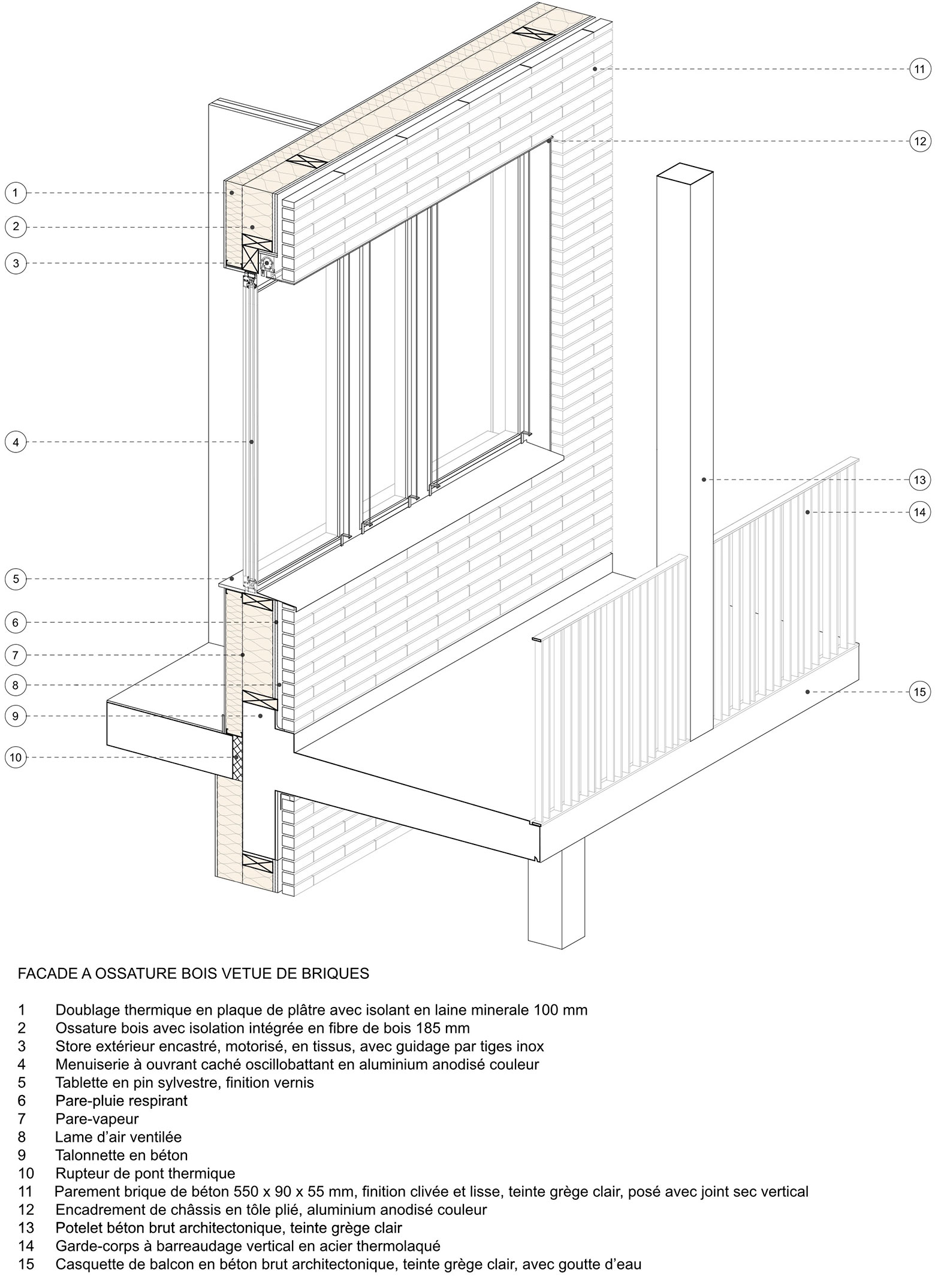
The façade design, structured by vertical and horizontal lines, organizes solids, voids, and relationships with the landscape in a dynamic composition. Large windows, solid spandrels, and walkways combine in a system where formal expression derives directly from functional, lighting, and climatic protection requirements. Stone panels, brickwork, or mashrabiya screens, as well as planters and continuous railings, introduce depth, vibration, and variation in scale. Here, functionality does not constrain aesthetics—it generates it.
An open public school
The new Eure Paramedical Training Institute is designed to accommodate up to 660 students across nursing, healthcare assistant, and childcare assistant programs. Developed over approximately 5,000 m², the building includes all spaces required for teaching: a 242-seat lecture hall, modular classrooms, simulation spaces, and shared areas such as the resource center and student lounge.
The school is organized around a central atrium filled with natural light, forming the true heart of the project, structuring circulation and connecting all levels, from the semiunderground lecture hall to upper teaching spaces. Open floor plates supported by 12.5 m prestressed beams allow great flexibility, accommodating large training areas as well as offices and specialized rooms.
Visible from the street through large openings, the lecture hall emphasizes the building’s openness to the city. Accessible in the evening, it can host external events and strengthen the institute’s role as a place of exchange.
An experimental materiality
The environmental design, part of a demanding approach, achieves Energy level 3 and Carbon level 1 under the E+/C- framework. Despite budget constraints, the project uses sustainable and bio-based materials from local supply chains.
Interior atmospheres favor natural materials and warm tones, contributing to the quality of learning spaces and daily comfort of students. Based on psychophysical parameters, classrooms feature large openings, raw earth brick partitions, and wooden acoustic absorbers. Custom furniture and didactic signage reflect attention to healthcare ergonomics.
The mineral façades are based on a palette inspired by the limestone tones of the Évreux region, referencing local soil, historical remains, and nearby heritage such as the cathedral and episcopal palace. Low-carbon concrete in natural shades, prefabricated concrete bricks, and Vernon stone create a durable materiality whose nuances catch the light and anchor the building in its environment.
Raw earth bricks, like the concrete bricks used in front of timber-frame façades, required Technical Experimental Assessment (ATEx), along with specific validation procedures during design and construction. Similarly, photovoltaic panels installed above green roofs are subject to ETN procedures and required extensive coordination with manufacturers and certifiers.
The building envelope is complemented by pre-greyed wood used for terrace decking and cladding on patio facades. Wooden screens and shading devices crown the top level and unify the building silhouette while supporting the energy and low-carbon strategy.
In symbiosis with nature
Although located in the city center, the project benefits from numerous views of surrounding hills. This relationship with the landscape extends into the landscape design: with more than 80 plant species, including 80% native and 40% local, the project is part of the BiodiverCity certification of the Saint-Louis district. Green roofs with substrates ranging from 30 cm to 110 cm promote biodiversity and improve summer comfort.
On the top floor, two planted patios bring vegetation close to administrative offices, offering calm spaces within a lively school. At the center of the site, students benefit from a sunny terrace and a ground-level garden organized around a landscaped swale promoting natural rainwater infiltration. Planted with tall trees, the garden visually rises along the parking facade toward large planters where climbing plants will eventually grow.
The combination of natural materials and medicinal and meadow vegetation anchors the IFPE in a tangible relationship between architecture, landscape, and daily use.
A language of well-being
The IFPE in Évreux illustrates a renewed approach to public facilities, where architecture actively contributes to learning and living conditions. Rather than an isolated object, the building establishes continuity with the city, landscape, and uses it accommodates.
Permeable and open, the building extends outdoor spaces into the lobby and distributes natural light throughout its core. This spatial organization enhances circulation clarity, environmental comfort, and daily quality of life.
Through the clarity of its volumes, precision of façades, and durability of materials, the project asserts a measured urban presence while developing a direct relationship with landscape and living systems. Designed to support demanding training and deeply human professions, the architecture provides a setting attentive to those who will care for others.