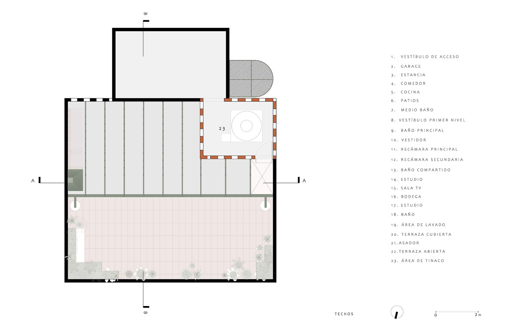
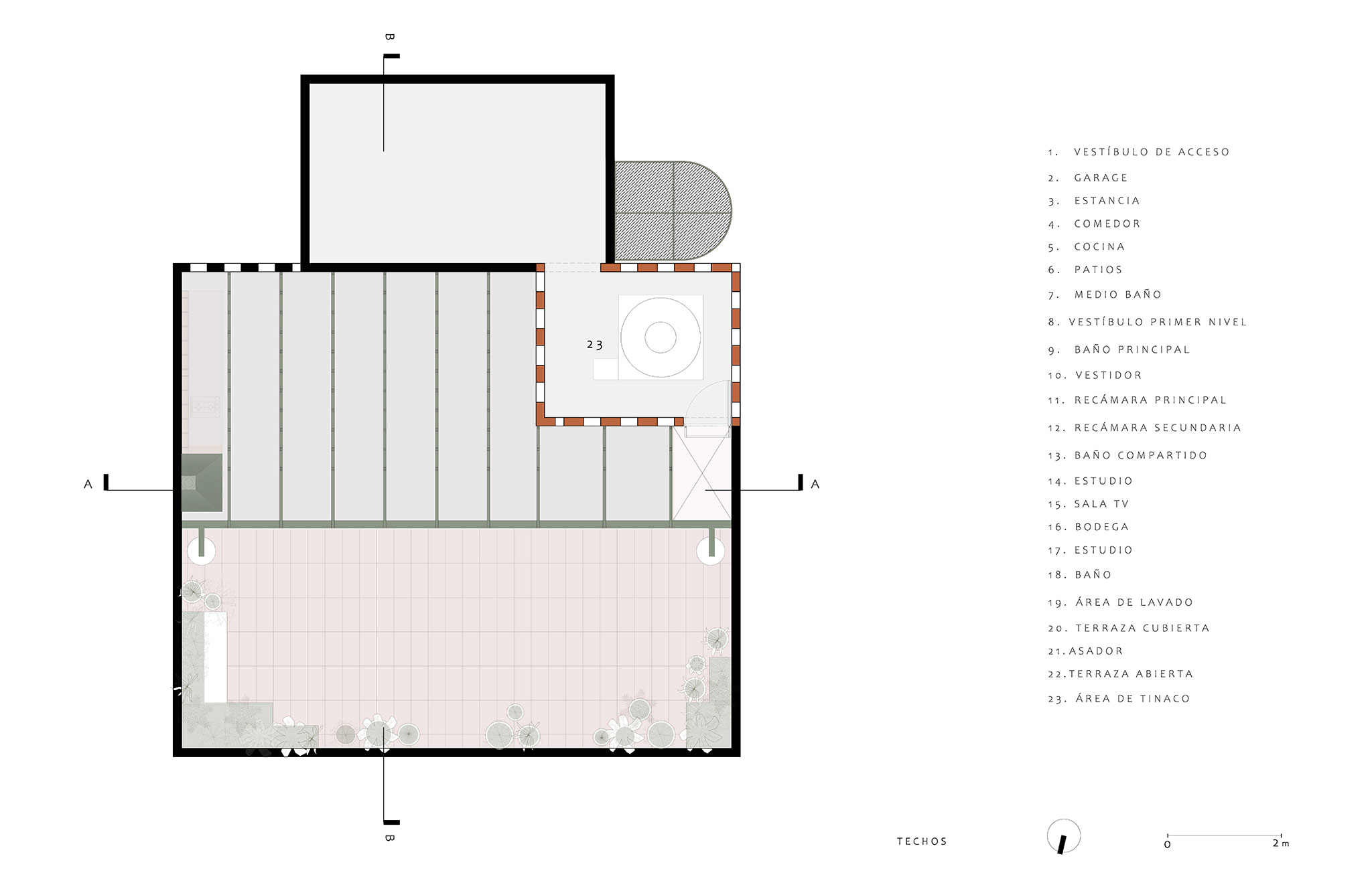
On the ground floor of "Casa Xoltic," designed by AMASA Estudio, the main entrance was reconfigured, integrating a continuous storage element that functions as a foyer and, in turn, connects the living and dining rooms. Regarding vertical circulation, a main staircase connects the ground and first floors, while access to the terrace is via a cantilevered steel staircase from the first floor, keeping the ground-floor patios completely open and unsupported.
On surfaces exposed to the elements or humidity, such as the facades, patios, rooftop terrace, kitchen, and bathrooms, the natural material "chakum" was used, acquiring texture, color, and material density. For the other spaces, smooth walls of domestic plaster were created. The project also introduced new openings and brick latticework, expanding visual connections and creating interior spaces illuminated with indirect light.

Xoltic house by AMASA Estudio. Photograph by Zaickz Moz.
Project description by AMASA Estudio
A House That Transforms Without Demolition: Contemporary Rehabilitation and Restructuring in Coyoacán
CASA XOLTIC begins with a conviction: in a city where real estate pressure is often resolved through demolition and replacement, recovering an existing house is itself an urban stance.
Located in Colonia Del Carmen, in the heart of Coyoacán, the original 1940s house retained a solid structure and clear domestic proportions, despite having undergone multiple alterations over time that fragmented its spatial logic. Rather than replacing it, the project proposes extending its life cycle through a deep restructuring that updates its structural, spatial, and technical performance in accordance with current regulations—without erasing its character.
On the ground floor, one of the key gestures was the reconfiguration of the entrance to restore privacy and transition between the street and the interior. A custom-designed millwork system integrates storage while acting as a vestibular device: a continuous wooden element organizes arrival, filters direct views, and establishes a clear threshold before entering the social areas. This piece articulates living room, dining area, and circulation, providing order and containment without additional walls.
The living room, dining room, and kitchen unfold as an open sequence toward the patios, enabling cross ventilation and visual depth. The kitchen, finished in cast-in-place terrazzo, functions as the spatial core of the level and as a connector between interior and exterior.
Reorganizing vertical circulation was one of the most significant moves of the project. The main staircase connects the ground and first levels, while access to the rooftop terrace is resolved through a new steel stair that cantilevers from the first floor, without supports touching the ground level. Anchored by a structural beam, this decision allowed the lower patios to remain fully open, eliminating intermediate columns and maximizing natural light. Circulation thus becomes a continuous system in which each level connects without interfering with the one below, and the terrace emerges as the natural culmination of the vertical journey.
The original north–south orientation resulted in interiors predominantly lit by indirect light. The architectural strategy introduced new openings, expanded visual connections, and incorporated brick lattice screens to allow east–west light to traverse the volume. The house shifts throughout the day: soft mornings, lateral brightness at noon, and warm reflections in the afternoon.
Materially, the project confronts a contemporary challenge: working with finishes that have been widely used in recent Mexican residential architecture, such as chukum and mineral plasters. Rather than representing a generalized urban condition, the repetition of these materials has led to a certain homogenization of architectural and interior expression, where similar surfaces appear in houses, cultural centers, or commercial spaces without a clear relationship to context. In many cases, new architecture could be located almost anywhere.
Coyoacán, by contrast, has long been defined by color. Iconic references such as the Casa Azul demonstrate how color operates as urban identity. From the outset, we were interested in engaging with that chromatic memory. The client requested the use of chukum as the primary finish, and the process evolved into an active dialogue: decisions about contrast and materiality were developed collaboratively, seeking balance between local identity and contemporary expression.
A key decision was to delimit the material. Chukum was not used as a dominant finish throughout the house, but rather in surfaces directly exposed to exterior conditions or humidity: façades, patios, and the rooftop terrace—as an open extension toward the city—as well as bathrooms and kitchen. In the remaining interior spaces, smooth, domestic plaster walls create a more contained, livable, and distinctly urban atmosphere.
This differentiation establishes a clear logic: surfaces exposed to weather or water assume texture, color, and material density, while dry spaces prioritize continuity and calm. In this way, chukum ceases to function as a totalizing stylistic gesture and becomes a strategic resource, applied where its technical and sensory qualities are most meaningful.
The soft pink tone was selected for its luminous qualities in a temperate climate and its dialogue with the neighborhood’s vegetation. Its warmth contrasts with the green chosen for the original ironwork—carefully restored and complemented with new custom pieces—producing chromatic variations throughout the day. As light shifts, the surfaces change, anchoring the house to its specific environment and avoiding a generic image.
All elements—millwork, ironwork, terrazzo, brick screens, and finishes—were specifically designed for the project and executed on site by Mexican artisans. Beyond aesthetics, this reflects a constructive position: privileging manual processes, durable materials, and local craftsmanship that allow the house to be maintained, adapted, and repaired over time.
CASA XOLTIC rescues, reorganizes, and extends the life of an existing structure, demonstrating that rehabilitation is not a secondary alternative to new construction, but a conscious way of making city through memory, craft, and adaptation.