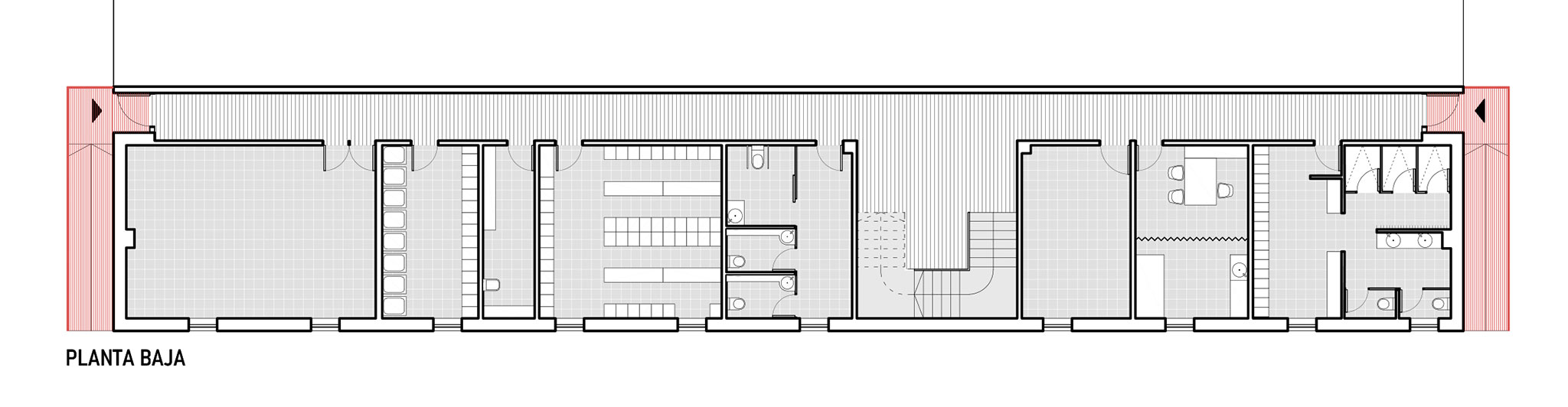
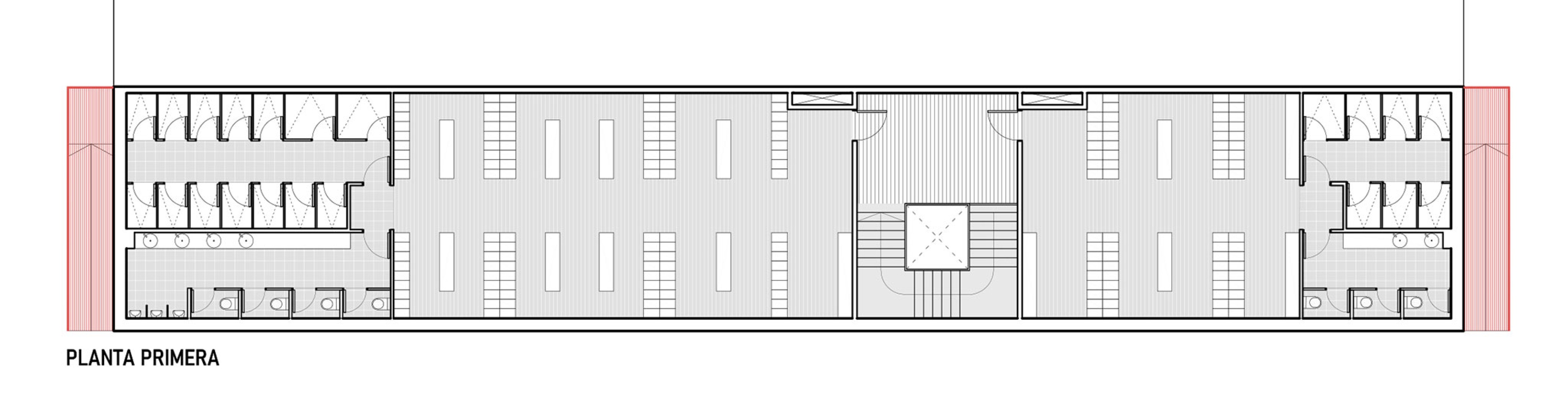
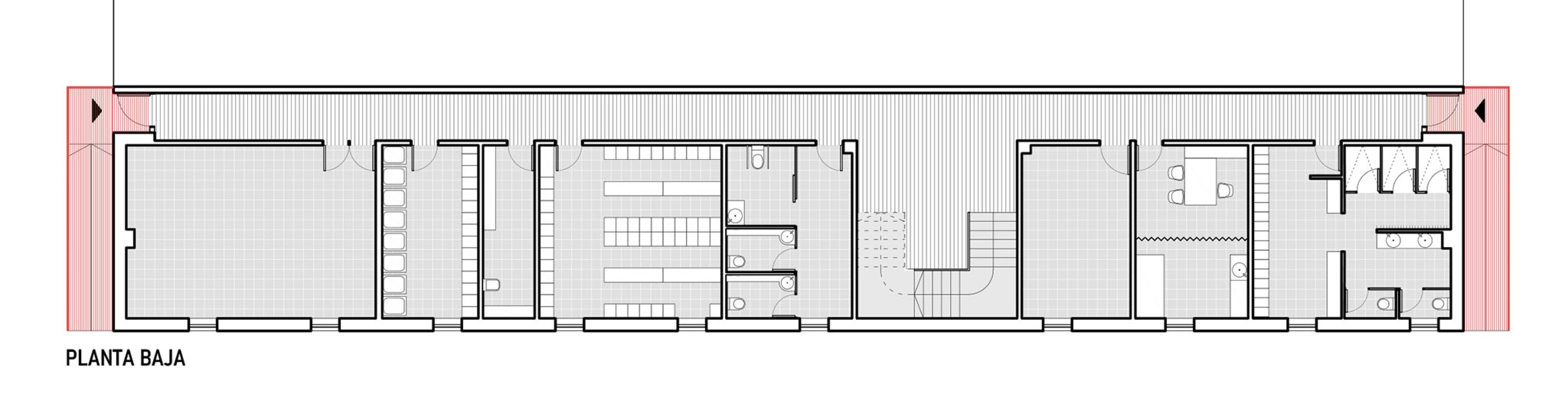
As a premise, the industrial complex developed by Martín Lejarraga is structured around the idea of functional efficiency: the program layout strives to optimize circulation routes to improve the company's operations. To the north, the new service pavilion houses the changing rooms and general support spaces, which are essential to the company's operations. To the south, the administrative heart of the complex repurposes and complements the old service building, resulting in an office complex that effectively meets contemporary usage requirements.
The white ceramic cladding on the exterior not only enhances the project's energy efficiency but also creates a homogeneous, continuous image that unifies the complex. As a complement, a red metal cornice crowns the buildings, underscoring and reinforcing HTBA's corporate identity.

HTBA office and services complex by Martín Lejarraga. Photograph by David Frutos.
Project description by Martín Lejarraga
The HTBA office and services complex represents a milestone in the evolution of the Beniel orchard industrial plant, organically reflecting the identity and values of a company with over 40 years of experience in the citrus flavonoid and active forms of vitamin B12 sector.
The architectural design is structured around functional efficiency, optimizing production flows, conceived as an assembly line that precisely organizes the flow of people and materials. This organization not only improves operations but also establishes a fluid relationship between the different elements of the complex, where each space responds to a logic that facilitates both circulation and work.
The intervention, acting as an architectural interface, is distributed across two buildings located on either side of the access control point, creating a built facade that, beyond its practical function, also reinforces the company's corporate identity.
At the main entrance, located on the road connecting Beniel with La Zeneta, a large red canopy, HTBA's signature color, structures the circulation within the facility. This element becomes a key visual feature, serving as a landmark and orientation point for users.
The buildings, with their ventilated facades clad in white ceramic tiles, contribute to the overall efficiency and continuity of the complex. A red metal cornice that runs the length of the buildings underscores the corporate identity, achieving a homogeneous and distinctive image that blends seamlessly with the industrial surroundings.
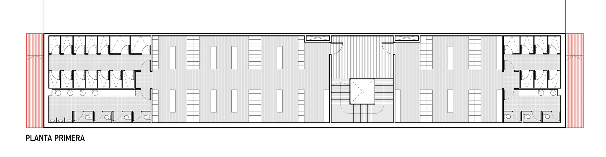
To the north of the access control point, the new pavilion houses the changing rooms and general services, crucial to the complex's operation. It serves as the beginning and end of the workday for employees. Its design not only facilitates internal circulation but also provides a functional environment that prioritizes employee well-being, incorporating ergonomic solutions that enhance user comfort and comfort. This approach, so relevant to the complex's internal organization, reinforces the layout of the spaces that complement the work environment.
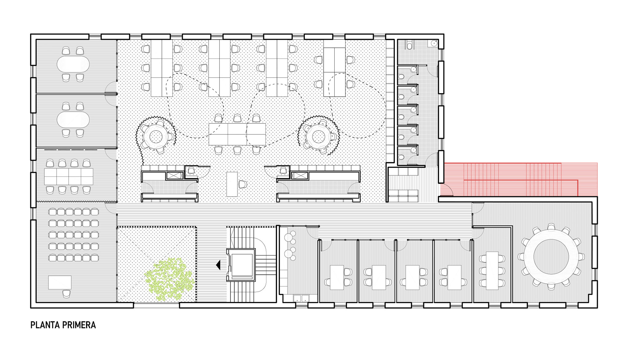
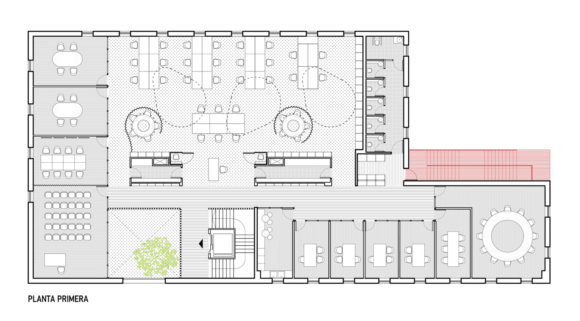
To the south, the office pavilion, which repurposes and expands the former service building, serves as the administrative heart of the complex. Maintaining the original structural elements, the renovation complements it with new construction systems and installations that make it fully operational, returning it to use and enabling it to meet contemporary needs.
Its entrance is marked by an orange tree, HTBA's signature tree due to its strong association with citrus flavonoids, which leads visitors into a spacious, double-height lobby. This space acts as a visual and functional connection point between the two office levels, fostering an open and collaborative atmosphere.
The workspaces have been designed to encourage interaction and teamwork, using materials efficiently and sustainably that contribute to acoustic and visual comfort, creating an environment that is not only efficient but also welcoming and comfortable.
This comprehensive approach, which combines typological innovation, efficient construction solutions and an organization that enhances functionality, makes the HTBA complex an example of service architecture that not only responds to the company's operational needs, but also promotes the well-being of its inhabitants, merging aesthetics, efficiency and comfort in the same space.