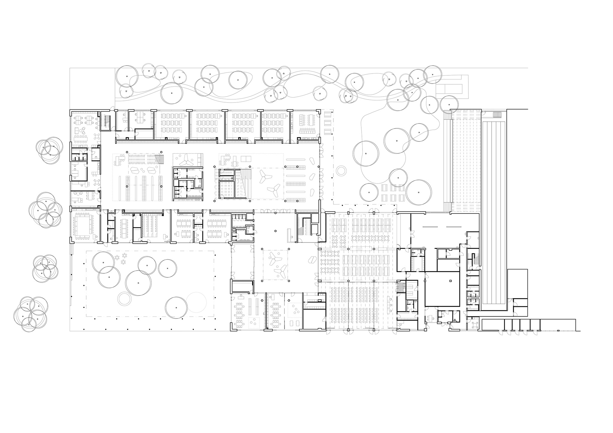
The VIDA Elementary School project, designed by OVA, is organized around two courtyards that evoke the image of open arms. The first, facing the village, serves as the public entrance and a community meeting place. The second courtyard, open to the interior of the school grounds, creates a sheltered space where children can actively relax or hold social events.
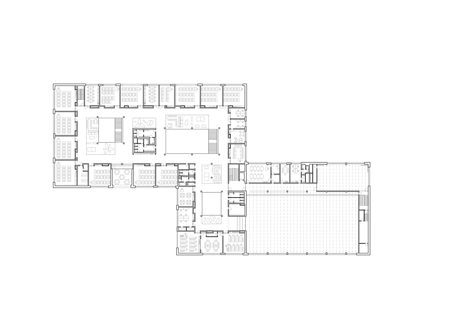
Operationally, the building accommodates two main modes of use: in the morning, dedicated to teaching activities, and in the afternoon, when part of the school opens up for leisure and community use. The classrooms are arranged around a common space articulated by three atriums and offer diverse furniture configurations, fostering different modes of concentration. The roof, designed for both play and learning, completes the rich interior environment where children and teenagers find their own learning space.

VIDA Elementary School by OVA. Photograph by Alex Shoots Buildings.
Project description by OVA
The design for the new school in Chýně is based on a contemporary, modern approach to education. The school’s shared spaces — both interior and exterior — play an equally important role in the learning process as traditional classrooms. Informal learning can take place in alcoves along corridors, while small nooks provide opportunities for quiet conversation.
Study rooms offer various seating arrangements, supporting different modes of concentration. The roof is designed for both play and learning. Thus, the school offers a rich internal world in which both young pupils and teenage students can find their own place.
The building serves not only for primary education but also accommodates afternoon programs — extracurricular activities for pupils as well as educational and sports activities for adults.
The elongated, sloping site lies near the center of Chýně, a rapidly growing municipality close to Prague. Significant residential development is expected in the surrounding area. For some time, the new school may stand alone on the field at the edge of the locality, but eventually it will become an integral part of the built structure of the town. One of the design objectives was to handle both conditions — the temporary isolation and the future urban integration — and to provide the site with a clearly defined and comprehensible public space.
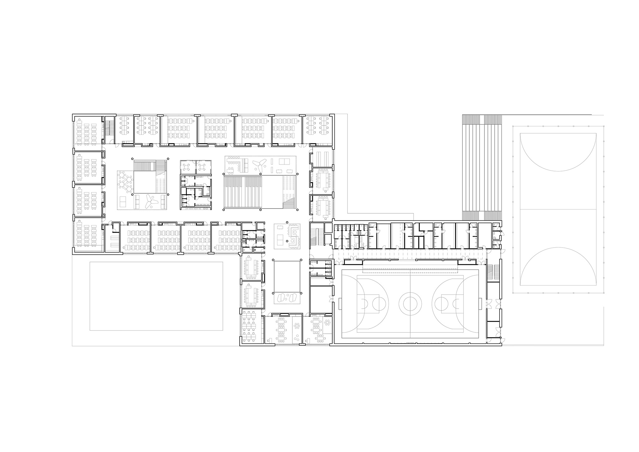
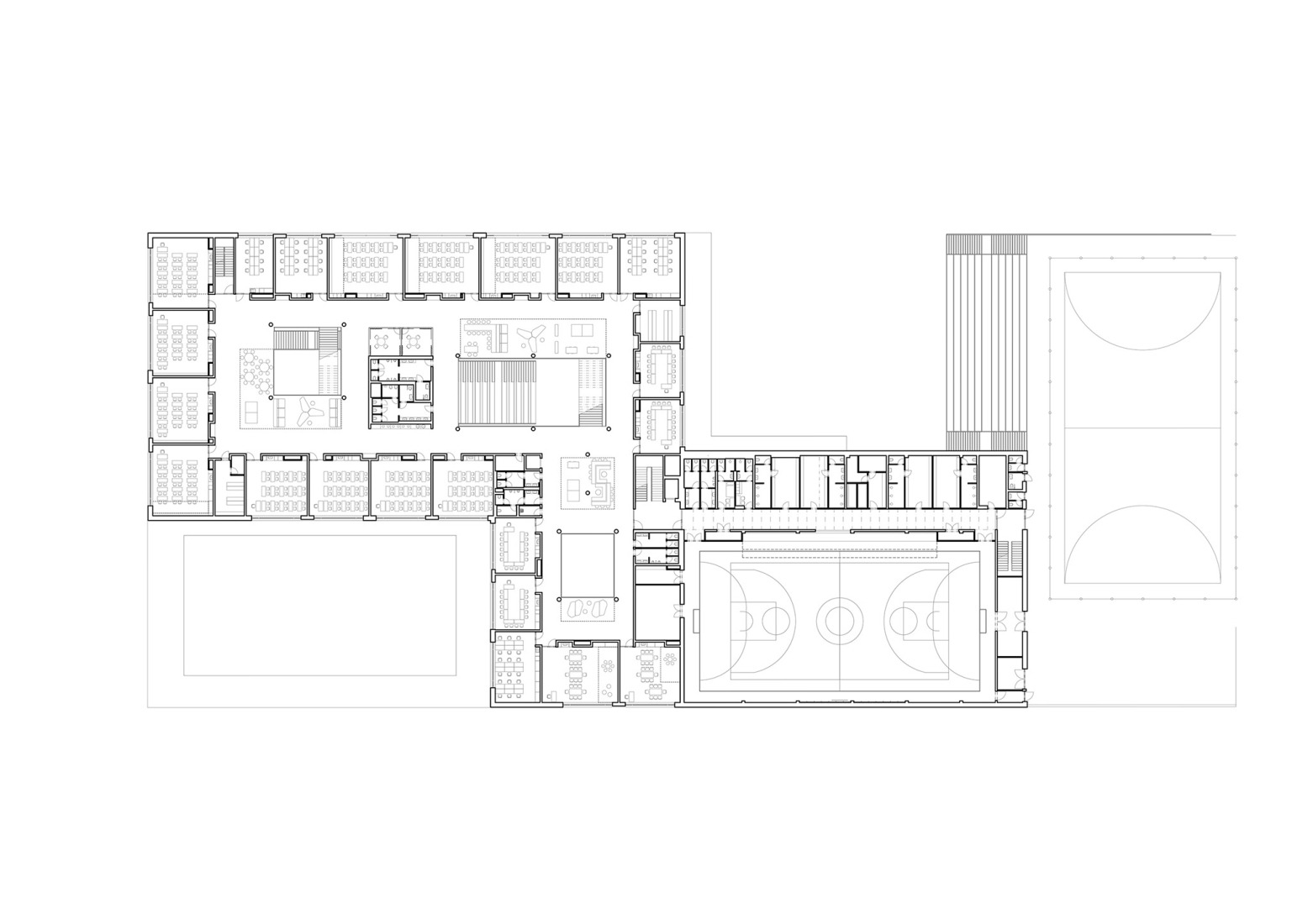
The concept of two courtyards — one public and one private — defines the building’s basic layout. The northern part contains classrooms and the main communal space, while the southern part accommodates sports facilities, an auditorium, and the necessary supporting areas.
The school has three storeys, with its height composition responding to the slope of the terrain. Direct access to the site is possible not only from the ground floor — when arriving from the town center — but also from the first floor, which connects to the sports complex. On the third floor, an outdoor classroom is proposed, ensuring direct access to the exterior from each level. The roof includes an outdoor terrace, classrooms, and planting beds for gardening activities.
The building can operate in two main modes. During the morning teaching regime, the entire facility is fully open and utilized. In the afternoon, a reduced operational mode allows public access only to selected parts of the building — spaces for clubs, the library, the gymnasium, and the multipurpose hall, which can also host occasional cultural events connected to the canteen area.
The school grounds are arranged on two primary height levels within the sloping terrain: the first corresponding to the school’s main floor with its two courtyards, and the second forming the sports complex one level higher.
The sports complex includes several fields: an athletic track with an integrated football pitch, with support facilities, an athletic tunnel, and a refreshment area along its eastern side. Spectator areas are provided both on benches at track level and on the roof of the facilities building, which forms a grandstand. A secondary training field is located between the school and the track and is also accessible during school breaks.
The entrance courtyard serves pupils, visitors to afternoon programs, and the general public. It includes lounging platforms for teenagers and sports surfaces for younger pupils. The second courtyard features outdoor dining tables extending the canteen’s capacity. It also provides space for play during recesses and leisure between afternoon activities. Play structures, soft surfaces for jumping and running, a rope pyramid, and other equipment are integrated into this area. Access to the inner courtyard is possible from the school hall, the canteen, and the practice kitchen.
The school is designed to meet the energy performance class A. Heating is provided by heat pumps, and all spaces are equipped with controlled mechanical ventilation, while each occupied space can also be naturally ventilated through operable windows. The overall energy balance is enhanced by photovoltaic panels on the roofs of both the main school and the sports building, as well as by external shading, and high-quality thermal insulation.
The building’s structure is reinforced concrete with masonry infill, contributing to the thermal mass and stability of the building. The exterior façade is clad in ceramic elements. Roof canopies along the façade and planted “tree nests” help to prevent the formation of heat islands.