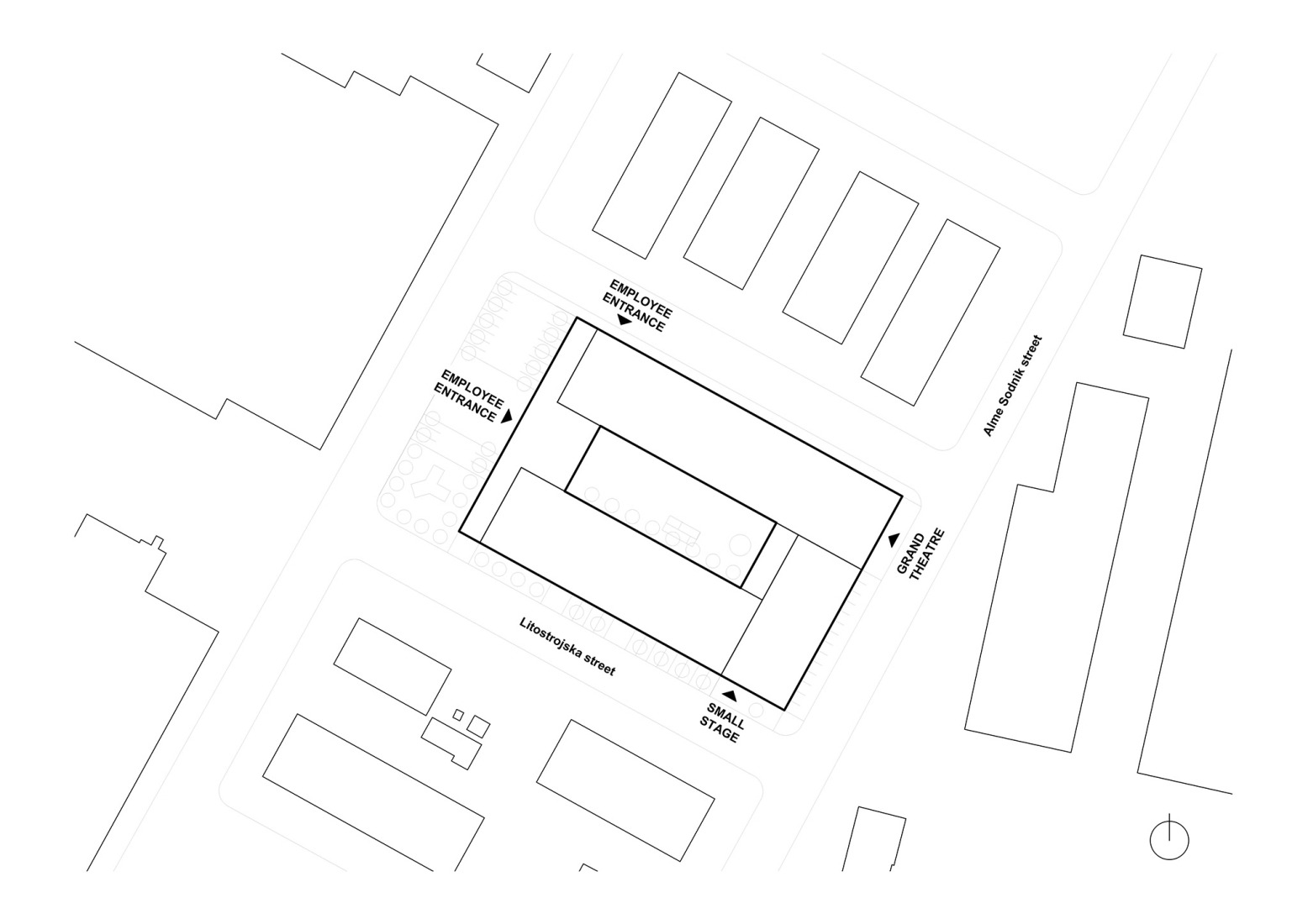
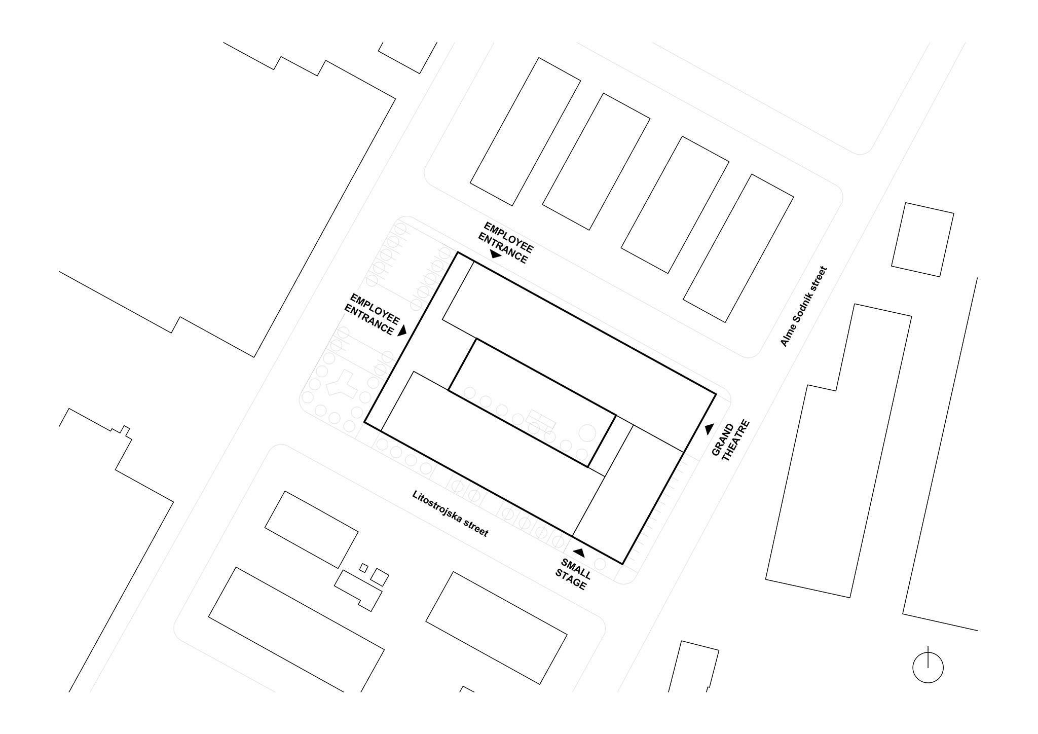
The temporary spaces for the historic Slovenian National Drama Theatre, designed by Vidic Grohar Arhitekti, include the 361-seat Main Stage auditorium with an adjacent foyer, a bar with a box office, and an open terrace overlooking the inner courtyard. There is also a smaller, 100-seat Theatre Hall with a foyer, service and technical rooms, two rehearsal rooms, and a pavilion with a bar facing the inner courtyard.
The temporary structures were built using recycled materials. Large cross-laminated timber (CLT) panels were chosen for the Main Stage. Exposed concrete was used for spaces such as the Main Stage entrances, the smaller theatre hall, the pavilion with its bar, and the public terrace, which will be reused once the temporary theatre has ceased operating in the historic building.
The project is one of the 40 selected for the EUmies / Mies van der Rohe Awards 2026.

Temporary Spaces for Slovenian National Theatre Drama by Vidic Grohar Arhitekti. Photograph by Maxime Delvaux.
Project description by Vidic Grohar Arhitekti
The temporary spaces of the Slovenian National Theatre Drama Ljubljana are located in a complex of former industrial halls from the 1960s, in the Litostroj area of Ljubljana, Slovenia. An important public cultural program activates the gray zone of the city and thus, as in similar situations in other European capitals, “expands” the city center. By establishing a new programmatical center on the fringe of the city, the project is also socially inclusive. A series of low-budget interventions, in a short period triggered the transformation of an abandoned industrial into a new public building
The goal of the project was to establish and organize temporary spaces for the entire program of the main Slovenian theatre in historical industrial buildings, within a limited budget, within 10 months, with a sustainable spatial and material definition. The new architecture creates a specific character within the generic context of the business-industrial zone. The first trigger for programmatic and ambiental changes at the location was a small bar (2017), which was joined by a sports program (2018), a contemporary business program (2020), and a fair and entertainment program (2022), which developed the location to the point that it became potentially interesting for hosting a large cultural institution. The Temporary SNT Drama includes the central hall of the Big Stage (361 seats), adjacent lobby, a public bar with a ticket office and an open terrace in the inner courtyard, the Small Drama hall (100 seats) with a lobby, belonging service and technical rooms, two rehearsal halls, a “pavilion” with an bar for employees that opens onto the inner courtyard.
The temporary architectural interventions in the historic structure are made of materials that are recycled or reusable, with the aim of creating as little waste as possible. The large-sized cross-laminated (CLT) wooden panels used to construct the Grand Stage are made of thermally and acoustically suitable material, and enabled quick and precise execution, and after changing the content, they can be easily dismantled and will be reused for the construction of a new building. The parts of the building that will be in use later, after the SNT Drama ceases to operate on the site - “public infrastructure” - are made of durable material - exposed concrete: entrance parts of the Grand Stage and the Small Drama, the “pavilion” with an internal bar and a public terrace. The spatial design and material definition of the project creates diverse environments that create a recognizable image of the new theatre.