For its construction, Team_BLDG employed traditional building techniques, using durable materials and methods that simplify details to the maximum, guaranteeing a high level of finish. In this way, the guesthouse effectively manages the relationship between old and new, seeking a delicate balance between preservation and intervention.
"The Catcher" thus presents itself as an adaptive reuse project with a strong emphasis on nature, memory, and the essence of the place. While it effectively meets the needs of contemporary accommodation, its main aspiration lies in creating a space where rural hospitality fosters a deep connection between people and the land.

East Elevation. The Catcher guesthouse by Team_BLDG. Photograph by Hu Siyuan.
Project description by Team_BLDG
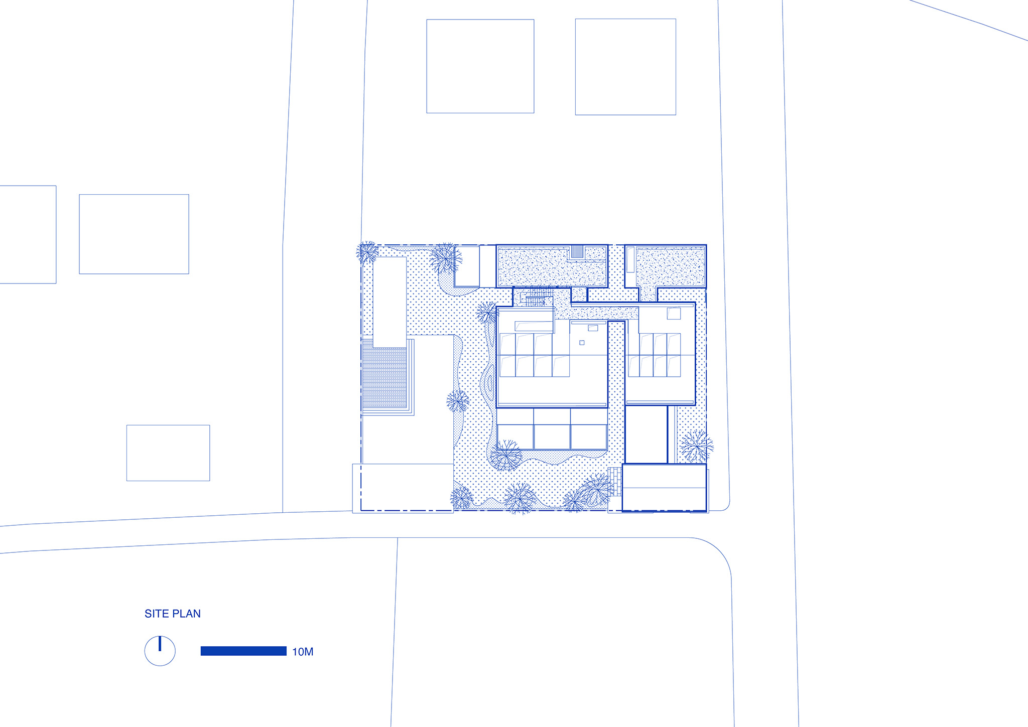
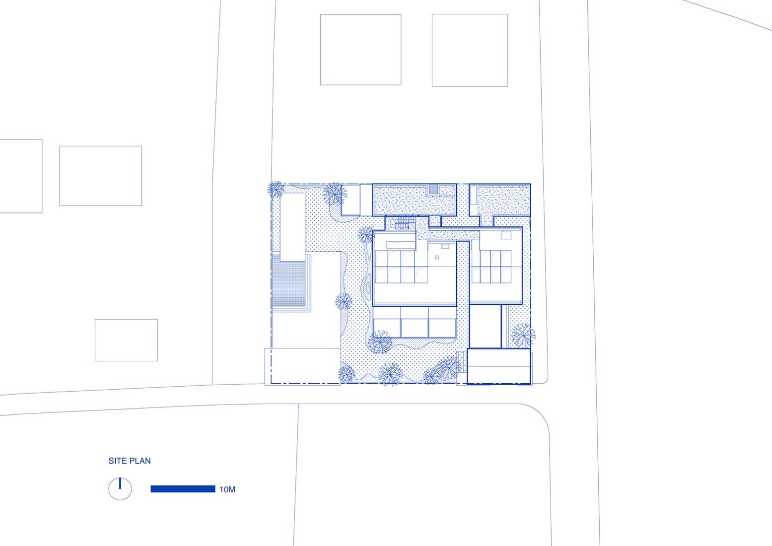
The Chunli Guesthouse project is located near the ancient town of Xinchang in the suburbs of Shanghai. Upon first arriving at the site, the vast expanse of rice fields was refreshing and delightful. The boundless scenery and natural ambiance of the fields became the inspiration for the design, setting the tone for the project's symbiotic relationship with nature.
Unlike the many predetermined constraints of branded guesthouses, the owner of Chunli Guesthouse preferred to grant greater freedom to the designers. During the initial discussion, the owner only verbally outlined basic requirements: meeting the number of rooms and functional needs of public areas while making full use of outdoor and rooftop terrace spaces.
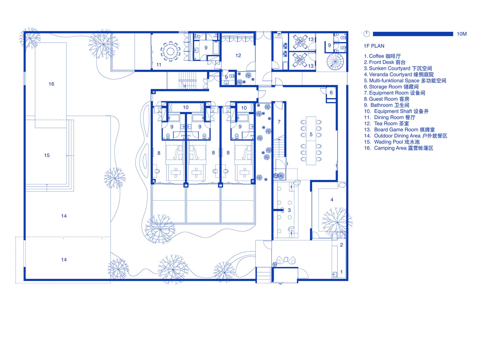
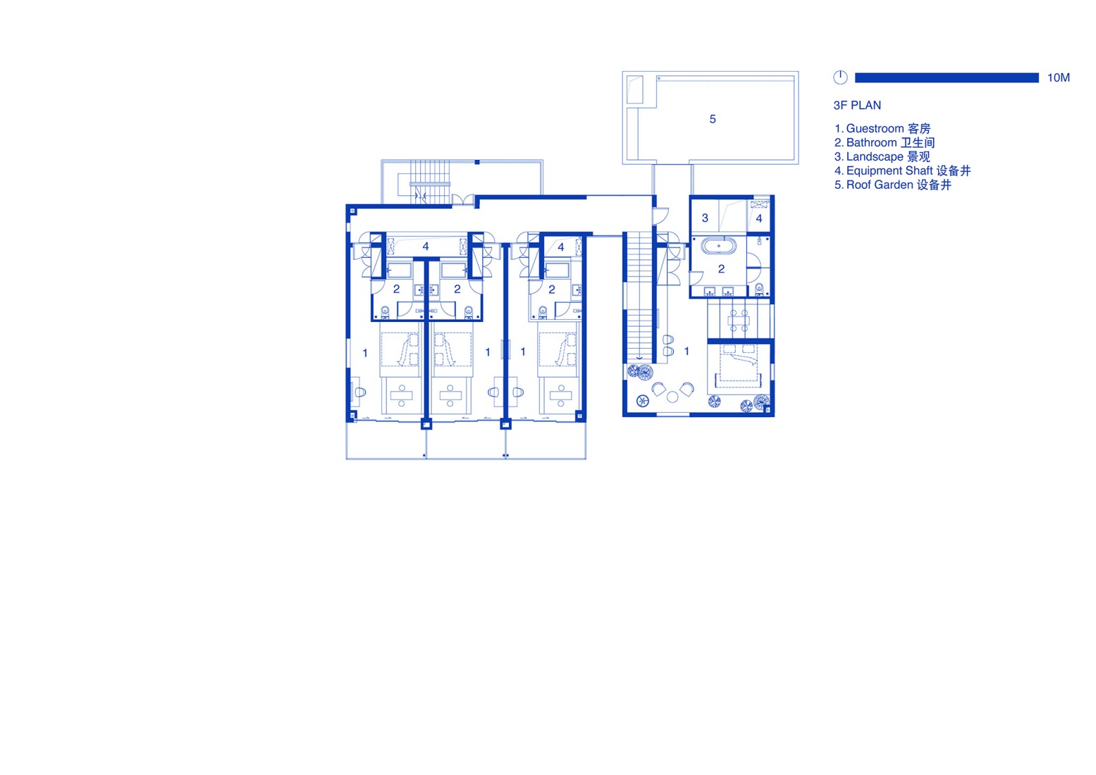
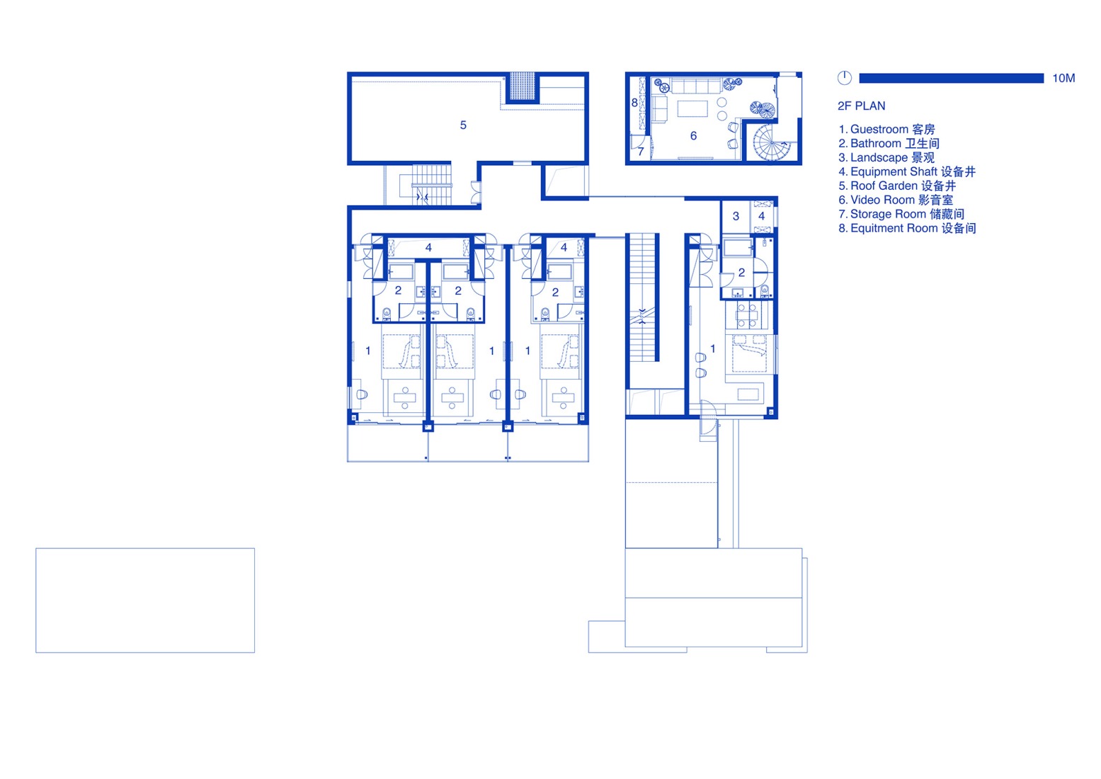
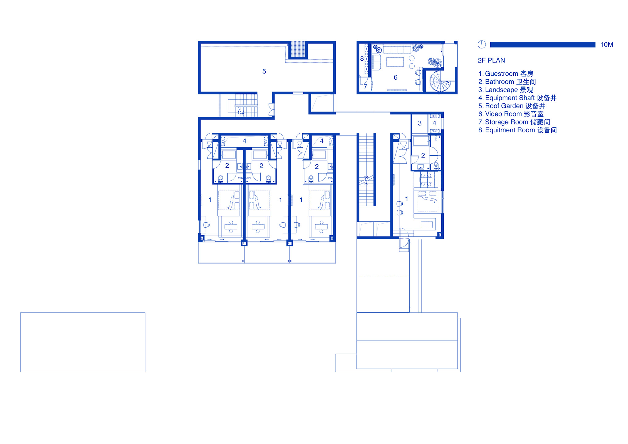
The original structures consisted of two independent self-built rural houses, whose forms and interior spaces could not meet the functional demands of a modern guesthouse. While preserving the original structures, we aimed to avoid extensive modifications, instead adapting to the existing conditions to create a guesthouse with 11 guest rooms and composite functions such as a banquet hall and mahjong room.
Moreover, as a natural, "unforced" rice field guesthouse, the corresponding design needed to be flexible enough to accommodate the uncertainties often encountered in renovation projects, such as approval processes and construction challenges, striving to balance practical conditions with ideal aspirations.
«The Catcher», connected with nature
The design takes "Catching" as its spiritual core, emphasizing the relationship between the architecture and the surrounding rice field landscape. Under the premise of controllable costs, the design retained as much of the original structure as possible, including the gable-roofed bungalow with a wooden structure at the entrance. At the same time, through connections, framed views, and the interplay of indoor and outdoor spaces, the building becomes an integral part of the natural environment. Like a "Catcher in the field," it stands unique yet reassuring.
The design uses circulation as the core organizing principle for the spaces, making movement through the building an engaging experience in itself. First, a perimeter wall integrates the two buildings and courtyards into a unified site. Then, three architectural volumes are inserted into three corners of the rectangular site as "connectors," housing public functions such as the lobby, pavilion, and banquet hall. This strategy not only clarifies the logical relationship between public and private areas but also effectively links indoor and outdoor spaces.
Additionally, following the original terrain, a sunken seating area was created in the lobby, forming a unique visual dialogue with the small courtyard while introducing natural light and garden views into the interior, thereby enriching the layers of the semi-outdoor space.
Old and New, Balancing Preservation and Intervention
In the renovation, the designers carefully handled the relationship between old and new. For example, the old gable-roofed house at the entrance, though slightly different in style from the other new volumes, was largely left unchanged, with only the original roof replaced with aluminum-magnesium-manganese panels for safety reasons.
New interventions also adhered to the principle that "every intervention has a reason." For instance, the landscaped view outside the window of the guest room soaking area was not merely decorative but also served to cleverly conceal unsightly pipes running along the wall, reflecting the design's pursuit of authenticity and integrity.
Like most old building renovation projects, Chunli Guesthouse faced challenges such as tight budgets and the need to adapt to local construction standards. By adopting a fixed furniture system, multiple functional needs in the guest rooms were integrated and addressed, effectively reducing overall costs. At the same time, the design process fully considered local construction techniques, simplifying construction details as much as possible and selecting materials and methods that are easy to implement and durable, ensuring a high level of completion for the design concept.
"Catcher in the Field" is TEAM_BLDG's response to nature, memory, and the spirit of place. We hope that, beyond meeting functional needs, this building can become a medium connecting people with the land, the past with the future, watching over both the soil and time itself.