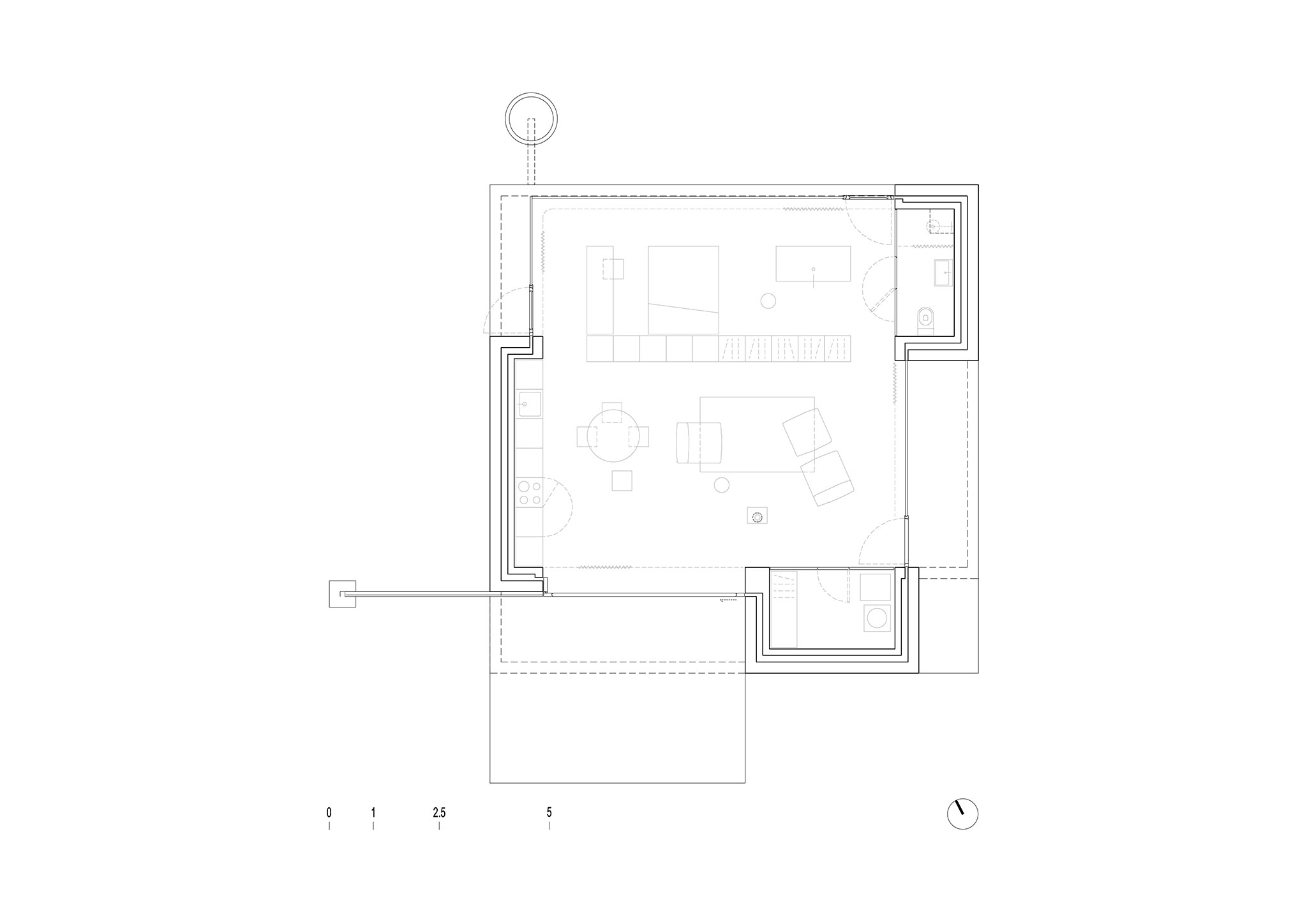
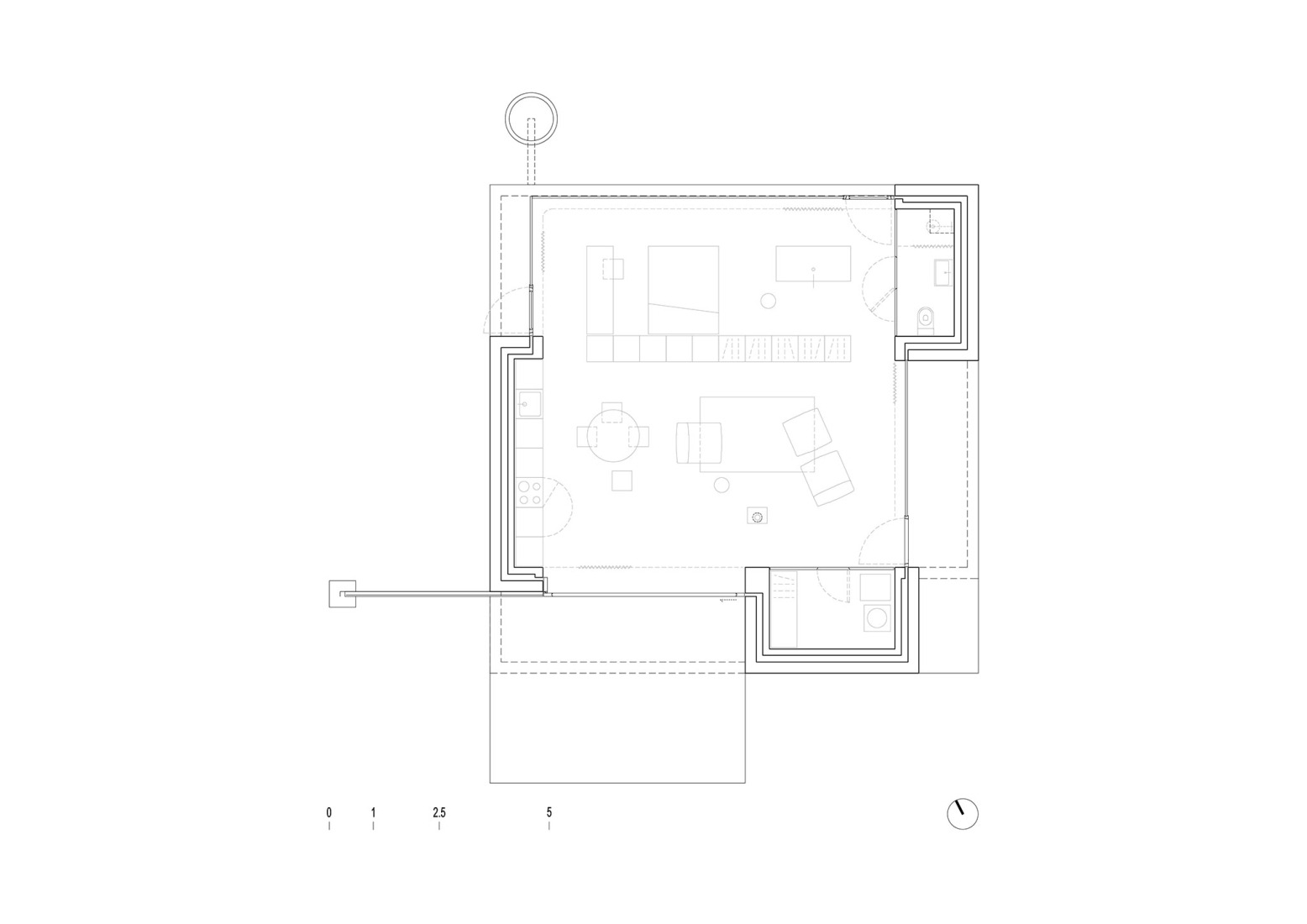
The house, designed by Skupaj arhitekti, is organized around three cores that support a flat concrete slab and house the bathroom, service areas, and kitchen. To the southwest, the living and dining rooms connect, opening onto the garden and terrace, while the bedrooms and work area face northeast for greater privacy. A long, double-sided storage wall separates these two zones.
In its construction, exposed concrete was used both inside and out, blended with local gravel from the Mura River, giving the surfaces a clean, understated character. Inside, polished concrete floors and built-in veneered chipboard furniture were chosen. In the northwest corner, a subtle structural fold in the roof creates a fully glazed corner, and on the southwest facade, a panoramic sliding wooden window takes center stage.

House on the Edge of the Plain by Skupaj arhitekti. Photograph by Ana Skobe.
Project description by Skupaj arhitekti
A modest house on the edge of the Murska Sobota plain reinterprets the idea of a pavilion in the greenery as a contemporary space for everyday living. Rather than seeking visual impact or formal expression, the project focuses on clarity, openness, and a close relationship with the landscape.
While the house adheres to strict urban planning requirements regarding location, dimensions, and height, it deliberately resists suburban conventions. Life is organized around the garden, light, and the changing seasons, continuing the local tradition of low-rise dwellings characterized by expansive glazing, deep overhangs, and fluid transitions between interior and exterior. This approach evokes Murska Sobota's modernist heritage while translating it into a contemporary spatial language.
The house is organized around three reinforced concrete cores that function as both structure and technical infrastructure, housing the bathroom, service areas, and kitchen. These cores support a flat concrete slab, allowing the remaining space to be completely open and flexible. The living and dining areas open onto the southwest garden and terrace, while the bedrooms and workspace face a more intimate northeast garden. A long, double-sided storage wall separates and connects these areas without disrupting the spatial continuity.
In the northwest corner, a subtle structural fold in the roof creates a fully glazed, load-bearing corner that dissolves the boundary between inside and out. A large sliding panoramic window in wood on the southwest facade further reinforces this connection, disappearing completely into a recessed steel structure and allowing the living space to merge with the garden during the warmer months.
Exposed concrete is used both inside and out, blended with local gravel from the Mura River to give the surfaces a smooth, mineral character. The concrete retains remnants of reused formwork, leaving textures, irregularities, and patina that introduce a sense of time and imperfection. Instead of acting as a neutral backdrop, the material becomes an active part of the architectural expression.
The understated approach continues inside, with polished concrete floors, built-in veneered chipboard furniture, repurposed chairs, and simple, prefabricated lighting fixtures. A compact cast-iron stove anchors the living space in winter, reinforcing the cozy atmosphere. Rather than presenting itself as an architectural object, the house is conceived as a spatial framework for daily rituals, light, and the changing seasons. With its emphasis on construction, the honesty of materials, and lived experience, the project offers a discreet alternative to image-driven residential architecture, balancing a rational structure with a sensitive and poetic relationship to the site.