Coldefy designed the building with a spacious wooden portico that shelters a pre-existing tree. The program is organized into two main blocks around a central courtyard with sports facilities, a children's playground, and parking. The main teaching block includes a Knowledge and Culture Center open to the local community, as well as a multi-purpose sports pavilion housed in a renovated 1906 railway garage.
The building boasts energy certifications thanks to its sustainable design, with a bioclimatic approach focused on energy efficiency, including a locally sourced biomass boiler, photovoltaic panels, and a rainwater harvesting tank.

Robert Badinter Secondary School by Coldefy. Photograph by Julien Lanoo.
“We’re so pleased to see Robert Badinter Secondary School full of students and activity. Designing a new building for community use in close dialogue with a site which carries a rich memory of industrial heritage was a fascinating process. We wanted to create a space that is open, useful, sustainable and generous – remaining true to the history of the place, while looking to the future.”
Isabel Van Haute, Coldefy Founding Partner.
Project description by Coldefy
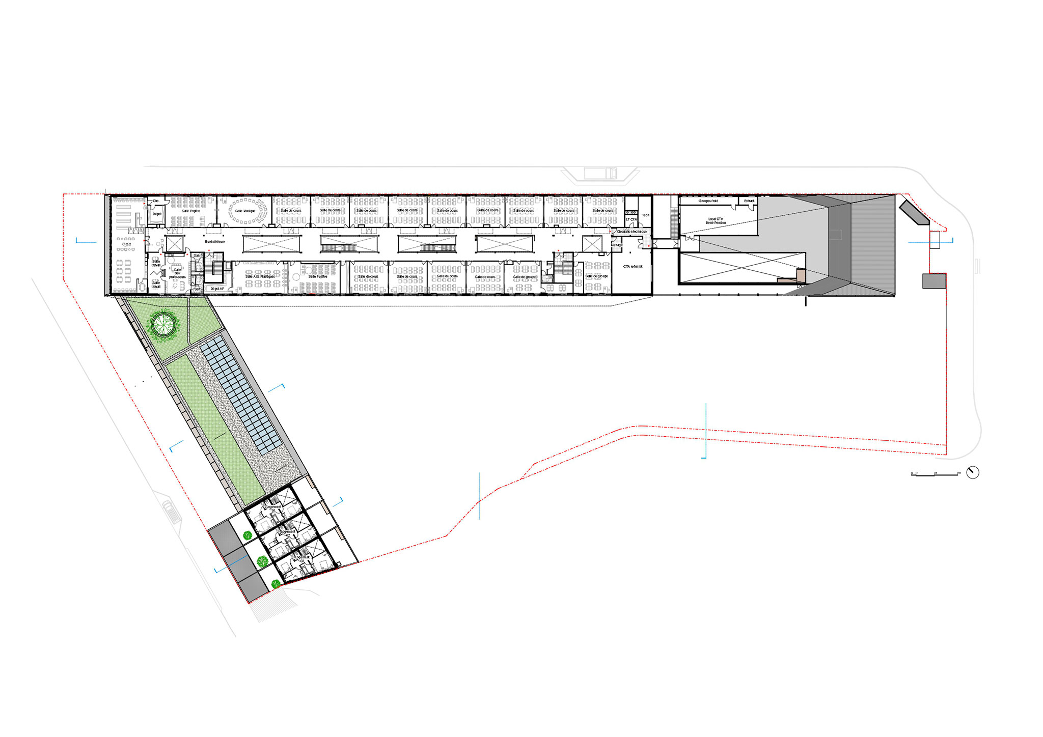
French architecture studio Coldefy, in collaboration with Relief Architecture, has completed the 650-pupil Robert Badinter Secondary School, the first timber-framed school in northern France. The school is located on a former railyard site, adjacent to the city’s train station and a ten-minute walk from the town centre. The design and location of the new school is part of an urban renewal project that seeks to create a consolidated public transportation hub complemented by lively civic amenities. Located on the site of the city’s Vauban fortifications moat, the site also contained catiches – subterranean chalk quarries – which had to be filled in to stabilise the ground prior to construction.
Designed as a public landmark, the building’s main cantilevered volume faces the 1858 train station and marks the entrance to the school with a generous timber porch that opens toward the city, before funnelling students through to a playground, gradually transitioning from public realm to protected space. A cut-out in the porch roof accommodates a pre-existing tree, symbolically rooting the new structure in its context. This two-storey teaching block lies parallel to a row of existing trees that runs the full length of the building plot and helps to create a welldefined streetscape as part of the wider urban regeneration. A lower volume contains a canteen and staff accommodation and is set back from the street with a landscaped area.
Together, the two blocks enclose a courtyard incorporating a playground, sports fields with a running track, and a 40-space staff parking area. Referencing industrial heritage, the main building’s offset double-pitched roof echoes traditional railway halls while asserting a contemporary character with its sustainable and resilient timber structure. Inside, the main teaching block includes an 80-seat Knowledge and Cultural Centre that is accessible from the street and which can be used by the local community outside of school hours. Its timber interiors echo the school’s warm, natural material palette and provides a calm environment for study and collaboration.
The school features a floor-to-ceiling open hall concept, with classrooms and staff facilities spread across both floors and an upper-level balcony overlooking the central double height hallway below. Skylights diffuse soft light into the circulation areas, creating a naturally lit shared space with a contemporary feel for movement between lessons. A covered walkway on the ground floor creates a sheltered outdoor connection between the teaching spaces, cafeteria, staff areas, and a covered playground, becoming a shared social space that enables gradual transition between the outside and inside. A large, south-facing roof overhang provides passive shading and reduces glare and solar gain in the summer months.
The single-storey cafeteria block opens onto landscaped gardens, with a glass frontage that connects students to nature at lunchtime. Even the parking area, discreetly positioned at the rear of the site and heavily planted, has been designed with long-term adaptability in mind, and could eventually accommodate an extension to complete the urban block. The elevation reflects the school’s internal layout and responds to orientation and function to allow for either openness or privacy, while the timber cladding embraces the modular nature of the school’s construction.
Across the street, Coldefy and Relief collaborated on a retrofit of the remaining portion of a 30 metre wide train shed, which was 150 metres long when completed in 1906. The structure, with its generous clear height has been transformed into a 934 square metre multi-purpose sports hall, featuring a meticulously restored red brick exterior and a contemporary light-filled interior clad in OSB panels, while revealing its elegant iron trusses. To maximise its public function, the sports hall is open to the rest of the community outside of the school hours.
Certified ‘Excellent’ under France’s High Environmental Quality (HQE) certification system, and holding a Low Carbon Building certificate, the project sets a high standard for sustainable design in an educational setting. Taking a bioclimatic approach to design, energy-efficient features include a biomass boiler fuelled by locally sourced pellets, which covers 80% of the facility’s heating needs, photovoltaic panels that provide 15% of its electricity demand and a rainwater harvesting tank that covers up to 50% of the water needed for bathroom facilities.