The new Capital International Exhibition & Convention Center (CIECC), designed by Zaha Hadid Architects, is conceived as "ribbons" that intertwine the different facilities and the central courtyard. The circulation routes for people, goods, and vehicles are separated to facilitate movement and avoid disruptions to the various concurrent events.
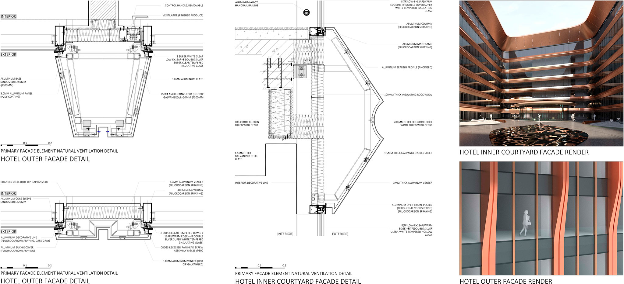
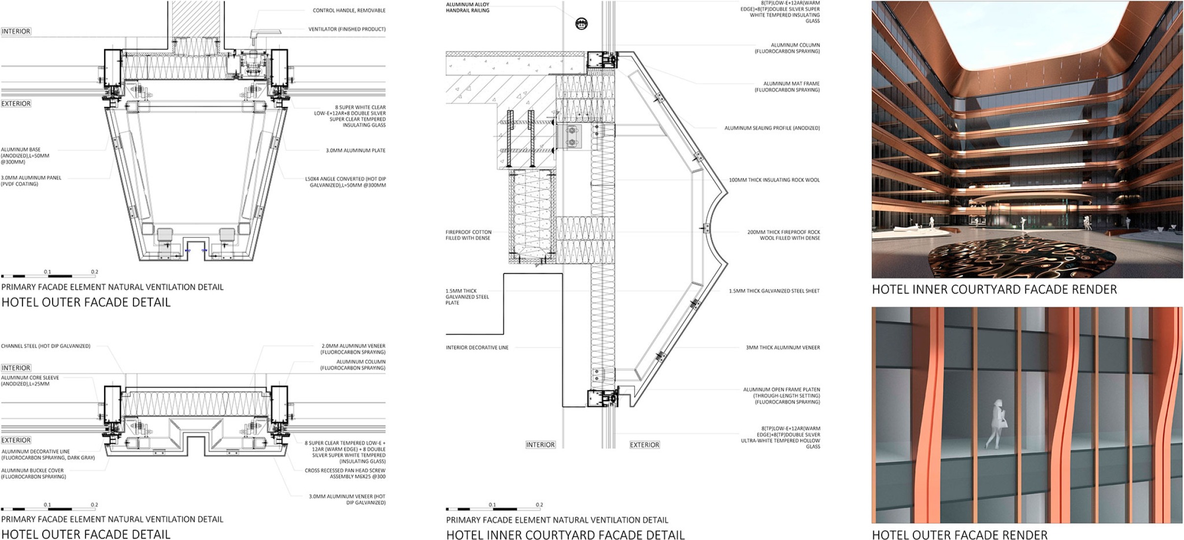
The composite roof system creates an isolated, lightweight, and large-span structure that frees up the floor plan. It is constructed in modules, minimizing time, investment, and costs. The fluid, pleated copper-colored façade features large, recessed metal panels.

CIECC by Zaha Hadid Architects. Photograph by Virgile Simon Bertrand.
The building has received China's highest sustainable building certification due to its reduced demand for water and energy from the city's supply, achieved through natural ventilation, rainwater harvesting and recycling, and on-site photovoltaic energy generation.
Project description by Zaha Hadid Architects
A leading centre of commerce, culture and government, Beijing has seen significant growth in the city’s service and digital technology industries. This continued expansion of Beijing’s corporate sectors has increased demand for the city to host conventions, international conferences and industry expos attended by delegates from throughout China and around the world.
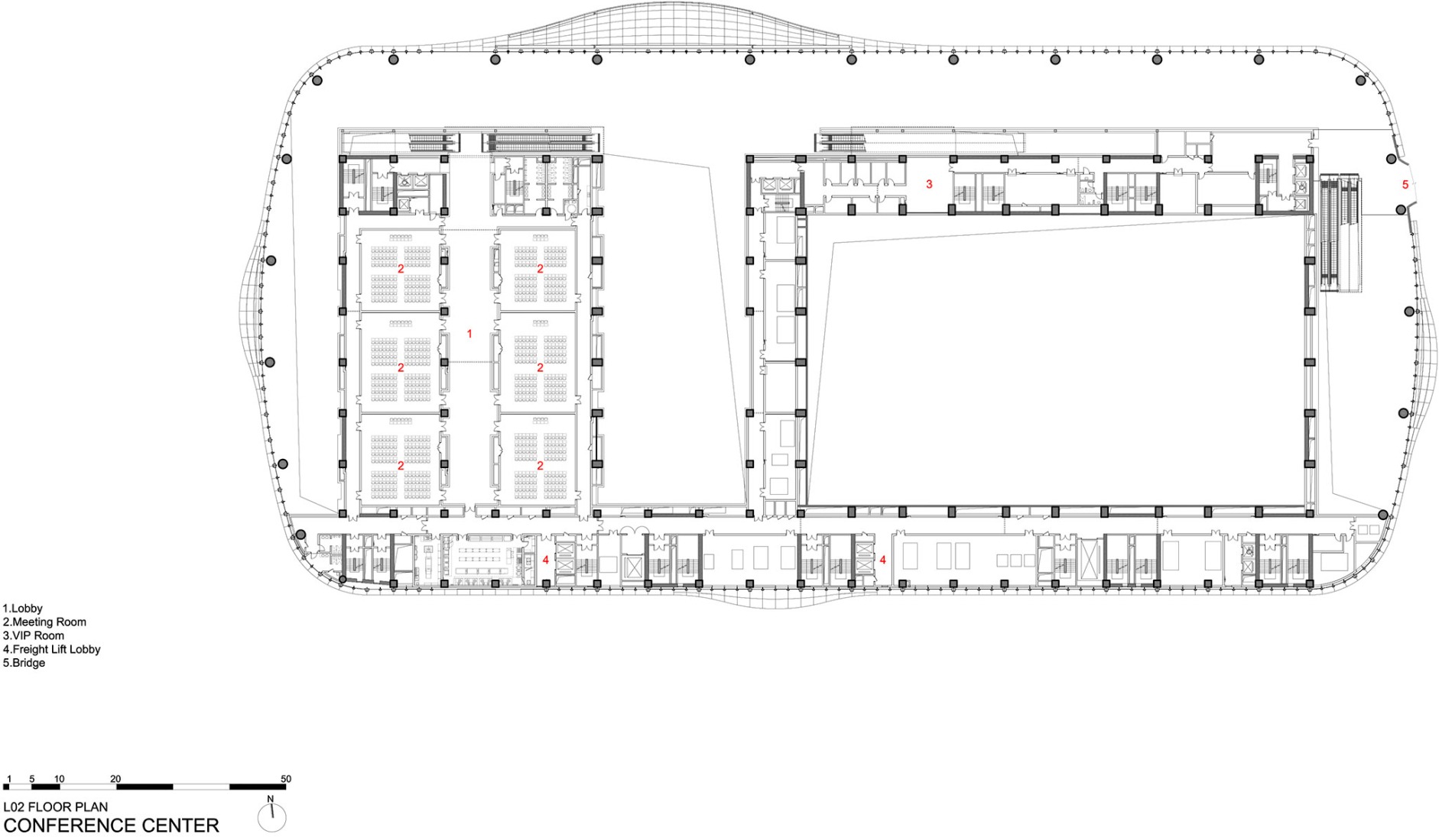
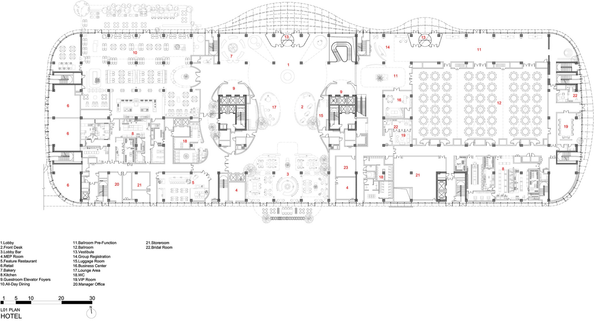
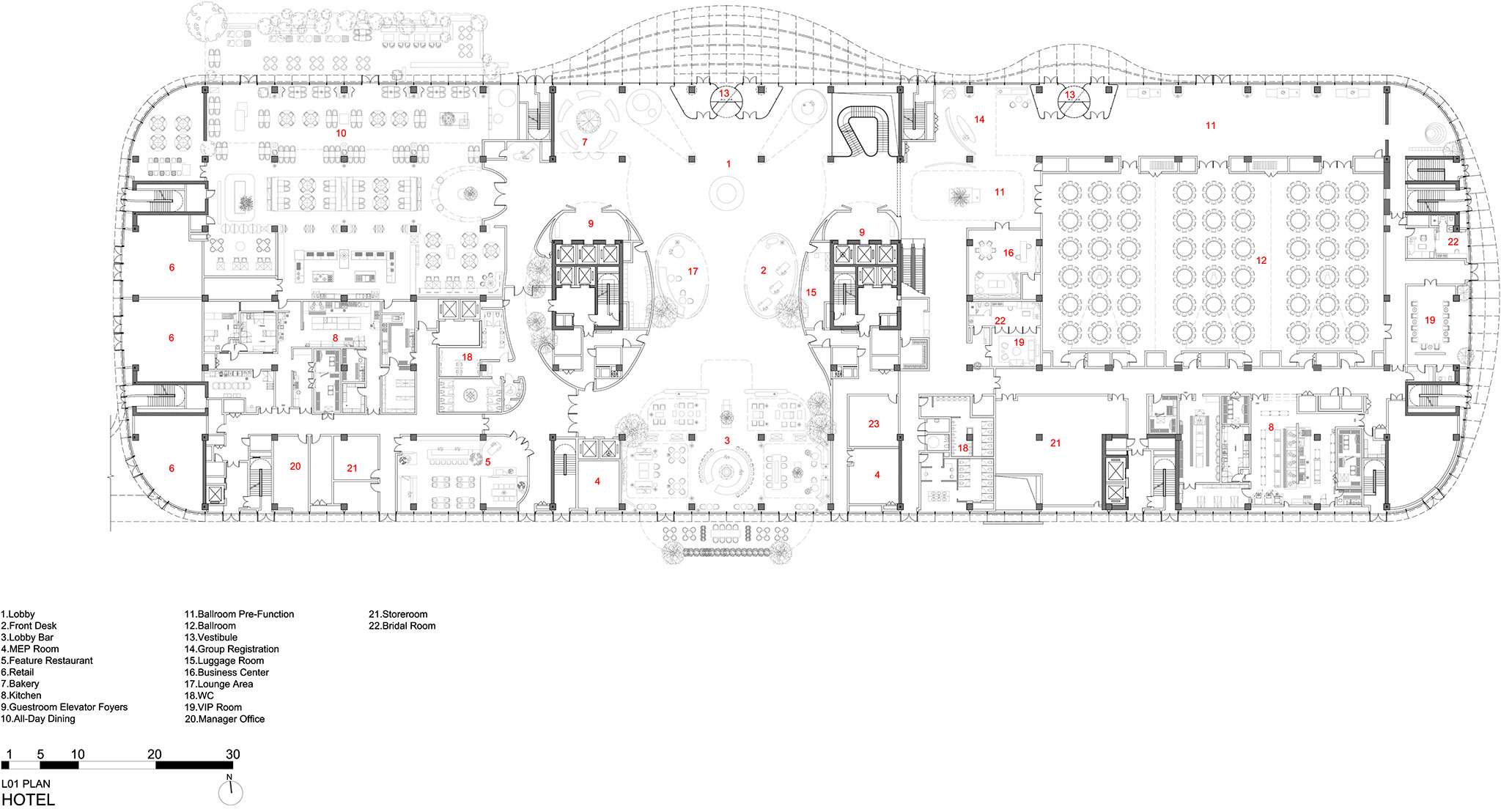
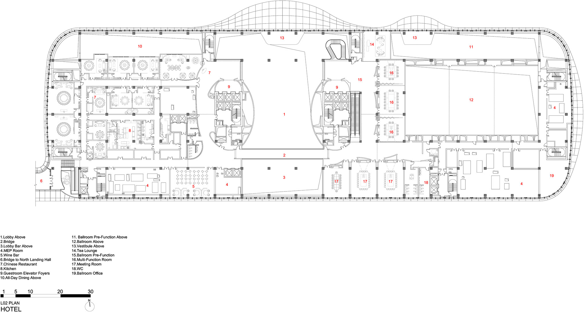
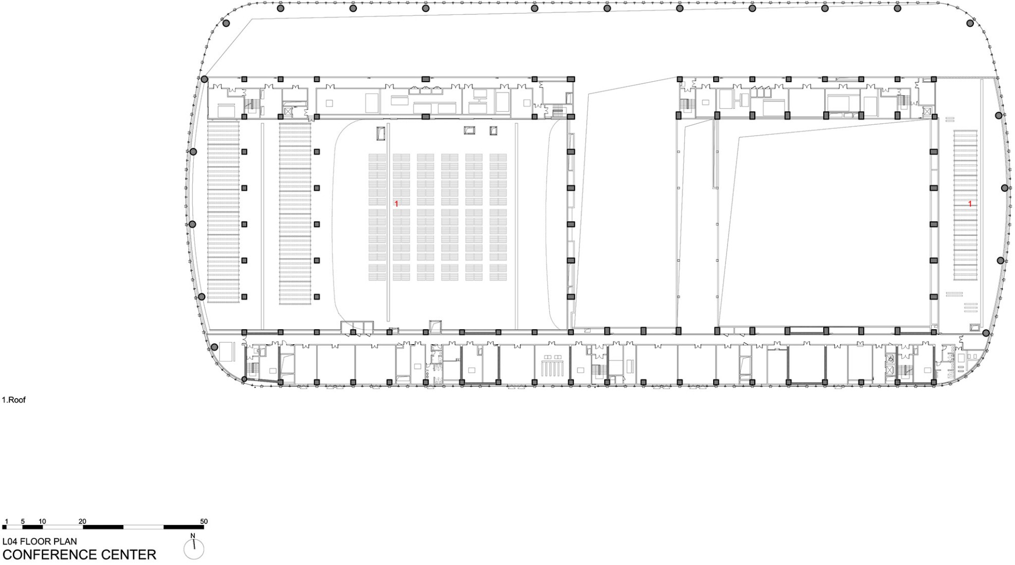
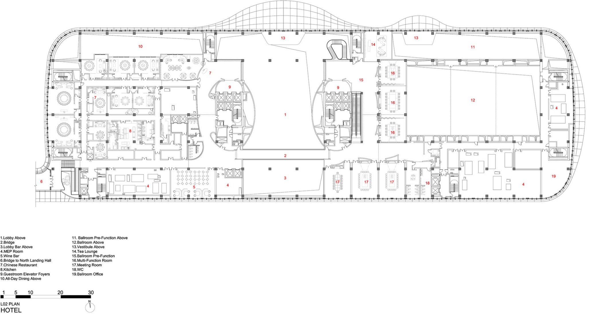
Meeting this growth, the new Capital International Exhibition & Convention Center (CIECC) by Zaha Hadid Architects is Beijing’s largest and most advanced exhibition and convention venue; expanding the city’s existing facility to over 611,000 sq. m with nine new exhibition halls as well as three new reception halls, a conference centre for 9,000 delegates and a hotel with 410 rooms.
Located on Line 15 of the Beijing Subway network within the city’s Shunyi District adjacent to Capital International Airport, the CIECC’s central north-south axis serves as the primary connector between the nine exhibition halls; providing navigational clarity, maximum flexibility and efficiency, as well as creating a central courtyard and gathering place within sheltered outdoor event spaces and landscaped gardens.
Conceived as "ribbons" that weave together all the new facilities, bridges above this central courtyard also connect the exhibition halls, conference centre and hotel, to provide indoor circulation between event spaces. The conference centre and hotel are located to the north of the site, defining a new public square for exhibitions and events. The movement of people, goods, and vehicles throughout the CIECC is divided into three distinct routes to aid circulation, provide optimal adaptability and avoid disruption to different concurring events.
The CIECC’s composite roof system of symmetric geometries creates an insulated, lightweight, large-span structure providing column-free spaces that can be quickly adapted to changes in exhibitions and nature of use. This modular fabrication and construction minimized the centre’s development time, investment, and operational costs.
The centre’s fluid architectural language and pleated, deep copper-coloured façade incorporating large, recessed windows, have been designed to balance the CIECC’s immense industrial scale and materiality.
Achieving the highest certification of China’s Green Building Program, the centre uses smart building management systems with hybrid ventilation, ensuring optimum natural ventilation supported by high efficiency HVAC equipment to enhance indoor air quality and minimise energy consumption. Rainwater collection throughout CIECC’s extensive footprint, grey water recycling, and photovoltaics for on-site energy generation will reduce water and energy demand from the city’s municipal supply.