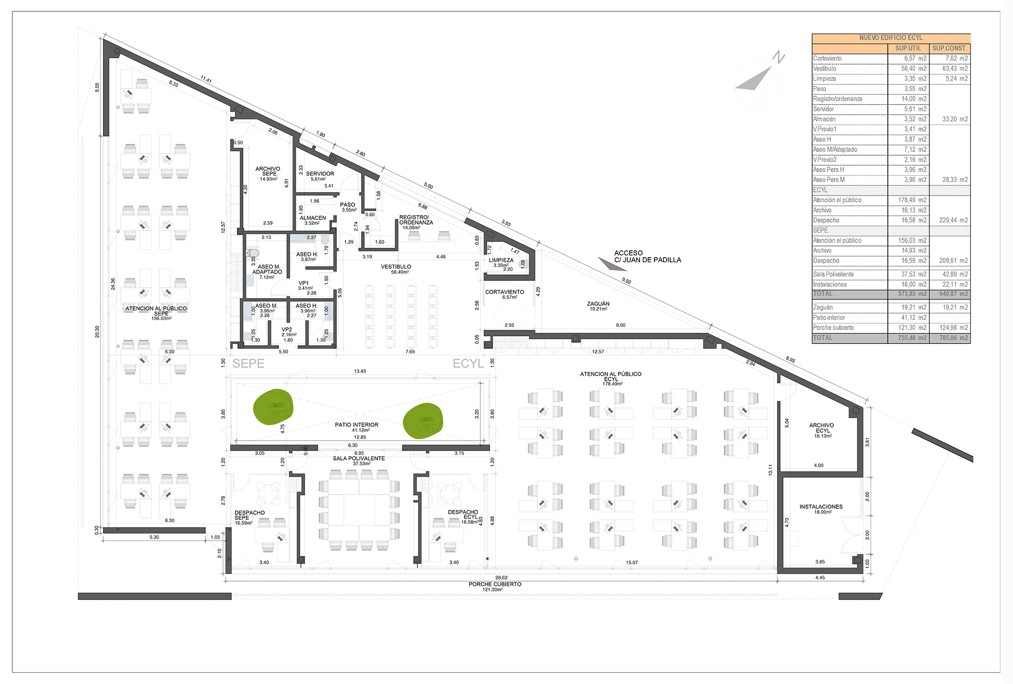
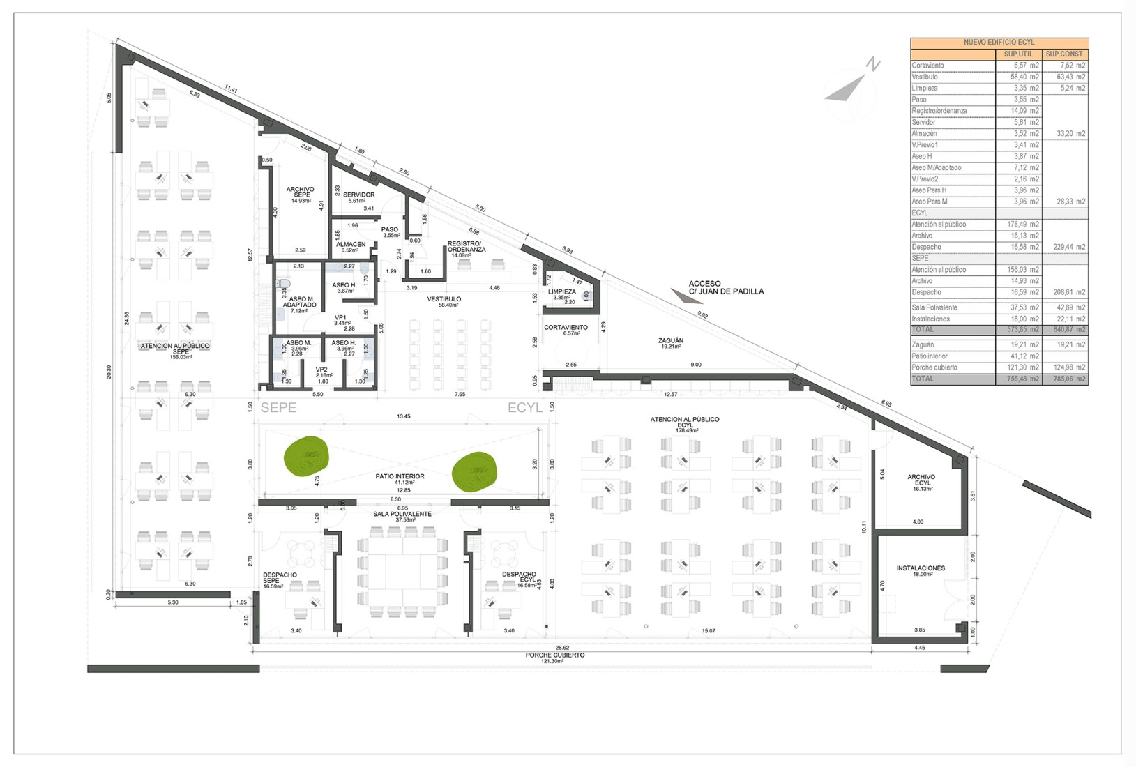
Marcos Rico Arquitectos organiza el espacio interior desde el vestíbulo vinculado con un pequeño patio interior cuyo entorno permite el acceso a las dos grandes zonas programáticas, el SEPE orientado hacia el suroeste y el ECYL mirando al sureste. Ambas cuentan con oficinas de atención al público, área de registro y ordenanza, aseos públicos, espacios de almacenaje, despacho compartimentado, archivo independiente, sala polivalente compartida y aseos de personal.
Las fachadas interiores están protegidas por un muro en celosía que tamiza y protege de la luz solar directa, mejorando el confort visual de los trabajadores al eliminar los contrastes entre luces y sombras, a la vez que mejora las condiciones de ahorro y demanda energética del edificio.
Las fachadas traseras aprovechan la ligera pendiente de la parcela para elevarse ligeramente y dar la sensación de que el edificio flota sobre el terreno.

Edificio para ECYL y SEPE por Marcos Rico Arquitectos. Fotografía por Javier Bravo.

Edificio para ECYL y SEPE por Marcos Rico Arquitectos. Fotografía por Javier Bravo.
Descripción del proyecto por Marcos Rico Arquitectos
La parcela de 1.562,57 m² se distribuye en un edificio de una planta, con acceso desde la c/ Juan de Padilla y en un área de parcela urbanizada, que alberga una zona de aparcamiento con dotación para 10 vehículos y zonas ajardinadas.
El edificio de planta de trapecio irregular se alinea con la calle Juan de Padilla, siendo el resto de fachadas perpendiculares entre sí.
El acceso se realiza a nivel de acera, debido a que la acera es estrecha, al contar tan sólo con un ancho de 1,40 m, se ha creado un zaguán triangular amplio previo al ingreso, que permite el acceso accesible desde el exterior. La entrada cuenta con un cortavientos generado por dos puertas automáticas correderas acristaladas, que comunican con el interior del edificio.
Se accede a un vestíbulo general proporcionado, con comunicación directa con el área de registro/ordenanza, los aseos públicos y el pasillo de acceso a las salas de atención al público. Comunica también con un cuarto de limpieza y un paso de personal a un almacén, el cuarto del servidor y al registro. En este espacio se ubica una zona de espera para 24 personas sentadas.
Cuenta con iluminación natural a través de un patio interior rectangular ajardinado que amplía las dimensiones y comunica visualmente varios espacios del edificio.
El edificio se divide para el uso de dos organismos oficiales, en la orientación sur-este se encuentran las oficinas del ECYL (Servicio Público de Empleo de Castilla y León) y en la orientación sur-oeste las oficinas del SEPE (Servicio Público de Empleo Estatal).
Ambas cuentan con área de atención al público personalizada con 13-16 puestos de trabajo, con espacios de almacenaje, despacho compartimentado con mampara acristalada con mesa de reuniones y archivo independiente. Comparten una sala de uso polivalente y aseos de personal.
Los espacios se iluminan a través de amplios ventanales abiertos a la parcela, gozando de gran privacidad, ya que se han incluido unas celosías de protección solar, para mejora del confort visual de los trabajadores al eliminar los contrastes de luces y sombras, así como para mejorar las condiciones de ahorro energético y reducir la demanda energética del edificio. El edificio cuenta con un cuarto de instalaciones con acceso exterior desde el interior de la parcela.
La fachada ventilada combina dos acabados en colores contrastados, blanco y negro, del mismo material.
Las fachadas Sur y Oeste quedan protegidas de la radiación solar a través de una celosía de piezas cerámicas separadas 1,10m de los ventanales, generándose un pasillo perimetral por el que se accede al cuarto de instalaciones y se comunica el interior del edificio con el espacio exterior seguro, ya que cuenta con una salida de emergencia en la fachada Sur.
La cubierta del edificio es plana, no transitable y alberga instalaciones fotovoltaicas y de climatización.
La urbanización interior de la parcela genera una zona de aparcamiento para 10 vehículos, siendo una de las plazas accesibles. Se deprime levemente de la rasante en el acceso desde la calle Juan de Padilla, de manera que el edificio da la sensación de flotar sobre las zonas ajardinadas que lo rodean, gracias a una iluminación led oculta.
El cierre de parcela en la alineación principal contará con zócalo de hormigón visto de aproximadamente 15 cm, con valla de cerramiento de chapa plegada lacada al horno en color negro RAL9005, de 4 mm de espesor. El acceso al aparcamiento contará con portón corredero del mismo diseño que el cerramiento general. El resto de la parcela se delimita con malla de simple torsión galvanizada con postes de acero galvanizado recibidos al firme.
Será necesario realizar un rebaje de bordillo y eliminar una plaza de aparcamiento exterior, para proporcionar acceso de vehículos a la parcela.