La propuesta de Coldefy y DDS se adapta a las dos parcelas asignadas al proyecto con una configuración formal que contribuye a crear un conjunto coherente. La disposición en forma de «U» en la primera parcela permite la creación de un espacio comunitario abierto volumétricamente por sus esquinas y delimitado hacia el sur por la intervención en la segunda parcela, paralela al lago. El espacio interior, proyectado siguiendo estratégicas transiciones entre áreas públicas, semipúblicas y privadas, ha recibido un cuidadoso tratamiento natural dispuesto en una ladera escalonada, con un paisajismo respetuoso con la biodiversidad y plantas locales.
Con el objetivo de reducir emisiones y mejorar la eficiencia energética a largo plazo, el proyecto residencial incorpora un sistema geotérmico abierto, retención de agua de lluvia y cubiertas verdes, garantizando un sistema de calefacción y refrigeración sin combustibles fósiles. Frente a la urgente necesidad de adaptación de las ciudades, «Lake 11» explora cómo la vivienda puede ofrecer densidad y amplitud a partir de un delicado equilibrio entre la innovación, la habitabilidad y la responsabilidad ambiental.

Casa y parque «Lake 11» por Coldefy + DDS. Fotografía por Tamás Bujnovszky.
Descripción del proyecto por Coldefy + DDS
El estudio de arquitectura francés Coldefy, en colaboración con Demeter Design Studió (DDS), ha completado la primera fase de viviendas en Lake 11 Home & Park, un importante proyecto residencial junto al lago en el pintoresco límite del distrito 11 de Budapest.
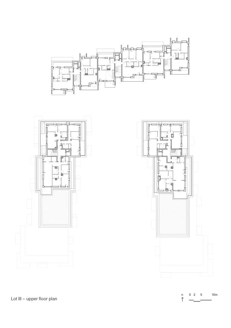
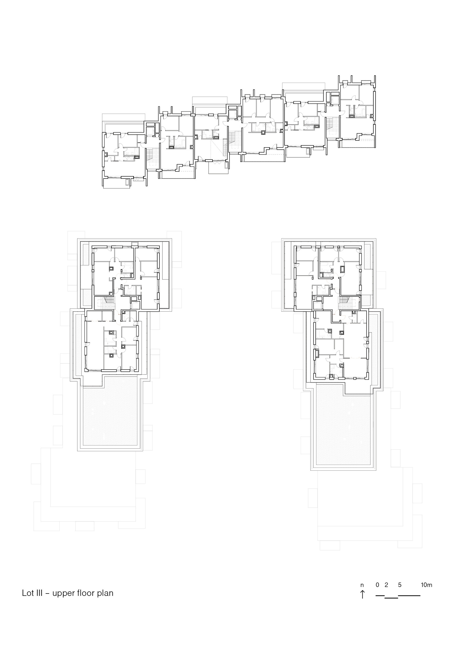
Coldefy y DDS fueron seleccionados mediante un proceso competitivo para diseñar 175 viviendas en tres parcelas dentro de un plan maestro de ocho hectáreas. La coordinación técnica estuvo a cargo de los arquitectos locales Ötelem. El proyecto ofrece una combinación de apartamentos de uno a cuatro dormitorios en tres tipologías diseñadas para adaptarse a la topografía y el paisaje del terreno. Al norte del terreno, las casas adosadas se ubican en la elevación más alta, ofreciendo vistas al paisaje natural. Las casas del parque, en las partes este y oeste del terreno, definen el límite del parque residencial en el centro, mientras que las casas del lago se ubican sobre el agua que marca el límite sur del terreno. La variedad de tipos de apartamentos y la flexibilidad de distribución responden a las cambiantes necesidades residenciales, ofreciendo una alternativa sostenible a la vivienda unifamiliar. El proyecto busca ofrecer viviendas flexibles que favorezcan la transición entre la vida laboral y personal.
En consonancia con la filosofía de Coldefy, que combina naturaleza y arquitectura para mejorar el bienestar y la calidad de vida, cada apartamento cuenta con un espacio exterior privado en forma de balcón o terraza. Además, el diseño potencia la luz natural y las vistas al lago y al paisaje circundantes, minimizando las vistas directas a los edificios vecinos para garantizar la privacidad de los residentes. Cada edificio está diseñado para adaptarse a su ubicación, con volúmenes escalonados que se adaptan al terreno, minimizando la densidad del conjunto.
Siendo la sostenibilidad una prioridad clave para la promotora Atenor, el proyecto cuenta con un innovador sistema geotérmico abierto, retención de agua de lluvia y cubiertas verdes para garantizar un sistema de calefacción y refrigeración sin combustibles fósiles, reducción de emisiones y eficiencia energética a largo plazo. Sondas de suelo perforadas a una profundidad de 150 metros funcionan como un conducto cíclico de calor durante todo el año. En invierno, el calor del suelo se distribuye a los apartamentos a través de superficies emisoras de calor, mientras que el exceso de calor generado en verano es absorbido por los edificios y devuelto al suelo.
Terrazas, corredores de biodiversidad con plantas locales con flores para fomentar la polinización y pavimento poroso son elementos clave del paisajismo de Lake 11. Una amplia y divertida zona de estar compartida y un colorido mobiliario de exterior adicional, distribuido por toda la urbanización, animan a los residentes a pasar tiempo al aire libre. Dentro de un plan maestro que preserva el carácter natural del lugar y ofrece espacios verdes comunes, así como senderos para peatones y ciclistas, el diseño busca fomentar un sentido de comunidad mediante transiciones estratégicas entre áreas públicas, semipúblicas y privadas.
El proyecto de Coldefy y DDS introduce diferentes materiales, formas constructivas y detalles de fachada para variar la escala de esta gran urbanización. El proyecto adopta una estrategia unificada de revestimiento mineral, que enfatiza la riqueza de los materiales y la armonía con el entorno natural. Las fachadas de las casas adosadas y las casas del parque presentan diversos tonos de ladrillo texturizado, lo que crea una calidez visual y una sensación de permanencia arraigada. Las casas del lago están revestidas con paneles de fibrocemento, complementados con detalles de aluminio y elementos de hormigón visto para un acabado limpio y contemporáneo. La variedad de materiales en todo el terreno contribuye a romper la escala del desarrollo y otorga a cada volumen una identidad distintiva. Cada apartamento cuenta con su propio trastero adicional en el sótano, y existen zonas cerradas para aparcamiento compartido de bicicletas y carritos de bebé.
Una vez finalizado, el desarrollo Lake 11 Home & Park ofrecerá un total de 897 nuevas viviendas, abriendo un nuevo capítulo en la tipología residencial de Budapest y presentando una comunidad dentro de la ciudad donde los residentes pueden disfrutar de los beneficios del paisaje natural a un corto trayecto del centro.
«La vivienda es una de las formas más significativas en que la arquitectura interactúa con la vida urbana. Ante la creciente presión de adaptación de las ciudades, Lake 11 explora cómo la vivienda puede ofrecer densidad y amplitud, conectando a los residentes con la naturaleza y entre sí. Iniciado durante los confinamientos por la pandemia de COVID-19, el proyecto reconsidera el papel multifacético del hogar: no solo como un espacio privado, sino como parte de un entorno compartido. El diseño se gestó mediante una estrecha colaboración entre equipos internacionales y locales, buscando un equilibrio entre innovación, habitabilidad y responsabilidad ambiental».
Zoltán Neville, socio de Coldefy.