Hacia el exterior, el edificio residencial realizado por gon architects se presenta como un volumen fragmentado y de escala reducida, que dialoga con su entorno inmediato y establece una relación amable con la ciudad. Lejos de ofrecerse como un objeto cerrado y estático, una serie de sutiles retranqueos y desplazamientos entre niveles aportan dinamismo, porosidad y profundidad a la fachada.
En el corazón de la propuesta, un patio vertical abierto articula las cinco plantas y garantiza la correcta ventilación de los espacios comunes. Las diversas tipologías de vivienda, con superficies que oscilan entre los 45 y los 110 m², exploran nuevas formas de habitar a partir de espacios abiertos, flexibilidad programática y una estrecha conexión con el exterior.
Foners se consolida así como una nuevo hito de referencia para el barrio, marcando el inicio de la transformación de este histórico enclave en la ciudad de Palma de Mallorca.

Foners, diez viviendas en Palma de Mallorca por gon architects. Fotografía por Imagen Subliminal (Rocío Romero + Miguel de Guzmán).
Descripción del proyecto por gon architects
El barrio de Foners -que debe su nombre a los antiguos honderos o lanzadores de piedras-, situado junto al concurrido casco antiguo de Palma, en la isla de Mallorca, es una zona deteriorada en el tiempo, tanto social como arquitectónicamente, que hoy está inmersa en un proceso de regeneración urbanística.
Y es precisamente en el centro neurálgico de este lugar donde se levanta uno de los primeros edificios de viviendas -el primero también de gon architects- que contribuyen a la recuperación del tejido urbano. Consta de una planta baja más cuatro alturas y alberga diez viviendas, un aparcamiento en superficie, otro bajo rasante, y un local comercial aún por realizar.
El desarrollo del proyecto, que se ha prolongado durante seis años, ha sido ejecutado bajo unas fuertes restricciones económicas y técnicas derivadas por la pandemia de 2020 y la posterior crisis de materiales motivada por la guerra de Ucrania, se ha logrado ejecutar con un coste por metro cuadrado construido que no supera los mil doscientos euros.
Lejos de plantearse como un volumen cerrado o autorreferencial, esta arquitectura nace con la vocación explícita de hacer ciudad. Lo persigue desde la contención y la estrategia: fragmentando su masa con una volumetría estratificada que reduce su escala para dialogar con el entorno y establecer una relación más amable, doméstica y cercana con el barrio y quienes lo habitan.
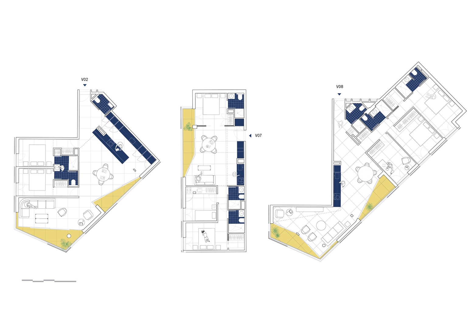
La condición más singular del solar es su privilegiada ubicación en esquina, con forma de chaflán muy pronunciado, dentro de una manzana residencial densa e irregular. La planta, de geometría pentagonal irregular y reducidas dimensiones -201 m²-, se abre a tres orientaciones (este, sur y oeste), y su organización ha sido sin duda uno de los principales retos del proyecto.
Con el objetivo de aprovechar al máximo la huella de la parcela y obtener el mayor número posible de viviendas dentro del volumen edificable, se plantea un sistema de organización compacto. Este se articula a través de muros dispuestos paralelamente a las fachadas, separados de ellas 4,5 o 6 metros según la orientación y la función (habitaciones o salones) de los espacios. Las zonas de servicio —cocinas y baños— se agrupan en bandas centrales, formando el corazón funcional y técnico de cada planta.
El resultado son diez viviendas irregulares, todas distintas y a la vez semejantes. Diez unidades habitacionales que oscilan entre los 45 y los 110 m², cuyo denominador común se basa en la calidad espacial y la presencia, en todos los casos, de al menos un espacio exterior integrado. Esta articulación interna se refleja hacia el exterior mediante una fachada porosa y dinámica. Ligeros retranqueos y desplazamientos entre niveles aportan ritmo y movimiento, otorgando al edificio una imagen cambiante según la perspectiva del viandante y la incidencia de la luz.
Más allá de su organización física, todas las viviendas comparten una mirada crítica que cuestiona y amplía la noción tradicional de lo doméstico. Cuatro conceptos fundamentales articulan esta exploración: la cocina como centro vital de la casa, la flexibilidad como material de proyecto, el cuarto de baño atomizado y la «habitación sin nombre», un espacio indeterminado, abierto a usos diversos y futuros.
El espacio público común del edificio se articula en torno a un patio vertical abierto al cielo, ubicado en la zona norte del solar. Este vacío conecta las cinco plantas y se convierte en un verdadero pulmón: favorece la ventilación cruzada de las zonas comunes, regula la temperatura de forma pasiva y, sobre todo, actúa como un lugar de encuentro, un paisaje interior que evoca los colores y texturas de las isla de Mallorca, la Sierra de Tramuntana o los campos de cultivo.
Foners es un edificio residencial que, por su situación visible y privilegiada, se convierte en una pieza de referencia para el barrio; una construcción que funciona como la honda de los honderos que marca el inicio de la transformación de un lugar. Un proyecto cuya complejidad radica en haber sabido resolver un solar de geometría poligonal con un ajustado presupuesto de partida, sin renunciar a resolver las escalas fundamentales en este tipo de intervenciones con claridad y sensibilidad: la escala edificatoria, la del espacio común y la doméstica.