La propuesta de Harqutiectes da respuesta a unas condiciones técnicas exigentes elaboradas por el IBAVI, contemplando la deconstrucción del edificio existente, una pequeña escuela en desuso, con el máximo reaprovechamiento de los sistemas y materiales que lo componían (muros de marés estructural y techos de hormigón y cerámica), para reutilizarlos en la construcción del nuevo edificio, de forma que el edificio existente se convirtiese en un modelo de extracción de «minería urbana», convirtiendo los residuos de la demolición en nuevos recursos.
El proyecto de 25 viviendas sociales, destinadas a personas mayores, organiza el programa con una planta en «L», situando un núcleo de escaleras en la esquina que permite conectar con una pasarela en el jardín interior, desde donde se accede a las viviendas. Cada planta cuenta con una zona común (lavadero, salones, etc.).
Harqutiectes también planteó la utilización de otros sistemas constructivos prefabricados y de rápida ejecución, combinados con estrategias de arquitectura bioclimática, que permitieron optimizar plazos, reducir costes y aumentar la eficiencia energética del edificio, convirtiéndose en un modelo de referencia para el desarrollo de una economía circular.
La fachada refleja el sistema estructural: muros testeros de bloques prefabricados con los restos, techos y cubierta de madera, y una fachada en la que cada apartamento dispone de grandes aperturas con balcones de madera de suelo a techo, con una franja lateral opaca y persianas venecianas que permiten protegerse del sol del este y del oeste.

25 viviendas sociales por Harquitectes. Fotografía por Adrià Goula.
Descripción del proyecto por Harquitectes
En la parcela donde se han construido las viviendas sociales, destinadas principalmente a personas mayores, había un edificio que nos vimos obligados a demoler debido a su incumplimiento de la normativa urbanística y a su mal estado, impidiendo su conservación. Se trataba de una pequeña escuela en desuso, de tres plantas, construida con muros de marés estructural y techos de hormigón y cerámica.
La estrategia distintiva del proyecto fue la utilización de materiales de demolición de la antigua escuela como recursos para la construcción del nuevo edificio, practicando lo que podríamos llamar minería urbana: donde los recursos materiales provienen de la propia parcela urbana, resultante de la demolición del edificio preexistente.
Una vez finalizada la demolición y seleccionados los materiales, casi todos los escombros se reutilizaron según su tipo. En primer lugar, se vertieron piezas de cerámica y hormigón (140 m³) en los fosos de cimentación y los muros del semisótano. En segundo lugar, toda la arenisca (unos 160 m³) se utilizó para construir grandes bloques (aproximadamente 3.000 unidades) de hormigón ciclópeo con cemento y cal mezclados con piedra de marès reciclada (40% del volumen del bloque), compuestos por grandes cantos rodados de hasta 30 cm de diámetro, grava de arenisca y picadís (arena, también de marès). Cada bloque se cortó con una sierra de disco grande a partir de una losa de 4 x 4 m, de modo que las piedras reaparecieran en las caras de los bloques.
Los bloques de la planta superior, con menor carga, están hechos de hormigón 100% de cal, mientras que el resto de las plantas combinan cal con cemento. Estos bloques, de aproximadamente 135 cm de largo, 42 cm de alto y con anchos variables para cada planta (64, 54, 44 y 34 cm), se prefabricaron una vez finalizada la demolición, antes de comenzar la construcción del nuevo edificio. Este enfoque redujo significativamente la duración de la obra. Los bloques se apilaron para construir muros de carga perpendiculares a la calle, que soportan techos de madera contralaminada. En cada planta, el espesor de los muros se reduce en 10 cm, lo que permite el apoyo directo de los paneles de madera y agiliza la ejecución de toda la estructura.
Perpendicularmente a los muros principales, tabiques de 13 cm de espesor, construidos con el mismo hormigón ciclópeo y resultantes del corte de un bloque de 60 cm de ancho en cuatro secciones de 13 cm, unen la estructura de todo el edificio, junto con el núcleo de escaleras y ascensores.
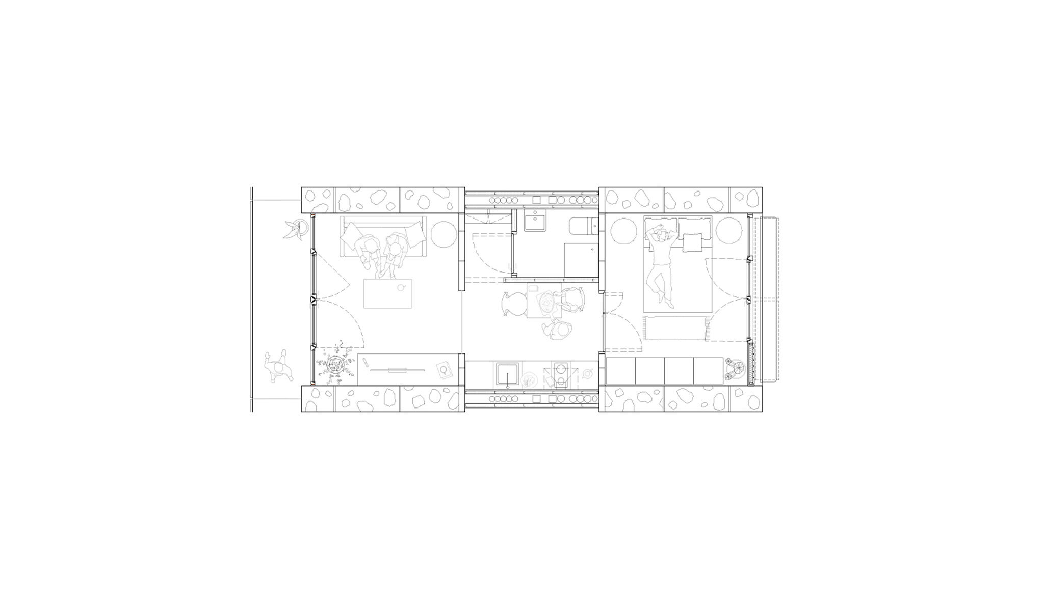
Toda la organización espacial y programática del edificio responde al sistema estructural descrito; la planta se organiza con un núcleo de escaleras en la esquina, que da acceso a una pasarela en el jardín interior, desde donde se accede a cada apartamento; todos son apartamentos pasantes, excepto los de la planta semisótano, que, al igual que los de la planta ático, tienen la mitad de canto que las plantas típicas y utilizan dos vanos estructurales para cada apartamento. Los apartamentos de la planta alta cuentan con amplias terrazas. Cada planta cuenta también con una zona común (lavadero, salones, etc.).
La fachada muestra claramente el sistema estructural: los muros testeros (verticales) de bloques prefabricados, que disminuyen en altura en cada planta y soportan los techos de madera (horizontales), y, como fachada de cada apartamento, balcones de madera de suelo a techo con una franja lateral opaca y persianas venecianas para protegerse del sol de este y oeste.