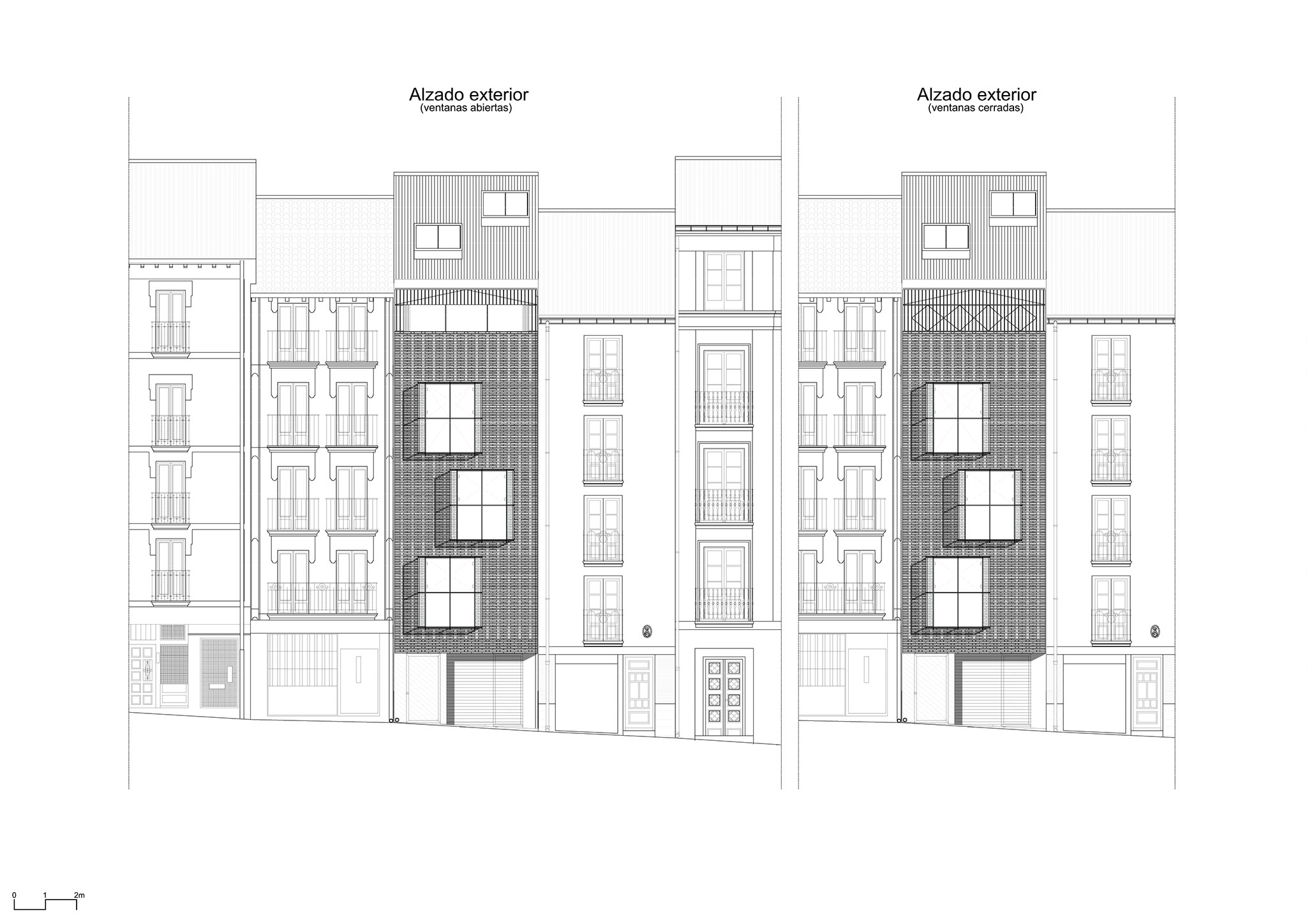
Las 4 viviendas planteadas por Josean Ruiz Esquíroz se configuran como piezas pasantes, situando los salones hacia el exterior y los dormitorios hacia el patio de manzana. Hacia el interior, la fachada se vuelve permeable mediante terrazas protegidas por alicantinas, menos en la cuarta y última planta, que se retranquea tras la cornisa para cumplir la normativa sin perder habitabilidad.
Se plantea una nueva estructura que libera las medianeras, apoyando el peso del edificio en el núcleo de comunicaciones y en los planos de fachada. Esta decisión permite proteger la estabilidad estructural de las medianeras a la vez que conservar y poner en valor su palimpsesto de piedra, ladrillo y madera, que se erige como un tapiz estabilizado con mortero de cal.

Sustitución de 4 viviendas por Josean Ruiz Esquíroz. Fotografía por Imagen Subliminal.
Descripción del proyecto por Josean Ruiz Esquíroz
El proyecto de cuatro viviendas se sitúa en el corazón de Pamplona, a escasos 40 metros de la calle Estafeta, famosa por los encierros de San Fermín. La calle, como tantas del tejido gótico, apenas tiene 6 metros de anchura y una altura de cornisa de 15 metros. Ante estas proporciones, el desafío era introducir luz y ventilación natural en unas viviendas de apenas 4.6 m. de crujía y 18 m. de profundidad. Para ello se utilizan dos elementos:
En primer lugar, el ladrillo macizo de vidrio tejido con ladrillo cerámico, recordando que la calle Tejería concentraba los artesanos medievales de tejas y ladrillos. En segundo lugar, las galerías acristaladas de forja, reinterpretando las realizadas en el s. XIX, por su extrema ligereza. La fachada semitransparente de ladrillo se abre con tres galerías acristaladas, sustentadas por finas pletinas de acero. A esta piel exterior le sucede otra interior acristalada, creando una galería que aísla térmica y acústicamente de la calle, generando un filtro ajardinado.
La nueva estructura no se apoya en las medianeras, sino en la caja de escaleras y en los dos planos de las fachadas, en una operación en cierto modo contraintuitiva. La estabilidad estructural de los vecinos nos hizo mantener las medianeras, descubriendo un palimpsesto de piedra, ladrillo y madera. La propuesta deja visto este tapiz, estabilizando las zonas más degradadas con un mortero de cal.
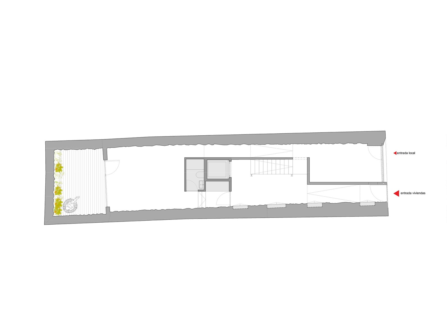
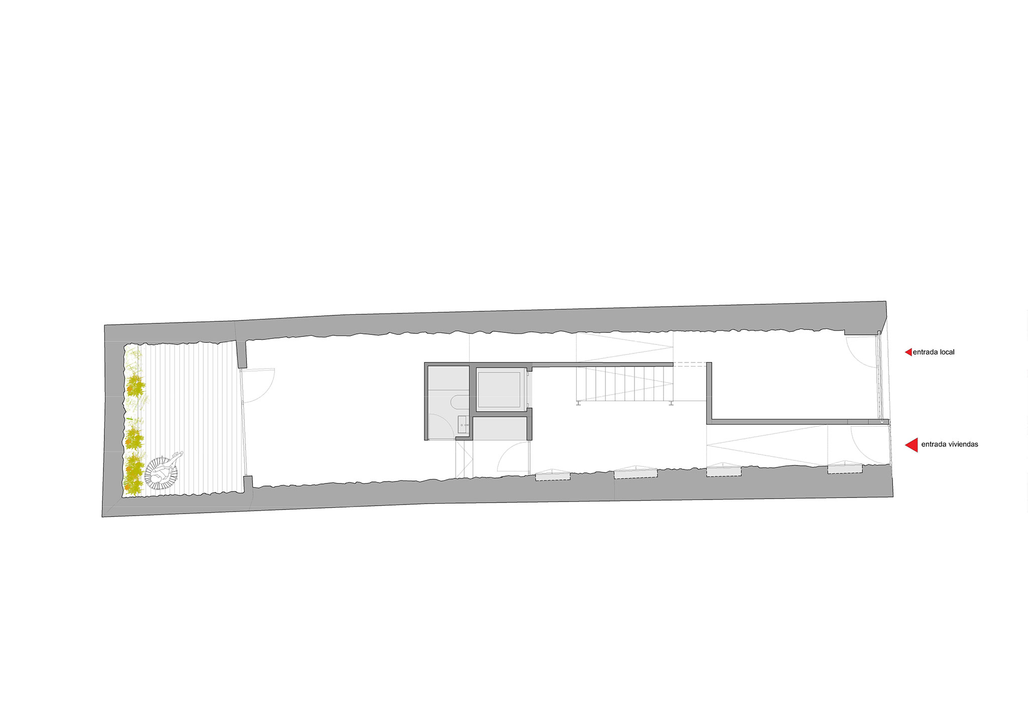
En la planta baja, los muros eran más gruesos, limitando el espacio del portal y del local. El primero gira hacia la luz cenital de la escalera común, que baña la rugosidad desnuda de la medianera. El segundo conecta la calle con un pequeño patio interior ajardinado cuyas paredes blanqueadas multiplican la luz.
Todas las viviendas son pasantes, orientando salones hacia la calle y dormitorios hacia el interior de manzana. Para evitar que la cocina invada el salón se permitió abrirla al corredor. También los armarios se colocan en este espacio. Ambos elementos se materializan en madera. Los dos dormitorios son de tamaño muy diferente, pudiendo unirse en un único espacio. El menor se abre completamente al corredor, conectando visualmente toda la profundidad de la vivienda.
La fachada interior se abre con las mayores balconeras permitidas, dando acceso a una terraza protegida con alicantinas de madera. Intentando reducir la escala del edificio, la cuarta planta se oculta en la fachada de la calle detrás de la cornisa de madera, pero en realidad contiene una contraventana que se abre en librillo hacia una galería interior. La cubierta inclinada permite la aparición de un salón con doble altura, con un despacho en el altillo y un dormitorio en suite iluminado por un patio ajardinado privado. La cubierta se perfora con tres lucernarios que iluminan el salón, el altillo y el dormitorio abuhardillado.
La climatización del edificio se confía a un sistema de aerotermia que aprovecha la inercia térmica de las losas de hormigón y las medianeras, y que ha obtenido la máxima calificación energética.
Ha sido un proyecto cocinado a baja temperatura en el que ha costado mucho convencer a los agentes implicados. El objetivo era simplemente habitar mejor una pequeña parcela entre medianeras, tan común en nuestros cascos históricos europeos, sin recurrir al pastiche historicista y llevando al límite la interpretación de la normativa.