Orbaiceta Aldaba Arquitectos y COR Architecture + Design proponen para el Edificio de Laboratorios e Investigación Avanzada de la Universidad de Las Palmas de Gran Canaria un espacio para compartir y generar conocimiento. El complejo se articula mediante dos volúmenes rectangulares paralelos de imponente presencia y líneas limpias, conectados por un patio central ajardinado con vegetación autóctona que conecta al edificio con su singular entorno.
La propuesta ganadora opta por una orientación este-oeste para optimizar la luz natural y la flexibilidad interior, con laboratorios en las fachadas exteriores y oficinas en el interior. Materialmente, el diseño busca un diálogo entre tecnología y tradición, conviviendo armoniosamente el hormigón, la piedra y el metal.

Visualización. Edificio de Laboratorios e Investigación Avanzada por ORBAICETA ALDABA y COR.
Descripción del proyecto por Orbaiceta Aldaba Arquitectos y COR Architecture + Design
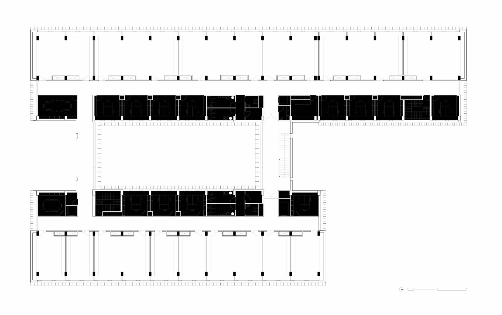
Ubicado en el Campus de Tafira de la Universidad de Las Palmas de Gran Canaria, este centro de investigación avanzada se define formalmente mediante dos volúmenes paralelos con orientación predominante este-oeste. La estrategia proyectual apuesta por volcar los laboratorios hacia el perímetro exterior, reservando el interior para los despachos y salas de reunión. Esta disposición permite abrazar un gran patio central que funciona como pulmón verde y corazón social del edificio, un espacio de confluencia diseñado para fomentar la sinergia entre las distintas empresas e investigadores.
En su adaptación al terreno, el conjunto se asienta con sensibilidad sobre la pendiente de la parcela. Esta operación topográfica da lugar a una planta semisótano que, aprovechando el desnivel, alberga una banda de talleres de doble altura y las áreas técnicas de servicio, funcionando como un sólido basamento para el resto del programa.
La propuesta material busca un diálogo honesto entre tecnología y tradición. El hormigón, la piedra y los elementos metálicos conviven en armonía, integrando la vegetación autóctona no como un adorno, sino como un elemento arquitectónico fundamental que ancla el edificio a su entorno único.