Ángel Fernández Alba eludió el ejercicio de arquitecto desde una posición pública o ruidosa y se caracterizó por entender el oficio de crear como un hecho privado, discreto, íntimo. Con motivo de la publicación del catálogo de la exposición «Ángel Fernández Alba. 5 proyectos + 6 metáforas urbanas», en la introducción Pedro Moleón diría de su forma de trabajar: «prescinde del reconocimiento público como medio de autoafirmación o como instrumento de glorificación de la propia obra. Ignorando la necesidad de difundir, relegando la búsqueda del aplauso, quien la ejerce “trabaja tranquilo en su estudio a la sombra de su opinión y de su virtud”, ajeno a la influencia del éxito fácil o superficial, al cabo intempestivo; incluso velando los propios hallazgos —como se velan las armas— para no verlos desaparecer bajo su interpretación».(2)
Su producción combina arquitectura, paisajismo, diseño de exposiciones y comisariado, articulando proyectos que se sitúan tanto en lo construido como en la esfera cultural y conceptual. Un ejemplo temprano de reconocimiento fue el primer premio del Colegio Oficial de Arquitectos de Madrid por su sensibilidad contextual con el proyecto de remodelación urbana de las calles comerciales de Preciados y del Carmen (1989).

Cancillería española, Estocolmo (190-1992), de Ángel Fernández Alba. Fotografía de Áke Lindman.
Ángel Fernández Alba fue uno de los arquitectos que mejor conocía la arquitectura finlandesa. Proyectó y construyó la Cancillería (edificio de la Embajada de España) en Helsinki a principios de los años 90, integrándose en un entorno caracterizado por la arquitectura nórdica y dialogando con edificios como la Villa Himberg de Aarne Ervi (1954) y otras referencias locales. Además de su obra construida, Fernández Alba fue reconocido oficialmente por Finlandia con la condecoración de Oficial de Primera Clase de la Orden del León de Finlandia en 2005, otorgada por su labor en la promoción y difusión del arte, el diseño y la cultura arquitectónica finlandesa en España. No por casualidad Reto Halme, uno de los mejores fotógrafos filandeses y europeos, fue el autor de gran parte de las tomas realizadas de sus obras durante casi dos décadas.
Durante estos años desarrolló obras relevantes, además de la Cancillería de la Embajada de España en Helsinki, realizando también la de Estocolmo, o los edificios de la Facultad de Derecho de Alcalá y el Invernadero del Real Jardín Botánico de Madrid, por los que en 1994 le concedieron los premios de arquitectura de la Fundación CEOE y del Ayuntamiento de Madrid, respectivamente. Además, construyó algunos de los principales hospitales del país, en Oviedo, Zaragoza, Badajoz, Alicante, Valencia o Ciudad Real, en esta última ciudad también proyectó el Conservatorio de Música Marcos Redondo.
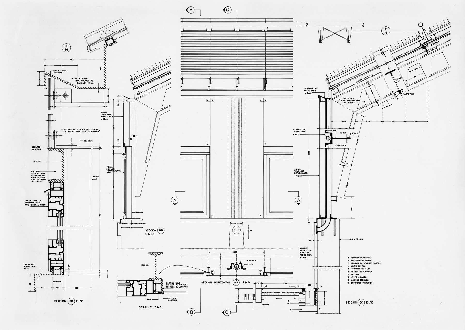
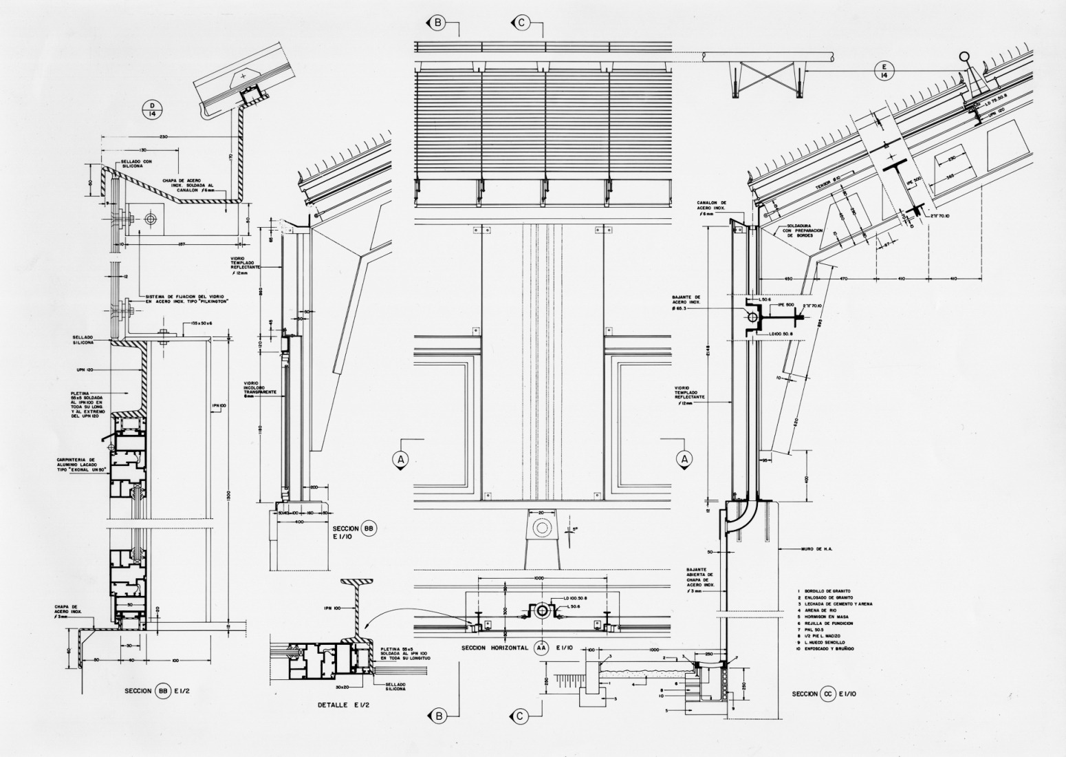
«Una de las obras más emblemáticas de este arquitecto quizá sea su nuevo invernadero para el Real Jardín Botánico de Madrid, finalizado en 1993. En él, un envoltorio uniforme de vidrio, dispuesto contra un muro preexistente, se aparta casi por completo de la tradición ibérico-nórdica, salvo quizá en el caso de las ventanas de marcos metálicos que miran a los jardines y que se yerguen irónicamente en la continua superficie acristalada del muro: unos vanos enmarcados en un muro que ha sido completamente desmaterializado.»(4)
Kenneth Frampton.

Invernadero, Real Jardín Botánico, Madrid, C.S.I.C. 1991-199, por Ángel Fernández Alba. Fotografía por Reto Halme.
Fue profesor de Proyectos en la Escuela de Arquitectura de Madrid y profesor visitante en la Universidad de Arizona. Asimismo, fue arquitecto del Museo ICO y patrono de la Fundación, desde la cual impulsó colaboraciones con otros museos españoles y con una red internacional de museos.
Participó, diseñó y comisarió numerosas exposiciones, entre las que destaca «De lo construido a la arquitectura sin papel», para el comisariado del Pabellón Español de la XI Bienal de Arquitectura de Venecia, en 2008, conjuntamente con su esposa, la también arquitecta Soledad del Pino Iglesias.
«El trabajo creativo del arquitecto se desarrolla en un medio cultural continuo, donde se establecen conexiones de todo tipo con el pasado y el presente, casi siempre silenciosas y, con frecuencia, de manera inconsciente. La obra de arquitectura siempre va dirigida a un destinatario concreto, ya sean nuestros maestros o colegas que gravitan en un campo de energías del mundo intelectual en el que se desarrolla nuestra actividad profesional.»
Ángel Fernández Alba. Presentación del pabellón de España en la Bienal de Arquitectura de Venecia, 2008.
Su trayectoria podría definirse con aquellas palabras en «Telémaco» de J. D. Fullaondo: «Me pregunto, por último, en dónde reside en profundidad esa extraña atmósfera personal, que unifica todos estos planteamientos, qué es lo que les hace trascender el plano de una inmediata, generalizada, brillantez. Algo de ello podría centrarse en su reticencia, en la forma en que la posible vocación romántica es refrenada, con fatigada elegancia, situada en segundo o tercer término. Pero me parece que hay algo más, algo distinto». (3)
NOTAS.-
1. Juan Daniel Fullaondo. «Telémaco» Madrid: Arquitectura, núm. 248, 1984, p. 68.
2. Pedro Moleón. «Ángel Fernández Alba. 5 proyectos + 6 metáforas urbanas». Madrid: COAM, 1991, p. 7.
3. Ibidem (1), p. 69.
4. Kenneth Frampton. Introducción en: Pedro Moleón. «ÁNGEL FERNÁNDEZ ALBA». Madrid: Fundación Argentaria, 1995. pp. 7-11.

Ángel Fernández Alba, (1943-2026).