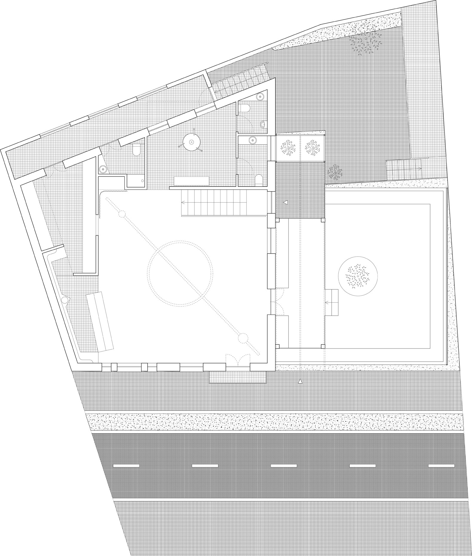
El tratamiento interior del restaurante proyectado por Hugo Santoalha utiliza una paleta de colores fríos y neutros, solo interrumpida en los aseos por la pila central roja, que destaca en la sala vacía, y por la carpintería y las paredes rosas en el interior de los baños. Un conjunto de acabados que permite al cliente encontrarse en un ambiente tranquilo y relajado para disfrutar del tiempo dedicado a comer.
El techo, de gran altura, cuenta con una estructura de cerchas y una lámpara verde circular que ilumina toda la sala de forma indirecta y serena a través de su circunferencia. También incorpora ventanales que permiten la entrada de luz natural. En la sala exterior se emplearon bloques de termoarcilla para crear asientos, y todas las mesas están rodeadas de vegetación y plantas, que generan un entorno más natural y agradable.

Norma por Hugo Santoalha. Fotografía por Francisco Ascensão.
Descripción del proyecto por Hugo Santoalha
Dos habitaciones cuadradas son esencialmente iguales, aunque una protegida y la otra expuesta.
Se sienten atraídas la una por la otra, así que mientras la primera busca expandirse al máximo en todas direcciones, casi desintegrándose hacia el cielo, la segunda define un límite en lo que parece ser la promesa de un techo esbelto y una gruesa pared de ladrillo volcada hacia el interior.
A pesar de estas intenciones, ambas habitaciones se mantienen fundamentalmente como están, aunque un poco más cerca la una de la otra.