Inspirada por la compleja condición topográfica existente, la vivienda proyectada por Estudio Arquitectura Hago organiza el programa en dos niveles: el volumen superior se ofrece como un mirador hacia el valle, mientras que el nivel inferior se articula en torno a un patio de carácter histórico, definido por las preexistencias de piedra recuperadas durante la excavación.
La Casa CL se resume en una serie de operaciones orientadas a alcanzar un equilibrio continuo entre el entorno urbano, la construcción tradicional y los requisitos domésticos contemporáneos. Las formas y tipologías adoptadas ponen en valor los recursos de la arquitectura local, sin descuidar una lectura espacial y compositiva acorde con nuestro tiempo.

Casa CL por Estudio Arquitectura Hago. Fotografía por Gabriel Gallego.
Descripción del proyecto por Estudio Arquitectura Hago
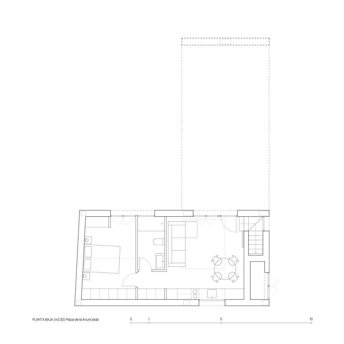
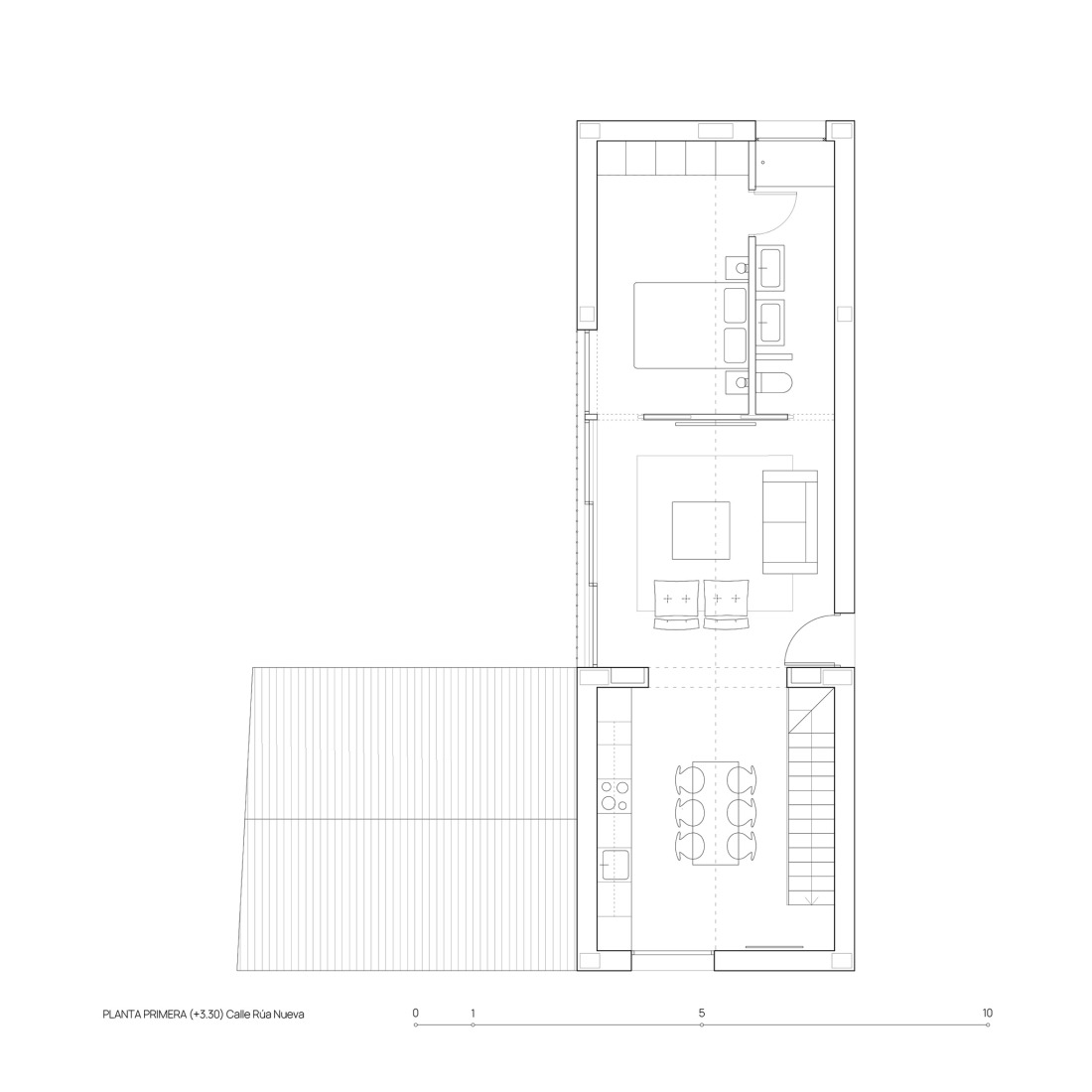
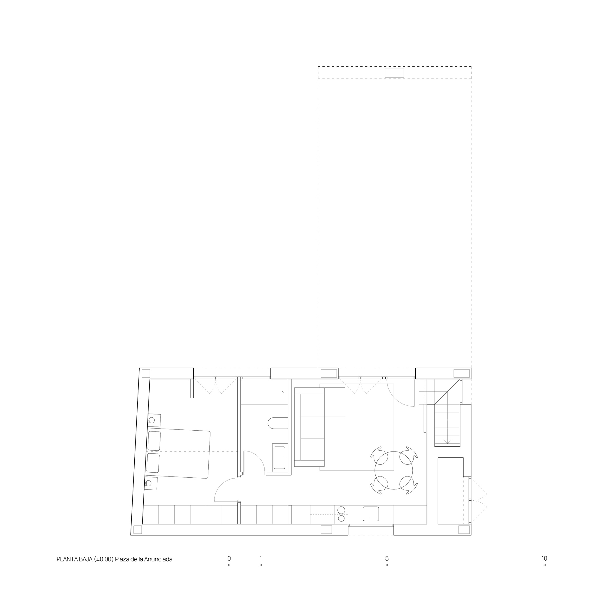
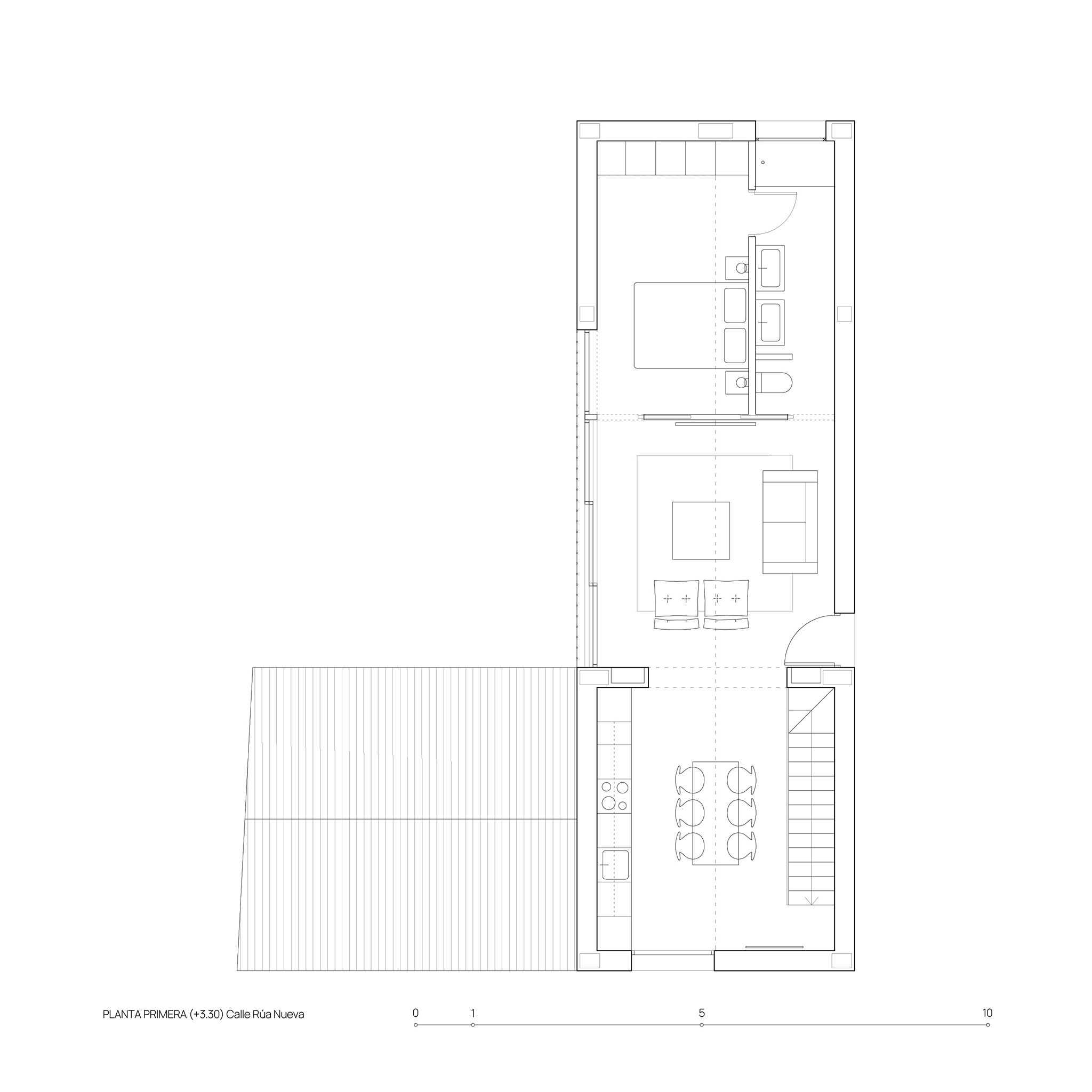
La vivienda se sitúa en el Centro Histórico de Villafranca del Bierzo, junto al Convento de la Anunciada y próxima al encuentro de los ríos Valcárcel y Burbia. La parcela, que ocultaba las ruinas de una antigua construcción de piedra, presenta una compleja condición topográfica, con distintos frentes de fachada desarrollados en dos niveles: uno superior, con acceso desde la Rúa Nueva, y otro inferior vinculado a la Plaza de la Anunciada.
El proyecto dialoga con las formas y tipologías de la arquitectura local y plantea una intervención que media con el entorno a través de dos volúmenes yuxtapuestos, concebidos como una charnela entre ciudad, paisaje y memoria construida. El volumen superior se proyecta como un mirador abierto al valle, mientras que el inferior se organiza en torno a un patio de carácter histórico, definido por las preexistencias de piedra recuperadas durante la excavación.
Ambos niveles cuentan con una organización doméstica completa —salón/cocina, baño y dormitorio—, permitiendo que la vivienda pueda ser habitada de manera autónoma en cualquiera de las dos plantas y adaptarse así a distintos modos de uso a lo largo del tiempo.
En el exterior, dos decisiones fundamentales articulan la relación con la parcela y el espacio urbano. Desde la Rúa Nueva, una gran pasarela de acceso integra los muros de piedra en el paisaje construido, estableciendo una transición gradual entre la calle y la vivienda. En el nivel inferior, un soporte triangular invertido reestructura la parcela, generando un amplio porche y proporcionando al patio ángulos de privacidad frente a la Rúa Santa Clara.
El resultado genera una convivencia equilibrada entre arquitectura tradicional y las soluciones formales/tipológicas propuestas. La vivienda se inscribe en el tiempo adoptando los valores de la arquitectura local pero proyectando una lectura espacial y compositiva contemporánea.