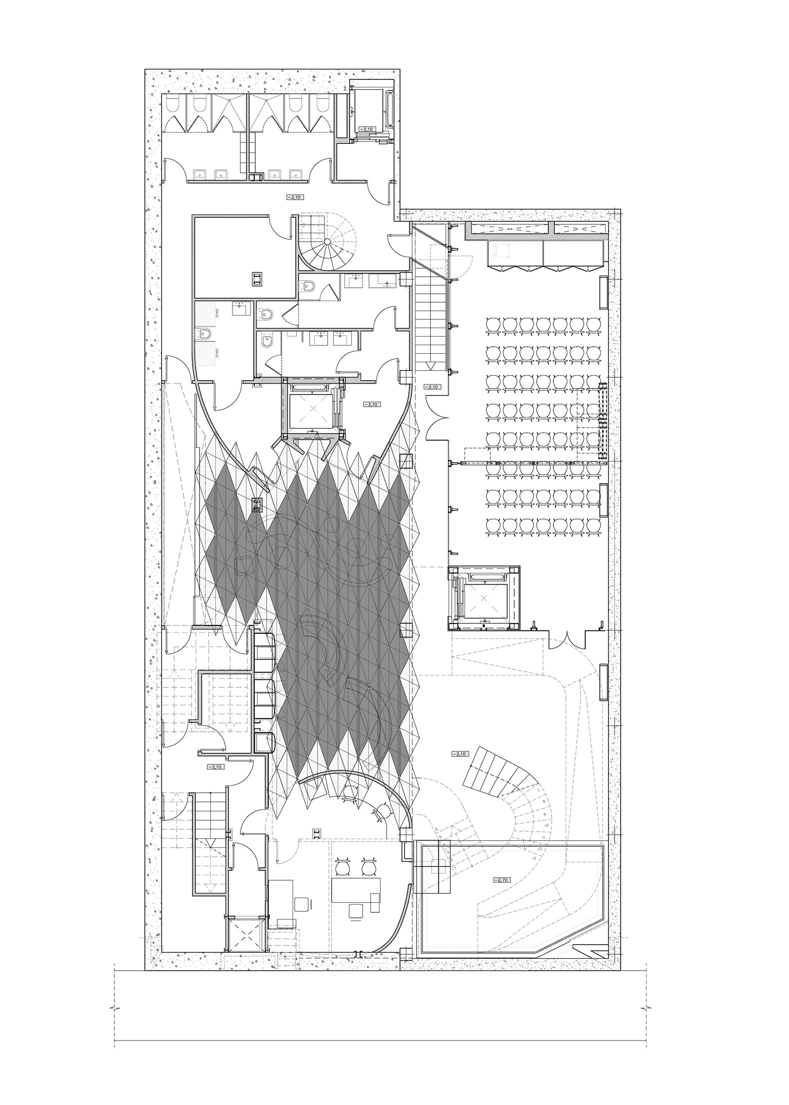
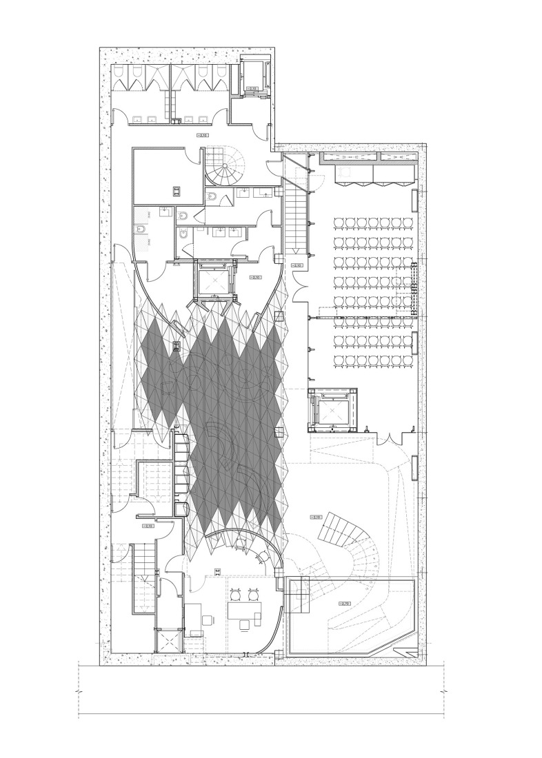
El hotel Silken Saaj, proyectado por estudioUAD, cuenta con una planta de acceso con un vestíbulo de doble altura que crea continuidad visual y perceptiva con el exterior. El programa de esta planta alberga en el nivel inferior la recepción y una sala polivalente, mientras que en el superior se sitúa la cafetería. Las habitaciones se distribuyen a lo largo de seis plantas y el ático, mientras que en la última planta se dispone una terraza acondicionada con vistas espectaculares de la bahía.
La propuesta incorpora una envolvente que funciona como un organismo vivo, conformada por 180 piezas de lamas de vidrio cuyas formas generan un efecto de fluctuación y movimiento que simula la caída gravitacional de un textil. Desde una dimensión temporal, la piel se configura y transforma según las condiciones del entorno, parametrizándolas en tiempo real. Durante el día, la fachada regula la incidencia solar mediante el uso de láminas dicroicas intercaladas en las piezas que conforman las lamas. Por la noche, la piel capta la intensidad del entorno urbano mediante sensores de luz y sonido y la reconfigura.
El Silken Saaj Maar se construyó en dos fases: la primera consistió en una rehabilitación estructural de un edificio preexistente con estructura metálica, y la segunda en la ejecución de un nuevo edificio con estructura de pórticos de hormigón armado sobre cimentación de micropilotes.

Hotel Silken Saaj por estudioUAD. Fotografía por estudioUAD.
Descripción del proyecto por estudioUAD
El hotel urbano SILKEN SAAJ se localiza en la primera línea del frente marítimo de Las Palmas de Gran Canaria, ocupando una posición liminal en la confluencia entre la bahía, la playa de Las Alcaravaneras y el Puerto de La Luz. El emplazamiento —con exposición directa al mar, orientación este y colindancia con una arteria de alta densidad vehicular transitada por 135.000 vehículos diarios— impone un paisaje complejo donde la incidencia de la luz solar directa y el ruido del tráfico constantes configuran una situación de alta exigencia ambiental. Estos dos estímulos dominantes —luz y ruido— son codificados como variables primarias para el diseño y activación del sistema envolvente. La estrategia proyectual, bien lejos de tratar de aplacar estos estímulos, busca reintegrarlos como materia operativa del diseño.
Conceptualmente, el edificio se plantea no como una entidad estática, sino como una entidad relacional y situada, cuya forma y sentido emergen en interacción continua con el contexto. La envolvente arquitectónica es organismo activo capaz de adaptarse y transformarse frente a condiciones cambiantes. Este enfoque se concreta en una arquitectura responsiva en tanto en cuanto sus cualidades físicas son cambiantes y se expresan como una respuesta a determinados estímulos del medio circundante —estímulos que son parametrizados, convertidos en datos. Desde esta óptica, la arquitectura se transforma en un campo performativo, donde lo tectónico y lo dinámico se articulan como un único sistema de acción y percepción.
La propuesta del hotel SILKEN SAAJ se inserta en esta confluencia teórica y proyectual mediante el desarrollo de una piel reactiva que actúa como interfaz sensible entre el edificio y su entorno urbano. Más allá de regular factores ambientales como la radiación solar o el ruido, esta envolvente interpreta la luz y el sonido del tráfico como componentes expresivos del proyecto. Así, la arquitectura se concibe como un sistema abierto basado en la lógica de los sistemas complejos, capaz de reorganizarse frente a estímulos cambiantes. En este marco, luz y ruido se configuran como variables primarias que activan el comportamiento dinámico de la envolvente.
Formal y materialmente, la fachada se compone de una matriz de lamas de vidrio, cuyo diseño paramétrico simula la caída gravitacional de un textil, logrando un efecto plástico de fluctuación y movimiento latente. Esta morfología es resultado de un proceso de fabricación digital avanzada, que culmina en la producción mediante CNC de 180 piezas únicas de vidrio, cada una respondiendo a condiciones específicas de su posición en la envolvente.
Desde una lectura fenomenológica, la luz no es tratada como un fenómeno físico absoluto, sino desde su dimensión temporal y afectiva: su variación configura la experiencia del habitar en el transcurso del día. Esta condición llevó al desarrollo de una estrategia de respuesta bifásica. Durante el día, la fachada opera como un dispositivo de regulación pasiva, controlando la incidencia solar mediante el uso de láminas dicroicas intercaladas en las 180 piezas que configuran las lamas. Estas capas generan efectos iridiscentes que varían en función del ángulo solar y del punto de vista del observador, instaurando una relación mutable entre el edificio y el paisaje. Durante la noche, el sistema se reconfigura: sensores de luz y sonido captan las intensidades del entorno urbano inmediato —faros de vehículos, ruido del tráfico— y los parametrizan en tiempo real, transformándolos en pulsos lumínicos que son emitidos nuevamente a la ciudad como una gran superficie retroalimentada, reconfigurando la fachada en una suerte de pantalla sensible, viva y situada.
El edificio funciona en el marco conceptual de los sistemas vivos, como un organismo capaz de registrar, transformar y devolver al paisaje urbano los estímulos que recibe, como el medio que suministra condiciones de intercambio entre cuerpo y entorno para habitar la inestabilidad —o el equilibrio inestable. El proyecto ofrece una respuesta que es al mismo tiempo técnica, poética y política y ecodependiente.
La intervención se articula en dos fases constructivas: por un lado, la rehabilitación estructural de un edificio preexistente con estructura metálica, la cual se refuerza para permitir su integración en un nuevo ciclo funcional sin incrementar la huella medioambiental; por otro, la edificación de un nuevo edificio con estructura de pórticos de hormigón armado sobre cimentación de micropilotes. El mecanismo estructural resultante, por medio del cual la segunda fase constructiva en hormigón armado termina por asumir parte de las cargas de la estructura metálica antigua, hace posible la demolición de una línea completa de pilares metálicos, abriendo nuevas opciones espaciales.
En la planta de acceso, el proyecto organiza un vestíbulo de doble altura concebido como un espacio de transición entre el ámbito urbano y el interior del hotel. Este núcleo articulador concentra los usos comunes principales: en el nivel inferior se ubican la recepción y un salón polivalente divisible mediante paneles móviles, mientras que en el nivel superior se sitúa la cafetería. La estrategia espacial responde a una lógica de continuidad visual y perceptiva con el exterior, entendido como una extensión filtrada del espacio urbano. Por ello, se incorporan espejos en el revestimiento de paneles en forma de diamante del lobby y los patios, orientados hacia el mostrador de recepción. El conjunto se concibe como un montaje visual que introduce la imagen del acceso exterior en el interior, permitiendo al recepcionista observar desde abajo lo que sucede en el nivel superior. Las circulaciones verticales del lobby, junto con el ascensor panorámico, se resuelven mediante un sistema de rampas metálicas y dos escaleras, una de ellas de planta helicoidal.
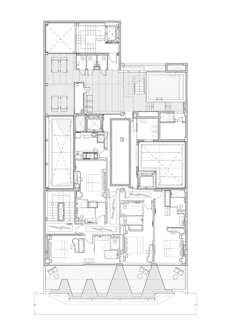
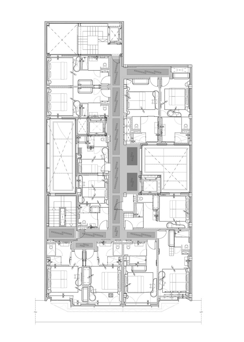
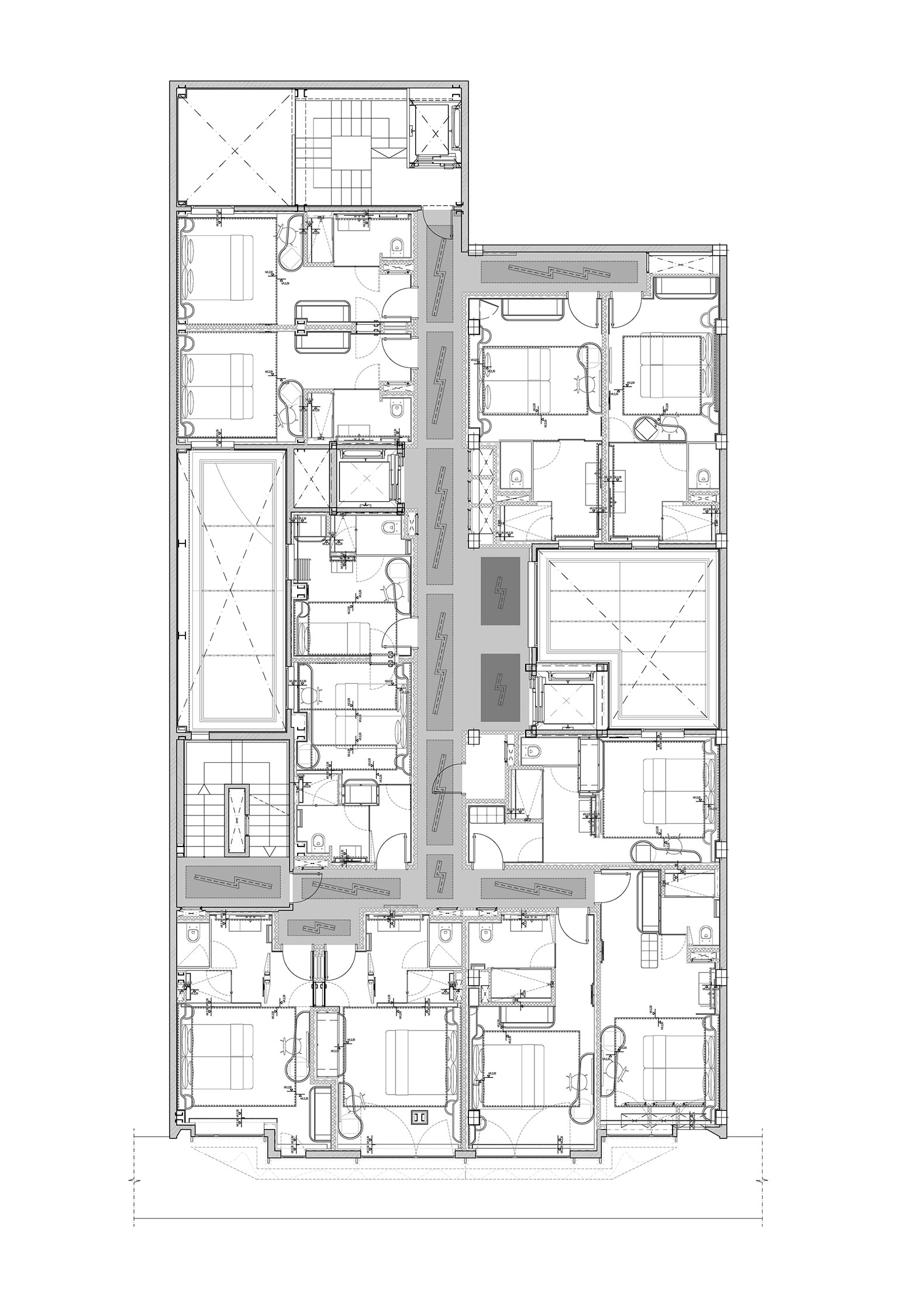
Las unidades alojativas se distribuyen en seis plantas y un ático con terrazas privadas. El hotel ofrece un alto nivel de confort, diseño y eficiencia energética, integrando control solar, domótica y aislamiento acústico. El interiorismo reinterpreta elementos de la iconografía clásica de los hoteles de lujo, construyendo un relato visual coherente orientado a su difusión en redes sociales.
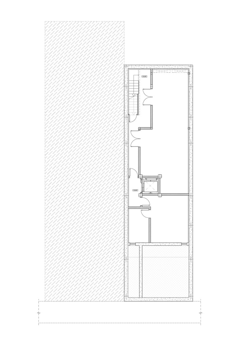
En el nivel más alto un rooftop panorámico, destinado a actividades de restauración y ocio, ofrece vistas privilegiadas sobre la bahía, consolidando la experiencia del hotel como un enclave urbano abierto al frente marítimo.