The GREENH@USE project, designed by Peris + Toral Arquitectes, fosters cohesion among diverse user profiles by offering a variety of residential typologies, ranging from one-bedroom apartments for seniors to two-bedroom social housing units and temporary accommodation. The complex is complemented by a program of shared spaces for the senior residents, including a laundry room, drying areas, multipurpose spaces, and community gardens.
During its construction, the building employed a series of strategies designed to minimise greenhouse gas emissions. To this end, prefabricated concrete structures and exposed materials were used, with wood serving as cladding. Addressing the comfort needs of its residents, GREENH@USE reflects a holistic approach to sustainability—economic, social, and environmental.

GREENH@USE by Peris + Toral Arquitectes. Photograph by José Hevia.
Project description by Peris + Toral Arquitectes
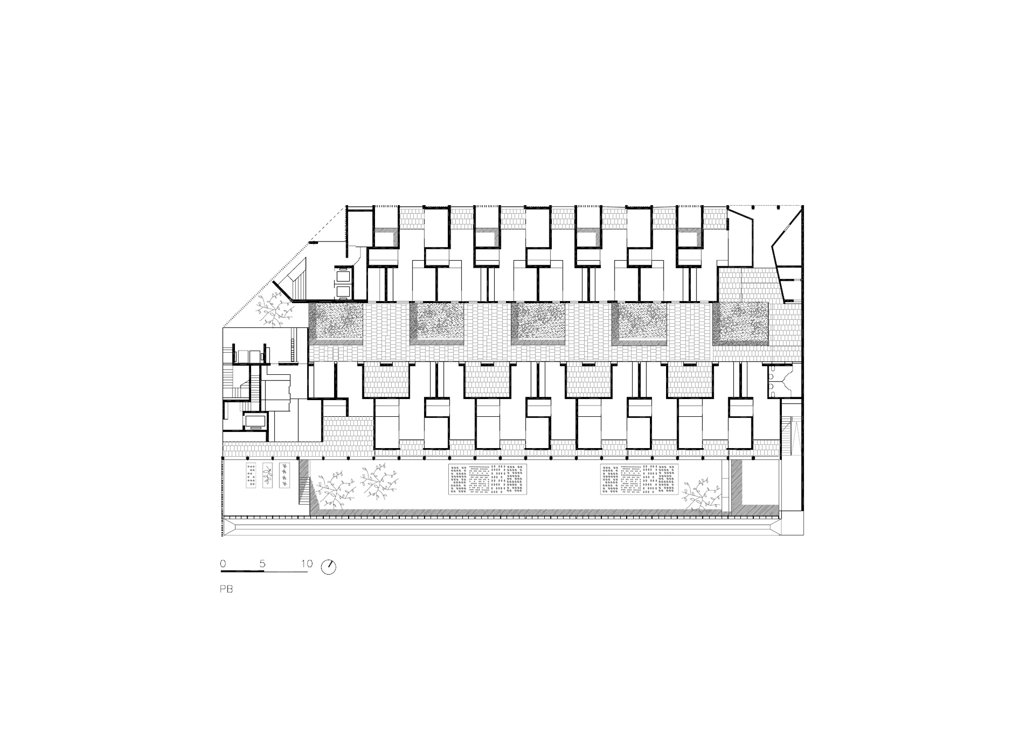
The building is set in the urban fabric of the 22@ district, covering the party wall and following the layout of Cerdà’s Eixample grid along the street, the chamfered corner and the passageway. The buildable depth of the plot and the height stipulated by urban planning (eight floors) require the creation of space inside in the form of courtyards to light and ventilate the various housing programmes that coexist independently in the building.
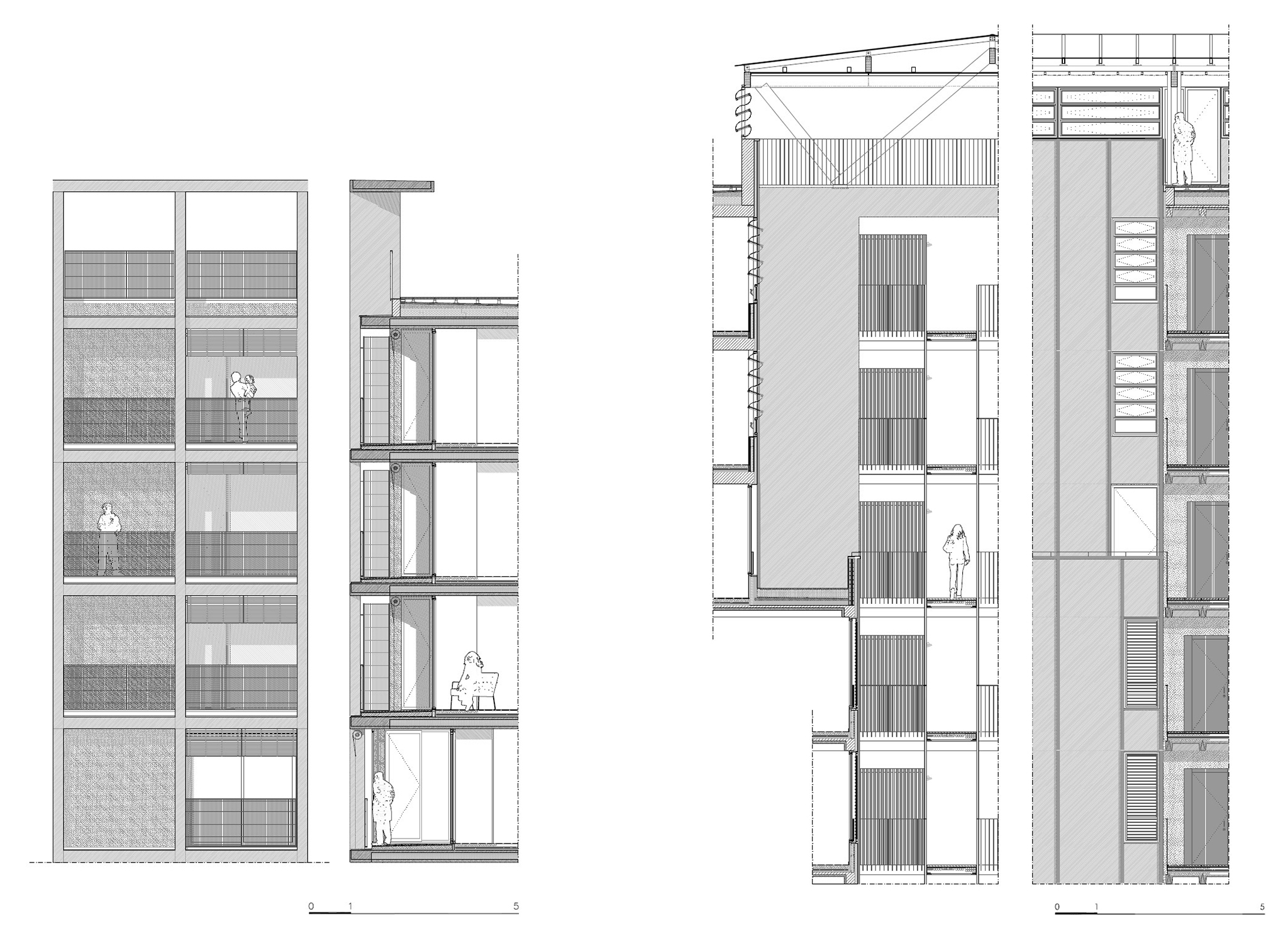
The one-bedroom social homes for older people are situated on the top three floors, above four floors of two-bedroom social rental homes and a ground floor of temporary accommodation. This stratification of the brief serves to create larger courtyards on the upper floors where the smaller homes are located in order to improve daylighting throughout.
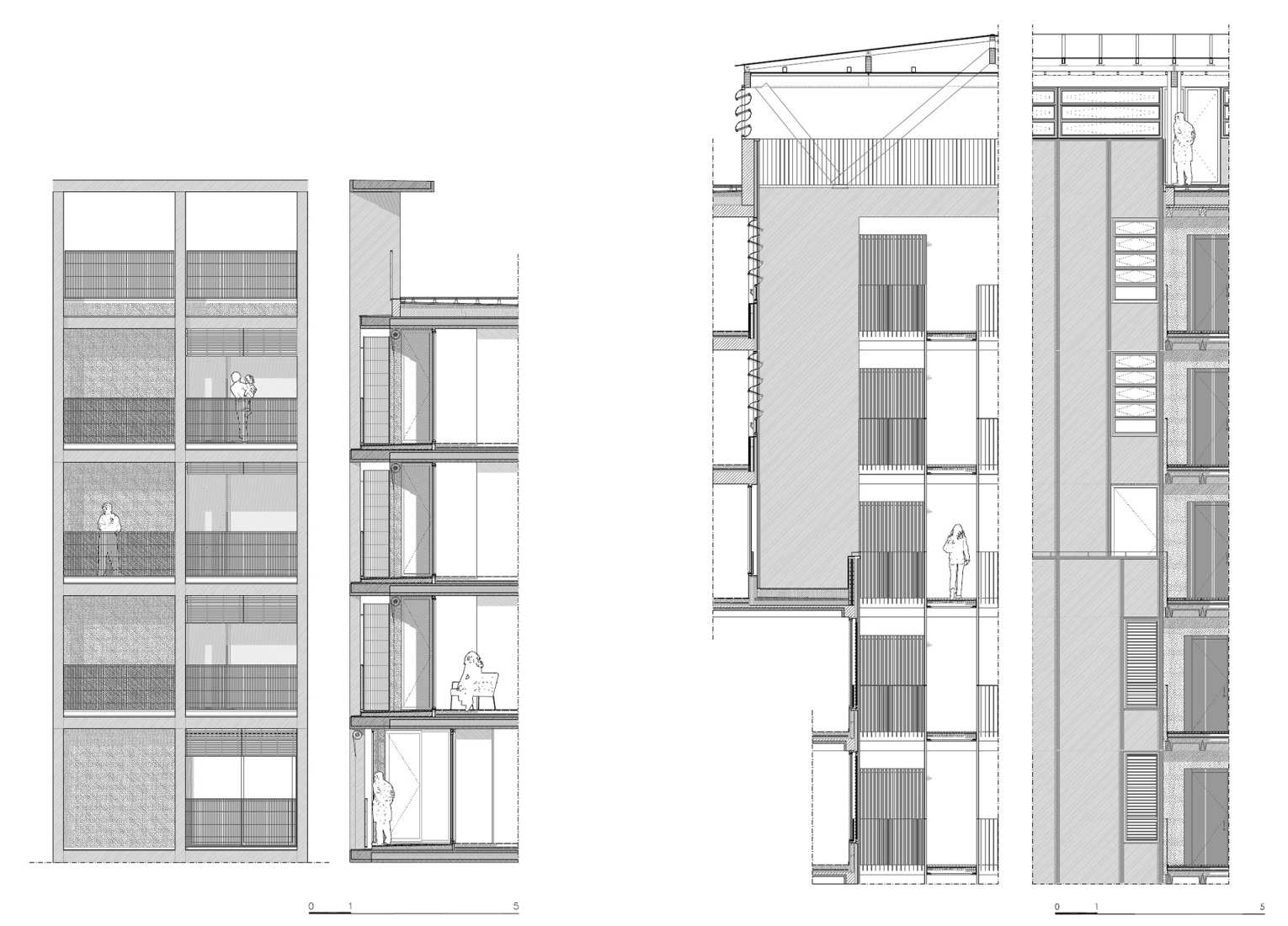
The floor plan is laid out with 20 homes per floor, arranged around a walkway that functions as a raised access, crossing a sequence of five courtyards and entrance landings. Each landing has four entranceways, formalized by wooden latticework structures that filter views and air, regulating privacy and encouraging occupants to appropriate the space. Each home is organized by two diagonal spaces—connecting a kitchen-diner with the entrance, and the living room with the terrace—that lead directly to the bedrooms to avoid the need for corridors.
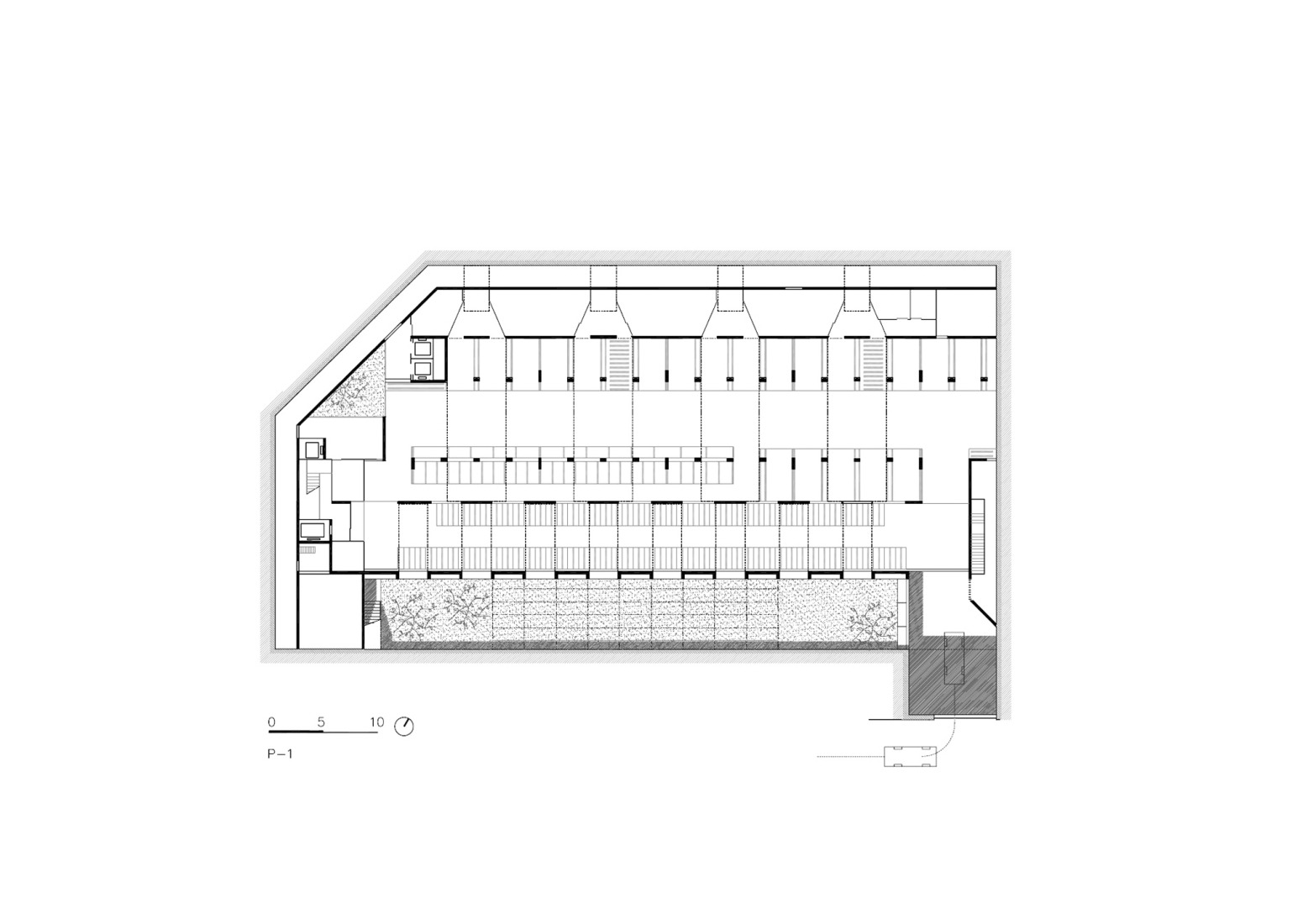
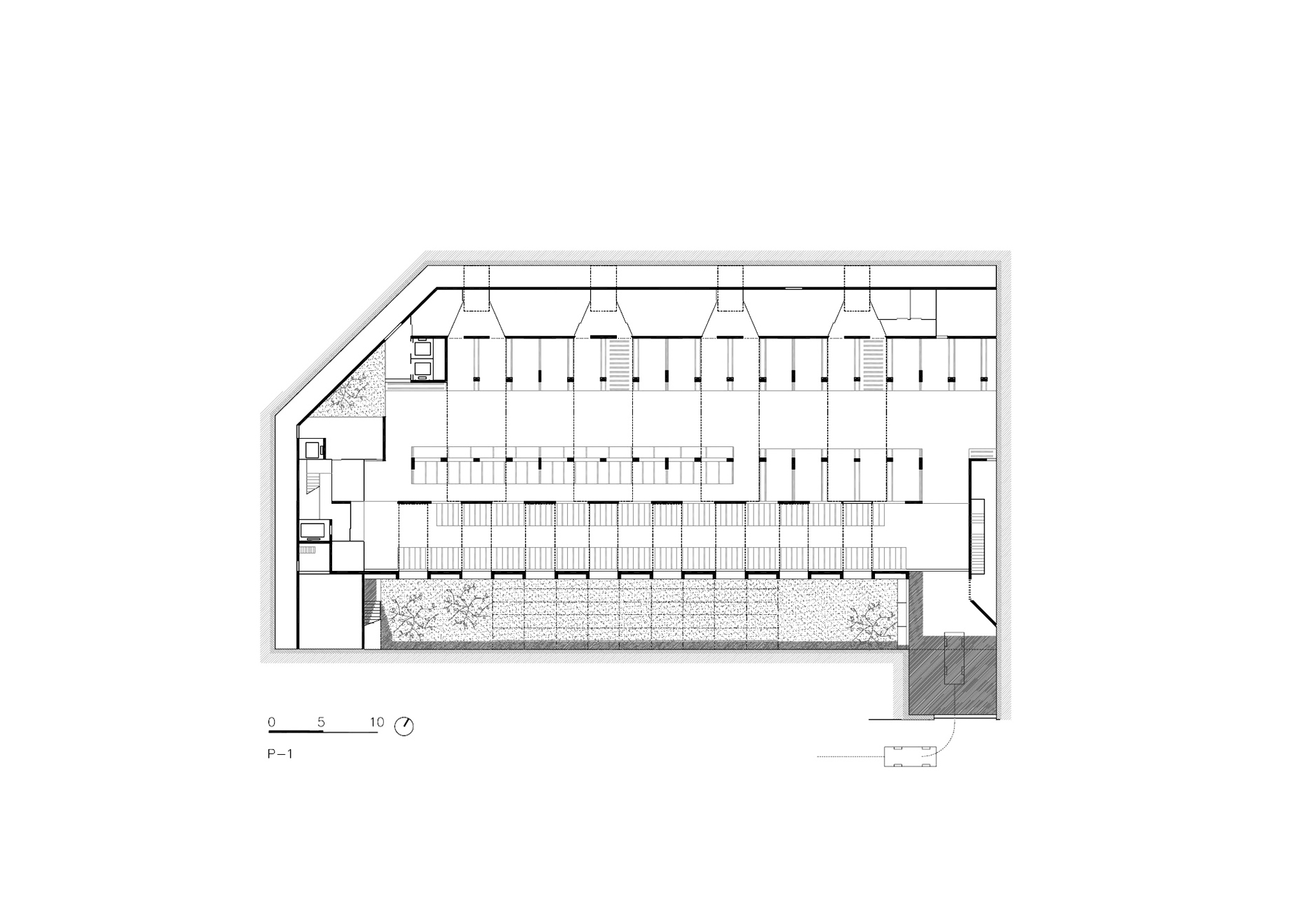
Floor eight houses the shared facilities of the homes for seniors, including a community laundry, clotheslines, solarium, urban allotments and multipurpose spaces. Above, a great glass roof envelops the five courtyards, transforming them into a bioclimatic atrium that varies in function according to the season: a heat collector in winter and a thermal chimney in summer. This creation of space within the building is an environmental strategy that passively reduces energy demand, at the same time acting as a social condenser.
On the ground floor, a planted sunken yard in contact with the passageway makes for natural ventilation of the car park and provides the atrium with incoming air, key to its thermodynamic behaviour. The thermal inertia of the prefabricated concrete structure, the hygroscopicity of the timber and the acoustic absorption of the plaster in the courtyards ensure the comfort of this tempered intermediate space.