"Lighthouse" tower designed by De Zwarte Hond promotes urban living and maximises views and natural light, improving the quality of life for its future residents, who will have outdoor space in each of the homes in the form of “loggias” and rooftop gardens. The transparent plinth will house public services that will revitalise the urban environment. The basement will incorporate bicycle parking, promoting sustainable mobility.
The structure of the residential building is defined by a stepped volume that combines brick, concrete, aluminium and glass in a robust façade with handcrafted details and a diagonal serration that creates visual continuity with the old engine room, respecting the industrial heritage so present in this town.

"Lighthouse" by De Zwarte Hond. Photograph by Sebastian van Damme.
Project description by De Zwarte Hond
The Strijp-S area development
West8 desgined the urban development plan for Strijp-S, a relatively new neighbourhood that housed Philips factories until the mid-20th century. "Lighthouse" is the final element of this plan, located at the start of Philitelaan between the Klokgebouw and the Machinekamer (Engine Room), and opposite the Gloeilampplantsoen (Light Bulb Park). De Zwarte Hond’s design features a vertical brick sculpture with varying height levels that relate to the iconic buildings in the immediate vicinity. The lantern at the top and the evening lighting on the façades are an ode to the history of this place.
A rugged façade with details right up to the top
The architecture of "Lighthouse" exemplifies craftsmanship. From the plinth to the crown, attention has been paid to the materialization and detailing, in the tradition of Dirk Roosenburg, the architect of many of the early Philips buildings. "Lighthouse" is constructed from four materials: brick, concrete, aluminium and glass. Where the building tapers, horizontal lines and space for communal roof gardens emerge. The diagonal line of the building is emphasized by an impressive serration, which connects to the monumental colonnade on the square adjacent to the Machinekamer. This is also where the striking entrance to the residential building’s lobby and amenities is located.
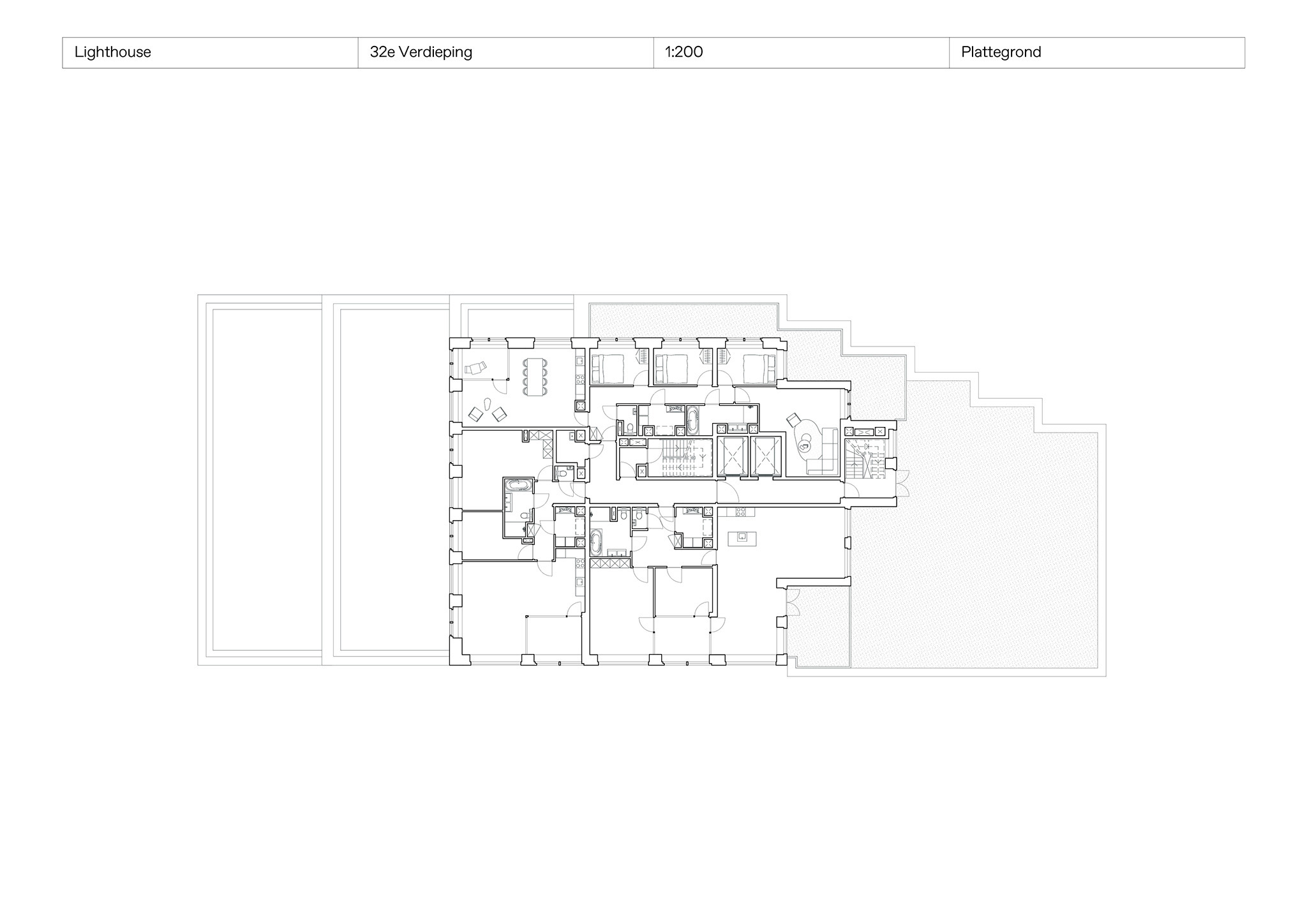
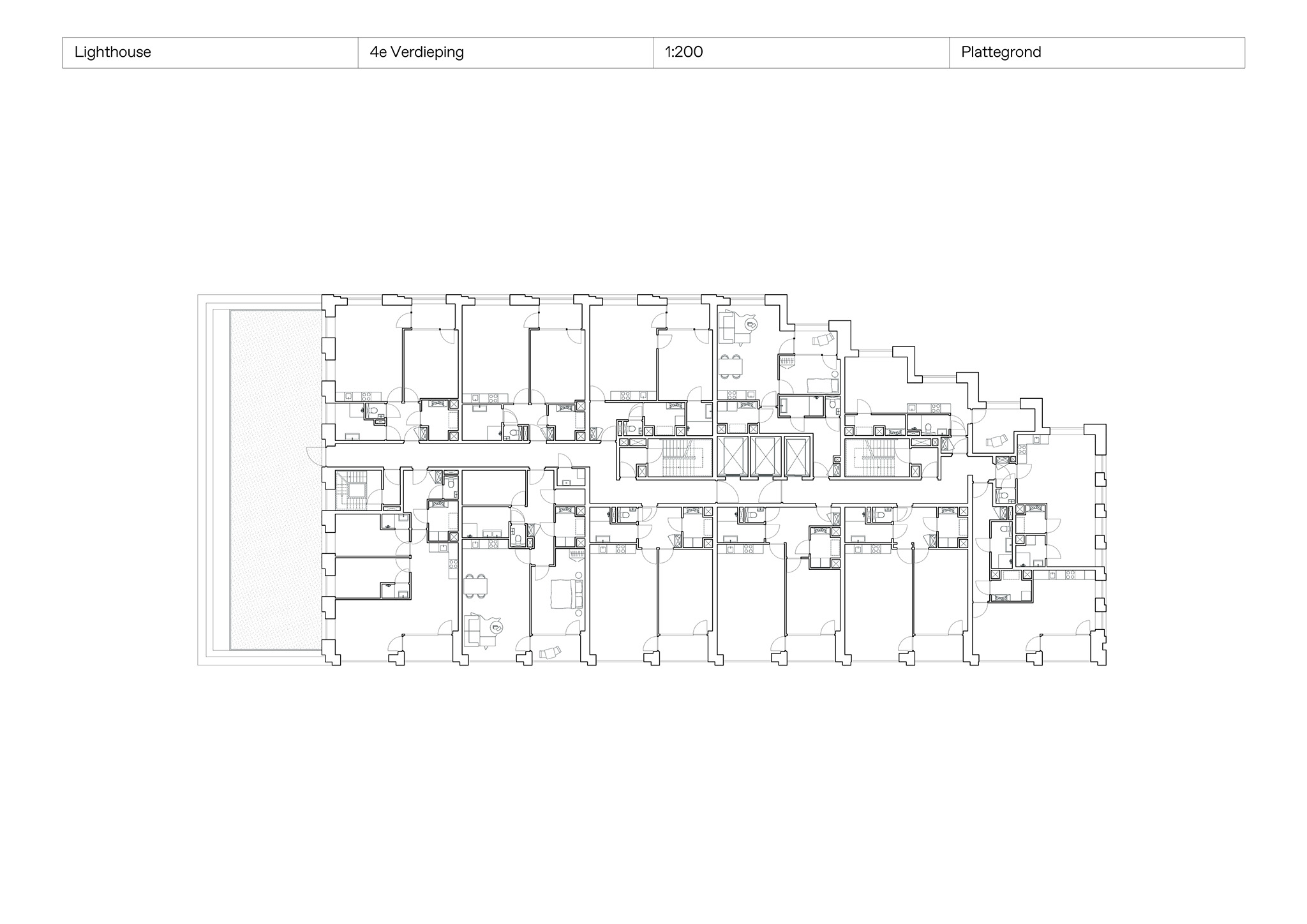
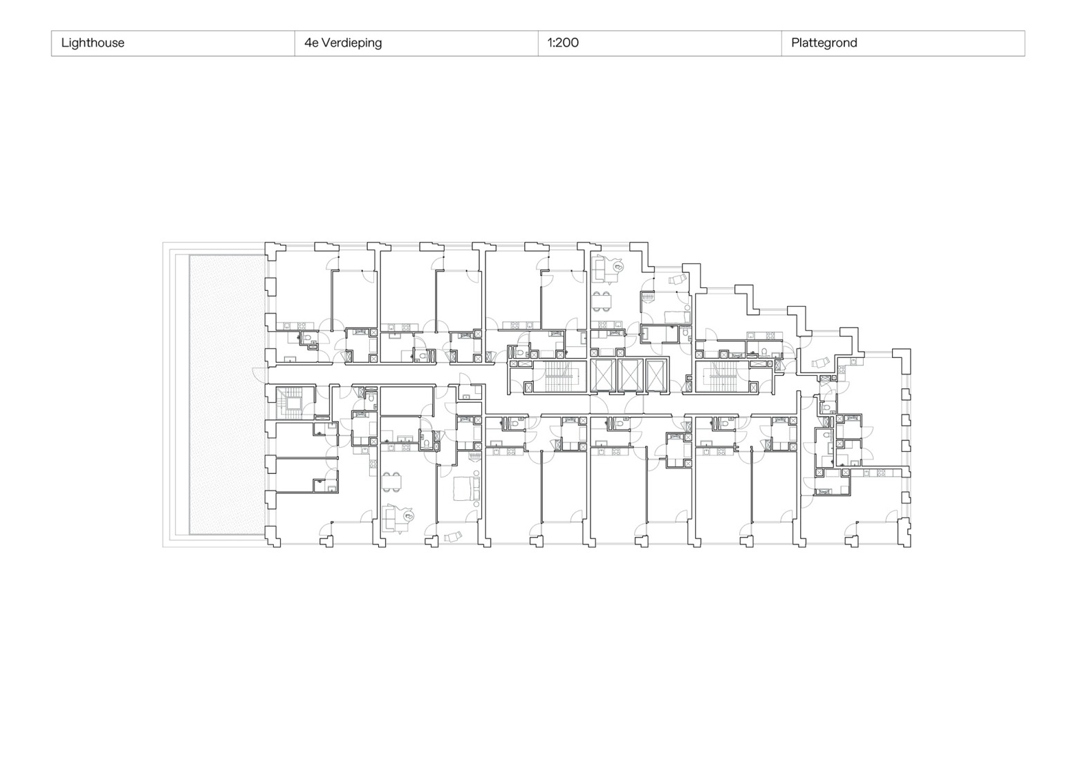
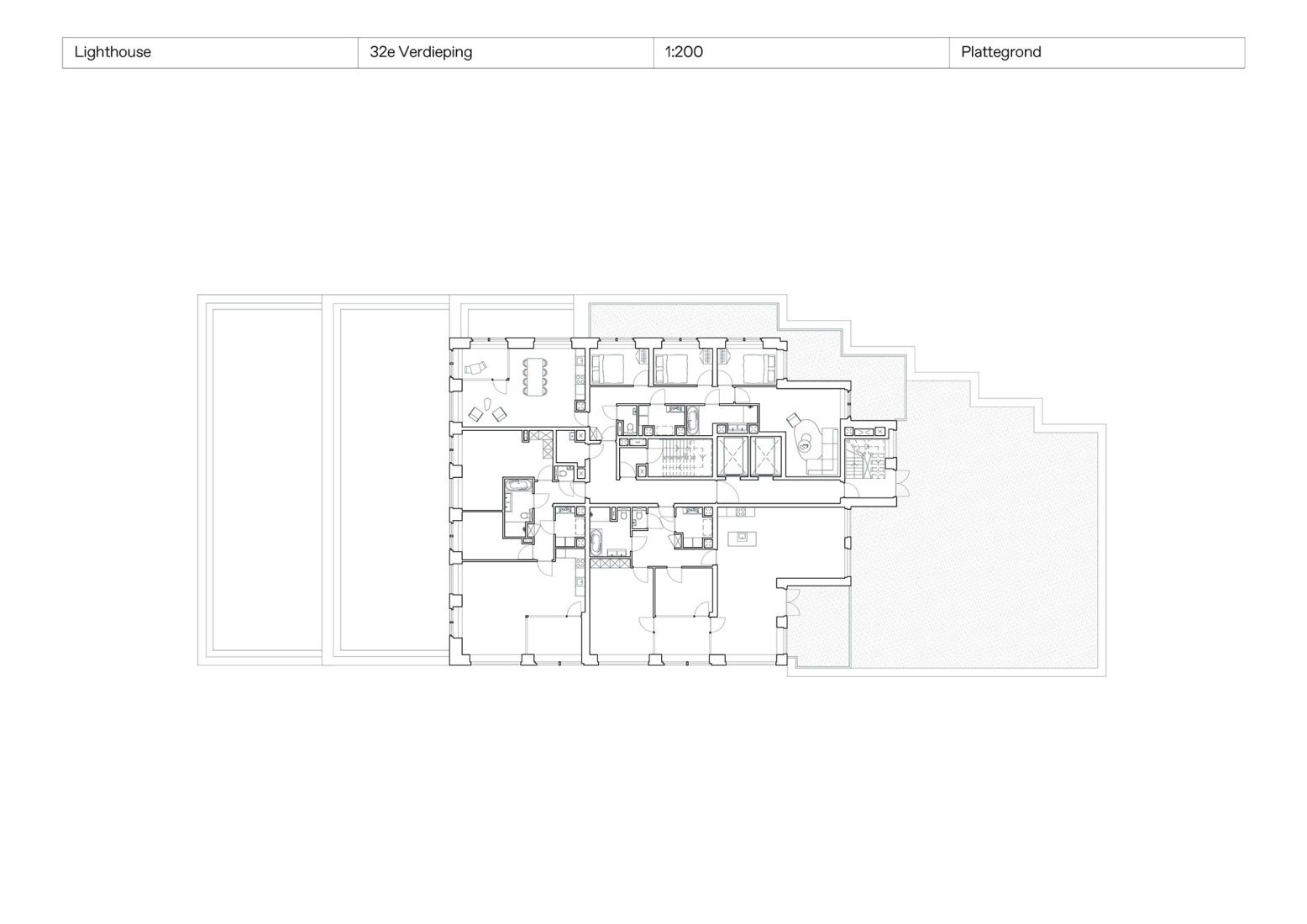
Each apartment has a private outdoor space integrated into the building’s volume. On the south side, these are spacious indoor balconies, while on the north side, loggias in the tower mitigate noise pollution from the adjacent railway line.
A liveable high-rise
The building’s basement provides bicycle parking and storage space, as well as housing the technical installations, which allows the plinth to remain transparent and open. Public amenities are spread over two floors here, adding to the vibrancy of the square (the Machinekamerplein). "Lighthouse" is within walking distance of Eindhoven Strijp-S station. Cars will be parked in the nearby shared parking hub. Shared roof gardens at various heights provide meeting places, while each individual apartment has a French balcony or a winter garden.
Feasibility and architectural quality
The development of "Lighthouse" has a long history, encompassing several feasibility studies. In 2019, De Zwarte Hond and SDK together established an integrated project team with equal representation from all partners. De Zwarte Hond oversaw the design process, during which the spatial design, urban planning requirements and financial feasibility were developed in parallel.
The final design maximizes rentable floor space without compromising architectural quality. The large floor-to-ceiling windows in each home are an example of this.
“In addition to providing residents with ample daylight and great views, these windows create large alcoves. This optimizes both revenue and the quality of life for residents.”
De Zwarte Hond.