The project of scob features 1,150 m² of green roofs, 460 m² of climbing plants on the rear façade, and 1,000 m² of native vegetation on terraces and the courtyard. These outdoor spaces are intended for the leisure and relaxation of the building's users and residents. The building has been designed with a spacious, two-story main entrance leading to an open and flexible interior. The parking garage, which benefits from natural light and ventilation, includes an area for bicycles and scooters.
The project utilizes and enhances over 80% of the original 1986 building structure. The main façade, facing Aribau Street, is integrated compositionally and chromatically into the Eixample district's urban environment with prefabricated concrete elements that emulate the Montjuïc stone, which is prevalent in the surrounding urban façades. The interior facade facing the courtyard promotes the relationship of the building with the garden through large continuous balconies of prefabricated metal modules.

Renovation of the Aribau195 building by scob. Photograph by Adrià Goula.
Project description by scob
A building of flexible spaces
The Aribau195 office building contributes to the modernization of the city's real estate stock through a large-scale renovation focused on the core and shell.
The architectural and landscape design is guided by environmental, social, and governance (ESG) factors. A key element is the strategy to minimize the building's carbon footprint by providing green spaces rich in biodiversity, aligned with the developer's objectives. Thanks to the applied sustainability criteria, as well as the attention paid to user well-being, environmental impact, and the building's energy efficiency, the project has achieved LEED Platinum and WELL Gold certifications.
The project's unique concept lies in its balanced approach, combining the building's comprehensive modernization, while respecting Barcelona's architectural heritage, with the creation of 1,200 m² of open space per floor, featuring expansive green areas.
The building's main entrance features a spacious, open-plan area with two levels. On the left, a striking ceramic composition in shades of green stands out, the color palette that will be used throughout the project. This composition creates textures that change with the light throughout the day.
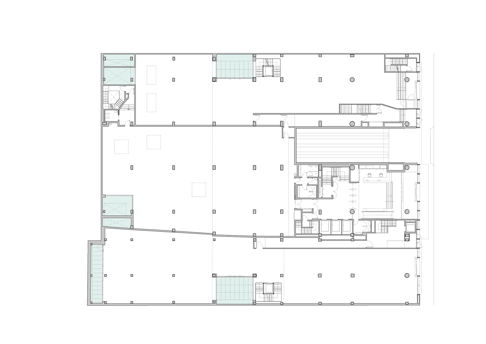
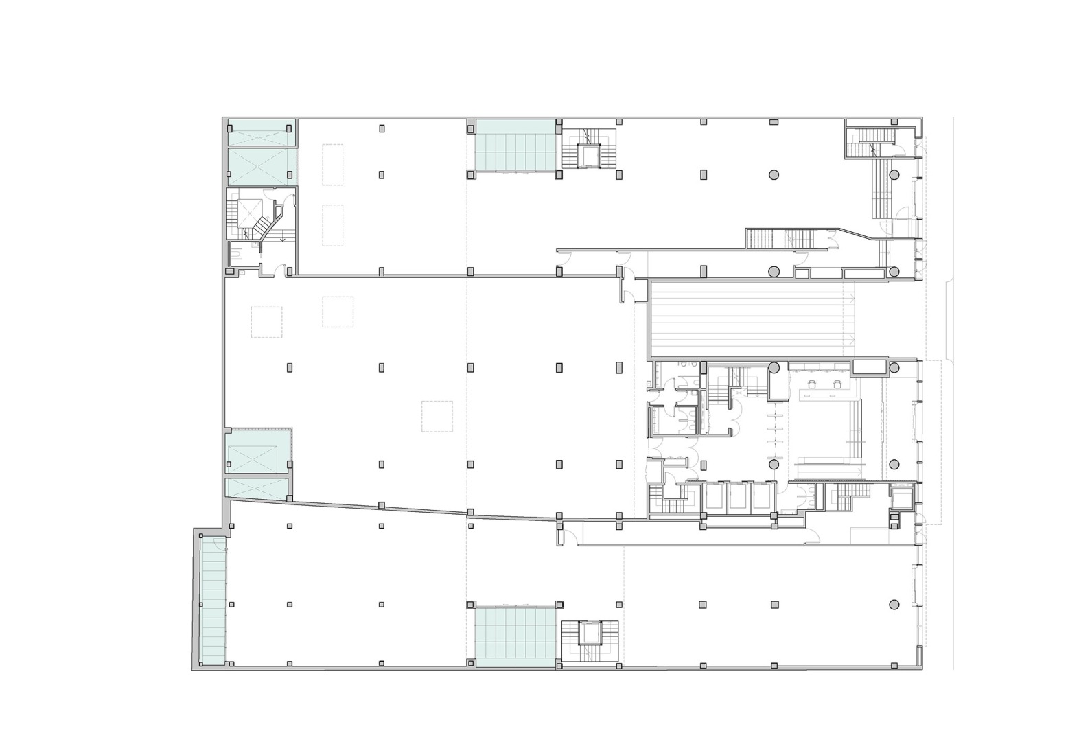
The interior layout groups the fixed elements and building services in the center, offering flexible, open, and luminous interiors with natural cross-ventilation. The renovation highlights the original structure of this space, leaving the waffle slab with its recoverable coffers exposed as a focal point, while integrating all the building services. This solution integrates the existing structure with the new installations and allows the entire floor to have the necessary height for office use, extending the building's lifespan.
The building's parking garage, with natural light and ventilation, and a large area for bicycles and scooters, has been completely remodeled using the same green color scheme.
The materials used minimize the carbon footprint throughout the building's entire life cycle, while providing warmth, a sense of home, and comfort for the end user.
Empathy with the environment: Barcelona's Eisfancy district
The proposal for Aribau 195, with an approach that connects architecture and landscape, successfully renovates a landmark office building while simultaneously promoting the recovery of the spirit and identity of the 1859 Cerdà Plan, a symbol of the egalitarian principle of Barcelona's urban planning. The adaptation to the neighborhood's architectural context is reflected both in the building's envelope and in the interior courtyard garden.
This project highlights the potential offered by the Eixample district and its interior courtyards in the pursuit of re-naturalizing the city. It is estimated that the district has 45 interior courtyards partially restored by the Barcelona City Council, out of a total of 520 existing ones.
Building envelope and roof
The project renovates and expands a pre-existing office building and its interior courtyard, which houses building services. It utilizes over 80% of the original structure, promoting the volumetric, compositional, and material integration of the entire building within the context of Barcelona's Eixample district.
The main façade on Aribau Street prioritizes compositional and chromatic integration. To achieve this, a prefabricated, high-density architectural concrete element was designed specifically for the building. This element emulates the Montjuïc stone—now lost—and provides order, rhythm, and color in harmony with its surroundings. The building thus revives the tradition of stone façades with wooden windows characteristic of Eixample buildings.
The interior façade facing the courtyard fosters a connection between the offices and the garden, providing large, continuous balconies composed of prefabricated metal modules, assembled on-site and incorporating climbing vegetation. These balconies offer protection from the southwest sun and passively improve energy efficiency.
The project features 1,150 m² of green roofs. This area is complemented by 460 m² of vertical vegetation on the rear façade, which offers benefits to the city. These benefits include increased biodiversity in the surrounding area, improved air quality through CO2 absorption, a humidity-regulating effect that helps mitigate the urban heat island effect, and excellent thermal insulation.
Both façades, along with the green roofs, prioritize bioclimatic performance and seamless integration with the surrounding landscape.
Indoor garden. Healthy habitats
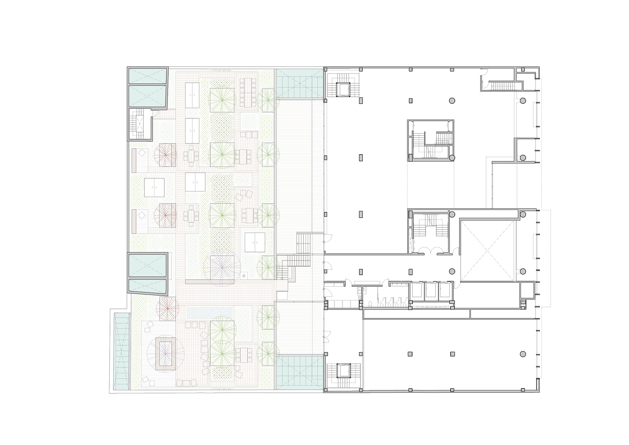
The project focuses on revitalizing the interior of the block through strategies that contribute to the naturalization of the city, increased biodiversity, and improved urban ecology for the benefit of its residents.
To this end, vegetation has also been planted on terraces and in the 1,000 m² courtyard. The new outdoor spaces, designed for work or leisure activities, include immersive green areas with more than 5,000 plants and 16 trees, as well as a small garden for the residents.
The proposed vegetation is native and adapted, with low water consumption, and the irrigation system is designed to reuse greywater and follow sustainability criteria. Furthermore, improved climate comfort and solar radiation control are achieved through the incorporation of climbing plants and deciduous trees that provide shade in summer and allow sunlight in winter.
Creating outdoor spaces in the courtyard, for resting, eating, walking or exercising during the day, has been another priority action of the project, to make it a more natural, fresh and friendly place, designed for the well-being of users, neighbors and ultimately, the city.