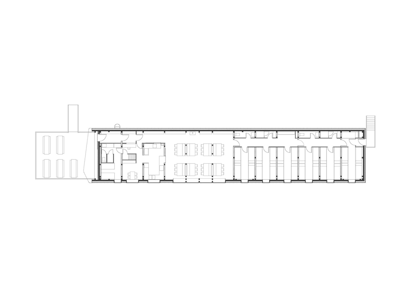
El refugio de montaña, proyectado por Altura arquitectes, está pensado desde parámetros contemporáneos que facilitan la accesibilidad y brindan protección a sus usuarios frente a las inclemencias del tiempo y las temperaturas extremas. El volumen longitudinal del edificio contiene un conjunto de habitaciones, servicios de restauración, bar y guías de rutas.
El proyecto se realizó con materiales prefabricados, utilizando madera laminada y una envolvente que mantiene su condición aislante para proteger del exterior, completando el conjunto con una serie de paneles solares térmicos y fotovoltaicos. El edificio fue levantado sobre los restos de muros de piedra pertenecientes a una construcción preexistente, que fueron utilizados a manera de zócalo estructural para lograr una edificación compacta, reducir costes y minimizar el impacto ambiental en el entorno.

Refugio de l’Illa por Altura arquitectes. Fotografía por Pol Viladoms.
Descripción del proyecto por Altura arquitectes
Refugio de l’Illa | Arquitectura ligera y autosuficiente en alta montaña
El Refugio guardado de l’Illa se sitúa a 2.488 metros de altitud, en el valle de Madriu-Perafita - Claror, declarado Patrimonio Mundial por la UNESCO. El nuevo edificio se apoya sobre los muros de piedra del antiguo refugio, utilizándolos como zócalo estructural para reducir la cimentación, los movimientos de tierra y el impacto ambiental. El resultado es una construcción compacta y respetuosa con el paisaje, que combina precisión técnica y sostenibilidad.
Debido a la imposibilidad de acceso rodado - el transporte se realiza exclusivamente en helicóptero, la elección de materiales ligeros y prefabricados fue determinante para reducir costes, emisiones y tiempo de ejecución. El refugio se completó en ocho meses, con un peso total de apenas un tercio del de una obra convencional.
La estructura se resuelve mediante cerchas de madera laminada que aprovechan toda la sección para transmitir las elevadas cargas de nieve desde la cubierta hasta los muros existentes. La madera, dejada vista en el interior, aporta calidez, confort y una lectura honesta del sistema constructivo, reforzando el carácter acogedor en su interior.
El edificio es energéticamente autónomo y está completamente desconectado de las redes. Un conjunto de paneles solares térmicos y fotovoltaicos, integrados en la cubierta inclinada a 52°, garantizan la producción de energía.
La envolvente, altamente aislada, y un sistema de ventilación con recuperador de calor minimizan la demanda energética.
El Refugio de l’Illa ejemplifica una nueva forma de construir en alta montaña: ligera, eficiente y respetuosa con el entorno, donde cada decisión técnica responde a una lógica ambiental y donde la sostenibilidad no es un añadido, sino la esencia misma del proyecto.