El edificio «Post Headquarters - Helix» ideado por Metaform, cuenta con una capacidad para 1.000 empleados en 22.370 m², conformado por espacios de trabajo, reunión y públicos, con una fachada caracterizada por sus distintivas lamas verticales de piedra que aportan ritmo y profundidad. En su interior, cada departamento se conecta en torno a un amplio y luminoso atrio central, destacado por una escalera monumental de treinta metros de altura en forma de caracol.
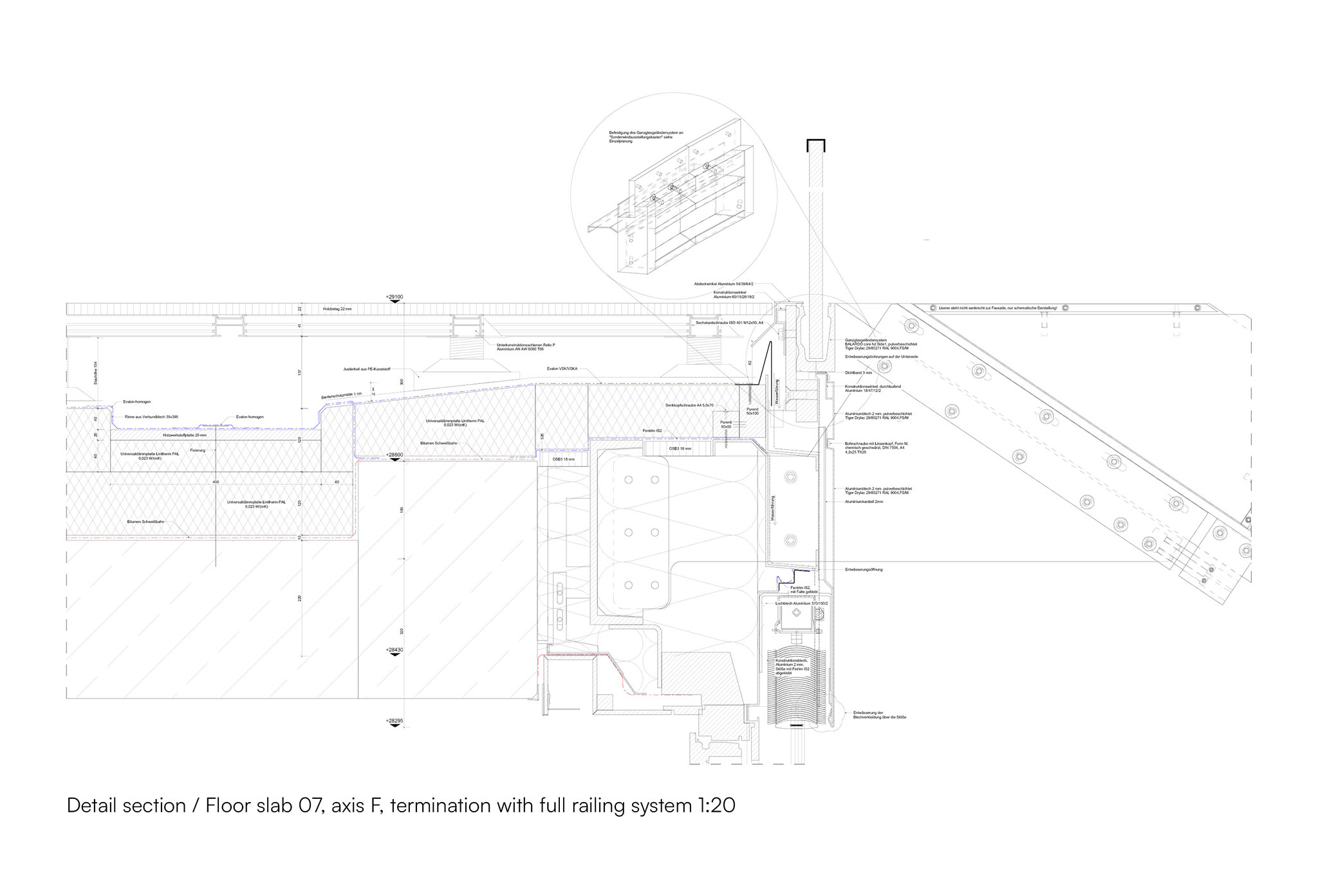
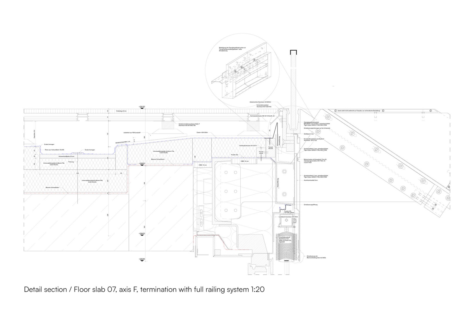
El edificio está construido con una estructura de hormigón armado, y las fachadas combinan marcos de madera y aluminio con lamas verticales de piedra natural. Para el interior, se utilizaron materiales locales como la piedra natural, el roble y el acero, concibiendo la propuesta como un edificio para perdurar en el tiempo.

«Post Headquarters - Helix» por Metaform. Fotografía por Simon Menges y Nino Tugushi.
Descripción del proyecto por Metaform
La nueva sede de POST Luxembourg redefine el papel de la arquitectura corporativa en la ciudad. Ubicado en un punto clave del distrito de la Gare de Luxemburgo, el proyecto se integra con su denso y fragmentado contexto no a través de la iconicidad, sino a través de la continuidad, el diálogo y la responsabilidad.
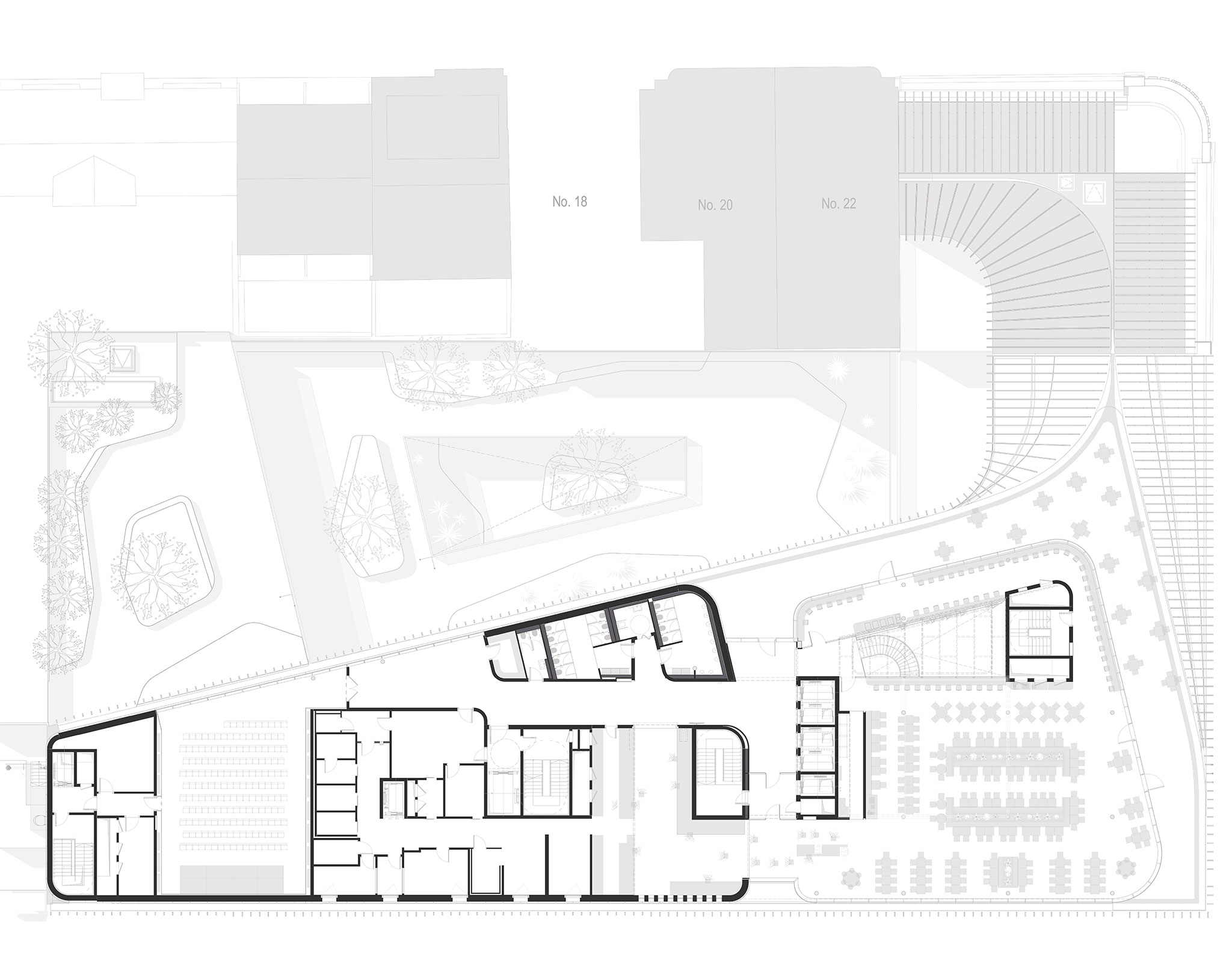
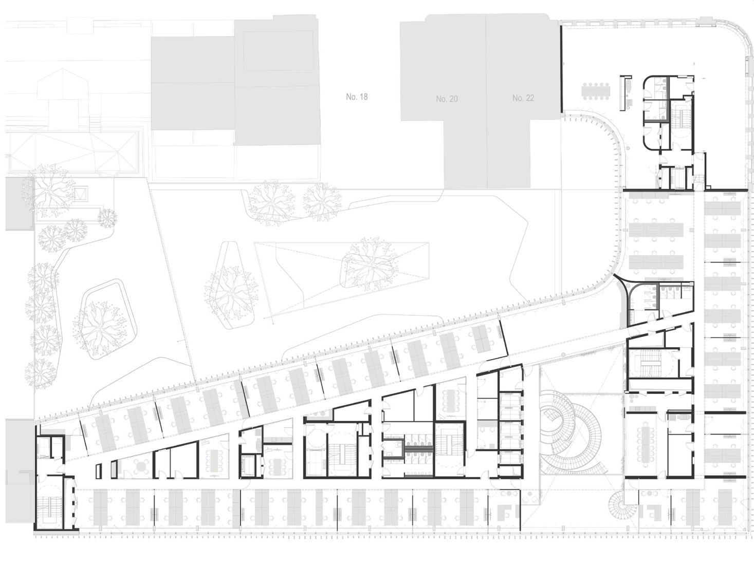
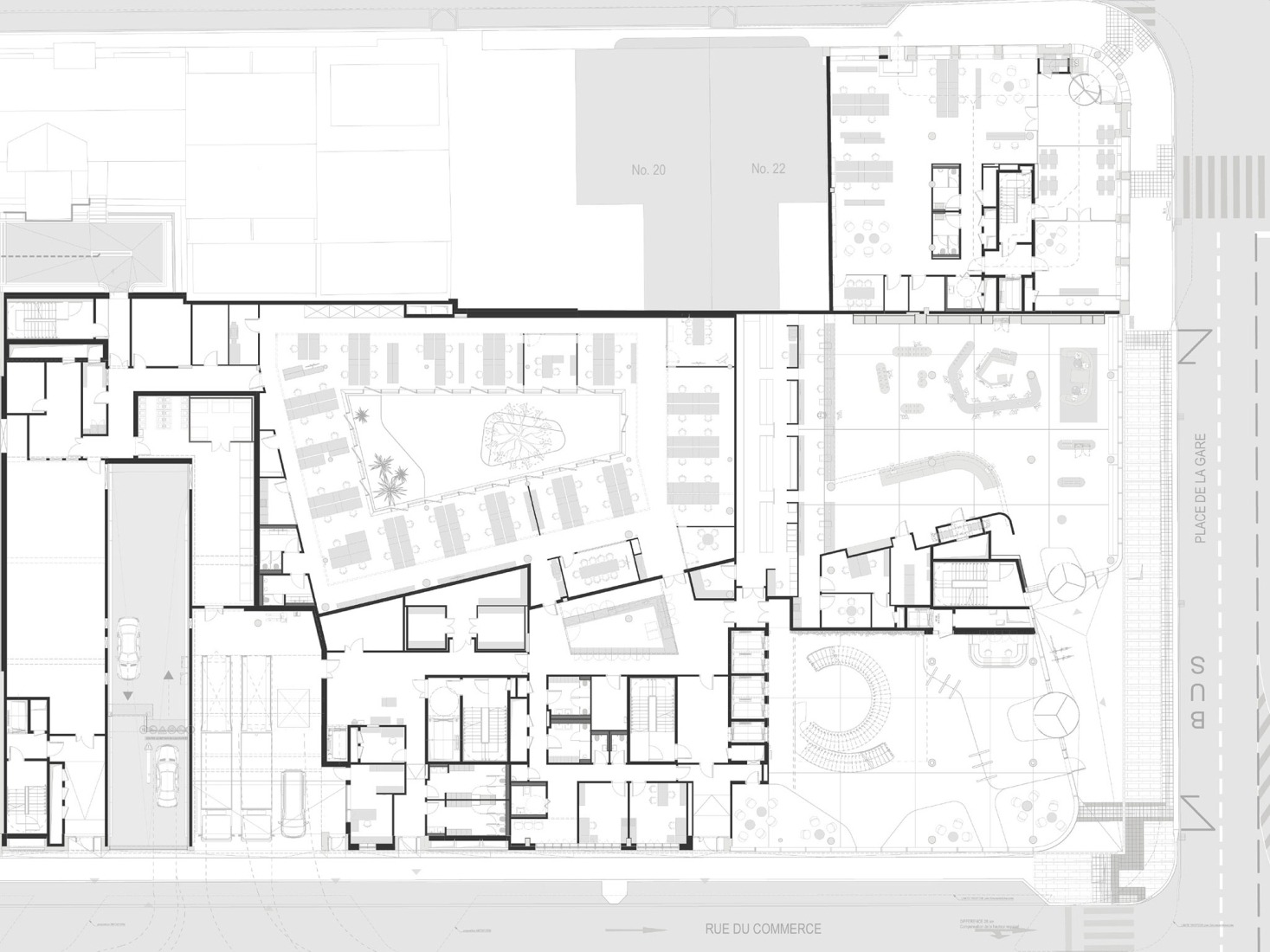
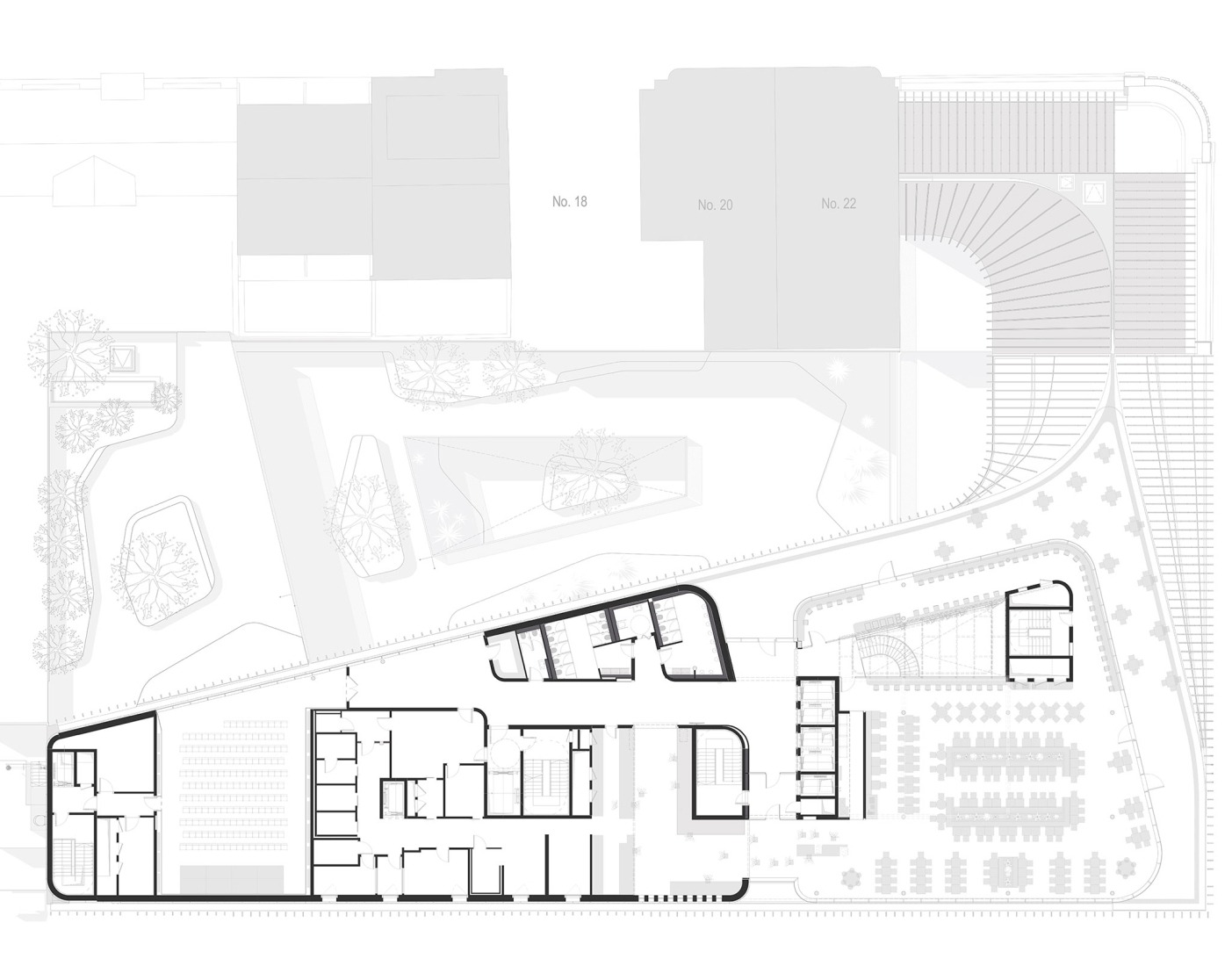
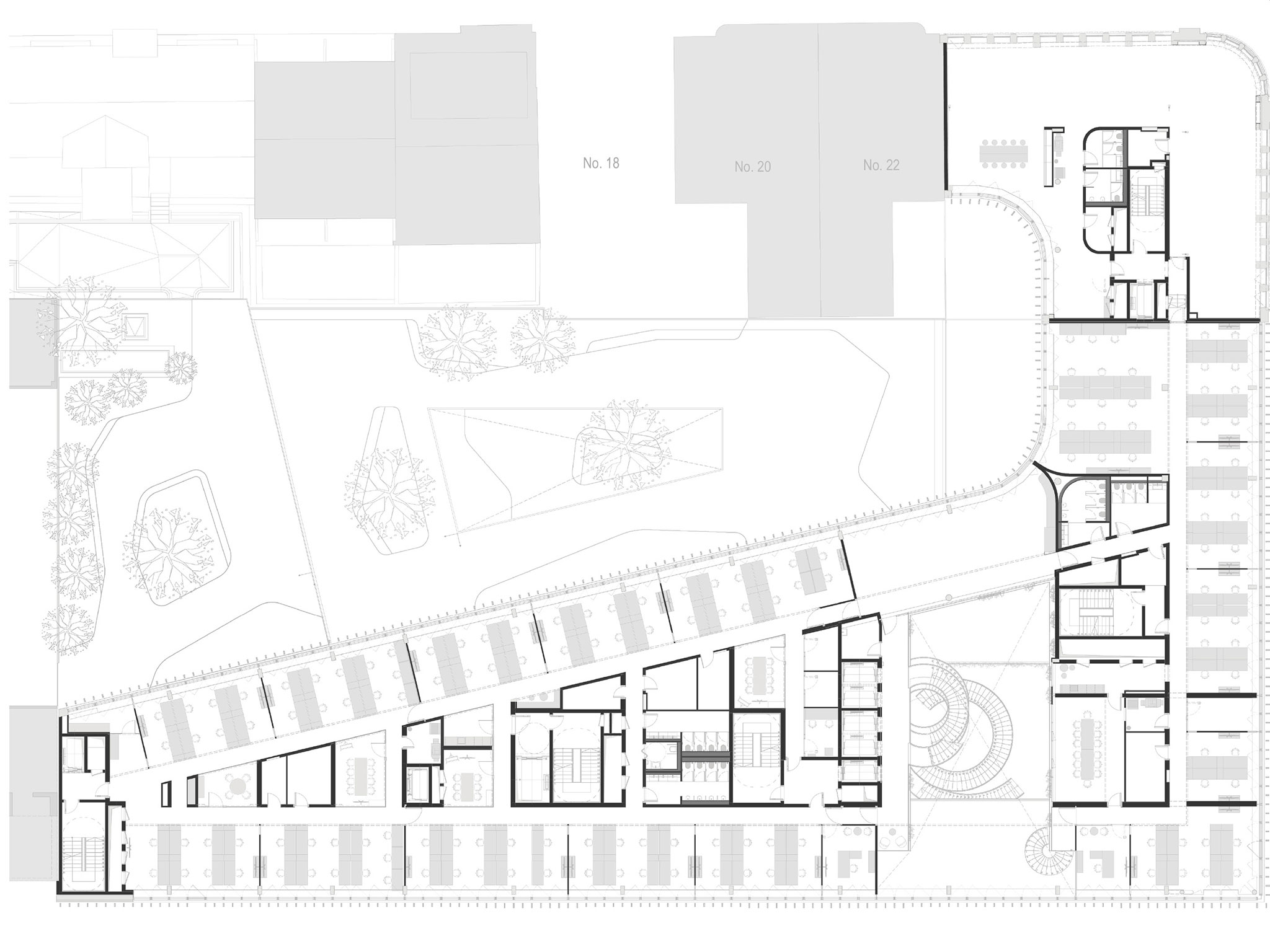
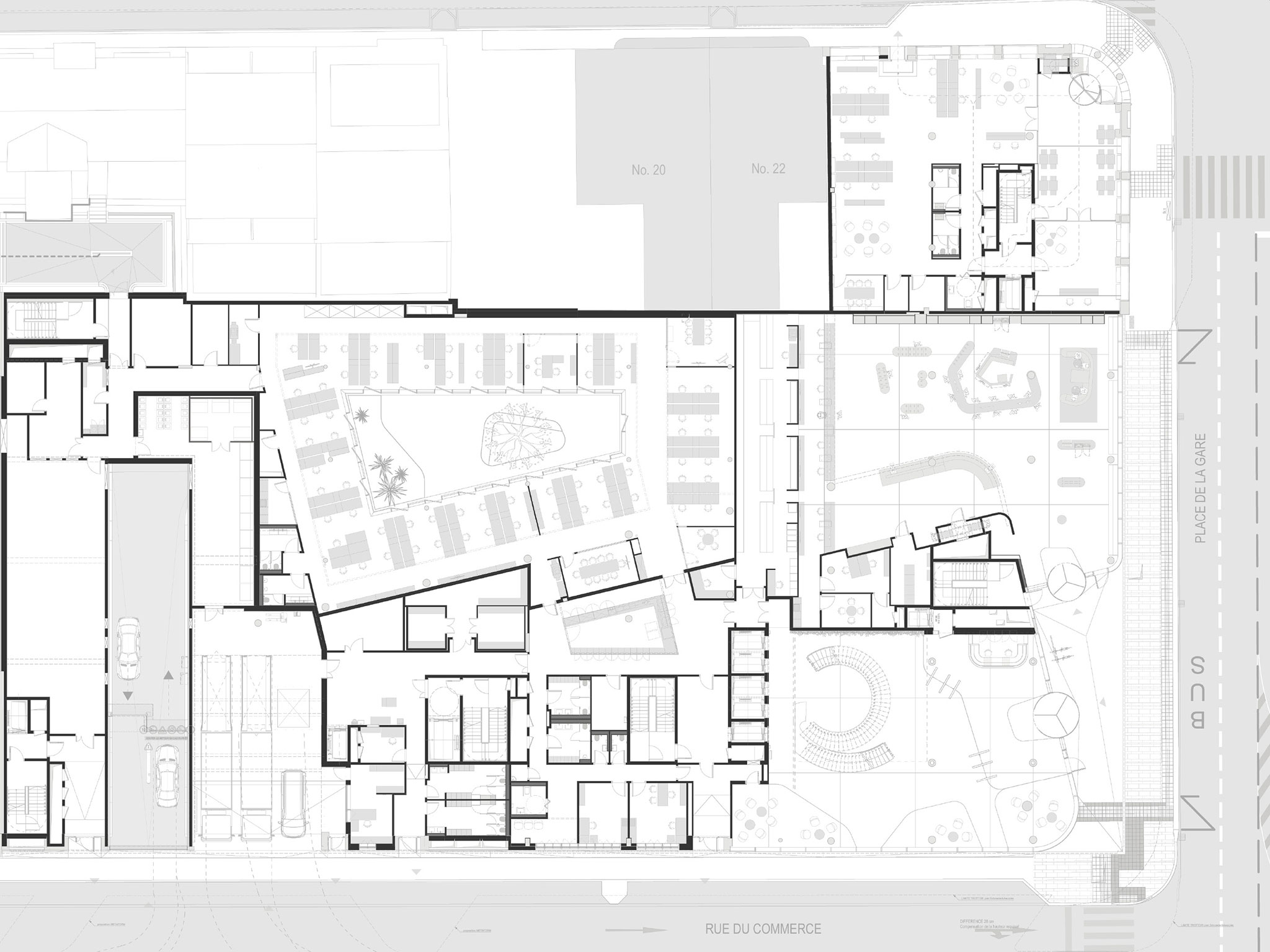
Ubicada en el vibrante distrito de la Gare de Luxemburgo, la sede de POST Luxembourg reúne a 1.000 empleados en 22.370 m² de espacios de trabajo, reunión y públicos. El proyecto integra el edificio Accinauto, restaurado y declarado patrimonio histórico, con una nueva estructura revestida de piedra, creando una presencia urbana sólida y equilibrada. Las lamas verticales de piedra aportan ritmo y profundidad a la fachada, mientras que el atrio central y su escalera de caracol fomentan la comunicación y la apertura. Construido con materiales locales y concebido para perdurar, el edificio conecta pasado y futuro, integrándose de forma natural en el tejido de su denso contexto urbano.
El proyecto se enfrentó a un encargo complejo: crear una sede espaciosa para un número significativo de empleados en el denso distrito de la Gare de Luxemburgo, equilibrando el patrimonio, un contexto urbano altamente activo y ambiciosos objetivos de sostenibilidad. En lugar de buscar un hito vertical, la estrategia se centró en el diálogo entre pasado y presente, apertura y sobriedad, ciudad y lugar de trabajo. Al preservar y ampliar el edificio Accinauto, declarado patrimonio histórico, el diseño mantuvo la continuidad con su entorno, minimizando al mismo tiempo la demolición y el impacto ambiental. Las estrategias sostenibles, que incluyen la reutilización de estructuras existentes, las baldosas activas, la recuperación de calor del centro de datos adyacente, el reciclaje de agua de lluvia y los paneles fotovoltaicos, mejoraron el rendimiento ambiental. En el interior, un atrio central con una escalera de caracol estructura el espacio de trabajo y fomenta la apertura, la comunicación y el bienestar. El resultado es un edificio cívico y sostenible que media entre un entorno vibrante y un interior definido por la claridad, la luz y la calma.
El edificio está construido con una estructura de hormigón armado, mientras que las fachadas combinan marcos de madera y aluminio con lamas verticales de piedra natural que aportan ritmo, sombras y permanencia.
Los acabados interiores alternan entre piedra natural, roble y acero, creando una atmósfera equilibrada y táctil. Desde el principio, la sostenibilidad guió cada decisión: la reutilización de los cimientos y estructuras existentes ahorró más de 8600 m³ de hormigón y casi 2600 toneladas de CO₂, mientras que el uso de materiales locales redujo el transporte y las emisiones. Los materiales naturales duraderos y los sistemas de fachada modulares garantizan una resiliencia a largo plazo y un bajo mantenimiento. Al obtener la certificación Platino de la DGNB, el edificio fue reconocido por su desempeño ejemplar en criterios ecológicos, económicos, socioculturales y técnicos. Como primer proyecto fuera de Alemania, también recibió la distinción Diamante de la DGNB por su excepcional diseño y calidad arquitectónica.
La fachada
Enmarcada en el tejido urbano más denso de Luxemburgo, la fachada de la sede de POST resuelve un complejo diálogo entre patrimonio y modernidad. Mediante el juego de extrusión y transformación, la cubierta inclinada del histórico edificio esquinero de Accinauto se transforma gradualmente en un plano vertical, alineándose con la nueva fachada de piedra y creando una fachada continua y unificada. Este plegado y rotación permite que el edificio contemporáneo se integre con elegancia en el paisaje urbano histórico, conectando la herencia haussmaniana con el ritmo urbano moderno. Las lamas verticales de piedra natural aportan ritmo, profundidad y protección solar, a la vez que evocan la permanencia mineral del entorno. La piedra de origen local y el ensamblaje modular garantizan sostenibilidad, durabilidad y precisión. La fachada es a la vez monumental y permeable, sólida y a la vez abierta, mediando entre el pasado y el futuro, la ciudad y el lugar de trabajo, y redefiniendo la esquina como un hito cívico y contemporáneo.
«Este edificio es una de las piedras angulares que marcarán el cambio de imagen del distrito.»
Lydie Polfer, Alcaldesa de la Ciudad de Luxemburgo
La escalera
Post Luxembourg cuenta con una estructura organizativa basada en una comunicación fluida entre sus diversos sectores. Por ello, su sede se diseñó para sustentar una jerarquía abierta y horizontal, conectando cada departamento en torno a un amplio atrio que abarca toda la altura del interior. El atrio central ofrece un espacio generoso y luminoso donde una escalera se despliega de forma escultural, enfatizando la vitalidad del lugar de trabajo a la vez que fomenta la comunicación y la apertura.
«La idea en la distribución de los espacios no era situar la jerarquía en la cima del personal, sino en el corazón del sistema.»
Claude Strasser, Director General de POST Luxembourg
La escalera de caracol, de 30 metros de altura, es el elemento distintivo del atrio de 200 m² y está construida íntegramente en acero. La realización de este ambicioso diseño requirió una gran experiencia y fue posible gracias a la colaboración de Metaform (con sede en Luxemburgo), Ney & Partners y MetallArt (Alemania).
La escalera descansa sobre la planta baja y se extiende por encima del vacío, soportando su peso únicamente en rellanos seleccionados. Sorprendentemente, a pesar de su forma cilíndrica y de que parte de su peso está suspendido, la estructura se mantiene completamente estable, sin ningún movimiento ni vibración perceptible. Esta estabilidad se debe en gran medida a la elección del acero como material principal.
En definitiva, la escalera atrae la mirada y crea una impresión impactante en cada visita, convirtiéndose en el elemento central del atrio y en un símbolo del entorno de trabajo abierto y conectado de Post Luxembourg.
Sostenibilidad
Obtener la certificación DGNB Platino y Diamante, el sello más riguroso en ecología y economía en la construcción respetuosa con el usuario y el medio ambiente, creando un edificio con eficiencia energética clase A, aislamiento térmico clase A y un consumo energético total de 118,9 kWh m² al año, requirió una serie de acciones precisas y comprometidas.
El proyecto reutilizó los cimientos y sótanos existentes, ahorrando grandes cantidades de hormigón y materiales, a la vez que evitaba cientos de viajes de camiones en el corazón del distrito de la Gare. La conservación del edificio histórico y la construcción del nuevo sobre los cimientos y el sótano existentes permitieron ahorrar más de 8600 m³ de hormigón. Según se informa, el proyecto ahorró 2600 toneladas de emisiones de dióxido de carbono en comparación con las que se habrían liberado a la atmósfera si se hubiera demolido y construido uno nuevo.
Se priorizaron las prácticas locales mediante el uso de materiales locales y europeos, la atención a la conservación del patrimonio y la promoción de la artesanía local. Todos los materiales utilizados en el proyecto fueron cuidadosamente inventariados, clasificados y validados para garantizar la sostenibilidad y la eficiencia.
La estructura del edificio es de hormigón, seleccionado por su resistencia y durabilidad. El hormigón se utiliza en diversas partes del edificio, como los cimientos, las paredes, los suelos y la cubierta. El edificio Helix cuenta con un tanque de almacenamiento de hielo de 2736 m³ en el cuarto sótano, dividido en cinco cámaras interconectadas que contienen 2133 m³ de agua. Varios kilómetros de tuberías en espiral permiten el intercambio de energía entre el agua y las bombas de calor del edificio.
En invierno, cuando la energía primaria de las instalaciones informáticas es insuficiente, las bombas de calor extraen energía del depósito, congelando gradualmente el agua y generando energía adicional. En verano, el depósito congelado actúa como un depósito de refrigeración natural, proporcionando aire acondicionado al edificio. Si bien en Luxemburgo existen sistemas de almacenamiento de hielo a pequeña escala, generalmente en viviendas particulares, el sistema Helix es único en su escala y ambición dentro de la Gran Región.
«Al final, tendremos un edificio sin emisiones directas de carbono para 28.000 m².»
Claude Strasser, Director General de POST Luxembourg
El edificio también integra múltiples fuentes de energía. La cubierta está equipada con módulos fotovoltaicos-térmicos (PVT) de 82 kWp, que producen electricidad a la vez que capturan la energía térmica del aire. Los enfriadores de aire recuperan energía cuando las temperaturas superan los cinco grados, y la energía adicional proviene de los intercambios entre el depósito de hielo y el suelo. El calor de los centros de datos y los equipos informáticos, tanto del edificio Helix como del centro de telecomunicaciones CT adyacente, también se recupera y se incorpora al concepto energético.
Juntos, los módulos solares, el acumulador de hielo y las bombas de calor crean un sistema de calefacción y refrigeración altamente eficiente y rentable que reduce el consumo de energía y evita el uso de combustibles fósiles. La calefacción y la refrigeración se suministran mediante un sistema de losas activas con tuberías empotradas en los techos de hormigón.
El agua de lluvia se recoge de los tejados y se almacena en un depósito de 270 m³ en la quinta planta del sótano. Se bombea a los sanitarios y urinarios de la tercera planta y se utiliza para regar las terrazas y el atrio, lo que mejora aún más la sostenibilidad del edificio. Otras estrategias implementadas son las losas activas, la refrigeración nocturna o la gestión automatizada de la iluminación.