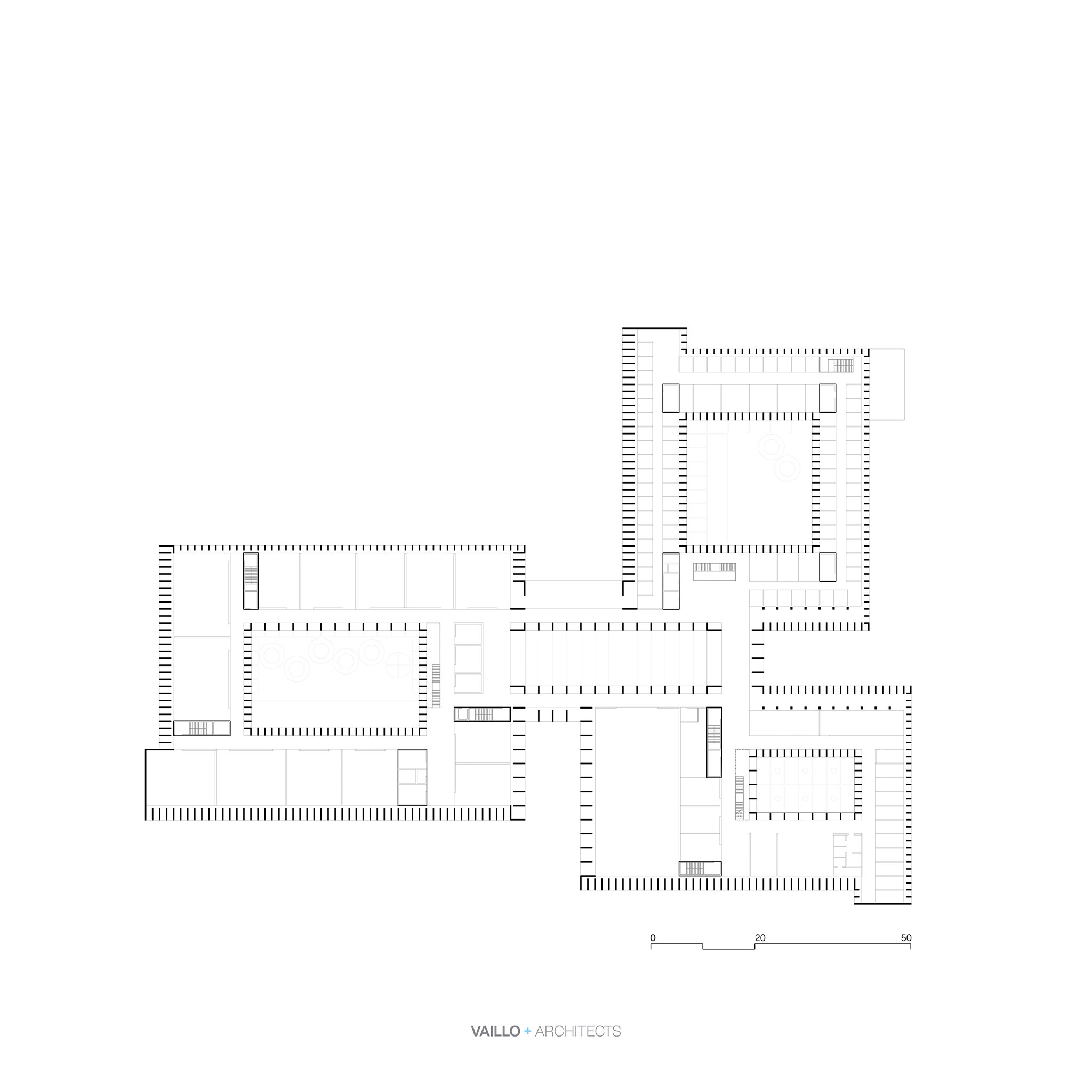
La propuesta programática de Vaillo +Architects para la Facultad de Turismo funciona como una pequeña ciudad universitaria, fragmentando el espacio en tres volúmenes principales. Cada uno cuenta con un claustro interno propio y se conecta a través del atrio mediante plataformas y jardines. El primer volumen se dedica al «Culinary Center», con aulas y laboratorios para la innovación gastronómica; el segundo alberga la administración y los despachos departamentales; y el tercero funciona como centro social, con salón de actos, biblioteca, cafetería y decanato.
El conjunto se ve arropado por una retícula espacial que juega a otorgar sombras protectoras, aumentando el espesor de la envolvente y facilitando la creación de sombras protectoras frente al duro sol almeriense. Los espacios interiores consiguen transparencia con el exterior, evitando una exposición directa al exterior.
A nivel constructivo, el edificio está conformado por una estructura que es la esencia estética y ética del proyecto, donde el hormigón visto define tanto el interior como el exterior. Este sistema estructural se ejecuta perimetralmente mediante pantallas y vigas de gran canto, liberando la planta, flexibilizando el espacio y funcionando como celosía que protege de la incidencia solar.

Facultad de Turismo por Vaillo +Architects. Fotografía por Rubén Pérez Bescós.
Descripción del proyecto por Vaillo +Architects
Tipología y Tradición
Tipológicamente el edificio sigue la tradición de la arquitectura docente basada en un sistema de agregación de volúmenes en torno a patios, recuperando el «claustro» como sistema organizativo, remitiendo a una arquitectura mediterránea donde el clima propicia espacios abiertos y ajardinados conformando diferentes tipologías de patios.
Adaptación Topográfica y Correspondencia Volumétrica
El conjunto se ve afectado por la restrictiva servidumbre aérea que establece una edificación de escasa altura. Ello implica una gran ocupación en planta y una adaptación a la topografía en suave pendiente.
La propuesta se conforma mediante 3 volúmenes en torno a un atrio central que organiza los accesos y las conexiones, generando un gran espacio de relación permitiendo diferentes usos y funciones en un espacio de gran calidad ambiental. Los volúmenes se distribuyen en el solar de forma escalonada, generando diferentes plataformas y suaves pendientes ajardinadas. Internamente, cada volumen se organiza alrededor de un patio · claustro en torno al cual gira toda la actividad: 1- Aulas y Laboratorios de «Coulinary Center» 2- Departamentos: Despachos e Investigación 3- Usos Múltiples: Salón Actos, Cafetería, Biblioteca y Decanato.
Flexibilidad - Temporalidad y Estructura
La propuesta pretende ofrecer una arquitectura flexible y atemporal. Para ello se establece una escala pública más cercana a infraestructuras urbanas. La estructura se convierte en el elemento arquitectónico esencial del proyecto, capaz de organizar el programa y formular la imagen.
La imagen del edificio se conforma mediante una estructura vista de hormigón in situ, interior y exterior, de secciones muy esbeltas -15 cm. de espesor-.
El diseño de estructura en el perímetro busca la máxima flexibilidad interior, mediante la utilización de pantallas de diferentes profundidades y vigas de gran canto absorbiendo grandes luces, permitiendo múltiples distribuciones interiores capaces de absorber diferentes usos y programas.
Materia y Lugar
El edificio se concibe desde una gran radicalidad conceptual basada en la unidad de principios.
La configuración tectónica se basa en la propia estructura vista, y por tanto la paleta es escueta utilizando materiales de proximidad: áridos y cementos del lugar para la confección del hormigón, -de ahí su coloración un tanto oscura-; únicamente el contrachapado de madera y el vidrio actúan como plementería de la estructura de hormigón.
El diseño del conjunto se basa en sistemas pasivos buscando una eficiencia y sostenibilidad natural, promoviendo elementos constructivos aglutinadores de funciones: las fachadas estructurales actúan como grandes celosías de protección solar, modificando su profundidad y densidad en función de la orientación. Los patios y el atrio actúan como espacios de colchón térmico, permitiendo ventilaciones cruzadas para atemperar los espacios interiores.
La jardinería es muy escueta, adaptada a las exigencias actuales de escasísimos recursos hídricos, -xerojardinería-, utilizando plantaciones de especies autóctonas y pavimentos filtrantes.