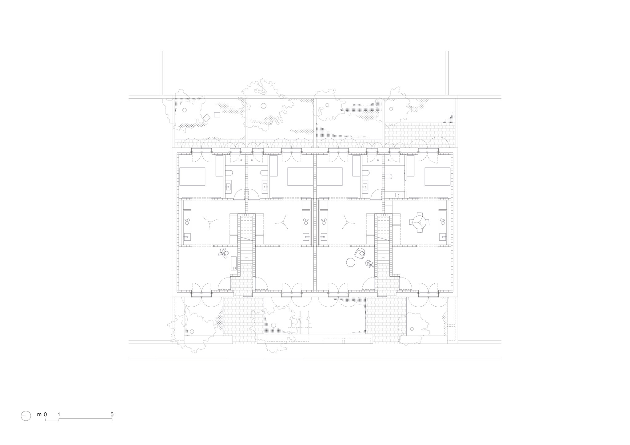
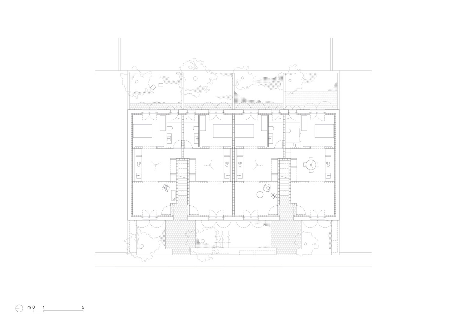
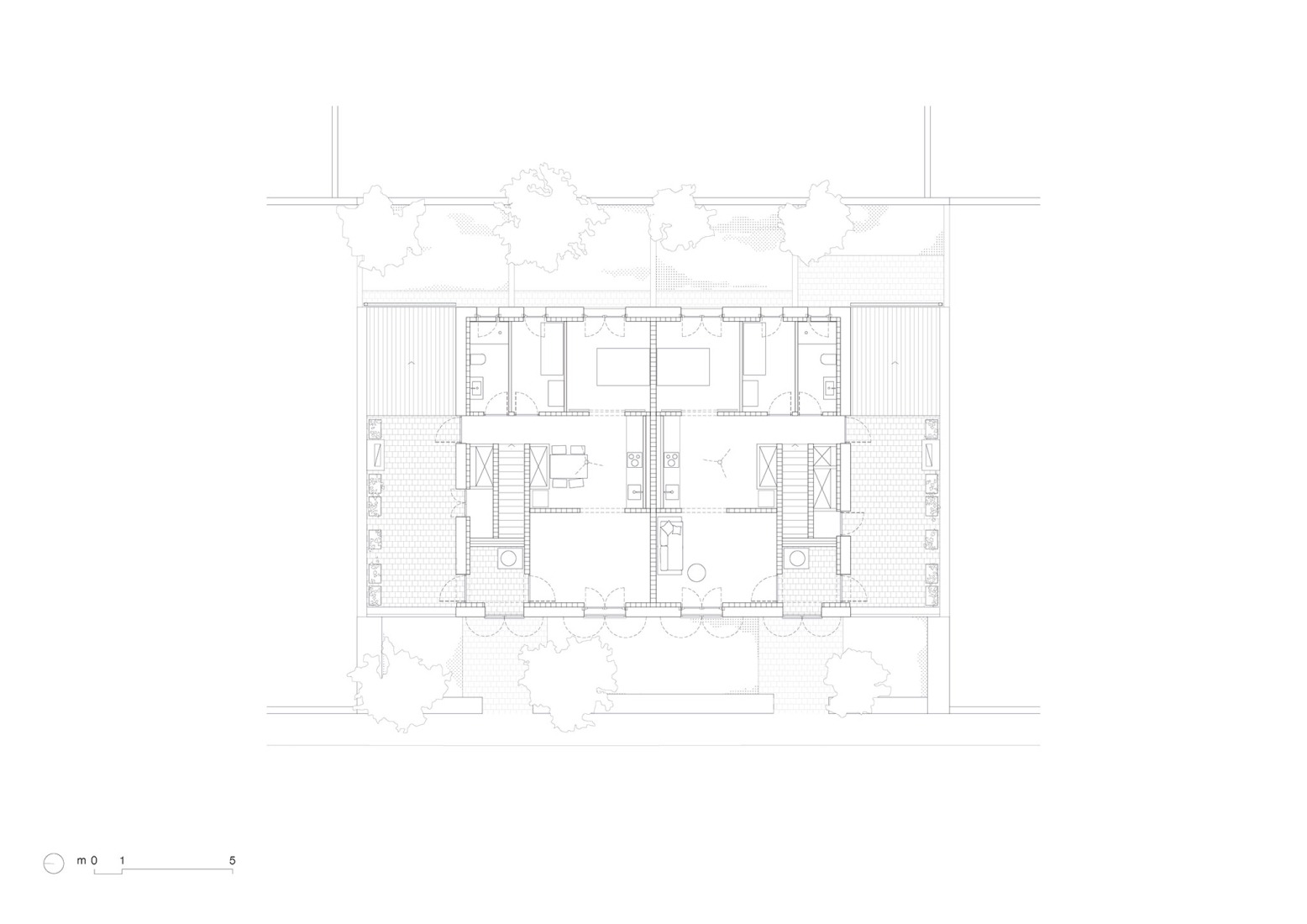
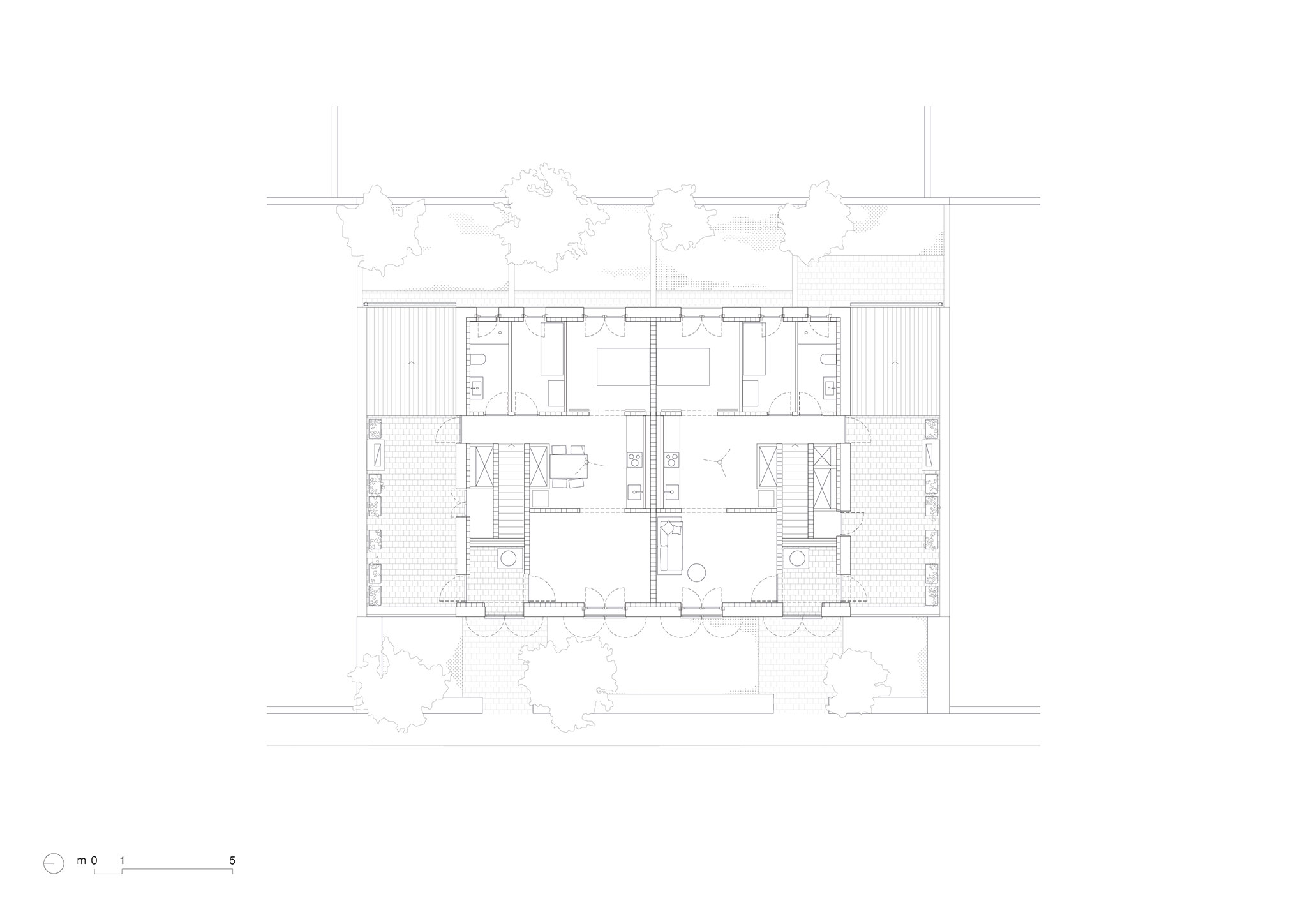
La organización funcional de las viviendas proyectadas por Alventosa Morell Arquitectes y Joan Josep Fortuny Giró se dispone en dos plantas bajo una cubierta a dos aguas, de forma que se ubican dos viviendas en la planta alta y cuatro en la baja. Las viviendas de la planta baja cuentan con una habitación y un patio privado, mientras que las de la planta alta disponen de dos habitaciones y una terraza exterior. En ambas plantas, la cocina constituye el espacio central y el resto de la vivienda se organiza en torno a ella. Se trata de un espacio abierto, flexible y adaptable.
En las fachadas se emplean cal y piedras del terreno, mientras que las particiones interiores se realizan con cerámica de la isla y se rellenan con la arena sobrante de la cantera de extracción. El revestimiento es de arcilla y paja, y las carpinterías se ejecutan en madera certificada FSC. En cuanto al pavimento, se utiliza cal local de los alrededores. Las tejas y los alicatados se obtienen también de la misma forma.

«Ses Veles Puigpunyent» por Alventosa Morell Arquitectes y Joan Josep Fortuny Giró. Fotografía por José Hevia.
Descripción del proyecto por Alventosa Morell Arquitectes y Joan Josep Fortuny Giró
Ubicado en Puigpunyent, Mallorca, este proyecto impulsado por el IBAVI (Instituto Balear de la Vivienda) propone un edificio diseñado con criterios de sostenibilidad, eficiencia energética y respeto al entorno natural. Para ello, el proyecto se desarrolla a partir de un modelo de economía local que recupera oficios, sistemas constructivos y estrategias pasivas propias de la cultura insular vernácula.
Con dos plantas y una cubierta a dos aguas, el edificio se distribuye en seis viviendas, cuatro en planta baja y dos en planta alta. Las unidades ubicadas en planta baja tienen una habitación y acceso a un espacio exterior privado, mientras que las viviendas en planta alta acomodan dos habitaciones y se abren, cada una, a su propia terraza exterior. Se proponen espacios abiertos, flexibles, y adaptables en uso que se relacionan entre si de forma directa, con la cocina como espacio central. Esta distribución es el resultado de la suma de tres crujías estructurales.
La materialidad del edificio responde a su entorno, utilizando materiales y estrategias locales. Las fachadas de ciclópeo de cal incorporan las piedras y tierra de la propia excavación. Las particiones son de cerámica de la isla, rellenas de arena sobrante de cantera local y acabadas con arcilla y paja. Los forjados y carpinterías son de madera FSC. Los pavimentos interiores de cal local, los pavimentos exteriores, los alicatados y las tejas también fueron obtenidos en las cercanías.
El edificio está diseñado estratégicamente para obtener la máxima captación solar en invierno y reducir la demanda de refrigeración en verano, incorporando ventilación cruzada, protección solar, gran inercia térmica en suelos y paredes e higroscopia y transpirabilidad reguladoras de la humedad. La cubierta tipo “trombe” es un elemento clave captador en invierno y ventilado en verano, regulando la temperatura y eliminando así los sistemas activos. Finalmente, los patios privados funcionan como elementos de control y filtraje del usuario para la ventilación de las viviendas.
Con un consumo energético casi nulo (1,7 kWh/m²·año, NZEB), el proyecto reduce las emisiones de CO₂ en un 50%, mientras que los criterios de circularidad suponen una reducción de residuos del 60%. Además, se ha tenido la conciencia de construir sistemas donde los materiales puedan ser separados en caso de demolición para su reutilización. El análisis del ciclo de vida demuestra un bajo coste de CO₂ en construcción (230 kg CO₂/m²), lo cual supone una reducción del 50% frente a construcciones convencionales.
El resultado es un conjunto de viviendas que reduce su impacto en el entorno, al mismo tiempo que refuerza la economía local y promueve la regeneración territorial. Incorporando materiales y técnicas vernáculas, Ses Veles Puigpunyent propone una arquitectura en diálogo con la cultura insular, combinando innovación técnica y responsabilidad ambiental.