Dos volúmenes articulados por patios configuran el edificio de vivienda colectiva desarrollado por Estudio Arqtipo. A partir de la utilización de un único material para la envolvente —el ladrillo—, el proyecto experimenta y explora diferentes combinaciones morfológicas que permiten gradientes de iluminación y privacidad, según sea necesario.
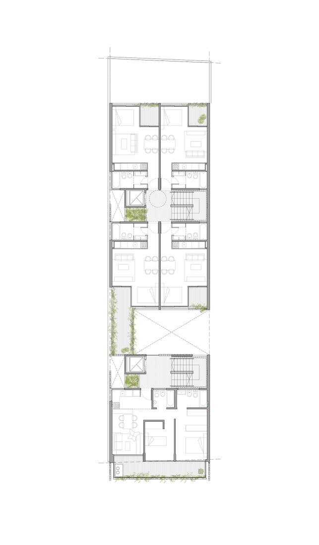
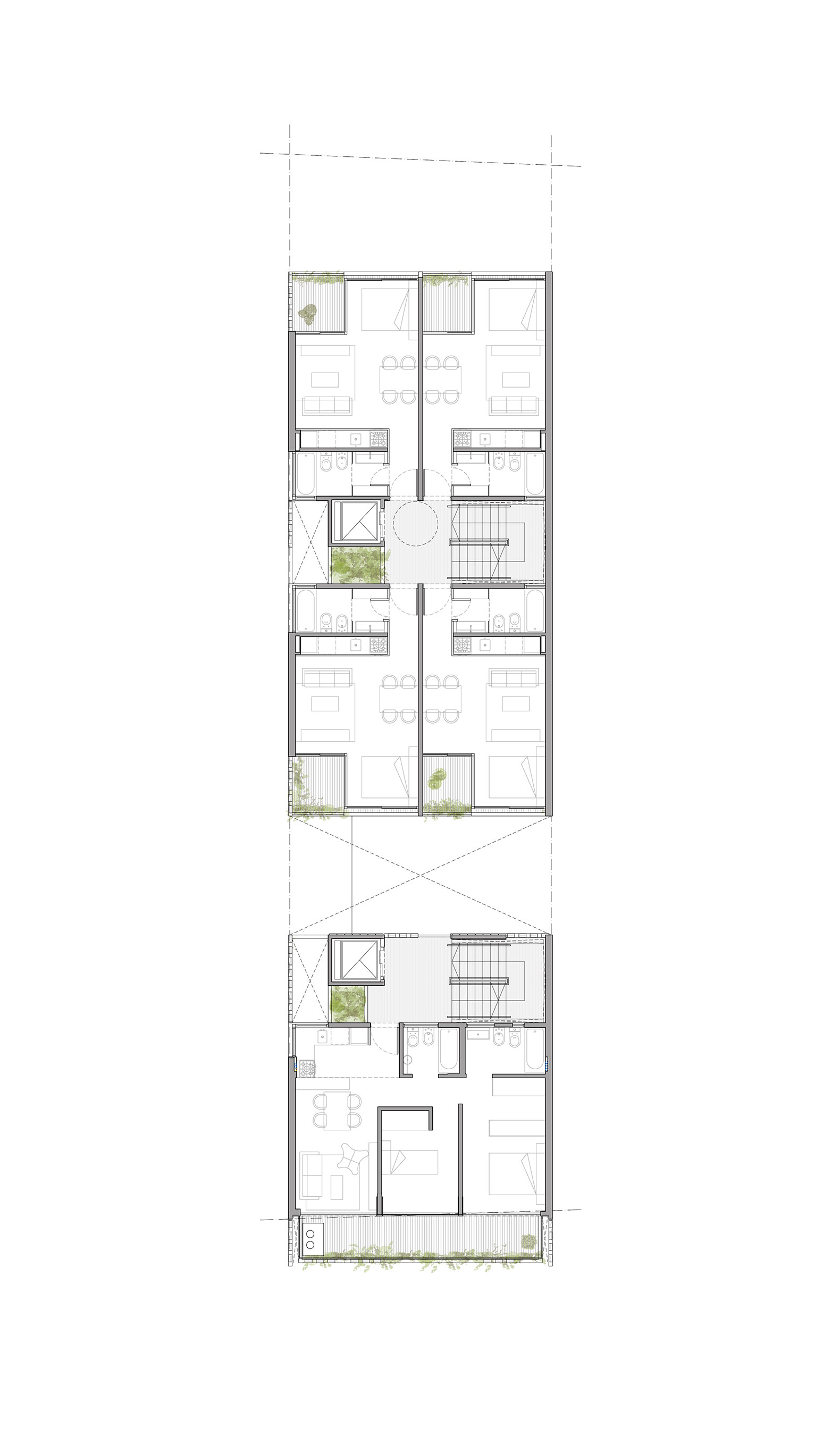
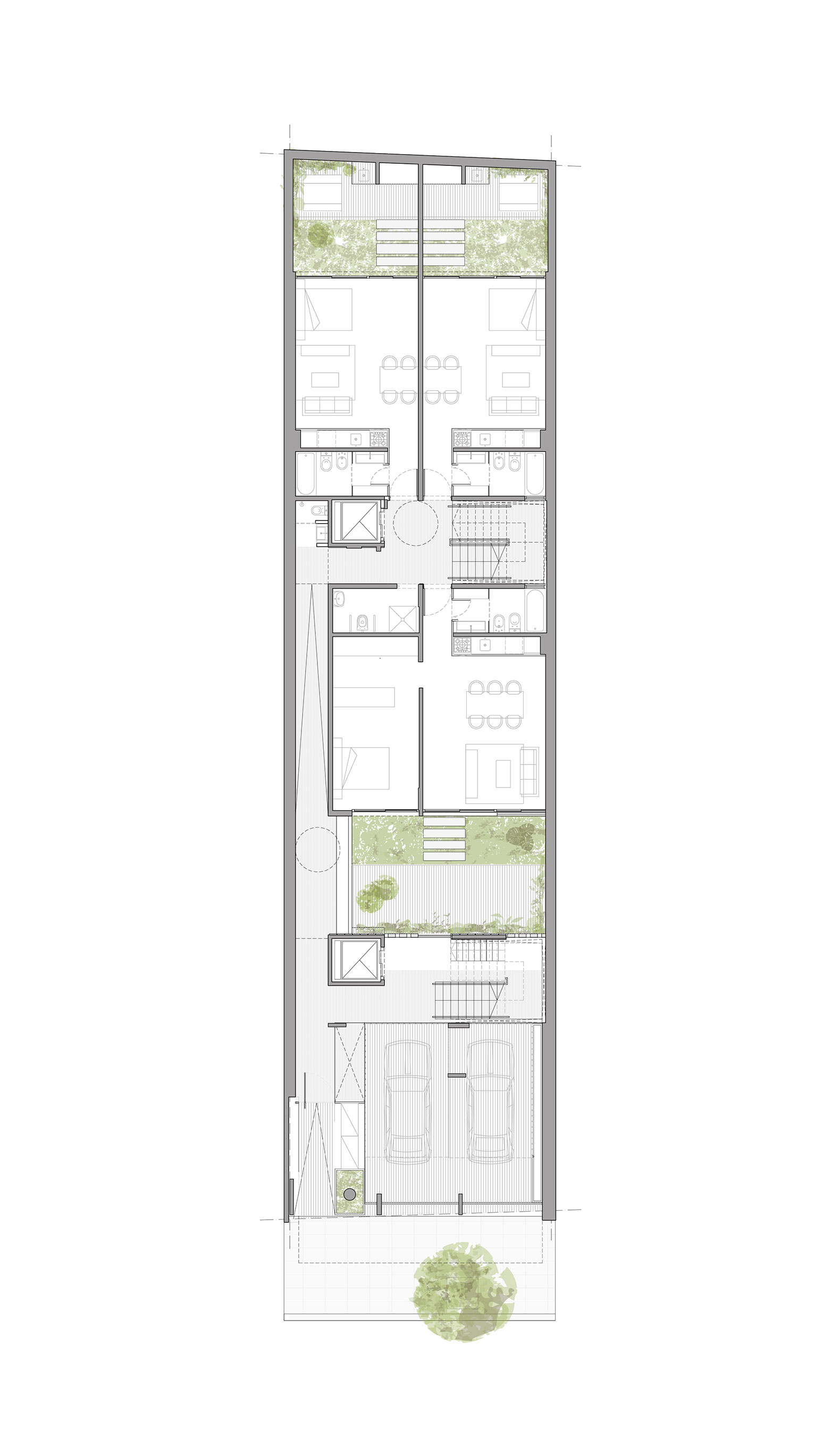
Alineado con los diversos modos de habitar contemporáneos, NÑZ 3949 propone una serie de tipologías habitacionales que responden tanto al concepto de familia tipo como a nuevos núcleos de convivencia. Desarrollada en planta baja y cuatro niveles, la propuesta de vivienda colectiva se resume en una volumetría permeable que, implementando un monomaterial, logra complejas disposiciones que configuran las diferentes atmósferas deseadas.

NÑZ 3949 por Estudio Arqtipo. Fotografía por Israel Caire.
Descripción del proyecto por Estudio Arqtipo
El proyecto NÑZ 3949 nos interpeló acerca de los posibles modos de abordaje de nuestra práctica proyectual. La propuesta reconoce las instancias temporales y espaciales inherentes al proyecto, a partir del reconocimiento de las categorías de: contextualización (entre la inserción y la implantación), de configuración (entre un objeto material y el sistema), y de disposición (entre lo determinado y lo indeterminado).
Contextualización
NÑZ 3949 es un edificio de vivienda colectiva proyectado para una manzana residencial en el barrio de Saavedra, en la Ciudad de Buenos Aires, en un terreno entre medianeras que asume la particularidad de abrirse al pulmón de manzana, capturando visuales abiertas.
Configuración
Su configuración, propone dos volúmenes, articulados por patios, que conforman una volumetría permeable, a partir de una piel sensible, materializada con ladrillo, que permite gradientes de iluminación y privacidad.
El edificio, de esta manera, maximiza su capacidad constructiva, a partir de una envolvente mono material utilizando el ladrillo Bricko de Corblock. En ese sentido se permite una experimentación material a partir de diversas operaciones morfológicas precisas (repetición, sección, vinculación) para asumir su propia complejidad, e investigar los encuentros, las disposiciones, los modos de unión y las fijaciones con la intención de configurar una atmósfera deseada (luz y espacio en una interpelación constante).
Disposición
Desde la propuesta organizativa, dispone una variedad tipológica en sus unidades habitativas captando las diversas mutaciones en el concepto de familia tipo y la aparición de nuevos núcleos de convivencia. Desarrollando su disposición en planta baja y cuatro niveles.