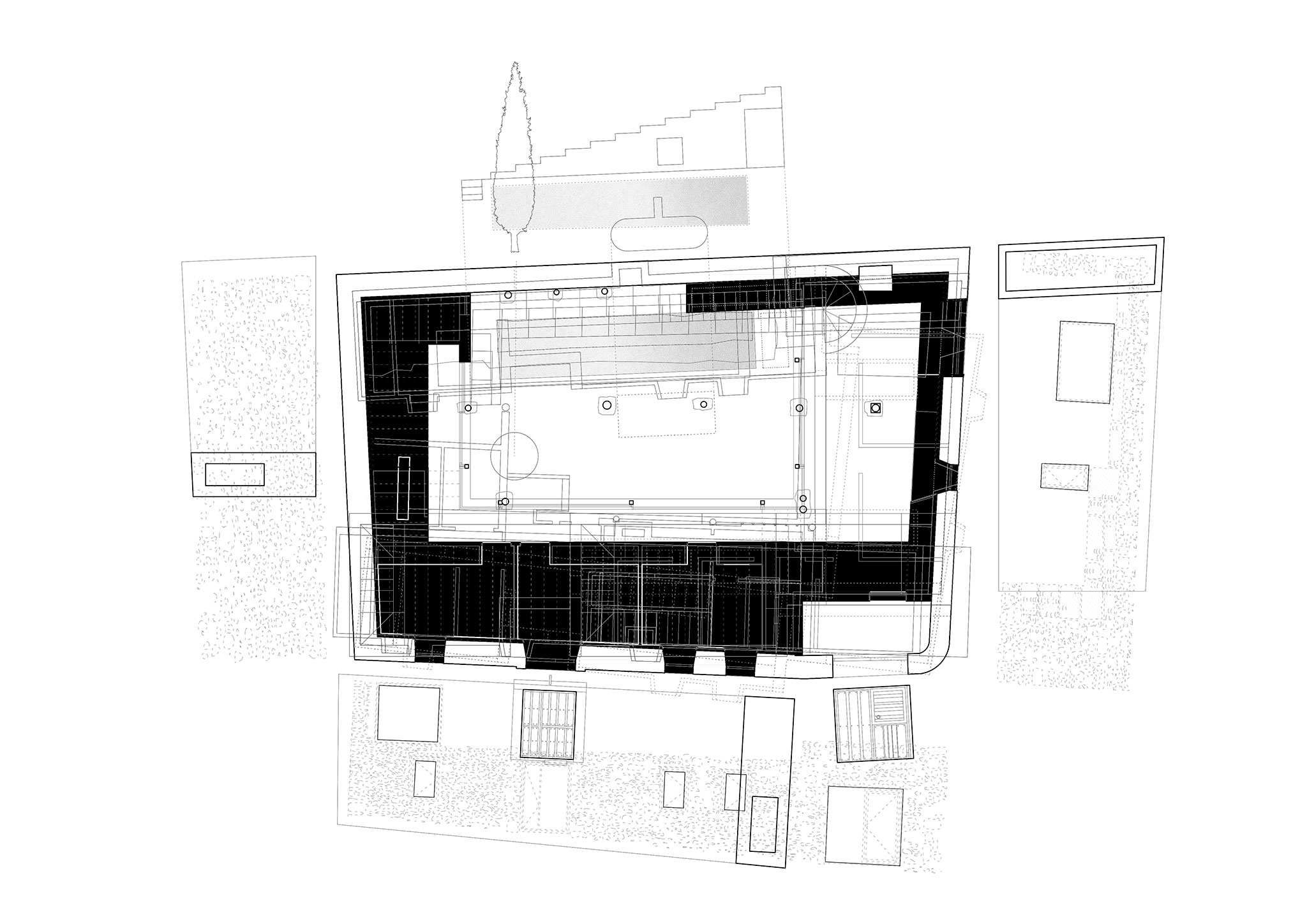
The proposal of estudio veintidós organized the space of the Emptied House into three gabled pavilions arranged around a central courtyard and connected by the existing walls, upon which they are assembled, creating a different stepped effect on each façade. Each volume features a skylight linked to the attic space, with the third taking the form of a hollow tower that serves as a viewpoint overlooking the landscape and reflecting the nearby Romanesque church and bell tower.
The living space creates a visual connection between the interior and exterior through a large opening in the rammed earth wall, clad with lime mortar and extended to the new clay block façades, thus establishing a continuity between the existing and the new. The new building consists of a mixed structure of concrete, wood, and steel that works in conjunction with the original walls.

Emptied House by estudio veintidós. Photograph by estudio veintidós.
Project description by estudio veintidós
Located in a small village in the Riaza Mountains of Segovia, the dwelling is inserted into the remains of an old stable made of rough stone and rammed earth, whose roofs and interior partitions were in a severe state of ruin. After emptying the built volume, the project adopts the pre-existing envelope as a foundation and limit, renouncing the reproduction of the original total occupation to instead release a central space intended to articulate the new domestic life. This void, where a small pool is located over the trace of an old water trough, guarantees outdoor space, light, and air, even in a future where the adjacent plots to the west and south might be built upon. The spatial strategy of the project is limited to the emptying and consolidation of that same void, configuring it as a courtyard—an interior landscape that seeks the sky through its openings.
The new architecture is organized around the courtyard with three gabled pavilions, articulated with each other by skylights, and generating a new open-air hallway from the street that provides access to the first wing where the living room is located. The new volumes are assembled over the existing walls, generating setbacks that vary on each facade and allow the new internal layout to be recognized from the outside. Each pavilion concludes in a skylight linked to the under-roof spaces, with the third being a hollow tower that serves as a viewpoint of the landscape, acting as a reflection of the nearby belfry of a Romanesque church.
The new courtyard is surrounded by a permeable ambulatory with large-scale joinery that distributes access to the rooms and, via retractable stairs, to the under-roof spaces. The living room creates a cross-view between the exterior landscape and the interior courtyard through a large opening made in the rammed earth wall, which, for its preservation, is coated with lime mortar in the most deteriorated areas. The project builds a material code based on continuity between the existing and the new: the stone and rammed earth walls are consolidated through the use of lime applied with a pointing technique characteristic of the area, which extends to the new thermal clay facades, generating a homogeneous surface. The difference between eras is perceived through strata rather than discontinuities, by means of the application technique of the same material.
The new architecture is erected through a mixed structure of concrete, wood, and steel, designed to work jointly with the preserved walls, allowing for the correction of differential settlements, leaning, and loss of material in the most eroded areas. The project seeks to enhance, through its spaces, the relationship of the home with nature, climatic phenomena—sun, rain, snow, extreme temperatures—as well as sensory aspects—silence, light pollution reduction, air quality. A bioclimatic system is developed through passive strategies such as the use of a radiant floor in contact with the ground, the continuity of the interior insulating envelope, rainwater harvesting, the chimney effect of the double height of the bedroom wings with the open courtyard, etc. Simultaneously, the longitudinal pool acts as a hygrothermal moderator, softening the microclimate of the outdoor space and providing a domestic atmosphere linked to the seasonal rhythms of the place.
The house acts as an observation device on the edges of an emptied territory, reinterpreting the ruins of a rural construction through new openings and elevated viewpoints oriented toward the mountain landscape, building a seasonal refuge.