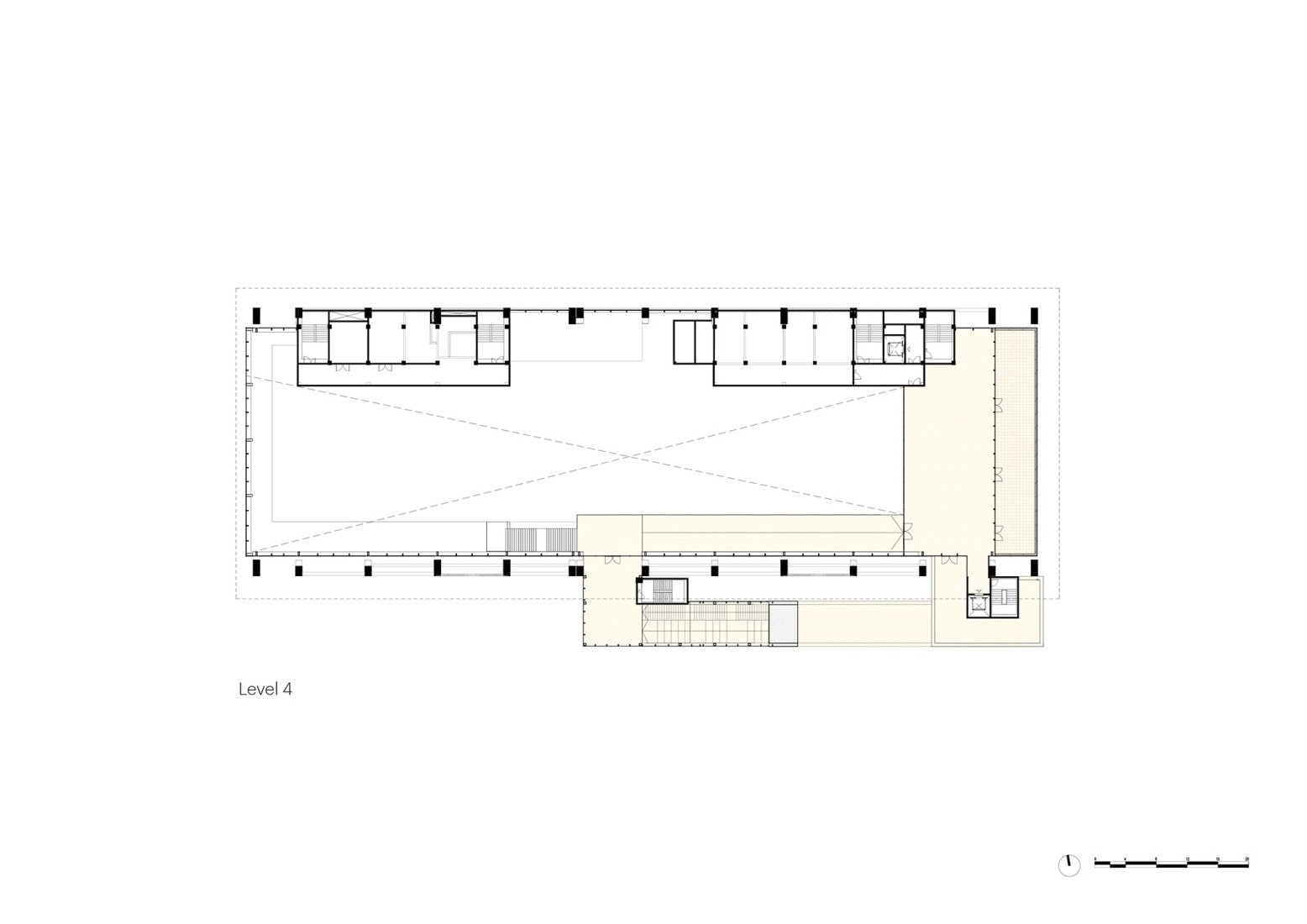
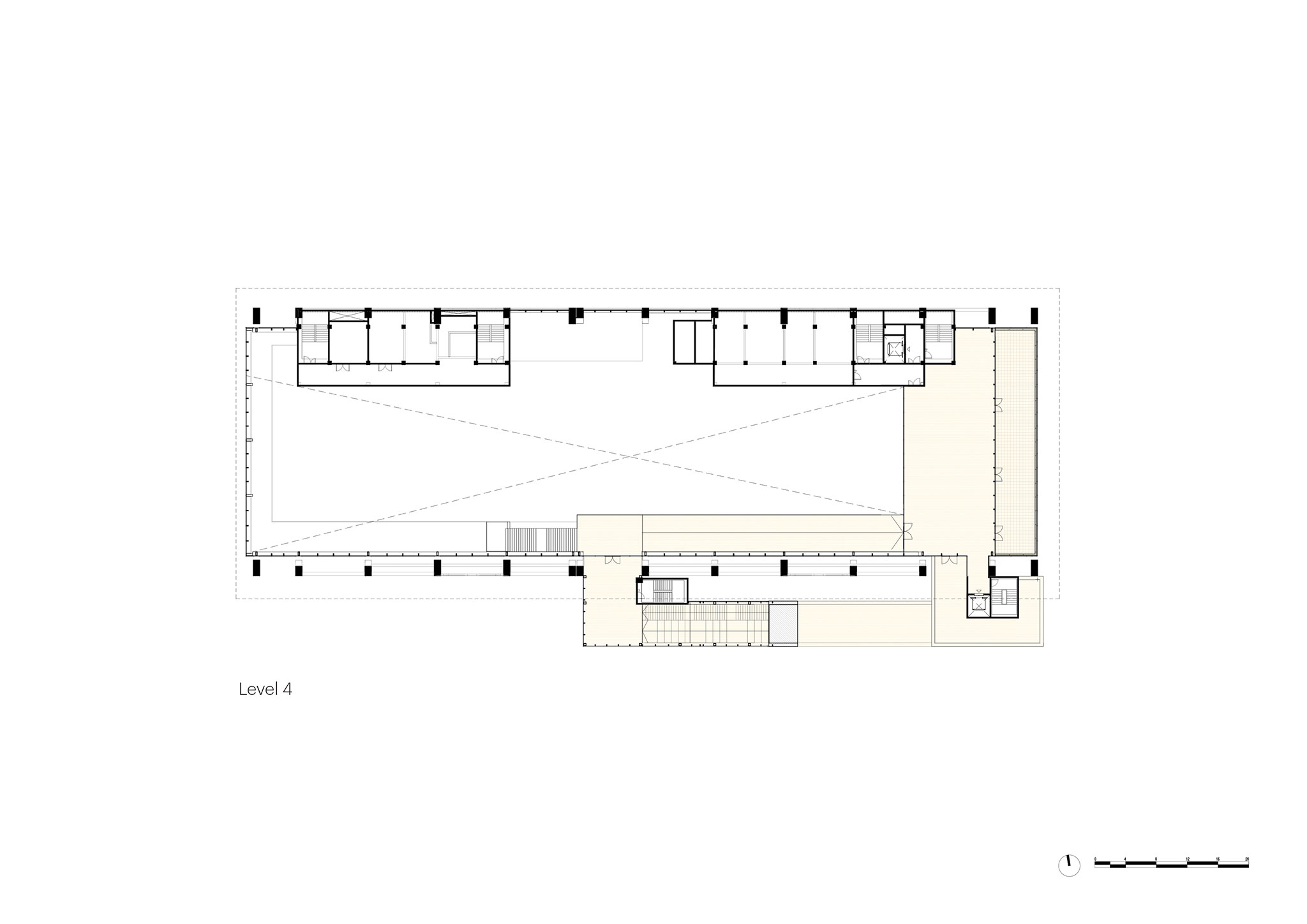
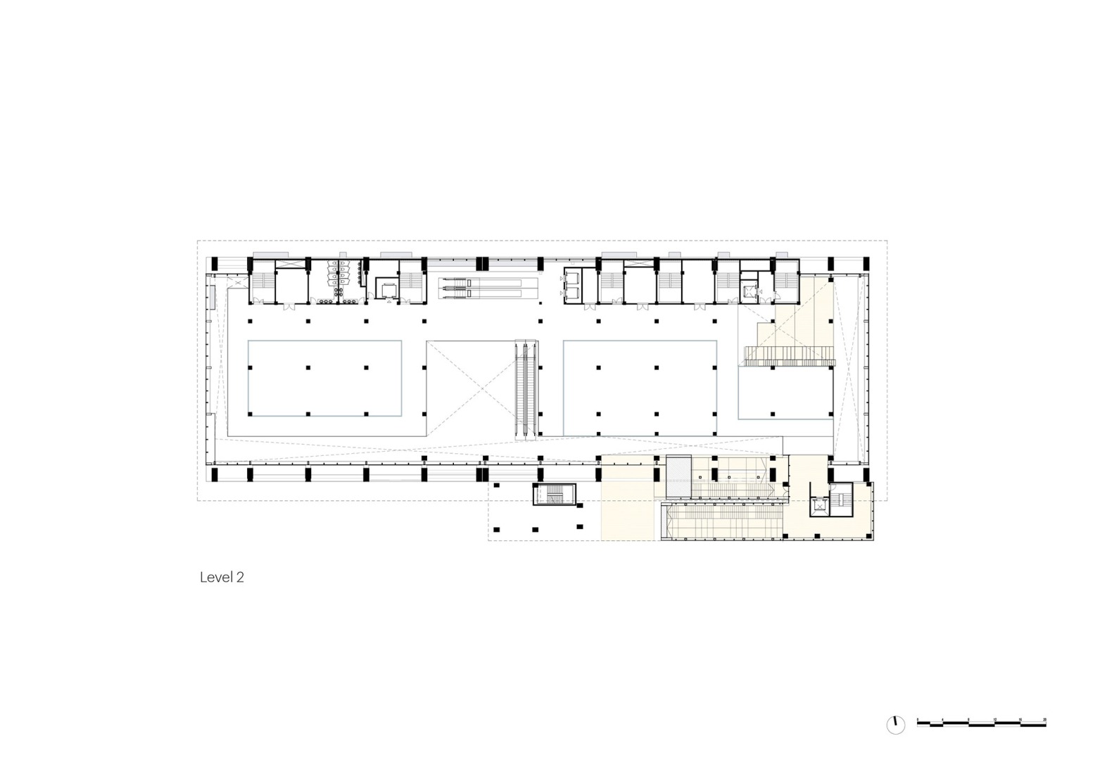
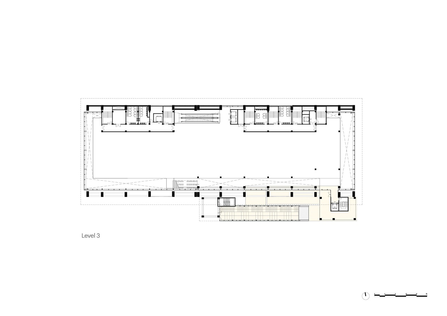
El programa del Dream Center de MVRDV incluye espacios para la cultura, el deporte, la gastronomía y el comercio. La M Factory, pieza central del proyecto, alberga en su planta baja BLOOMARKET, un mercado gastronómico que combina producto fresco con alta cocina, mientras que la planta superior, libre de columnas, ofrece un espacio cultural polivalente apto para exposiciones, conferencias o espectáculos. El gran silo industrial se ha reconvertido en un centro de escalada, con recorridos en el exterior que conducen a miradores y terrazas. Alrededor de estas piezas icónicas, los edificios más recientes se han completado como hoteles, restaurantes y tiendas, rodeados por espacio público junto al río.
En conjunto, el proyecto apuesta por una arquitectura que reutiliza, resalta lo existente y lo combina con lo nuevo para generar una experiencia urbana rica y sostenible. Se preservan las estructuras originales de hormigón, cuyos volúmenes monumentales otorgan una fuerte identidad al conjunto. Estas masas construidas se actualizan con la incorporación de núcleos de circulación, como escaleras y ascensores, pintados de un llamativo naranja, que contrasta con el gris del cemento y actúa como elemento distintivo del proyecto. Las nuevas edificaciones presentan fachadas neutras y cubiertas verdes, integrándose con sensibilidad en el entorno.

GATE M West Bund Dream Center por MVRDV. Fotografía por Liu Guowei.
Descripción del proyecto por MVRDV
MVRDV ha completado el GATE M West Bund Dream Center, transformando una antigua fábrica de cemento en un distrito de cultura y ocio que se suma a la creciente serie de proyectos culturales del West Bund de Shanghái. El diseño convierte un conjunto de edificios de distintas épocas en un espacio urbano cohesionado, reutilizando las estructuras existentes para minimizar las emisiones de carbono, e introduciendo una identidad inconfundible con sus elementos de circulación de color naranja brillante. Ofreciendo posibilidades para ir de compras, comer, beber, hacer skate, escalar, visitar exposiciones y eventos –o simplemente relajarse junto al río–, la zona ya se ha convertido en un destino galardonado y popular tanto para los residentes de Shanghái como para los visitantes.
El emplazamiento del GATE M Dream Center fue anteriormente la sede de la Fábrica de Cemento de Shanghái, en su momento la mayor fábrica de cemento de Asia. La Exposición Universal de Shanghái 2010 fue el catalizador para que la ciudad reubicara la fábrica, junto con otras funciones industriales en esta parte de la ciudad, y para hacer accesibles las orillas del río Huangpu a los residentes. Antes de la transformación llevada a cabo por MVRDV, el lugar albergaba dos tipos muy diferentes de edificaciones: unas cuantas estructuras industriales de gran tamaño que evocaban la historia del área, mientras que los espacios intermedios contenían construcciones inacabadas de un intento previo de desarrollo que nunca llegó a concretarse.
MVRDV diseñó el plan maestro para todo el sitio del Dream Center, y también creó los diseños arquitectónicos para la mitad sur del lugar, incluyendo la pieza central, la M Factory. Los edificios comerciales en la parte norte del sitio fueron desarrollados por Atelier Deshaus, mientras que Schmidt Hammer Lassen diseñó el West Bund Dome Art Centre y el nuevo Teatro Shanghai West Bund en el extremo norte del terreno.
En su diseño, MVRDV optó por trabajar con todos estos elementos de la historia del lugar, minimizando las emisiones de carbono y los residuos asociados con la demolición y reconstrucción de las estructuras.
«Desde el principio estaba claro que había mucho valor residual en los edificios que ya estaban allí; no queríamos demoler cosas sólo porque podría ser más sencillo, porque eso significa más carbono, más residuos», «Nuestro reto era unir estas piezas y hacer que funcionaran como una sola zona, porque eran un binomio incómodo. Convertimos los edificios más nuevos en el telón de fondo, de modo que los colosos industriales pudieran ser los signos de exclamación, con funciones emocionantes que capitalizaran sus características estructurales especiales».
Jacob van Rijs, socio fundador de MVRDV.
Los silos industriales y los edificios de fábrica que se conservaron forman los puntos focales de la nueva zona. Estas estructuras de hormigón crudo y monumental aportan un claro sentido de historia e identidad, acentuado por la adición de escaleras y núcleos de ascensores de color naranja brillante en sus exteriores. En su planta baja, el imponente edificio M Factory alberga BLOOMARKET, que combina un mercado de alimentos con una experiencia gastronómica de alta calidad, mientras que la planta superior –accesible mediante una escalera naranja creada a partir de lo que antes era una cinta transportadora– acoge un gran espacio cultural sin columnas que puede utilizarse para cualquier cosa, desde exposiciones y conferencias hasta desfiles de moda y espectáculos escénicos. Mientras tanto, el gran edificio del silo ha sido reconvertido interiormente para convertirse en un centro de escalada, con rutas naranjas en el exterior que invitan a subir a plataformas de observación en la azotea y a un balcón en la primera planta.
En torno a estos enigmáticos edificios industriales, las estructuras inacabadas más recientes se han completado como tiendas, restaurantes y hoteles, con fachadas neutras, cubiertas verdes y terrazas al aire libre. Estas definen un espacio público que aprovecha su ubicación frente al agua, con un diseño paisajístico a cargo de Field Operations. Al ofrecer por primera vez un espacio público activo y emocionante en esta parte de la ribera, el GATE M Dream Center ya ha demostrado ser un destino popular, y el enorme armazón de la Fábrica M ha servido de valla publicitaria ideal para atraer a la gente a los eventos que se celebran en su interior. El éxito de esta transformación ya ha contribuido a que el proyecto haya sido galardonado con el Premio Anual a la Renovación Urbana de China, el Premio a los Proyectos Excelentes de Regeneración Urbana de Shanghái y el Premio IDEAT China Future, lo que demuestra claramente que, para renovar nuestras ciudades, puede que no necesitemos construir muchas estructuras nuevas.
El GATE M Dream Center es un ejemplo de una tendencia global más amplia en la que antiguos emplazamientos industriales son absorbidos por la expansión de las ciudades y deben adaptarse a sus nuevos contextos urbanos. En todo el mundo, las ciudades en crecimiento están replanteándose cómo pueden transformarse las estructuras industriales para servir nuevos propósitos y convertirse en mejores vecinas, al pasar de ser polígonos industriales aislados a barrios prósperos. El portafolio de MVRDV refleja esta evolución: el estudio trabaja actualmente en la transformación de una incineradora, de refinerías de petróleo en Hangzhou y Matosinhos, y ha propuesto una visión para una fábrica de acero cerca de IJmuiden. Entre los proyectos anteriores se encuentra el plan maestro Rockmagneten, que convirtió una fábrica de cemento en un campus cultural y educativo que incluye la Roskilde Festival Højskole y el museo Ragnarock de pop, rock y cultura juvenil. Cada uno de estos proyectos demuestra el valor que la reutilización creativa puede aportar tanto al entorno urbano como a las comunidades que lo rodean.