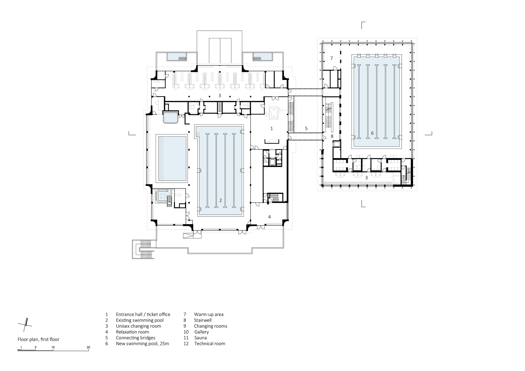
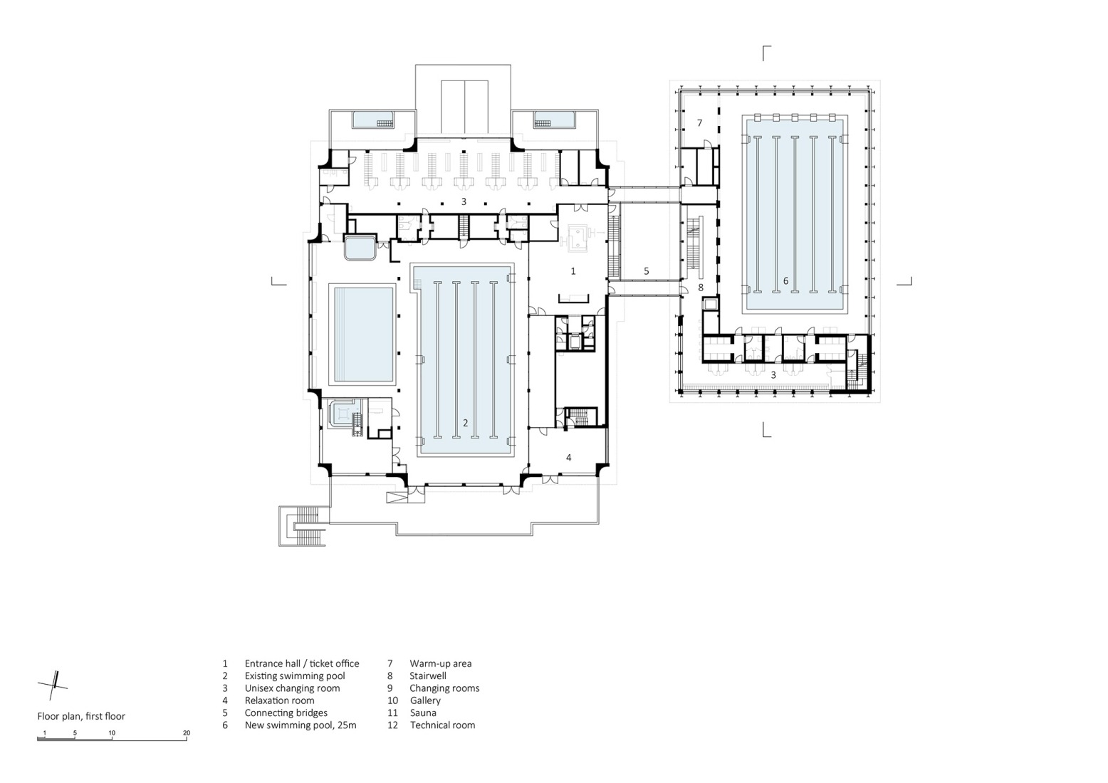
La Piscina pública Großfeldsiedlung planteada por Illiz Architektur, presenta un nuevo edificio independiente de tres plantas que se conecta al complejo existente mediante dos puentes voladizos. Una escalera asciende hasta la primera planta y los dos puentes entrelazan el nuevo vestíbulo con el edificio existente. En una de sus fachadas, se extiende un frente acristalado de doble altura que da paso al ingreso de luz natural hacia la circulación de todo el edificio y sus espacios, como zonas de espera y salas de piscina.
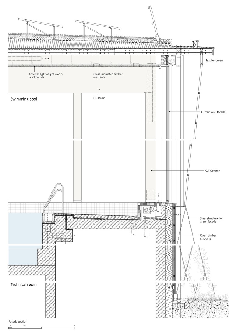
La piscina, de 6 metros de altura, se materializa con una estructura de madera. La pasarela junto a la piscina utiliza azulejos compuestos en tonos neutros blanco y gris claro combinados con madera clara. El edificio cuenta con una losa de madera en voladizo, una serie de claraboyas, y una estructura de acero en la parte delantera que se extiende hacia la cubierta y envuelve la nueva sala de entrenamiento.

Piscina pública Großfeldsiedlung por Illiz Architektur. Fotografía por Hertha Hurnaus.
Descripción del proyecto por Illiz Architektur
Como parte de la "Bäderstrategie 2030" de Viena, las dos piscinas idénticas de Simmering y Großfeldsiedlung, construidas originalmente a principios de la década de 1980, se están renovando y ampliando parcialmente para incluir nuevas piscinas cubiertas de entrenamiento diseñadas para deportes escolares y de clubes. El objetivo es crear un prototipo que mejore la eficiencia operativa, la accesibilidad y la calidad del espacio de ambos emplazamientos, minimizando el uso del suelo e implementando métodos y tecnologías de construcción sostenibles.
El estudio de arquitectura illiz architektur, con sede en Viena y Zúrich, diseñó un pabellón independiente de tres plantas que ocupa un espacio compacto en el solar de un antiguo aparcamiento. La nueva estructura se conecta al complejo existente mediante dos puentes voladizos. Entre lo antiguo y lo nuevo, emerge un pasaje verde que guía intuitivamente a los visitantes hacia las zonas de piscinas cubiertas y al aire libre y, bajo los puentes, los conduce a la nueva entrada principal. Aquí, la línea de fachada desciende hasta la planta baja y se expande en un frente acristalado de doble altura, tras el cual un luminoso vestíbulo de tres plantas constituye el nodo espacial central para la circulación por todo el edificio.
Incluso desde la distancia, tras la fachada acristalada se aprecia una escalera de caracol que sube a la piscina en la primera planta. Desde allí, los dos puentes conectan el nuevo vestíbulo, totalmente accesible, con la sala de caja del edificio existente, creando un sistema de circulación coherente que separa los flujos de visitantes para una mejor gestión operativa. A medida que los usuarios se desplazan por la estructura, se despliegan nuevas conexiones y perspectivas espaciales: vestíbulos, zonas de espera, puentes y salas de piscina se entrelazan visual y funcionalmente.
La piscina de 6 metros de altura está estructurada con una estructura de madera y rodeada por una fachada de cristal de suelo a techo. Frente a ella, la pasarela junto a la piscina se curva formando un banco de azulejos, sostenido por esbeltas columnas de madera. Los patrones de azulejos cuidadosamente compuestos en tonos neutros blanco y gris claro, combinados con superficies de madera clara, crean un ambiente luminoso y deportivo. Como parte de la remodelación, la sala existente también recibió una nueva cubierta elevada. Al reubicar la estructura portante, la piscina multiusos ahora se beneficia de una mayor altura del techo y de una luz natural suave y sin deslumbramiento que entra a través de aberturas laterales translúcidas.
El diseño de la nueva ampliación hace referencia a la articulación de la fachada y a la distintiva línea de cubierta de las instalaciones existentes. Una gran losa de madera en voladizo y una serie de claraboyas definen la silueta del edificio. Una cinta horizontal, que alterna entre revestimiento de vidrio y madera, envuelve la estructura, articulando el programa interno de la sala, los vestuarios y el vestíbulo. En la parte delantera, una estructura de acero se extiende hacia la cubierta, ramificándose horizontalmente y sosteniendo una capa de vegetación que envuelve suavemente la nueva sala de entrenamiento con una pantalla luminosa y viva.