Designed by Disbrow Iannuzzi, “Lakeside” features a south-facing main entrance, allowing natural light to flood the interior. The interior itself boasts floor-to-ceiling and wall-to-wall glass walls, providing expansive views of the surrounding landscape.
For the house's construction, slate was split into roof tiles, split and cut to create wall stone, laminated and polished for horizontal surfaces, crushed and compacted at the entrance, and the remaining debris collected in gabions to create retaining structures. Meanwhile, the white ash planks used for the roof, walls, and floor were selected to achieve a linear and uniform appearance.

Lakeside by Disbrow Iannuzzi. Photograph by Rafael Gamo.
Descripción del proyecto por Disbrow Iannuzzi
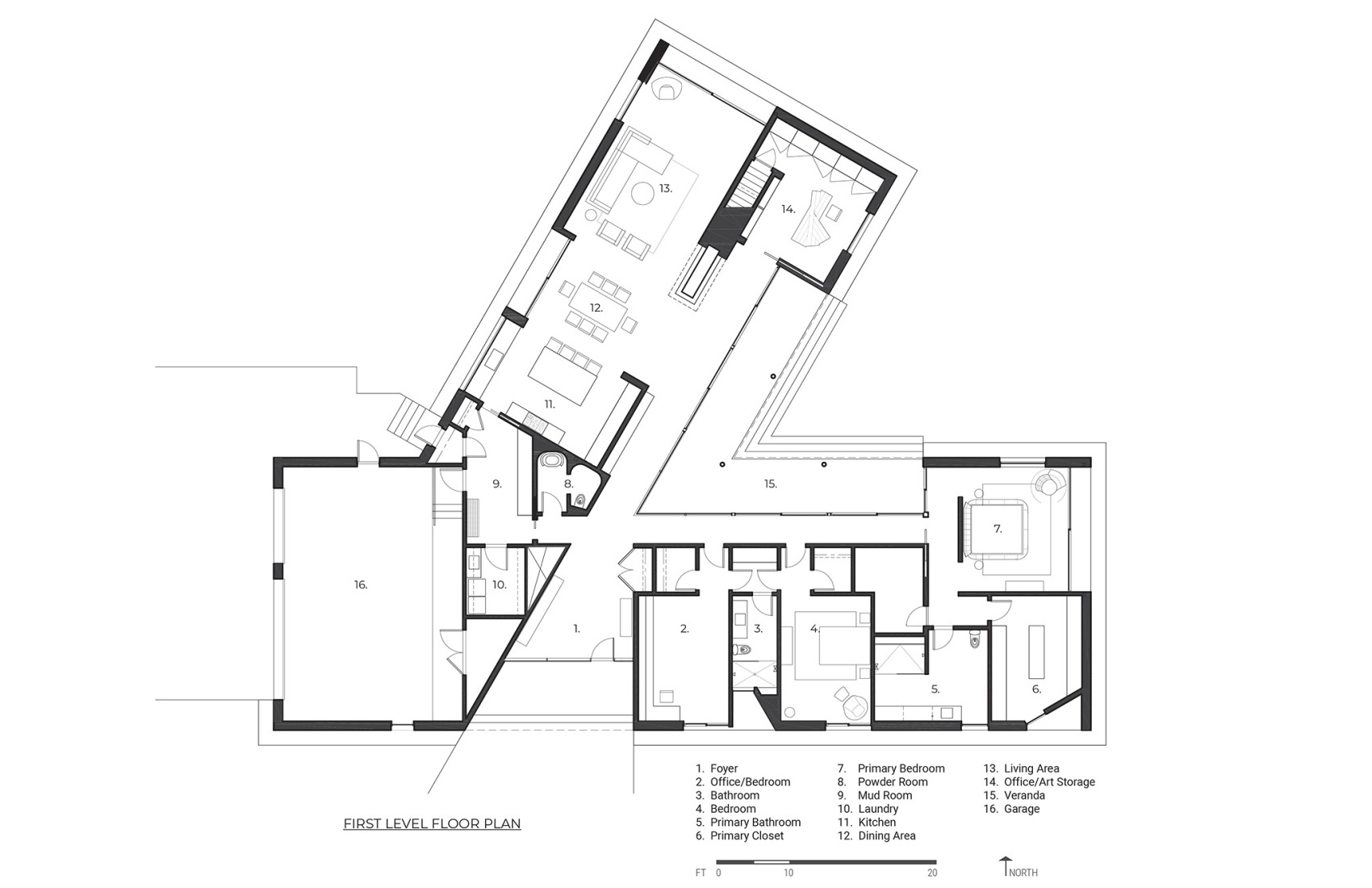
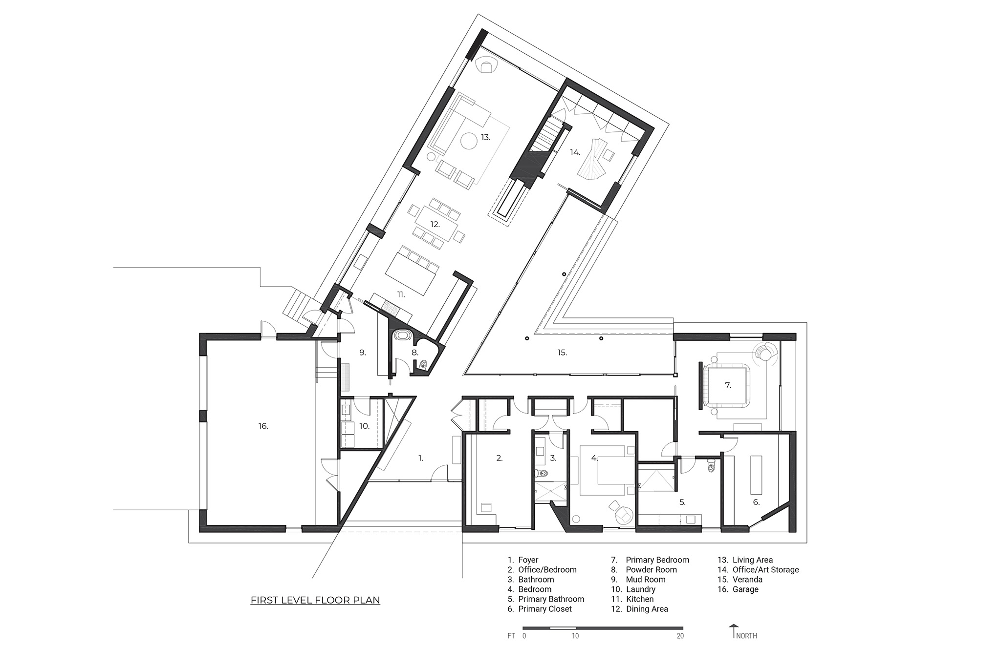
Located on a parklike site in a northern suburb of Detroit with the River Rouge running through it, this 4,000sf Y-shaped home opens to an elaborate landscape that the homeowner has cultivated for over 40 years. A former curator of Asian art and gallery owner, the homeowner wanted to incorporate her unique collection of handcrafted objects into the residence, which is further inspired by her family’s heritage in the lumber industry.
The project incorporates just two primary materials: white ash and black slate, which are used in various ways to highlight their physical characteristics. All the slate came from the same quarry. It was split into roof shingles, cleft and cut to create wall stone, slabbed and honed for horizontal surfaces, crushed and compacted at the driveway, and scraps were collected into gabions to create retaining structures. Throughout the day, the stone exterior is transformed with the sun's movement. At some points in the day, the veining and variation within the stone are immediately obvious. When the sun is stronger and direct, the light and shadow across the surface of the wall accentuate the texture and dramatic character of the slate.
In contrast, the white ash boards used at the ceiling, wall, and floor surfaces were selected to have a consistent linear appearance. This material exudes a quiet warmth. Subtly acknowledging key points of transition, the wood shifts from quarter-sawn to plain-cut, within the same 4” pattern. To display a series of bronze castings in the client’s collection, a long bench was created from a fifteen-foot plank of ash with dramatic contrasting cathedral grain, featuring a different inherent character from the same species of white ash.
Like cutting into an apple, every opening in the slate exterior reveals the warm wooden interior. Each opening is set into the building so as to shield the interior from the sun during the warmer months. The south-facing front entrance tracks that solar path, allowing the sun to fill the space in winter, while providing shade when needed. From the interior, glass walls span floor to ceiling and wall to wall, allowing unobstructed views of the dramatic topography discovered through every window. The quiet, warm interior volumes frame the curated scenes outside, not unlike the Japanese woodblock printing that the client has in her collection. As the landscaping is intentionally designed to be experienced from within the home, the layered plantings, surfaces, and sculptural works become the focal points of each room. The landscape not only inspires the interiors, but becomes part of it, forging a connection between the built and the natural worlds that infuses and enhances the day-to-day life of the residents.