
El proyecto de parroquia de tresunonuo se muestra exteriormente con una fachada sencilla que sirve de lienzo al entorno arbolado cercano. Una gran cruz elevada corona la composición volumétrica destacando el carácter religioso del edificio. Puertas adentro, un cuidadoso tratamiento de las luces y sombras, cualifica el espacio, creando un ambiente sacro y acogedor.
La cuidadosa elección de los materiales intenta potenciar la idea de unidad y continuidad del conjunto. En ese sentido, el ladrillo visto resulta protagonista y se extiende en todas las fachadas, tanto en el interior como en el exterior del proyecto.

Centro Parroquial San Benito Menni por tresunouno. Fotografía por Imagen Subliminal.
Descripción del proyecto por tresunouno
El Centro Parroquial se ubica en uno de los accesos principales al barrio de Carabanchel en un solar que salva una acusada pendiente entre la Vía Lusitana y la calle Catorce Olivas.
La existencia de un pequeño parque público contiguo al solar permite que el edificio adquiera una posición de esquina que facilita su visibilidad.
Se proyecta un edificio compacto cuya volumetría exterior se va modelando a partir de los requerimientos diversos que precisa un Centro Parroquial.
Al interior, un cuidado estudio de la luz y los espacios cualifica el espacio sacro y crea un ambiente agradable para las distintas estancias.

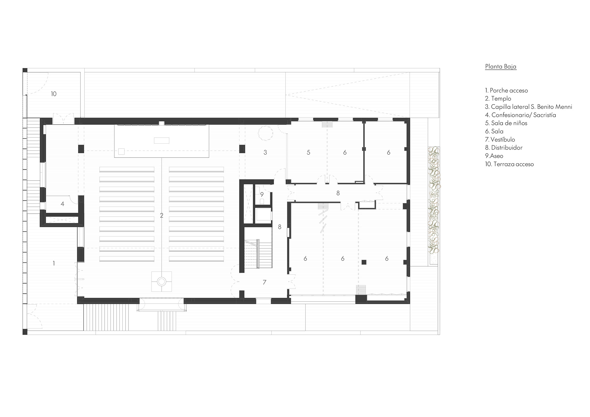
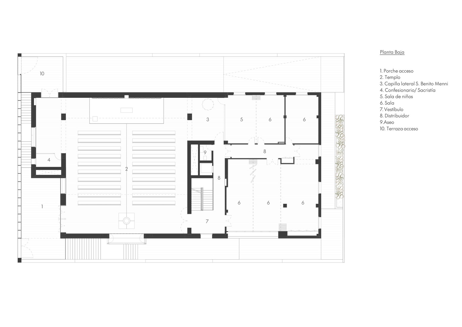
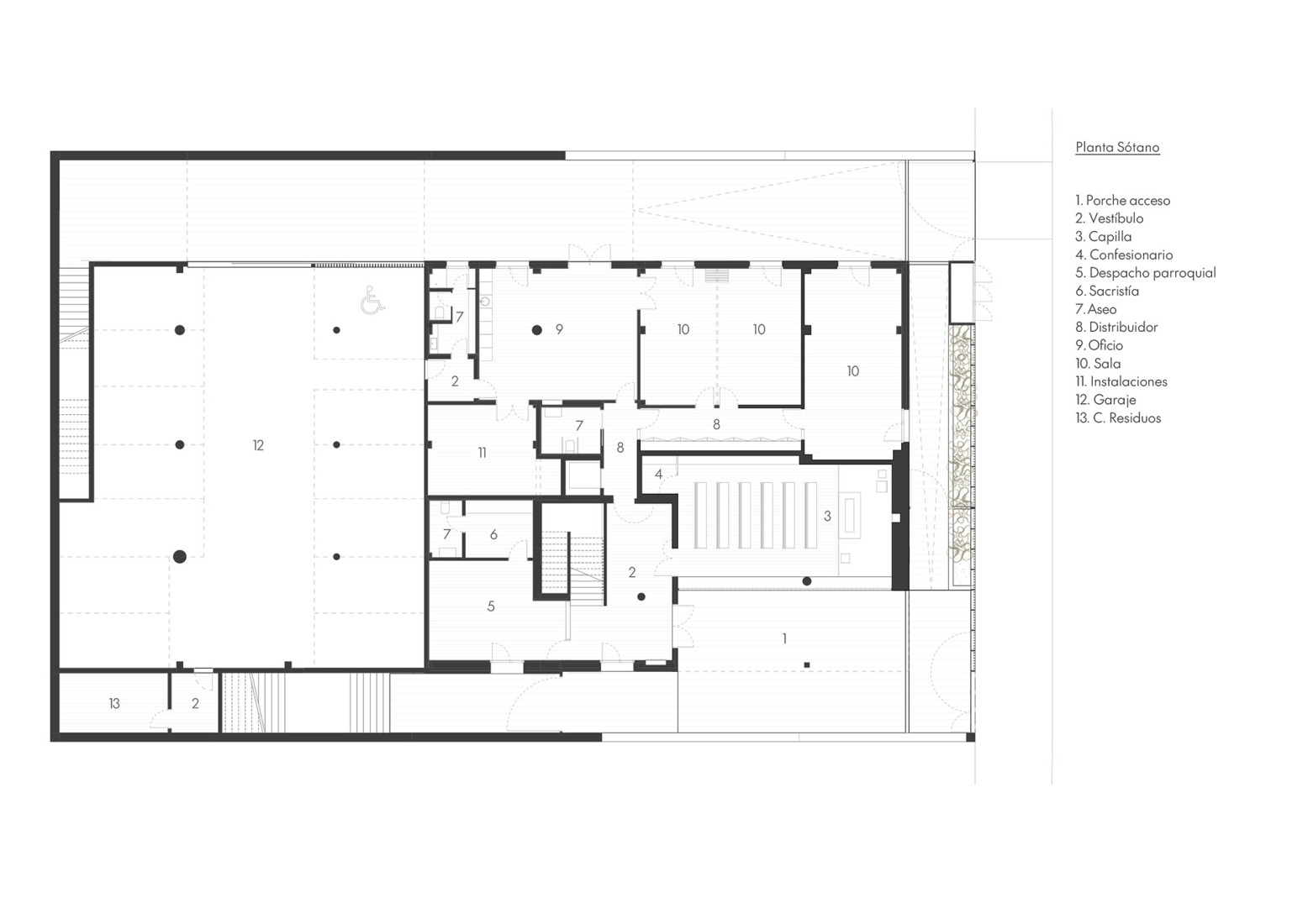
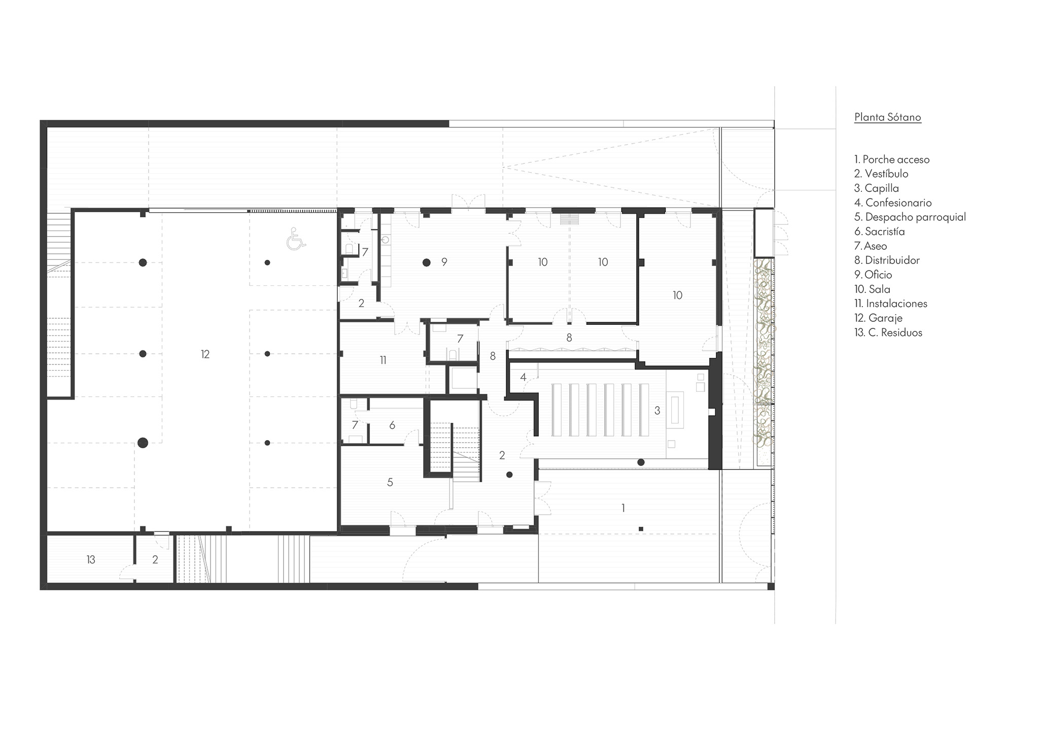
El desnivel existente, la posición de accesos a distinta cota y la necesidad de acometer una actuación por fases (que permitió mantener durante las obras la construcción provisional que albergaba la parroquia anterior) son condicionantes que están detrás de la decisión de conformar el edificio en dos zonas articuladas en torno a una crujía central de comunicaciones y servicios.
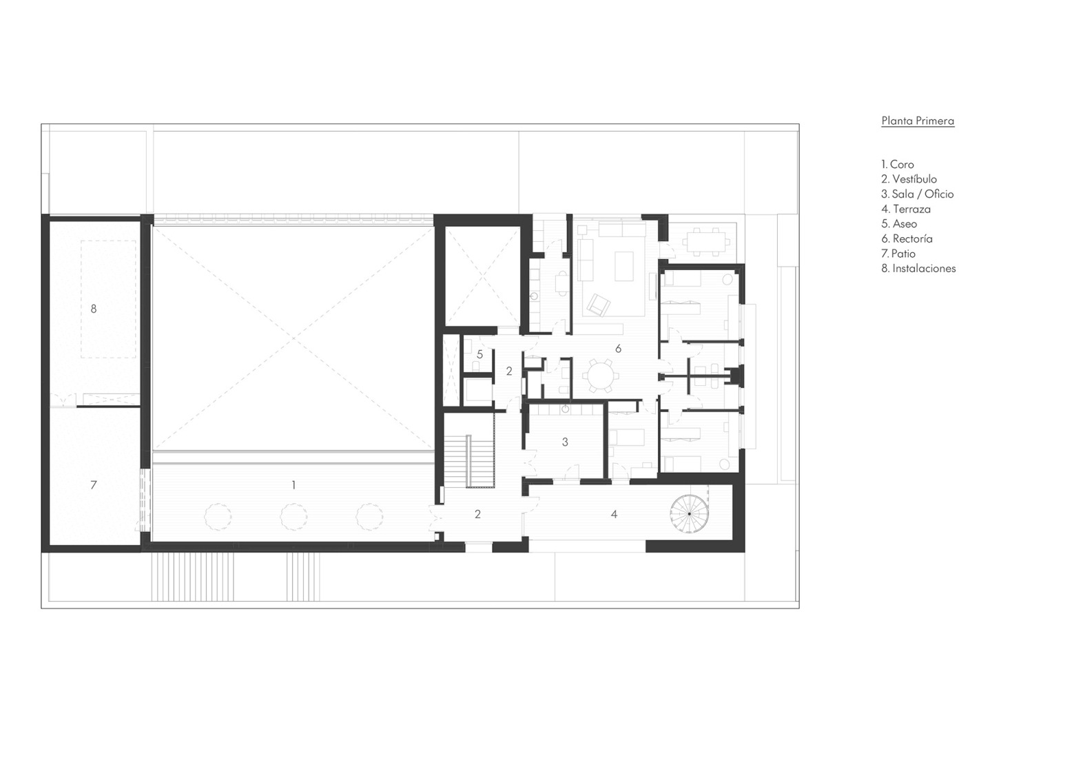
Desde los espacios ajardinados de la vía Lusitana se accede al templo a través de un amplio porche exterior que abre a la zona bajo el coro. En el centro de este espacio, de altura más ajustada y con un mirador sobre el parque, se ubica la pila bautismal enfrentada al altar y referenciada al mismo con una línea marcada en el pavimento. Este espacio más bajo articula a su vez el acceso exterior con la crujía interior de comunicaciones.
Una fachada sencilla, pensada como fondo visual del arbolado que jalona el paseo, integra en la propia fábrica una gran cruz que compone una fachada rematada con un elemento de coronación con la rotulación del complejo.

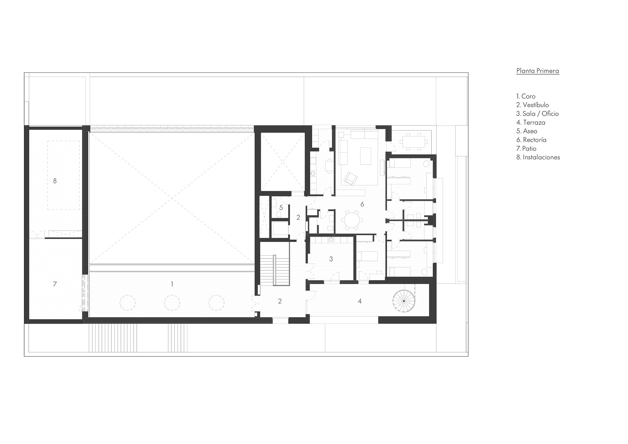
Vinculado al nivel inferior, y con acceso desde la calle Catorce Olivas a través de otro porche cubierto, se distribuye el resto del programa (capilla, salas de reunión, despacho parroquial y rectoría). La posición de la capilla y algunas salas en este nivel permiten un funcionamiento parcial del complejo cuando las necesidades de uso no demandan la apertura del resto de espacios en otras plantas.
En la esquina sudoeste se ha proyectado, elevándose por encima de las cotas de cubierta la estructura que alberga el campanario y la cruz. Su altura y posición significan la presencia del Centro Parroquial en el lugar y es, junto la ligera elevación de la cubierta del templo, el único elemento que destaca sobre la rigurosa volumetría del edificio.

Desde el nivel inferior se accede también al garaje ubicado bajo el espacio del templo.
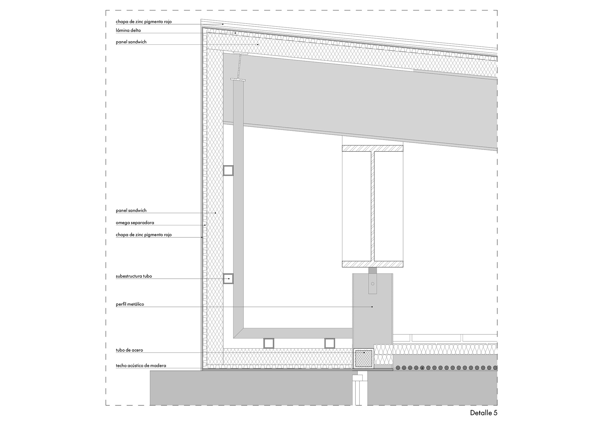
Una fábrica de ladrillo visto se extiende por todas las fachadas para potenciar la unidad del conjunto. Con similar planteamiento una única baldosa cerámica se coloca en la mayoría de los espacios del edificio.
Los revestimientos interiores de ladrillo visto dan continuidad a la materialidad exterior. Para tamizar la luz, los huecos corridos sobre la zona del presbiterio y coro del templo incorporan unas costillas ejecutadas a base de panel de aluminio texturizado. En la zona del presbiterio estas costillas se revisten con alabastro y dotan de solemnidad al ámbito del altar como centro del espacio.

La ligera elevación del presbiterio de templo y capilla, la elección de un pavimento pétreo (también bajo la pila bautismal) y los revocos dorados en los que destacan las pinturas murales del programa iconográfico y en los que se integra el sagrario, aluden también a la primacía litúrgica de estos espacios.
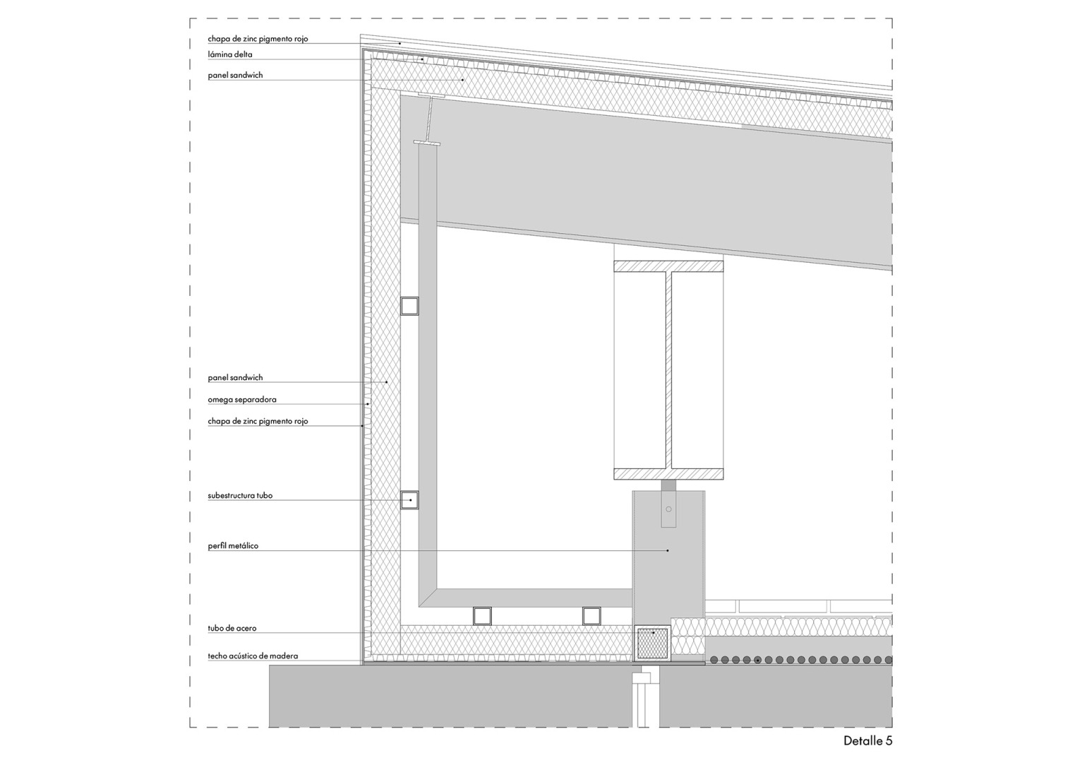
Un detallado estudio de las instalaciones está detrás del planteamiento de ubicar toda la maquinaria exterior en el espacio descubierto de la crujía de fachada principal en planta primera, liberando los espacios de cubierta del edificio para una mejor integración visual en el entorno.

El tratamiento de los espacios libres se ha proyectado con la idea de permitir la comunicación entre todos ellos. De este modo es posible rodear perimetralmente todo el edificio, comunicando los distintos niveles y espacios exteriores de tal modo que se facilita el uso del reducido espacio libre que resulta de las condiciones de posición de la edificación.