La renovación y ampliación integral del Complejo Deportivo Katia & Maurice Krafft, propuesta por RHB architectes, da lugar a un conjunto coherente de forma horizontal en el que resaltan sutilmente los distintos usos programáticos. Desde el punto de vista medioambiental, una envolvente de alto rendimiento, potenciada por estrategias arquitectónicas —ubicación del emplazamiento, voladizos y orientación de las aberturas— garantiza la durabilidad a largo plazo del edificio.
El edificio define los nuevos espacios mediante una estructura portante de hormigón prefabricado aislado. Se conserva la estructura original de hormigón y mampostería, y la cubierta se sustituye por una de acero perforado sobre las cerchas de madera existentes. El gimnasio presenta una estructura mixta de hormigón y madera. El revestimiento exterior, realizado en abeto Douglas, crea un sutil contraste entre la robustez de la estructura y la calidez de la madera.

Complejo Deportivo Katia & Maurice Krafft por RHB architectes. Fotografía por Guillaume Porche.
Descripción del proyecto por RHB architectes
La vida dentro del edificio se desarrolla en un espacio diseñado para ser tranquilo, acogedor y perfectamente adaptado a sus usuarios. Todas las decisiones arquitectónicas —ya sean las opciones estructurales, la selección de materiales, la implementación de los sistemas constructivos o las relaciones visuales entre los espacios— se guían por esta intención.
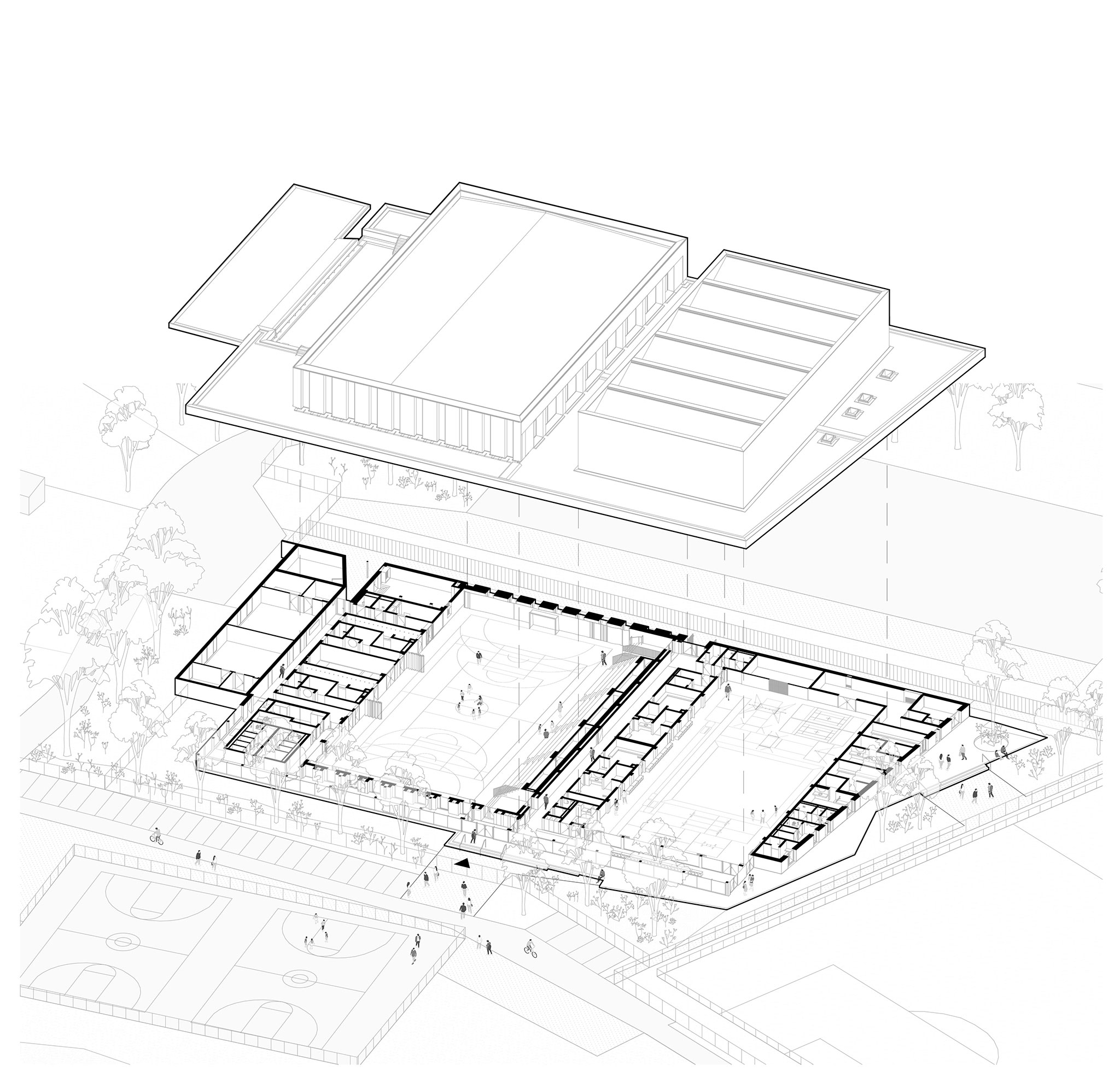
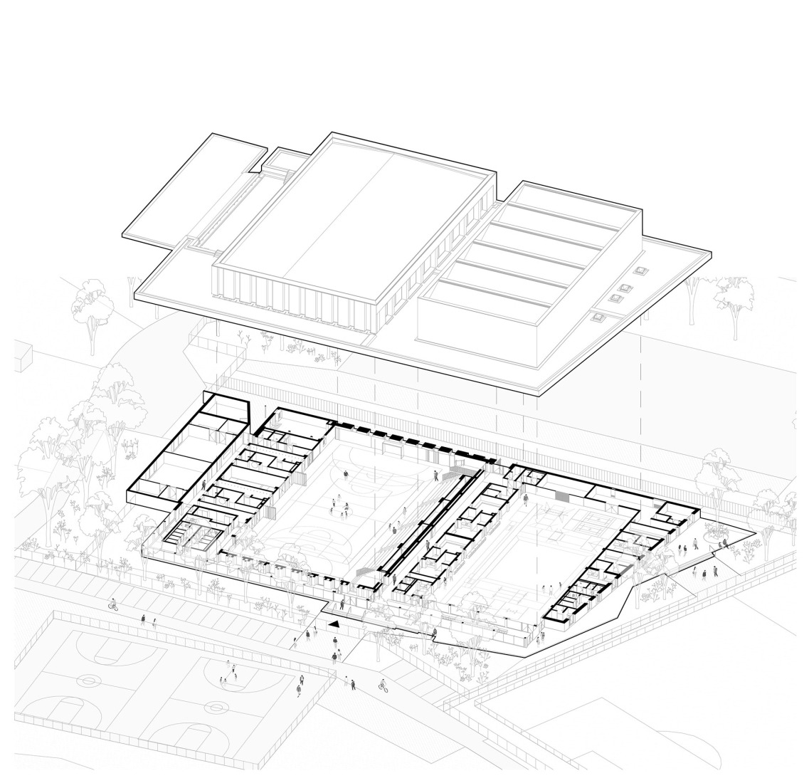
La ampliación del gimnasio existente y la construcción del nuevo pabellón de gimnasia se ubican como una continuación de las fachadas sur y este del edificio, envolviéndolo a lo largo de estos dos lados. Esta disposición conecta directamente la infraestructura existente con la nueva construcción, asegurando una interpretación coherente y unificada de todo el complejo deportivo, a la vez que libera los límites del solar para crear áreas al aire libre que refuerzan la apertura del nuevo edificio.
Organizado íntegramente en una sola planta, el complejo se caracteriza por dos volúmenes emergentes distintos conectados por una base común de 4,20 metros de altura. Este elemento horizontal resalta sutilmente los usos del pabellón polideportivo y el gimnasio —de 9 y casi 12 metros de altura respectivamente—, estableciendo un diálogo visual y técnico con la escala de las casas club y los vestuarios.
Esta base construida compartida se extiende hacia el sur, en línea con los vestuarios existentes, remodelando la fachada principal mediante una expresión arquitectónica que ofrece una vista transparente de las actividades deportivas desde el espacio público. De este modo, contribuye a la identidad del paisaje circundante, frecuentado diariamente por peatones, ciclistas y atletas. Su escala introduce una presencia más humana y acogedora que la fachada anterior, que era completamente lisa. Esta primera capa arquitectónica se desplaza hacia el este para integrar las instalaciones de fútbol y luego gira hacia el norte para formar una zona de amortiguación que alberga las salas técnicas, accesibles a través de un pasillo de servicio. Esta disposición mantiene la distancia con la escuela y facilita el mantenimiento de todos los espacios exteriores.
La base envuelve el nuevo pabellón de gimnasia, situado perpendicularmente al gimnasio existente y a una distancia que permite que este último siga beneficiándose de la luz natural. El patio de entrada, ubicado en la fachada sur, está delimitado por una nueva valla y puerta. Se abre a una amplia escalera de hormigón con rampa de acceso.
Esta disposición garantiza una conexión fluida con el nivel de los nuevos edificios, elevados 60 cm sobre el nivel del suelo existente para cumplir con la normativa de prevención de inundaciones (PPRI). Está protegido por una cubierta en voladizo que prolonga la horizontalidad de la base arquitectónica y da forma a la acogedora fachada. La marquesina crea un espacio cubierto para aparcar bicicletas y para que los usuarios esperen o se reúnan, a la vez que proporciona sombra en verano y permite el aprovechamiento de la energía solar en invierno.
Esta base de hormigón delimita la planta de la nueva construcción: forma la base de la galería sur y sirve como circulación exterior que conecta directamente con las instalaciones de fútbol, ahora independientes. Esta pasarela elevada, siempre protegida por el voladizo del techo, ofrece un amplio tramo que sirve como asiento para los espectadores, además de ser un espacio exterior ajardinado y accesible. Está salpicada de amplias escaleras que conectan los vestuarios con el campo, pasando por el acceso peatonal a la escuela. Esta conexión estratégica se ha ampliado intencionadamente para proporcionar un espacio de reunión adicional para los jugadores de fútbol antes o después del entrenamiento.
El pabellón polideportivo, reconocible por su estructura de madera a la vista, se ubica dentro de un volumen sencillo abierto al este y al oeste. Una tribuna escalonada se sitúa en el lado este. Todo el espacio se ha conservado y realzado mediante nuevas aberturas en los muros a dos aguas norte y sur, que aportan abundante luz natural a la zona de juego central. Estas aberturas también permiten que las actividades que se realizan en el interior sean visibles desde las zonas de circulación internas —e incluso desde el espacio público—, reforzando la integración del complejo en la vida del lugar.
Se ha prestado especial atención a la luz y el color, creando una clara interpretación del volumen estructurado en dos niveles. La tribuna conserva su autonomía, mientras que los elementos técnicos y estructurales se integran o se ocultan sutilmente. Este enfoque garantiza un espacio legible, funcional y sobrio.
El vestíbulo mantiene un estatus distintivo dentro del proyecto. La antigua zona de vestuarios se ha rediseñado como vestuarios de paso, garantizando una circulación que cumple con la separación requerida entre zonas limpias y sucias.
La ampliación afirma una identidad propia en contraste con el edificio existente mediante una atmósfera marcada por la fuerte presencia de materiales en bruto. El hormigón visto en paredes y suelos define el espacio con rigor. La madera, utilizada como revestimiento interior para la carpintería y el mobiliario empotrado, aporta calidez y una cualidad táctil.
El proyecto equilibra la delicadeza y la robustez: los ensamblajes son precisos, los detalles están cuidadosamente controlados, logrando una armonía entre la solidez estructural y la comodidad del usuario. La atmósfera resultante es un espacio único, acogedor y a la vez disciplinado, donde la materialidad juega un papel central en la percepción espacial, la legibilidad y la apropiación por parte de sus usuarios.
Finalmente, el pabellón de gimnasia se distingue por un volumen singular definido por proporciones generosas, un perfil arquitectónico sólido y una notable entrada de luz natural. La iluminación es completamente cenital e indirecta, proporcionada por una serie de pérgolas orientadas al norte. Este sistema baña el espacio con una luz suave, uniforme y sin deslumbramientos, perfectamente adaptada a las exigencias de la gimnasia, donde evitar contrastes fuertes facilita la orientación espacial durante los movimientos aéreos.
La atmósfera se configura mediante la presencia de la madera, utilizada en la zona inferior como elemento de conexión con el suelo y en las superficies del techo que recubren las pérgolas. La luz natural, filtrada a través de estas pérgolas, se desliza sobre la madera y revela cálidas variaciones tonales. Este sutil gradiente, creado por el propio material, acompaña el movimiento a través del espacio y confiere al pabellón un carácter vivo, dinámico y acogedor.